Материал: Расчет и проектирование привода к скребковому конвейеру

Внимание! Если размещение файла нарушает Ваши авторские права, то обязательно сообщите нам

Для повышения жесткости служат ребра, располагаемые у приливов под подшипники. Корпус выполняем разъемным, состоящим из основания (картера) и крышки. Плоскость разъема проходит через оси валов.

Материал корпуса - СЧ 15.

Толщина стенки корпуса одноступенчатого цилиндрического редуктора

δ = 0,025а + 1 = 0,025  180 + 1 = 5,5 (мм). (6.1)

Во всех случаях δ ≥ 8 мм, поэтому принимаем δ = 8 мм.

Толщина стенки крышки одноступенчатого цилиндрического редуктора

δ1 = 0,02а + 1 = 0,02  180 + 1 = 4,6 (мм). (6.2)

Во всех случаях δ1 ≥ 8 мм, поэтому принимаем δ1 = 8 мм.

Толщина верхнего пояса (фланца) крышки корпуса

b =1,5δ = 1,5  8 = 12 (мм). (6.3)

Толщина нижнего пояса (фланца) крышки корпуса

b1 =1,5δ1 = 1,5 ∙ 8 = 12 (мм). (6.4)

Толщина нижнего пояса корпуса:

без бобышки= 2,35δ = 2,35 ∙ 8 = 18,8 (мм); (6.5)

при наличии бобышки =1,5δ = 1,5 ∙ 8 = 12 (мм); (6.6)= (2,25...2,75)δ = (2,25...2,75) ∙ 8 = 18…22 (мм). (6.7)

Принимаем p = 20 мм, p1 = 12 мм, p2 = 20 мм.

Толщина ребер основания корпуса= (0,85...1)δ = (0,85...1) ∙ 8 = 6,8…8 (мм). (6.8)

Принимаем m = 8 мм.

Толщина ребер крышки= (0,85...1)δ1 = (0,85...1) ∙ 8 = 6,8…8 (мм). (6.9)

Принимаем m1 = 8 мм.

Диаметр фундаментных болтов= (0,03...0,036)а + 12 = (0,03...0,036)  180 + 12 = 17,7…18,48 (мм). (6.10)

Принимаем для фундаментных болтов резьбу М16.

Диаметр болтов:

у подшипников= (0,7...0,75)d1 = (0,7...0,75) ∙ 16 = 11,2…12 (мм); (6.11)

соединяющих основание корпуса с крышкой= (0,5...0,6)d1 = (0,5…0,6)  16 = 8…9,6(мм). (6.12)

Принимаем для болтов у подшипников (d2) резьбу М12 , соединяющих и основание корпуса с крышкой (d3) - М8.

Для крепления крышки подшипника принимаем 4 винта (d4) с резьбой М8.

Размеры, определяющие положение болтов d2≈ (1...1,2)d2 = (1...1,2) ∙ 12 = 12…14,4 (мм); (6.13)≥ 0,5d2 + d4 = 0,5 ∙ 12 + 8 = 14 (мм). (6.14)

Принимаем e ≈ 12 мм, q = 14 мм.

Диаметр отверстия в гнезде под подшипник Dп принимаем по наружному диаметру подшипника: для быстроходного вала Dп = 72 мм, для тихоходного вала Dп = 100 мм.

Диаметр гнезда под подшипник на быстроходном валук = D2 + (2...5) = 105 + (2...5) = 107…110 (мм), (6.15)

где D2 - диаметр фланца крышки подшипника,
= Dn + (4...4,5)d4 = 72 + (4...4,5) ∙ 8 = 104…108 (мм), (6.16)

принимаем D2 = 105 мм.

Принимаем диаметр гнезда под подшипник на быстроходном валук = 110 мм.

Диаметр гнезда под подшипник на тихоходном валук = D2 + (2...5) = 135 + (2...5) = 137…140 (мм),

где D2 - диаметр фланца крышки подшипника,= Dn + (4...4,5)d4 = 100 + (4...4,5) ∙ 8 = 132…136 (мм),

принимаем D2 = 135 мм.

Принимаем диаметр гнезда под подшипник на тихоходном валу Dк = 140 мм.

Длина гнезда под подшипник

l* = δ + c2 + Rб + (3…5) = 8 + 18 + 14 + (3…5) = 43…45 (мм), (6.17)

где с2 - размер, определяющий положение центра отверстия под болт у подшипника, с2 = 18 мм;б - радиус закругления у бобышки,б ≥ 1,1d2 = 1,1 ∙ 12 = 13,2 (мм), (6.18)

принимаем Rб = 14 мм.

Определяем размеры конических штифтов, используемых для фиксации

основания корпуса и крышки редуктора относительно друг друга.

Диаметр штифташ ≈ d3 = 8 мм.

Длина штифташ = b + b1 + 5 = 12 + 12 + 5 = 29 (мм). (6.19)

Округляем значение длины штифта до стандартного, принимаемш = 30 мм.

Наименьший зазор между наружной поверхностью колеса и стенкой корпуса:

по диаметру
≈ (1...1,2) δ = (1...1,2) ∙ 8 = 8…9,6 (мм), (6.20)

принимаем А = 8 мм;

от торца колеса (ступицы)≈ A = 8 мм. (6.21)

7. Эскизная компоновка редуктора

Эскизная компоновка устанавливает положение колес редукторной пары, элемента открытой передачи и муфты относительно опор (подшипников); определяет расстояние lБ и lТ между точками приложения реакций подшипников быстроходного и тихоходного валов, а также точки приложения силы давления элемента открытой передачи и муфты на расстоянии lоп и lм от реакции смежного подшипника.

Эскизную компоновку редуктора выполняем согласно рекомендациям [1,с.112-121] и [2,с.301-303,307-310] в следующей последовательности.

. Намечаем расположение проекций компоновки в соответствии с кинематической схемой привода наибольшими размерами колес.

Принимаем решение о выполнении компоновочного чертежа в одной проекции - разрез по осям валов при снятой крышке редуктора.

. Проводим оси проекций и осевые линии валов.

Начинаем с изображения горизонтальной осевой линии. Далее вертикально проводим (в цилиндрическом редукторе - параллельно) на межосевом расстоянии = 180 мм друг от друга две линии - оси валов.

. Вычерчиваем редукторную пару (шестерню и колесо) в соответствии с геометрическими параметрами, полученными в результате проектного расчета закрытой зубчатой передачи и раздела по конструированию зубчатых колес.

. Очерчиваем внутреннюю стенку корпуса.

Для предотвращения задевания поверхностей вращающихся колес за внутренние стенки корпуса контур стенок проводим с соответствующими зазорами:

а) принимаем зазор между торцом шестерни (при наличии ступицы зазор берем от торца ступицы) и внутренней стенкой А1 = 8 мм;

б) принимаем зазор от окружности вершин зубьев колеса до внутренней стенки корпуса А = 8 мм;

в) принимаем расстояние между наружным кольцом подшипника ведущего вала и внутренней стенкой корпуса А = 8 мм (если диаметр окружности вершин зубьев шестерни da1 больше наружного диаметра подшипника D, то расстояние А берем от шестерни);

г) принимаем расстояние у = 32 мм между дном корпуса и поверхностью колес, так как для редукторов всех типов у≥4А =(мм).

Действительный контур корпуса редуктора зависит от его кинематической схемы, размеров деталей передач, способа транспортировки, смазки и т. п. и определяется при разработке конструктивной компоновки.

. Вычерчиваем ступени быстроходного и тихоходного валов на соответствующих осях по размерам диаметров d и длины l, полученных при предварительном расчете валов.

Для цилиндрического редуктора ступени валов вычерчиваем в последовательности от 3-й к 1-й. При этом длина 3-й ступени l3 получается конструктивно, как расстояние между противоположными стенками редуктора.

. На 2-й и 4-й ступенях изображаем контуры подшипников по размерам d, D, B (T, c) в соответствии со схемой их установки. Контуры подшипников вычерчиваем основными линиями, диагонали - тонкими.

. Определяем расстояние lБ и lТ между точками приложения реакций подшипников быстроходного и тихоходного валов.

Радиальную реакцию подшипника R считаем приложенной в точке пересечения нормали к середине поверхности контакта наружного кольца и тела качения подшипника с осью вала.

Для радиальных подшипников точка приложения реакции лежит в средней плоскости подшипника (рисунок 7.1), а расстояние между реакциями опор вала

= L - B, (7.1)

где В - ширина подшипника;- расстояние между противоположными торцами подшипников вала (определяется графически по компоновке).

Рисунок 7.1 - Тихоходный вал цилиндрического редуктора на радиальных подшипниках, установленных в распор

Определяем расстояние между реакциями опор быстроходного валаБ =LБ -B = 115 - 17=98 (мм),

где В - ширина подшипника, В = 17 мм;Б - расстояние между противоположными торцами подшипников быстроходного вала, LБ = 115 мм.

Определяем расстояние между реакциями опор тихоходного валаТ =LТ -B = 123 - 21= 102 (мм),

где В - ширина подшипника, В = 21,01 мм;Т - расстояние между противоположными торцами подшипников тихоходного вала, LТ = 123 мм.

. Определяем точки приложения консольных сил:

а) для открытой ременной передачи силу давления передачи Fоп принимаем приложенной к середине выходного конца вала на расстояние lоп от точки приложения реакции смежного подшипника,оп = 81,5 мм;

б) сила давления муфты Fм приложена между полумуфтами, поэтому принимаем, что в полумуфте точка силы Fм находится в торцевой плоскости выходного конца соответствующего вала на расстояние lм от точки приложения реакций смежного подшипника,м = 121,5 мм.

При определении размеров lоп и lм необходимо учитывать размеры рассчитанных при конструировании корпуса редуктора длин гнезд под подшипники, толщину крышек подшипников и способ их установки в редукторе. Указанные параметры предварительно определяем по рекомендациям [2,с.303,308-310] и [3,с.152-178].

. Определяем на эскизной компоновке необходимые размеры. Полученные результаты сводим в таблицу 7.1.

Таблица 7.1 - Параметры ступеней валов

Вал

Размеры ступеней, мм


d1

d2

d3

d4

d5


l1

l2

l3

l4

l5

Быстроходный

30

35

40

35

-


40

50

81

17

-

Тихоходный

50

55

65

55

70


60

80

73

21

8


Рисунок 7.2 - Компоновка редуктора

8. Нагрузка валов редуктора

.1 Определение сил в зацепление закрытой передачи

Редукторные валы испытывают два вида деформации - изгиб и кручение. Деформация кручения на валах возникает под действием вращающих моментов, приложенных со стороны двигателя и рабочей машины. Деформация изгиба валов вызывается силами в зубчатом зацеплении закрытой передачи и консольными силами со стороны открытых передачи и муфт [1, с. 99]. В проектируемом приводе конструируется цилиндрический косозубый редуктор. Схема сил в зацеплении цилиндрической передачи показана на рисунке 8.1. За точку приложения сил принимают точку зацепления в средней плоскости колеса [1, рис. 6.1, с. 102].

Рис. 8.1

Определяем значение сил в зацеплении цилиндрической косозубой передачи [1, табл. 6.1, с. 100].

Окружная сила:

на колесе===3069,5 (Н), (8.1)

на шестерне=Ft2=3069,5 (Н). (8.2)

Радиальная сила:

на колесе=Ft2 =3069,5·=1520,1 ·=1160,2 (Н), (8.3)

где α - угол зацепления, принимаем α=200;

на шестерне=Fr2=1160,2 (Н). (8.4)

Осевая сила:

на колесеа2=Ft2tgβ=3069,5·tg9,068720=3069,5·0,1596=489,9 (Н), (8.5)

на шестернеа1=Fа2=489,9 (Н). (8.6)

8.2 Определение консольных сил

В проектируемом приводе конструируется открытая ременная передача, определяющая консольную нагрузку на выходной конец вала. Кроме того, консольная нагрузка вызывается муфтой, соединяющей редуктор с рабочей машиной.

Определяем направление консольных сил на выходных концах валов со стороны передачи гибкой связью и муфты [1, с. 108].

а) консольная сила от ременной передачи Fоп перпендикулярна оси вала и в соответствии с положением передачи в кинематической схеме привода направлена.

б) консольная сила от муфты Fм перпендикулярна оси вала; в связи с тем, что направление силы Fм в отношение окружной силы Ft зависит от случайных неточностей монтажа муфты, принимаем худший случай нагружения - направляем силу Fм противоположно силе Ft , что увеличивает напряжения и деформацию вала.

Значение консольной силы от ременной передачи Fоп было определено ранее при проектном расчёте открытой передачи, Fоп= 1399 Н.

Определяем значение консольной силы от муфтым =125=125·=2752,4 (Н), (8.7)

где Т - вращающий момент на тихоходном валу редуктора, Т=Т2=484,83Н·м.

9. Проверочный расчёт подшипников

.1 Определение реакций в опорах подшипников

.1.1 Определение радиальных реакций в опорах подшипника быстроходного вала

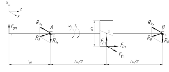
Реакции в опорах подшипников определяем в соответствии с рекомендациями [1, с. 133-139]. Составляем расчётную схему быстроходного вала в соответствии со схемой нагружения валов редуктора (рисунок 9.1).

Исходными данными для расчёта являются:

а) силы в зацепление редукторной пары (на шестерне):

окружная сила Ft1=3069,5 Н;

радиальная силаFr1=1160,2 Н;

осевая силаFa1=489,9 Н;

б) консольная сила (от открытой передачи) - Fоп=1399 Н.

в) геометрические параметры:

расстояние между точками приложения реакций в опорах подшипников быстроходного вала - lБ=115 мм; расстояние между точками приложения консольной силы и реакции смежной опоры подшипника- lоп =81,5 мм; диаметр делительной окружности шестерни - d1=44,1 мм.

, RВх - реакции опор в горизонтальной плоскости; RАy, RВy - реакции опор в вертикальной плоскости;

Рисунок 9.1 - Расчётная схема быстроходного вала цилиндрического редуктора

Определяем реакции в опорах выбранных подшипников вала в вертикальной и горизонтальной плоскостях (рисунок 9.2), составляя по два уравнения равновесия плоской системы сил.

Радиальные реакции в подшипниках направляем противоположно направлению окружной(Ft1) и радиальной(Ft1)сил в зацеплении редукторной передачи.

Рисунок 9.2 - Силы в вертикальных и горизонтальных плоскостях быстроходного вала

а) Вертикальная плоскость.

ΣMi4=0; Ft1·lБ/2- RАy·lБ=0,Аy= (Ft1·lБ/2)/ lБ=(3069,5·98/2)/ 98=1534,75 (Н);

ΣMi2=0; -Ft1·lБ/2+ RВy·lБ=0,Вy= (Ft1·lБ/2)/ lБ=(3069,5·98/2)/ 98=1534,75 (Н);

Проверка: ΣYi=0;

-RАy +Ft1 -RВy= -1534,75+3069,5 -1534,75=0.

б) Горизонтальная плоскость.

ΣMi4=0; Fr1·lБ/2-Fa1·d1/2-RAx·lБ+Fоп(lоп+lб)=0, = (Fr1·lБ/2-Fa1·d1/2+Fоп(lоп+lб))/lБ = (1160,2·98/2- 489,9·44,1/2+1399(81,5+98))/ 98 = 3032,3 (Н);

ΣMi2=0; Fоп·lоп- Fr1·lБ/2-Fa1·d1/2+RBx·lБ=0,= (-Fоп·lоп+Fr1·lБ/2+Fa1·d1/2)/lБ = (- 1399·81,5+ 1160,2·98/2+489,9·44,1/2)/ 98=-473,1(Н);

Проверка: ΣXi=0;

Fоп- RAx+Fr1 - RBx=1399-3032,3+1160,2+473,1=0.

Определяем суммарные радиальные реакции опор подшипников вала===3398,5(Н);===1606 (Н).

9.1.2 Определение радиальных реакций в опорах подшипника тихоходного вала

Реакции в опорах подшипников определяем в соответствии с рекомендациями [1, с. 133-139].

Составляем расчётную схему быстроходного вала в соответствии со схемой нагружения валов редуктора (рисунок 9.3).

Исходными данными для расчёта являются:

а) силы в зацепление редукторной пары (на колесе):

окружная сила Ft2=3069,5 Н;

радиальная силаFr2=1160,2 Н;

осевая силаFa2=489,9 Н;

б) консольная сила (от муфты) - Fм=2752,4 Н.

в) геометрические параметры:

расстояние между точками приложения реакций в опорах подшипников быстроходного вала - lТ =102 мм;