Материал: 2330

Внимание! Если размещение файла нарушает Ваши авторские права, то обязательно сообщите нам

СТРОИТЕЛЬСТВО. СТРОИТЕЛЬНЫЕ МАТЕРИАЛЫ И ИЗДЕЛИЯ

можности определения более обоснованных значений предела прочности асфальтобетона на растяжение при изгибе, что в свою очередь будет способствовать более качественному анализу экспериментальных данных, особенно при назначении расчётных нормативных значений для проектирования нежёстких дорожных одежд.

Библиографический список

1.ОДН 218.046-01 Проектирование нежестких дорожных одежд [Электрон. ресурс]. – Введен 2001-01-01 // Кодекс. Право / ЗАО «Информационная компания «Кодекс». – СПб., 2011.

2.ВСН 46-83 Инструкция по проектированию дорожных одежд нежесткого типа [Электрон. ре-

сурс]. – Введен 1984-01-01, отменен 2001-01-01 //

Кодекс. Право / ЗАО «Информационная компания

«Кодекс». – СПб., 2011.

3.ГОСТ 12801-98 Материалы на основе органических вяжущих для дорожного и аэродромного строительства [Электрон. ресурс]. – Введен 1999- 01-01 // Кодекс. Право / ЗАО «Информационная компания «Кодекс». – СПб., 2011.

4.Пособие по строительству асфальтобетонных покрытий и оснований автомобильных дорог и аэродромов (к СНиП 3.06.03-85) [Электрон. ресурс]

//Кодекс. Право / ЗАО «Информационная компания

«Кодекс». – СПб., 2011.

5.СП 52-101-2003 Бетонные и железобетонные конструкции без предварительного напряжения арматуры [Электрон. ресурс] – Введен 2004-03-01 // Кодекс. Право / ЗАО «Информационная компания

«Кодекс». – СПб., 2011.

6.Пособие по проектированию бетонных и железобетонных конструкций из тяжелого бетона без предварительного напряжения арматуры (к СП 52- 101-2003) [Электрон. ресурс] // Кодекс. Право / ЗАО «Информационная компания «Кодекс». – СПб., 2011.

7.СП 35.13330.2011 Мосты и трубы. Актуализированная редакция СНиП 2.05.03-84* [Электрон.

УДК 624.012

ресурс] – Введен 2011-05-20 // Кодекс. Право / ЗАО «Информационная компания «Кодекс». – СПб., 2011.

8.Сопротивление материалов. Под ред. А.Ф. Смирнова. Учебники для вузов. Изд. 3-е, перераб. и.доп. М.: «Высшая школа», 1975. – 480 с.

9.Автомобильные дороги и мосты. Проектирование состава асфальтобетона и методы его испытаний / Обзорная информация. –М.: Информавто-

дор, 2005. –Вып.6. -62с.

10.Сиротюк В.В., Крашенинин Е.Ю. Лабораторный метод изготовления армированных асфальтобетонных образцов /Вестник ТГАСУ. -Томск:

Изд-во ТГАСУ, 2007. -С.54-60.

ABOUT DEFINITION ULTIMATE TENSILE STRENGTH BENDING A BEAM OF ASPHALT

CONCRETE

G.M. Levashov, V.V. Sirotuk

Possibility of application the existing positions resistance materials to a definition ultimate tensile strength bending a beam of asphalt concrete is shown. Results of tests are brought.

Сиротюк Виктор Владимирович – д-р техн. наук, проф., зав. кафедрой «Проектирование дорог» Сибирской государственной автомобильнодорожной академии (СибАДИ). Применение геосинтетических материалов в дорожных конструкциях, применение золошлаковых смесей в дорожном строительстве. Общее количество пуб-

ликаций – 206 . E-mail: sirotuk_vv@sibadi.org.

Левашов Григорий Михайлович – преподаватель кафедры «Проектирование дорог» Сибирской государственной автомобильно-дорожной академии (СибАДИ). Применение геосинтетических материалов в дорожных конструкциях. Общее количество публикаций – 13.

E-mail: Levashov-omsk@mail.ru.

РАСЧЕТ КОНСТРУКЦИЙ МОСТОВЫХ ПРОЛЕТНЫХ СТРОЕНИЙ КОРОБЧАТОГО СЕЧЕНИЯ НА ИЗГИБ С КРУЧЕНИЕМ

С.А. Матвеев, Е.А. Мартынов

Аннотация. Рассмотрены особенности расчета железобетонного пролетного строения коробчатого сечения при изгибе с кручением. Получены компоненты напряженнодеформированного состояния для различных соотношений высоты и ширины поперечного сечения. Установлено, что при увеличении ширины сечения влияние кручения возрастает и схема работы конструкции существенно отличается от балочной.

Ключевые слова: изгиб, кручение, коробчатое сечение.

Введение

 

стране, так и во всем мире. К таким конструкциям

Железобетонные коробчатые конструкции по-

относятся пролетные строения мостов в виде ба-

лучили широкое распространение,

как в нашей

 

26

Вестник СибАДИ, выпуск 4 (22), 2011

СТРОИТЕЛЬСТВО. СТРОИТЕЛЬНЫЕ МАТЕРИАЛЫ И ИЗДЕЛИЯ

лок и плит, кессонные фундаменты, отдельные виды плит перекрытий и т.д.

Одной из проблем, с которой сталкиваются проектировщики при расчете коробчатых конструкций, является учет кручения от нагрузки, приложенной с эксцентриситетом.

Основная часть

Кручение в железобетоне представляет собой весьма сложное явление, для описания которого требуется привлечение ряда гипотез, подтвержденных экспериментом. Проблема изгиба с кручением постоянно включается в "Планы важнейших научноисследовательских работ по бетону и железобетону" научно-исследовательских институтов и вузов.

Внастоящее время имеется больше десятка предложений по оценке прочности железобетона при наличии кручения.

Вдействующих нормативных документах присутствует ряд положений, касающихся оценки прочности при наличии кручения, которые, несмотря на имеющийся опыт проектирования, пока освещены недостаточно и не всегда согласуются с реальной работой железобетона. В них отсутствуют целые разделы, например, по определению напряжений в арматуре, воспринимающей нормальные и касательные напряжения; не учитывается снижение предела призменной прочности бетона из-за сложного напряженного состояния; учет нелинейности работы материала и т.д. Характер разрушения конструкции зависит от формы поперечного сечения, схемы поперечного и продольного армирования, а также от вида загружения.

При действии только крутящих моментов в начальной стадии загружения железобетонный элемент работает упруго. В нем возникают касательные, а, следовательно, и главные сжимающие и растягивающие напряжения, ориентированные под углом, близким к 45° по отношению к продольной оси элемента. После того, как удлинения бетона по направлению действия главных растягивающих напряжений достигнут предельных значений, в бетоне образуются развивающиеся по всему контуру сечения диагональные трещины. В реальных конструкциях крутящие моменты действуют, как правило, в сочетании с другими видами усилий, например, изгибающим моментом и поперечной силой. Если значения крутящих моментов невелики, то спиральные трещины развиваются только в зоне, растянутой от совместного действия изгибающего и крутящего моментов. После образования спиральных трещин усилия в направлении главных растягивающих напряжений воспринимает арматура, а усилия, действующие по направлению главных сжимающих напряжений - бетон.

Разрушение железобетонного элемента при совместном действии изгибающего и крутящего моментов происходит, как правило, по сложному сечению вследствие:

- достижения арматурой физического или условного предела текучести с последующим разрушением бетона сжатой зоны;

- достижения поперечной арматурой предела текучести с последующим раздроблением бетона

сжатой зоны; при этом напряжения в продольной арматуре не достигают предела текучести;

-достижения продольной арматурой предела текучести с последующим раздроблением бетона сжатой зоны; при этом напряжения в поперечной арматуре не достигают предела текучести;

-раздробления сжатого бетона, заключенного

вполосах между спиральными трещинами; при этом напряжения в арматуре как поперечной, так и продольной ниже предела текучести.

Существует два основных направления развития методов расчета железобетонных конструкций при действии крутящих моментов.

Первое направление включает расчетную модель "пространственного сечения", второе – расчетную модель пространственной фермы или кар- касно-стержневую модель, предложенную в 20-х годах XX века Е. Раушем.

В общем виде расчетная модель пространственного сечения должна содержать полную систему уравнений, которая связывает статическую, физическую и геометрическую стороны задачи, с привлечением диаграмм деформирования бетона и арматуры максимально приближенных к реальным. Однако практическая реализация модели пространственного сечения в общем виде представляет значительные трудности, в силу чего в нормах используют упрощенные расчетные методы, опирающиеся, главным образом, на эмпирические зависимости.

Экспериментальные исследования показывают, что при разрушении железобетонного элемента по пространственному сечению, в зависимости от значений изгибающего и крутящего моментов, а также наличия и величины поперечной силы возможны три схемы расположения сжатой зоны.

Первая схема (рисунок 1.а) соответствует расположению сжатой зоны у верхней грани элемента и имеет место при воздействии на элемент значительных по величине изгибающего и крутящего моментов.

Рис. 1. Схемы расположения сжатой зоны

Вторая схема (рисунок 1.б) соответствует расположению сжатой зоны у боковой грани и имеет место при воздействии крутящего момента и поперечной силы (изгибающий момент так мал, что его влиянием можно пренебречь).

Третья схема (рисунок 1.в) соответствует расположению сжатой зоны у нижней грани. Такой случай может иметь место в зоне, где действуют небольшие изгибающие моменты, мало влияющие на вид разрушения элемента. При этом площадь

Вестник СибАДИ, выпуск 4 (22), 2011

27

СТРОИТЕЛЬСТВО. СТРОИТЕЛЬНЫЕ МАТЕРИАЛЫ И ИЗДЕЛИЯ

поперечного сечения верхней арматуры, которая попадает в растянутую зону может быть меньше площади нижней арматуры.

Согласно теории Е. Рауша бетонный элемент с ортогональной арматурой, подверженный сдвигу, имеет диагональные трещины, которые разделяют бетон на отдельные центрально сжатые полосы. Вместе с арматурой, работающей на растяжение, они образуют стержневую систему, противодействующую сдвиговым усилиям.

Для упрощения расчетов предполагалось, что диагональные бетонные полосы наклонены под углом 45° к арматуре. В соответствии с предложенной Раушем теорией железобетонный элемент сопротивляется кручению подобно условной трубе, то есть таким образом, что прикладываемый крутящий момент воспринимается потоком касательных напряжений в стенке трубы. Следует отметить, что теория пространственной стержневой системы была разработана на основе анализа результатов опытов, которые показали, что прочность сплошного сечения железобетонного стержневого элемента при кручении приблизительно равна прочности некоторого заменяющего полого сечения.

Отечественные и зарубежные нормы расчета [1-3] коробчатых элементов, работающих на изгиб с кручением, как правило, предполагают балочную схему работы конструкции. При этом в зависимости от граничных условий, одна полка полностью сжата, другая – полностью растянута. Тогда расчет коробчатого сечения сводится к расчету эквивалентного таврового сечения, полка в растянутой зоне во внимание не принимается, а вся арматура в растянутой полке является расчетной (рисунок 2).

Данное исследование проводится для проверки принятых в нормативных документах гипотез и методов расчета при проектировании конструкций мостовых пролетных строений произвольного размера при изгибе с кручением.

Рис. 2. Замена коробчатого сечения тавром: а) исходная схема; б) эквивалентная схема

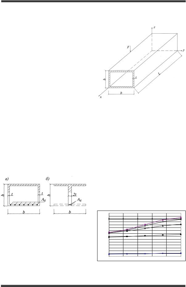
Для первоначальных исследований была выбрана задача определения напряженнодеформированного состояния шарнирно опертой по двум краям конструкции коробчатого сечения нагруженной сосредоточенной силой, которая приложена в середине пролета над одной из вертикальных стенок (рисунок 3).

Для расчетов приняты следующие исходные данные: длина L = 30 м, высота сечения h = 1 м, толщина стенки t = 10 см, материал – бетон класса В35 (модуль упругости Е = 34500 МПа, коэффициент Пуассона = 0,2), сила F = 100 кН, балка за-

креплена шарнирно на опорах, собственный вес не учитывается. Ширина конструкции b варьировалась от h (балочная схема) до 10h (плита).

Рис. 3. Расчетная схема

В данном варианте задачи влияние армирования на напряженно-деформированное состояние конструкции не учитывалось, материал принят изотропным и упругим.

Расчет выполнялся численно методом конечных элементов. Во избежание ошибок вычисления проводились в двух программных комплексах: "ЛИРА" и "MIDAS".

Конструкция аппроксимирована пластинчатыми элементами оболочки размером в плане 0,25х0,25 м. Граничные условия задачи:

v = w = v/ x = 0 при х = 0, z = 0, что соответствует шарнирно-подвижной опоре;

u = v = w = v/ x = 0 при х = L, z = 0, что соответствует шарнирно-неподвижной опоре.

В результате расчетов определены перемещения, усилия, напряжения и траектории главных напряжений в конструкции.

На рисунках 4-7 приведены графики изменения прогибов, нормальных напряжений х и траекторий главных напряжений на верхней грани при различных соотношениях h/b. Знак минус на эпюре прогибов соответствует выгибу конструкции.

 

-4

0

0.2

0.4

0.6

0.8

1 5

 

-2

 

0

 

 

 

 

 

x/b

 

2

 

 

 

 

 

4

 

4

 

 

 

 

 

3

 

6

 

 

 

 

 

мм

8

 

 

 

 

 

 

10

 

 

 

 

 

 

w,

12

 

 

 

 

 

 

14

 

 

 

 

 

 

 

 

 

 

 

 

 

 

16

 

 

 

 

 

 

 

18

 

 

 

 

 

 

 

20

 

 

 

 

 

 

 

22

 

 

 

 

 

1

 

24

 

 

 

 

 

 

26

 

 

 

 

 

 

Рис. 4. Эпюры прогибов верхней полки

всередине пролета:

1– при h/b=1; 2 – при h/b=2,5; 3 – при h/b=5; 4 – при h/b=7,5; 5 – при h/b=10

28

Вестник СибАДИ, выпуск 4 (22), 2011

СТРОИТЕЛЬСТВО. СТРОИТЕЛЬНЫЕ МАТЕРИАЛЫ И ИЗДЕЛИЯ

 

1.0

 

 

 

 

 

 

 

0.6

 

 

 

 

 

2

 

0.2

 

 

 

 

 

 

 

 

 

 

 

x/b

 

-0.2

 

 

 

 

 

 

0

0.2

0.4

0.6

0.8

1

МПа

-0.6

 

 

 

 

 

 

-1.0

 

 

 

 

 

 

х,

 

 

 

 

 

 

-1.4

 

 

 

 

 

 

 

 

 

 

 

 

 

 

-1.8

 

 

 

 

 

 

 

-2.2

 

 

 

 

 

 

 

-2.6

 

 

 

 

 

1

 

-3.0

 

 

 

 

 

 

 

 

 

 

 

 

Рис. 5. Эпюра х в верхней полке в середине

 

 

пролета: 1 – при h/b=1; 2 – при h/b=10

 

 

1.0

 

 

 

 

 

2

 

0.5

 

 

 

 

 

 

0.0

 

 

 

 

 

x/b

 

-0.5

0

0.2

0.4

0.6

0.8

1

 

-1.0

 

 

 

 

 

 

МПа

-1.5

 

 

 

 

 

 

-2.0

 

 

 

 

 

 

-2.5

 

 

 

 

 

 

х,

-3.0

 

 

 

 

 

 

 

 

 

 

 

 

 

-3.5

 

 

 

 

 

 

 

 

 

 

 

 

 

 

-4.0

 

 

 

 

 

 

 

-4.5

 

 

 

 

 

1

 

-5.0

 

 

 

 

 

 

-5.5

 

 

 

 

 

 

 

-6.0

 

 

 

 

 

 

Рис. 6. Эпюра х в верхней полке при x = L/4:

 

 

 

1 – при h/b=1; 2 – при h/b=10

 

Рис. 7. Траектории главных напряжений в верхней полке:

а) расчетная схема; б) при h/b=1; в) – при h/b=10

Заключение

Анализ полученных результатов позволяет сделать следующие выводы:

1.При балочной схеме конструкции (h=b) вся верхняя полка испытывает сжатие, нижняя – растяжение. Нейтральная линия практически совпадает с осью симметрии. Влияние крутящего момента на величину нормальных напряжений и перемещений невелико, крен между крайними точками сечения не превышает 2,5 %.

2.При увеличении ширины элемента разница прогибов и напряжений в крайних точках сечения увеличивается, нулевая линия поворачивается относительно оси.

3.При балочной схеме работы траектория главных напряжений практически ортогональна граням конструкции. В данном случае полностью оправдано применение продольной и поперечной арматуры в виде прямоугольных сеток, уложенных вдоль граней, а расчет может проводиться по эквивалентной схеме в виде тавра.

4.При определенном соотношении b и h

нашем случае b 9,16h) верхняя (нижняя) полка и стенки испытывают разнознаковые напряжения. Следовательно, такие конструкции при расчете приводить к тавровому сечению не допустимо.

5. Траектория главных напряжений при плитной работе конструкции существенно отличается от балочной схемы. Расчет рационального армирования в данном случае вызывает значительные затруднения. Следует учитывать так же, что нагрузка является подвижной, т.е. траектории главных напряжений зависят не только от величины силы, но и от ее местоположения.

Полученные данные показывают, что методики расчета, заложенные в нормативных документах справедливы только для балочных конструкций. При переходе от балочной схемы работы к плитной происходит качественное изменение характера напря- женно-деформированного состояния конструкции.

Для развития теории расчета коробчатых железобетонных конструкций необходимо изучить границы применимости различных методов расчета, на которые будут влиять соотношения геометрических размеров, величин изгибающих и крутящих моментов. Необходим учет схем армирования и нелинейности материалов на напряженно-деформированное состояние конструкции.

Библиографический список

1.СП 35.13330.2011. "СНиП 2.05.03-84. Мосты

итрубы. Актуализированная редакция".

2.СП 52-101-2003. Бетонные и железобетонные конструкции без предварительного напряжения арматуры.

3.EN 1992-2. Eurocode 2. Design of concrete structures - Concrete bridges - Design and detailing rules.

THE CALCULATION OF BRIDGE STRUCTURES WITH BOX-SHAPED CROSS SECTION AT A BEND WITH TORSION

S.A. Matveev, E.A. Martynov

Вестник СибАДИ, выпуск 4 (22), 2011

29

СТРОИТЕЛЬСТВО. СТРОИТЕЛЬНЫЕ МАТЕРИАЛЫ И ИЗДЕЛИЯ

Features of calculation of a concrete bridge struc-

вание и расчет слоистых дорожных конструкций;

tures with box-shaped cross section are considered at

геосинтетические материалы в строительстве.

a bend with torsion. Components of the intense-

Общее количество опубликованных работ: 115.

deformed condition for various parities of height and

Е-mail: matveev_sa@sibadi.org

width of section are received.

Мартынов Евгений Анатольевич - кандидат

 

Матвеев Сергей Александрович - доктор

технических наук, доцент. Основные направления

технических наук, профессор кафедры «Строи-

научной деятельности Расчет конструктивно-

тельная механика». Основные направления науч-

анизотропных конструкций. Общее количество

ных исследований – математическое моделиро-

опубликованных работ: 50

УДК 656

ВЫСОЛООБРАЗОВАНИЕ В КОНСТРУКЦИЯХ СТРОИТЕЛЬНЫХ ОБЪЕКТОВ

В.П. Михайловский, В.С. Прокопец

Аннотация. Выявлены основные причины, способствующие образованию высолов на стенах зданий и тротуарных плитках. Проведено натурное наблюдение с фотофиксацией различных видов высолов, с установлением причин их возникновения. Проведен ренгенофазовый анализ образовавшихся высолов. Даны конкретные предложения по предупреждению высолообразования.

Ключевые слова: высолы, натурные наблюдения, причины и предупреждение высолообразования.

Введение

Архитектурная выразительность является одним из важнейших критериев при выборе материалов для возведения строительных объектов, их отделки и облагораживания прилегающих к ним территорий. Одним из недостатков таких материалов является появление высолов (выцветов) на поверхности.

Высолы понимаются как образование белых налетов (отложений) на поверхности и внутри материала. Выцветы характерны для цветных растворов и бетонов, и здесь процесс высолообразования может идти с явлением осветвления оксидов пигментов, применяемых цветных цементов, и появлением на поверхности светлых пятен. Материалы статьи посвящены в основном высолообразованию. Высолы не только портят внешний вид объектов, но и разрушают их.

Причины высолообразования

1.Наиболее распространенной причиной появления высолов является гидролитический распад некоторых минералов портландцементного клинкера в процессе твердения с выделением значительного количества гидроксида кальция в свободное состояние. Уже в начальной стадии процесса гидратации цемента происходит быстрое взаимодействие алита с водой с образованием гидросиликата кальция и гидроксида:

2(3CaO SiO2 ) 6H2O

3CaO 2SiO2 3H2O 3Ca(OH )2

Белит гидратируется медленнее алита и при его взаимодействии с водой выделяется меньше

Ca(OH)2 ,что видно из уравнения химической реакции:

2(2CaO SiO2 ) 4H2O

3CaO 2SiO2 3H2O Ca(OH )2

Об объемах выделяющегося гидроксида кальция можно судить по тому, что алита в портландцементном клинкере содержится порядка 45…60%, а белита – 20…30%, поэтому гидроксида образуется около 15% от массы цемента.

С целью выяснения характера и возможных причин высолообразования были отобраны образцы цементно-песчаного покрытия стен и образовавшихся на них высолов. Данные образцы отобраны с одного, наиболее характерного здания в районе элитной застройки «Старгород» г.Омска. Рентгенофазовый анализ состава отобранных образцов показал наличие следующих фаз (рисунки 1,2).

Высолы содержат значительное количество кварца SiO2 (ICDD 46-1045), сульфата натрия

Na2SO4 (ICDD 37-1465), K3Na(SO4)2 (ICDD 20-928)

и кальцита CaCO3 (ICDD 5-586). По данным химического состава в них присутствуют также Na, Fe, S, Ca, K.

Анализы выполненных физико-химических исследований данного объекта показывают, что по химическому составу образовавшиеся на поверхности цементно-песчаного раствора высолы можно отнести к двум разновидностям: карбонатнокальциевым и сульфатно-натриевым.

30

Вестник СибАДИ, выпуск 4 (22), 2011