Материал: Верболоз ЕИ Лаб раб по машинам и оборуд биотехнологий Ч2

Внимание! Если размещение файла нарушает Ваши авторские права, то обязательно сообщите нам

Техническая характеристика модификаций универсального расстойного шкафа Т1-ХР2-Г приведена в табл. 2.

 

 

Таблица 2

Техническая характеристика

 

 

 

 

Показатель

Т1-ХР2-Г-30

Т1-ХР2-Г-48

 

 

 

Производительность (техническая) при

263

426

расстойке тестовых заготовок батонов

 

 

нарезных массой 0,4 кг из пшеничной

 

 

муки I сорта, кг/ч

 

 

Диапазон измерения времени расстойки

2

2

(при максимальной величине 55 мин)

 

 

Масса изделий, кг

0,05–2

0,05–2

Число люлек:

 

 

общее

34

52

рабочих

30

48

Температура паровоздушной среды

32–40

32–40

внутри шкафа, оС

 

 

Относительная влажность среды внутри

70–90

70–90

шкафа, %

 

 

Установленная мощность, кВт:

 

 

электродвигателей

2,6

2,6

электронагревателей

6

6

Габаритные размеры, мм:

 

 

длина

5300

6800

ширина

2700

2700

высота

4000

4000

Масса, кг

4970

5840

 

 

 

Универсальные расстойные шкафы Т1-ХР2-Г предназначены для окончательной расстойки тестовых заготовок хлебобулочных изделий широкого ассортимента. Они применяются в комплексе с хлебобулочными печами, имеющими ширину пода 1,4–1,5 м (узкий под).

61

Специализированные расстойные шкафы Т1-ХР2-3

Специализированные расстойные шкафы Т1-ХР2-3 выпускаются в двух модификациях – Т1-ХР2-3-60 и Т1-ХР2-3-120.

Шкафы окончательной расстойки марок Т1-ХР2-3-60 и Т1-ХР2-3-120 унифицированы и различаются компоновкой и производительностью.

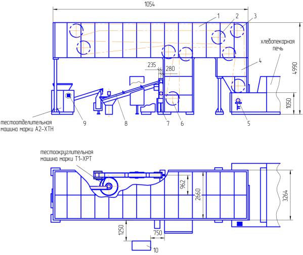
а

б

Рис. 5. Общий вид специализированного расстойного шкафа Т1-ХР2-3-120: а – вид сбоку; б – вид сверху;

1 – камера окончательной расстойки; 2 – натяжные звездочки; 3 – поворотные звездочки; 4 – разгрузочная секция; 5 – механизм включения;

6 – ведущие звездочки; 7 – манипулятор-укладчик; 8 – конвейер подачи; 9 – механизм останова; 10 – щит управления

62

Шкаф окончательной расстойки Т1-ХР2-3-120 (рис. 5) состоит из конвейера подачи 8, манипулятора-укладчика 7, камеры окончательной расстойки 1, щита управления 10, механизма включения 5, механизма останова 9.

Конвейер подачи предназначен для транспортирования тестовых заготовок от тестоокруглительной машины к манипулятору-укладчику. Он представляет собой металлоконструкцию, на которой смонтирован привод, ведущий и натяжной барабаны, мукопосыпатель, кантователи и мукосборник.

Манипулятор-укладчик представляет собой раму, на которой смонтированы питатель, горизонтальный конвейер и привод. Мани- пулятор-укладчик снабжен клиноременным вариатором, позволяющим изменять его производительность.

Расстойная камера представляет собой каркас, состоящий из унифицированных секций, внутри которого смонтирован четырехниточный люлечный конвейер. Он состоит из двух параллельных тяговых пластинчато-катковых цепей с шагом 100 мм, охватывающих ведущие 6, поворотные 3 и натяжные 2 звездочки. Через каждые три звена цепи конвейера шарнирно подвешены люльки с восьмикарманными кассетами. Для натяжения цепей предусмотрены натяжные станции.

В разгрузочной секции 4 установлены устройство для поворота кассет люлек и их разгрузки, а также копир для предотвращения раскачивания люлек при повороте кассет.

Принципиальная кинематическая схема шкафа окончательной расстойки изображена на рис. 6.

Привод конвейера расстойки смонтирован на раме и состоит из электродвигателя, закрепленного на шарнирно-подвижной плите, клиноременной передачи и редуктора. В передней части рамы на плите электродвигателя имеется электромагнитный тормоз, который предупреждает движение расстойного конвейера по инерции после выключения электродвигателя.

Остановка конвейера осуществляется механизмом останова, который одновременно служит и для регулирования длительности расстойки путем пропуска части люлек без загрузки и разгрузки.

Для предотвращения сдваивания рядов тестовых заготовок на поду печи при разгрузке люлек шкаф снабжен блокирующим устройством, которое контролирует наличие тестовых заготовок в люльках.

63

Рис. 6. Принципиальная кинематическая схема шкафа окончательной расстойки Т1-ХР2-3-120:

1 – механизм возврата кассет; 2 – механизм опрокидывания кассет; 3 – блокирующее устройство; 4 – механизм включения; 5 – механизм останова;

6 – электродвигатель; 7 – редуктор; I–XIII – валы

Для создания стабильного климатического режима предусмотрена система кондиционирования воздуха, которая находится в лобовой секции камеры. В ней происходят выравнивание температуры внутри тестовых заготовок и их расстойка в наиболее благоприятных условиях.

Регулирование температуры и влажности в шкафу осуществляется автоматически.

Для уменьшения прилипания тестовых заготовок к кассетам люлек и улучшения их санитарного состояния в шкафу предусмотрена камера сушки, в которой установлены инфракрасные нагреватели.

Длительность расстойки тестовых заготовок регулируется изменением количества загружаемых люлек. Включение и выключение шкафа осуществляется автоматически.

64

Тестовые заготовки из тестоокруглительной машины поступают на непрерывно движущуюся ленту конвейера, опыляются мукой с помощью мукопосыпателя и подаются на манипулятор-укладчик.

Манипулятор-укладчик группирует тестовые заготовки по восемь штук и кантователями укладывает их в люльку неподвижного конвейера расстойки. Затем с помощью рычажного устройства и бесконтактного датчика дается импульс на включение привода манипу- лятора-укладчика. Механизм включения от печи включает привод конвейера расстойки, который перемещает конвейер на один шаг и подает очередную люльку на позицию загрузки.

Техническая характеристика модификаций расстойного шкафа Т1-ХР2-3 приведена в табл. 3.

Таблица 3

Техническая характеристика

Показатель

Т1-ХР2-3-60

Т1-ХР2-3-120

 

 

 

Производительность (техническая) при

575

1230

выпечке круглого подового хлеба массой

 

 

1 кг при полной загрузке и длительности

 

 

расстойки 45 мин, кг/ч

 

 

Длительность расстойки, мин

35–55

35–55

Число рабочих люлек

60

128

Расстояние между осями карманов, мм

255

255

Число карманов в люльке

8

8

Температура паровоздушной среды

32–45

32–45

в камере, оС

 

 

Относительная влажность среды внутри

70–90

70–90

камеры, %

 

 

Установленная мощность, кВт:

 

 

электродвигателей

3,55

3,55

электронагревателей

14

14

Расход пара, кг/ч

12

15

Габаритные размеры, мм:

 

 

длина (без конвейера подачи)

5370

10550

ширина

3400

3400

высота

4990

4990

Масса, кг

9100

12060

 

 

 

65