Материал: 2455

Внимание! Если размещение файла нарушает Ваши авторские права, то обязательно сообщите нам

 

4

6

 

 

 

 

 

3

5

7

8

9

10

9

2

11

1

12

13

14

16 15

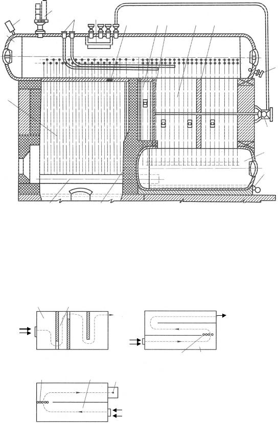
Рис. 4. Паровой котел типа ДКВР-6,5-13: 1– топочная камера; 2 – верхний барабан; 3 – манометр; 4 – предохранительный клапан; 5 – питательные трубопроводы; 6 – сепарационное устройство; 7 – легкоплавкая пробка; 8 – камера догорания; 9 – перегородка; 10 – кипятильный пучок труб; 11 – трубопровод непрерывной продувки; 12 – обдувочное устройство; 13 – нижний барабан; 14 – трубопровод периодической продувки; 15 – кирпичная стенка; 16 – коллектор

Топка Камера дожигания

 

П

П

 

 

 

Г

Г

 

В

 

В

 

а)

Топка

Фестон

Фестон Топка ПГ

 

б)

Рис. 5. Схема движения газов в котлах ДКВР (а), ДЕ-4, -6,5,

Г-10 (б) и ДЕ-16, -25 (в): Г – газ;

В – воздух; ПГ – продукты горе-

Вния

в)

20

барабан. По опускным трубам вода из барабана поступает в коллекторы 16, а по боковым экранным трубам пароводяная смесь поднимается в верхний барабан, образуя таким образом два контура естественной циркуляции.

Третий контур циркуляции образует верхний и нижний барабаны котла и кипятильный пучок.

Опускными трубами этого контура естественной циркуляции являются трубы наименее обогреваемых последних рядов по ходу газов кипятильного пучка.

Вода по опускным трубам поступает из верхнего барабана в нижний, а пароводяная смесь по остальным трубам котельного пучка, имеющим повышенную тепловую нагрузку, поднимается в верхний барабан. В верхнем барабане котла происходит разделение пароводяной смеси на пар и воду. Для снижения солесодержания и влажности пара в верхнем барабане установлено сепарационное устройство 6 из жалюзи и дырчатого листа, улавливающее капельки уносимой с паром котловой воды. При необходимости производства перегретого пара пароперегреватель устанавливают после второго или третьего ряда труб кипятильного пучка, заменяя часть его труб. Для котлов с давлением 1,4 МПа и перегревом 225–250 ОС пароперегреватель состоит из одной вертикальной петли, а для котлов с давлением 2,4 МПа необходимы несколько петель из труб 32 3 мм.

В нижней части верхнего барабана имеются трубопровод 11 непрерывной продувки с целью снижения солесодержания котловой воды и поддержания его на заданном уровне, а также две контрольные легкоплавкие пробки 7, сигнализирующие об упуске воды.

Нижний барабан является шламоотстойником; из него по специальному перфорированному трубопроводу 14 проводится периодическая продувка котла. Кроме того, в нижнем барабане имеются линия для слива воды и устройства для подогрева паром в период растопки котла.

На верхнем барабане установлены два водоуказательных стекла, манометр 3, предохранительные клапаны 4, имеется патрубок для отбора пара на собственные нужды, парозапорный вентиль. Для защиты обмуровки и газоходов от разрушения при возможных взрывах в верхних частях топки и кипятильного пучка расположены взрывные предохранительные клапаны.

Очистка наружных поверхностей труб от загрязнений проводится паром через обдувочное устройство 12 – вращающуюся трубу с со-

21

плом. Рассматриваемый котел несущего каркаса не имеет, трубнобарабанная система его размещается на опорной раме, с помощью которой котел крепится к фундаменту.

Паровые котлы производительностью 10, 20, 35 т/ч имеют рабочее давление 1,4; 2,4 и 3,9 МПа и выполняются как с пароперегревателем, так и без него.

Обмуровка котлов типа ДКВР выполняется из шамотного и обыкновенного кирпича или облегченная из термоизоляционных плит.

Все котлы типа ДКВР и особенно котлы с повышенным рабочим давлением работают на химически очищенной и деаэрированной воде. Коэффициент полезного действия этих котлов при сжигании газа и мазута – 90 %.

Паровые котлы серии ДЕ. Вертикально-водотрубный котел серии ДЕ (Д-образный с естественной циркуляцией) предназначен для выработки насыщенного и перегретого пара с температурой 225 ОС, имеет несколько типоразмеров с рабочим давлением пара 1,4 МПа и номинальной производительностью 4; 6,5; 10; 16 и 25 т/ч.

Котлы специализированы на сжигании газа и мазута, что дает возможность более полно реализовать преимущества этих высококалорийных топлив.

Характерной конструктивной особенностью котлов серии ДЕ (рис. 6) является расположение топочной камеры 9 сбоку от конвективного пучка 11, что предотвращает обогрев верхнего барабана 1 и значительно уменьшает площадь ограждающих поверхностей.

Котлы всех типоразмеров имеют единый поперечный профиль (ширина топочной камеры – 1790 мм, средняя высота топки – 2500 мм) и различаются лишь длиной и схемой движения газов в конвективном газоходе.

Топка котла полностью экранирована и отделена от конвективного пучка газоплотной перегородкой 7, выполненной, как и все тепловоспринимающие поверхности котла, из труб 51 2,5 мм. В задней части перегородки имеется окно (фестон) для прохода газов в конвективный пучок, который образован коридорно-расположенными вертикальными трубами. Трубы правого экрана 8, покрывающего также пол и потолок топочной камеры, а также левого бокового экрана (перегородки 7 и фестона) и конвективного пучка ввальцованы в верхний 1 и нижний 10 барабаны.

22

23

Трубы заднего экрана крепятся сваркой к нижнему и верхнему коллекторам 159 6 мм. Фронтальный экран паровых котлов ДЕ-4; -6,5; -10 аналогичен заднему и отличается лишь отсутствием части труб в середине (для размещения амбразуры горелки 6 и лаза, совмещенного со взрывным клапаном).

У котлов ДЕ-16 и ДЕ-25 фронтальный экран образован четырьмя трубами, замкнутыми непосредственно на верхний и нижний барабаны. Под топки закрыт слоем огнеупорного кирпича. На фронтальной стене котлов ДЕ установлено по одной газомазутной горелке: на котлах ДЕ-4; -6,5 и -10 – вихревые горелки ГМ-2,5; -4; -7 тепловой мощностью соответственно 2,5; 4,5 и 7 Гкал/ч; на котле ДЕ-16 используется горелка ГМ-10 с цилиндрической амбразурой тепловой мощностью 10 Гкал/ч; на котле ДЕ-25 установлена камера двухступенчатого сжигания с горелкой ГМ-16 тепловой мощностью 16 Гкал/ч. (Примеча-

ние. Для перевода тепловой мощности в единицы СИ необходимо использовать коэффициенты пересчета: 1 кал/ч = 1,16 Вт; 1 Гкал/ч = 1,16 МВт).

Движение газов в котлах ДЕ схематично показано на рис. 5, б, в. Дымовые газы проходят топку, поступают через окно в перегородке в конвективный пучок. Котлы производительностью 4; 6,5 и 10 т/ч имеют в конвективных пучках продольные перегородки (см. рис. 5, б), что обеспечивает разворот газов в пучке и выход газов через заднюю стенку котла. Котлы производительностью 16 и 25 т/ч таких перегородок не имеют (см. рис. 5, в). Переброс дымовых газов с фронтального экрана котлов к расположенному сзади экономайзеру осуществляется газовым коробом, который размещен над топочной камерой. Контуры боковых экранов и конвективного пучка всех типов котлов (а также фронтального экрана котлов производительностью 16 и 25 т/ч) замкнуты на барабаны непосредственно, а контуры заднего экрана всех котлов и фронтального экрана котлов производительностью 4; 6,5 и 10 т/ч – через промежуточные коллекторы, причем нижний расположен горизонтально, а верхний – наклонно.

Котлы производительностью 4; 6,5 и 10 т/ч не имеют ступенчатого испарения. Котлы производительностью 16 и 25 т/ч имеют ступенчатую систему испарения с внутрибарабанным солевым отсеком 4 (см. рис. 5). Ступенчатое испарение воды в котельном агрегате позволяет повысить качество пара (уменьшить солесодержание пара при сниженной величине непрерывной продувки).

Во вторую ступень испарения выделены первые по ходу газов ряды труб конвективного пучка. Опускная система контура солевого

24