Материал: Проектирование автотранспортного предприятия на 120 грузовых автомобилей

Внимание! Если размещение файла нарушает Ваши авторские права, то обязательно сообщите нам

Для аккумуляторных работ должно быть не менее двух помещений, одно для ремонта, другое для зарядки аккумуляторов.

В АТП должны предусматриваться складские помещения для хранения шин, смазочных материалов, лакокрасочных материалов, химикатов, сгораемых материалов (текстильные, бумажные, резиновые и т.д.), а также агрегатов и деталей в сгораемой таре.

Геометрические размеры зон технического обслуживания и ремонта определяются: габаритными размерами автомобилей, расстояниями между автомобилями на постах, а также между автомобилями и элементами зданий или оборудованием, шириной проезда автомобилей в зонах и методом расстановки автомобилей.

Нормируемые расстояния в зонах технического обслуживания и ремонта установлены СН и П П-93-74 в зависимости от категории автомобилей.

Ширина проезда в зонах зависит от типа подвижного состава, угла расстановки постов, их оборудования и способа заезда на посты.

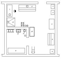
Рисунок 2.2. Зона ТО-2

- ларь для отходов; 2 - щит электрический; 3 - ларь с песком и огнетушителями; 4 - шкаф-кассета для деталей; 5 - гайковерт электрический; 6 - верстак с тисами; 7 - тележка-стол электрика; 8 - колонка маслораздаточная; 9 - шкаф инструментальный; 10 - тележка для аккумуляторов; 11 - стеллаж для колес; 12 - пожарный щит; 13 - ларь с опилками; 14 - наждак электрический

В зонах технического обслуживания и ремонта с постами тупикового типа в основном применяют однорядную расстановку автомобилей с независимым их выездом [10]. При этом расстановка постов может быть прямоугольной и косоугольной. Расположение постов под углом к оси проезда более удобно для заезда на них автомобилей и несколько сокращает ширину проезда. Однако при этом площадь поста будет больше, чем при его прямоугольном расположении.

Ширина проезда в помещениях с тупиковыми постами для обслуживания и ремонта автомобилей определяется, исходя из того, что въезд автомобиля на пост производится передним ходом, с возможным применением при повороте в проезде заднего хода, причем расстояние от автомобиля до соседних автомобилей и границ проезда должно быть не менее указанных в справочнике.

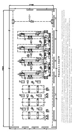
Рисунок 2.3. Зона диагностики

- механизм открывания ворот; 2 - стол диагноста; 3 - шкаф для приборов; 4 - воздухораздаточная колонка; 5 - слесарный верстак; 6 - электрошкаф; 7 - стенд КИ-207 для проверки тормозных механизмов; 8 - пульт управления стендом КИ-207; 9 - подъемник канавный; 10 - стол конторский; 11 - стенд КИ-4872 для проверки установки передних колес грузового автомобиля; 12 - пульт управления стендом КИ-4872

Посты обслуживания и ремонта автомобилей должны бать оборудованы устройствами, обеспечивающими удобное производство работ (канавами, подъемниками, эстакадами и т.д.) [11].

Поточные линии технического обслуживания обычно оборудуют прямоточными канавами на всю длину линии.

Линии (посты) ежедневного обслуживания должны иметь продольные канавы для стока воды и грязи.

Тупиковые посты текущего ремонта по рекомендациям Гипроавтотранса целесообразно оборудовать: для грузовых автомобилей - 50-60% канав и 30-40% подъемников. Остальное количество постов следует оставлять напольными.

При параллельном расположении трех и более рабочих канав они должны быть соединены открытой траншеей при тупиковой расстановке автомобилей и закрытыми туннелями - при прямоточной расстановке автомобилей. Ширина траншей и туннелей должны быть не менее 1 м, если они служат для прохода и не менее 2 м, если в них расположены рабочие места и технологическое оборудование.

Рисунок 2.4. Аккумуляторный участок

- верстак для ремонта аккумуляторных батарей; 2 - стеллаж для зарядки аккумуляторных батарей; 3 - выпрямители; 4 - шкаф для материалов; 5 - стенд для проверки и разряда аккумуляторных батарей; 6 - ларь для отходов; 7 - тележка для аккумуляторов; 8 - стеллаж для аккумуляторных батарей; 9 - ванна для приготовления электролита; 10 - приспособление для розлива кислоты; 11 - электрический дистиллятор; 12 - ванна для промывки деталей батарей; 13 - верстак с оборудованием для плавки свинца и мастики; 14 - ванна для слива электролита

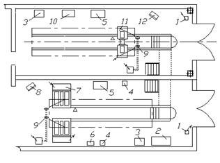
Рисунок 2.5. Кузнечно-рессорный участок

- пневматический молот; 2 - вертикально-сверлильный станок; 3 - обдирочно-шлифовальный станок; 4 - горн кузнечный; 5 - двурогая наковальня; 6 - стеллаж для рессорных листов; 7 - ларь для кузнечного инструмента; 8 - ящик для угля; 9 - верстак рессорщика; 10 - тиски для сборки рессор

Высота туннеля от пола до низа выступающих частей должна быть не менее 1,8 м, траншей -0,9 м. Соединительные траншеи рабочих канав должны быть ограждены металлическими периллами высотой не менее 0,9 м. Траншеи и туннели должны иметь выходы в помещение из расчета один выход на пять рабочих канав. Одиночные канавы должны иметь выходы в помещение по ступенчатой лестнице. Лестницы из канавы не должны располагаться под автомобилем, установленным над канавой, а лестницы из канав, траншей и туннелей не должны располагаться на путях движения автомобилей.

Взаимное расположение производственных помещений определяется технологическими, противопожарными и санитарными требованиями. Производственный корпус представлен на формате А1, а также на рис. 2.6.

Помещения для топливных, электротехнических, аккумуляторных работ, а также склад смазочных материалов по технологической взаимосвязи располагают вблизи постов технического обслуживания.

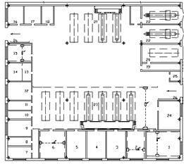
Рисунок 2.6. Производственный корпус

- агрегатный участок; 2 - склад агрегатов; 3 - электротехнический участок; 4 - сварочно-жестяницкий участок; 5 - кузнечно-рессорный участок; 6 - слесарно-механический участок; 7 - склад материалов; 8 - медницкий участок; 9 - аккумуляторный участок; 10 - обойный участок; 11 - склад запасных частей; 12 - арматурный участок; 13 - малярный участок; 14 - склад лакокрасочных материалов; 15 - промежуточный склад; 16 - склад смазочных материалов; 17 - участок ремонта системы питания; 18 - инструментально-раздаточная кладовая; 19 - вулканизационный участок; 20 - шиномонтажный участок; 21 - зона ТО; 22 - посты диагностики; 23 - зона ТР; 24 - отдел ГМ; 25 - трансформаторная; 26 - пожарный щит с огнетушителями

Помещения для выполнения агрегатных, слесарно-механических, сварочных, кузовных и малярных работ, а также склады запасных частей, агрегатов и материалов приближают к постам текущего ремонта.

Кроме того, желательно комплексное расположение технологически связанных между собой участков (отделений). Например, тепловые отделения (кузнечно-рессорный, медницкий, сварочный) целесообразно располагать в одном боке. Малярное столярное, обойное и жестяницкое отделения кузовного цеха по условиям технологического процесса размещаются также смежно. При этом малярное отделение необходимо располагать так, чтобы была возможность въезда в нег из разборочно-сборочного цеха или непосредственно с территории предприятия. Слесарно-механический и агрегатный цехи желательно группировать около складов запасных частей, агрегатов и материалов. Смежно со слесарно-механическим и агрегатным цехами рекомендуется размещать инструментально-раздаточную кладовую.

Помещения для агрегатных и других видов работ иногда целесообразно на уровне пола тупиковых канав постов ТО-2 и ТР. При этом ширину открытой траншеи, соединяющей канавы, увеличивают до 4-6 м для размещения в ней необходимого оборудования.

Устройство подвалов в современных производственных зданиях не рекомендуется. В порядке исключения в АТП они устраиваются для складов шин и масел. При этом склад шин располагают под помещениями для шиномонтажных и вулканизационных работ. Связь между складом и отделением осуществляется вертикальным подъемником. Склад масел располагается обычно под помещением для раздачи смазочных материалов вблизи постов смазки.

При расположении склада смазочных материалов на первом этаже он делается в 2-х уровнях: на уровне пола располагается оборудование для раздачи масел, а на пониженном уровне - (1,9) размещаются резервуары для хранения смазочных материалов.

Зоны обслуживания, текущего ремонта и участки необходимо располагать с учетом кратчайшего, исключающего затруднительное маневрирование пути автомобиля и транспортировку агрегатов, механизмов, деталей. Так, например, следует предусматривать прямой, без маневрирования въезд автомобилей в зоны ЕО и ТО-1 и оттуда после обслуживания на стоянку, не прибегая к выезду из здания производственного корпуса (в случае, когда цехи и стоянки автомобилей находятся в одном корпусе).

Непосредственный выход наружу рекомендуется иметь в следующих производственных и складских помещениях:

а)  для кузнечно-рессорных, сварочных и вулканизационных работ при площади помещения более 100 м2;

б)  для зарядки аккумуляторов при площади помещения более 20 м2;

в)  для хранения масел и обтирочных материалов при площади помещения более 50 м2;

г)  для окрасочных работ, для хранения легко воспламеняющихся материалов, независимо от площади помещений.

Хранение шин и сгораемых материалов допускается в одном помещении, если его площадь не превышает 50 м2.

Помещения для хранения шин площадью более 25 м2 должны располагаться у наружных стен.

Производственные помещения, в которых выполняются работы аккумуляторные, вулканизационные, сварочные, медницкие, столярные, обойные и малярные, а также слады масла, обтирочных и легковоспламеняющихся материалов не должны иметь непосредственного сообщения с зоной хранения автомобилей.

Количество ворот в здании для выезда (въезда), расположенных в первом или цокольном (подвальном) этажах должно приниматься: при количестве автомобилей в помещении до 25 - одни ворота, от 25 до 100 автомобилей - двое ворот. При количестве автомобилей более 100 - должны предусматриваться дополнительно одни ворота на каждые 100 автомобилей.

В многоэтажных зданиях для въезда (выезда) автомобилей со 2-го этажа и вышележащих этажей должны предусматриваться дополнительные (к количеству ворот для выезда из помещения 1-го этажа) одни ворота на каждую полосу движения по рампам или на каждые два стационарных лифта.

Желательно устройство наружных ворот в малярном и сварочных отделениях, а также в складах запасных частей и материалов, если они не обеспечены удобным внутренним проездом.

Высота помещения для постов технического обслуживания и ремонта определяется исходя из условий, что наименьшее расстояние от верха автомобиля, находящегося на подъемнике или от верха поднятого кузова автомобиля-самосвала, стоящего на полу до низа конструкции покрытия или перекрытия или до низа выступающих частей грузоподъемного оборудования должна быть не менее 0,2 м.

Высота помещений независимо от расчета должна быть не менее 2,8 м.

Важным элементом планировки производственных помещений является организация движения автомобилей, которая зависит от общей схемы движения автомобилей в АТП, количество и расположение постов в здании, способа производства ТО и ТР.

Наибольшие удобства и безопасность движения обеспечиваются при одностороннем закольцованном между боками и участками сообщения, поскольку движение совершается лишь в одном направлении, что исключает возможность встреч и пересечения потоков автомобилей.

Административные, служебные и общественные помещения обычно сосредотачиваются в блоке административного корпуса, который планируется в общем здании с производственными помещениями или выделяется в самостоятельное здание, примыкающее, как правило, к производственному корпусу.

Бытовые помещения, обслуживающие непосредственно нужды производства, размещаются в зонах обслуживания и ремонта, гардеробную размещают у основного входа рабочих.

2.12.4 Помещения для хранения автомобилей

Площадь помещений для хранения автомобилей определяется числом автомобилей, находящимся на хранении, типом стоянки и способом расстановки автомобилей.

Места хранения могут быть закреплены за определенными автомобилями, либо обезличены. В первом случае число мест хранения будет равно списочному составу парка, во втором случае их число может быть несколько меньше за счет хранения автомобилей на постах ТО и ТР, а также нахождения части автомобилей на линии и в капитальном ремонте.

Тип стоянки зависит от хранимого подвижного состава, климатических условий, эксплуатационных и экономических факторов, определяющих минимальные капитальные вложения.

Легковые автомобили и автобусы, как правило, следует обеспечивать стоянками закрытого типа.

Грузовые автомобили в зависимости от климатических условий могут хранится как на открытых, так и закрытых или частично закрытых стоянках.

Закрытые стоянки могут быть наземные и подземные, одноэтажные и многоэтажные.

Наибольшее распространение получили одноэтажные стоянки манежного типа с прямоугольной расстановкой автомобилей.

Многоэтажные стоянки в зависимости от способа перемещения автомобилей с этажа на этаж подразделяются на немеханизированные, полумеханизированные и механизированные.

В немеханизированных стоянках движение автомобилей с этажа на этаж осуществляется собственным ходом по рампам, которые могут быть прямолинейными и криволинейными.

Количество рамп определяется из расчета скорости движения автомобилей равной 15 км/ч., интервала между ними 20 м и эвакуации всех автомобилей из здания в течение часа.

Независимо от расчета при общем количестве 100 и менее автомобилей, размещаемых на всех этажах, кроме первого, устраивается однопутная рампа, предназначенная как для подъема, так и для спуска. При большем количестве автомобилей (101-200) предусматривается двухпутная рампа, одна полоса движения которой служит для подъема, другая для спуска. При числе автомобилей более 200 устраиваются две однопутные рампы, одна для подъема, другая для спуска. Продольный уклон прямолинейных рамп должен быть не более 18%, а криволинейных - 10%. Продольный уклон рамп не защищенных кровлей должен быть не более 10%.

Ширина проездной части рамп определяется в зависимости от размеров автомобиля.

В полумеханизированных стоянках подъем и спуск автомобилей с этажа на этаж осуществляется лифтами, перемещение по этажам производится собственным ходом.

В механизированных стоянках вертикальное перемещение осуществляется лифтами, горизонтальное с помощью тележек, катучих лифтов и т.д. В основном этот тип стоянок используется для кратковременного хранения автомобилей. Наибольшее распространение этот тип стоянки получил за рубежом.

Расстановка автомобилей в помещениях хранения может быть однорядная, двухрядная и многорядная; по углу расстановки - прямоугольная и косоугольная; по условиям движения - тупиковая и прямоточная.

Геометрические размеры стоянок определяются габаритными размерами автомобилей, количеством хранимых автомобилей, способом их расстановки, величиной нормируемых расстояний между автомобилями и элементами зданий и шириной проезда.

Нормируемые расстояния в зонах хранения автомобилей установлены (СНиП П-98-74) в зависимости от категорий автомобилей.

Ширина проезда в помещениях для хранения автомобилей определяется исходя из того, что въезд автомобиля на место производится задним ходом при тупиковой расстановке и передним при прямоточной. Причем расстояние от автомобиля должно быть не меньше указанного в справочниках.