Материал: Организация планово-предупредительного ремонта пути на перегоне Ковда – Княжая

Внимание! Если размещение файла нарушает Ваши авторские права, то обязательно сообщите нам

Осенью предусматривают работы, направленные на предупреждение появления неисправностей пути зимой: закрепление клеммных, закладных и стыковых болтов; выборочная регулировка зазоров в стыках; исправление просадок в стыках и подбивка шпал; удаление загрязненного балласта из-под подошвы рельсов; уборка путей и стрелочных переводов и др.

В зимнее время планируют работы по смене дефектных рельсов; исправлению пути на пучинах; очистке стрелочных переводов от снега; желобов от напрессованного снега и льда; в конце зимы - работы по вскрытию от снега кюветов, канав, русел у мостов, малых отверстий и труб.

На искусственных сооружениях и подходах к ним дорожный мастер совместно с бригадиром пути ежемесячно планируют следующие работы: по устранению отступлений в плане, профиле и по уровню; очистке элементов мостового полотна; очистке и смазке уравнительных приборов; регулировке зазоров в стыках и замене сезонных уравнительных рельсов; очистке труб; лотков и других сооружений и земляного полотна; подготовке малых искусственных сооружений к зиме; пропуску весенних вод, паводка и ледохода.

Планово-предупредительные работы, выполняемые с применением комплексов машин, планируются в первую очередь на путях более высоких классов.

При планировании работ по предупреждению появления расстройств и неисправностей пути предусматривается устранение причин, которые могут вызвать интенсивное расстройство пути. К таким причинам обычно относят следующие:

· высокую загрязненность балласта, особенно в стыках, которая способствует нарастанию просадок в стыках во время дождей;

· часто повторяющиеся по протяжению пути отступления II степени в плане, а также перекосы, просадки;

· угон пути, который способствует разрыву рельсовых стыков зимой и выбросу бесстыкового пути летом и др.

При производстве планово-предупредительного ремонта пути выполняют сплошную выправку пути с подбивкой шпал; рихтовку пути; частичную замену негодных шпал и элементов скреплений; регулировку стыковых зазоров; удаляют регулировочные прокладки из-под подошвы рельсов и проводят сплошное закрепление клеммных и закладных болтов на рельсовых скреплениях КБ; другие работы, входящие в перечень работ текущего содержания пути. Сопутствующими работами при планово-предупредительном ремонте пути являются следующие: снятие накопившихся в процессе текущего содержания пути регулировочных прокладок; очистка рельсов и скреплений от грязи; подрезка балласта под подошвами рельсов в шпальных ящиках; уборка засорителей с поверхности балластной призмы; планировка балластной призмы (при необходимости с досыпкой балласта) и обочины земляного полотна; замена дефектных соединителей; очистка водоотводов в местах застоя воды.

Планово-предупредительный ремонт пути выполняется машинным способом по методу фиксированных точек или по компьютерным программам, обеспечивающим постановку пути в проектное положение. При этом обеспечивается совпадение начал переходных и круговых кривых по возвышению и положению пути в плане, соблюдение норм уклонов отвода возвышения наружного рельса в кривой.

Планово-предупредительный ремонт пути назначается по результатам проверки пути вагоном ЦНИИ-4, КВЛ-П и натурных осмотров после проведения работ по очистке или замене балласта на участках, имеющих загрязненность балласта более 30 % и локальные выплески. При необходимости могут предшествовать работы по наплавке и напылению рельсов в стыках, правке рельсов в зоне стыков передвижным прессом или специальной машиной с последующей шлифовкой рельсов.

Запланированные по километрам работы группируют по перегонам и линейным участкам с учетом предоставления «окон» эксплуатационных факторов, после чего составляют план-график выполнения планово-предупредительных работ на сезон по линейным участкам.

Технологические процессы производства путевых работ. Основные работы по текущему содержанию пути с учетом местных условий выполняют-ся по типовым технологическим процессам, которые устанавливают перечень и последовательность выполнения входящих в них отдельных операций, расстановку монтеров пути, машин и механизмов по местам работ и времени. При этом стремятся достичь максимального темпа и наилучшего качества работ, наиболее эффективного использования «окон», полного обеспечения безопасности движения поездов и личной техники безопасности работников.

Типовые технологические процессы корректируются с учетом местных условий, но при соблюдении последовательности выполнения основных работ, входящих в типовой процесс. При этом могут увеличиваться или уменьшаться перечень и объемы работ, общая численность путевой бригады и расстановка монтеров пути по операциям, продолжительность «окна», фронт работ и др.

4.3 Проектирование технологического процесса планово - предупредительного ремонта пути

Планово - предупредительный ремонт пути в дипломном проекте выполняется по 2 главному пути, на перегоне Княжая - Ковда с 1106 км пк8 - 1111 км пк1. При проектировании планово - предупредительного ремонта пути необходимо знать конструкцию пути, а так же коэффициент потерь рабочего времени для составления ведомости затрат труда и объемы работ.

4.3.1 Определение коэффициентов, учитывающих потери рабочего времени

При разработке технологического процесса одновременно составляется ведомость затрат труда и разрабатывается график производства работ. При составлении ведомости затрат труда за основу принимаются типовые технологические нормы времени для работ по текущему содержанию пути.

В нормах учтено:

·      Время на инструктаж,

·        Получение инструментов и сдача их после окончания работ,

·        Обслуживание рабочего места и отдых.

Нормами не учтено время на пропуск поездов и поэтому при подсчете затрат труда оно должно учитываться в зависимости от вида ограждения работ количества и рода поездов. Это учитывается поправочным коэффициентом таблица 4.2.

Коэффициент потери рабочего времени:

, (4.1)


где Т - продолжительность рабочей смены (мин)

- потери на пропуск поездов.

 - ремонтируемый путь

 - соседний путь

Время на пропуск поездов по месту работ, в зависимости от ограждения, приведены в таблице 4.2.

Таблица 4.2 - Время на пропуск одного поезда

Категория поездов

Виды ограждения места работ


Сигналами «остановки» с пропуском поездов по месту работ со снижением скорости

Сигналами «уменьше-ния скорости»

Сигналами «остановки» с пропуском поездов по месту работ без снижением скорости

Сигнальными знаками «Свисток»

Пропуск поездов по соседнему пути при всех видах ограждения при производстве работ на одном из путей

Грузовые: - до 5 тонн - более 5 тонн

4.00(6,4) 4,50

3,00(3,9) 3,60

2,60(3,1) 3,00

2,00 (2,4) 2,00

1,00 (1,2) 1,00

Пассажирские скоростные

-

7,00

-

6,00

5,50

Пассажирские и рефрижираторные

3,00 (4,8)

2,00(2,4)

1,80(2,2)

1,30 (1,6)

1,00 (1.2)

Моторвагонные

2,50 (4,0)

1,60 (2,1)

1,30 (1,6)

1,00 (1,2)

0,70 (0,85)

Локомотивы

1,50 (2,4)

1,20 (1,6)

1,00 (1,2)

0,70 (0,85)

0,50 (0,6)


Количество поездов, обращающихся на участке, рассчитаем и сведем в таблицу 4.3

Для формулы определим число пар грузовых поездов по формуле:

n=, (4.2)

где Г- грузонапряженность = 37,9 млн. ткм брутто на 1 км в год;

n- число пар пассажирских поездов в сутки = 12 пар поездов;

n- число пар пригородных поездов в сутки = 1 пара поездов;

Q- масса пригородного поезда = 1000 т;

Q- масса грузового поезда = 3500 т.

По формуле определим число пар грузовых поездов в сутки

n== 21,75 = 22 пар поездов в сутки

Таблица 4.3 - Количество обращающихся поездов на участке

Категория поезда

Количество по нечётному направлению, поездов в сутки

Количество по чётному направлению, поездов в сутки

Грузовые

22

22

Пассажирские

12

12

Пригородные

1

1


По формуле вычислим потери времени на пропуск поездов:

tп.п.= 26,76 мин.

t= 2,4 мин

t= 2,16 мин

t= 1,56 мин

Вычислим коэффициент потерь рабочего времени вне «окна» α

Определим коэффициент потерь рабочего времени в основной период α

Вычислим потери времени на пропуск поездов:

tп.п.= 38,38 мин.

t= 3,9 мин

t= 2,6 мин

t= 2,08 мин

Вычислим коэффициент потерь рабочего времени в «окно» α


4.3.2 Характеристика пути

Участок пути двухпутный, электрифицированный, оборудованный автоблокировкой.

В плане путь имеет 31% кривых и 69% прямых участков.

Верхнее строение до ремонта:

рельсы типа Р-65, сваренные в плети;

скрепление типа КБ;

шпалы железобетонные с эпюрой 1840 шт./км в прямых и 2000 шт./км в кривых радиусом более 1200 м;

балласт щебёночный;

накладки в уравнительном пролёте шестидырные с полным количеством стыковых болтов;

выплески отсутствуют;

стыковые, клеммные и закладные болты требуют подкрепления;

в пути на отдельных шпалах лежат регулировочные прокладки;

в пути частично находятся дефектные шпалы и отдельные элементы скреплений, требующие замены;

кювет частично засорён.

Верхнее строение пути после ремонта:

конструкция пути не меняется;

негодные шпалы и дефектные скрепления заменены на новые;

регулировочные прокладки изъяты с пути;

стыковые, клеммные и закладные болты закреплены и смазаны;

кюветы очищены от засорителей.

4.4 Определение фронта основных работ в 3-х и 4-х часовые окна

Фронт основных работ по планово-предупредительному ремонту пути зависит от принятой технологической цепочки машин для выполнения заданного вида работы, представленной на рисунке 4.1

Условные обозначения:

ХД    -        состав для выгрузки щебеночного балласта;

ДСП -        динамический стабилизатор пути;

Дуоматик 09-32 GSM  -        выправочно-подбивочно-рихтовочная машина;

ПБ    -        быстроходный планировщик балласта; -        расстояние между работающими машинами по технике безопасности, м (U1=100 м).

Рис. 4.1 - Технологическая цепочка машин для выполнения работ

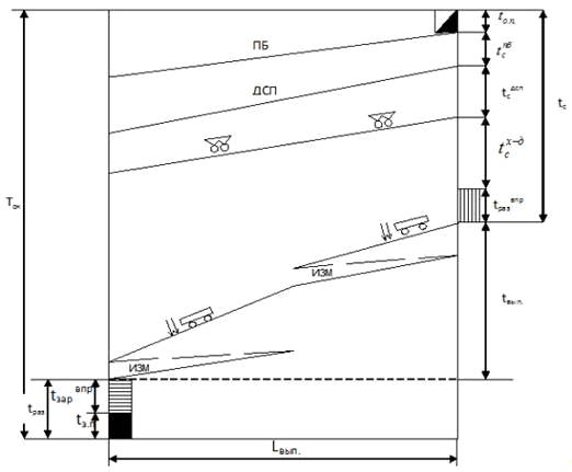
Согласно принятой технологической цепочке, расчетная схема для определения фронта работ по очистке балласта будет иметь вид, представленный на рисунке 4.2.

Условные обозначения:

 фронт работ по планово-предупредительному ремонту, м;

Ток. продолжительность «окна», мин.;

 время оформления закрытия перегона и проход машин к месту работ, мин.;

 время зарядки выправочно-подбивочно-рихтовочной машины, мин.;

 норма времени на разрядку машины Дуоматик, мин;

 время развертывания работ по выправке пути, мин.;

 время на производство работ по планово-предупредительной выправке, мин.;

 время окончания работ между разрядкой выправочно-подбивочно-рихтовочной машины и выгрузкой щебня, мин.;

 время свертывания работ по стабилизации пути машиной ДСП, мин.;

 время свертывания работ по планировке балластной призмы машиной ПБ, мин.;

 время открытия перегона и пробег машин на станцию, мин.;

 время свертывания работ по выправке пути, мин.;

Рисунок 4.2 - Расчетная схема для определения фронта работ по планово-предупредительному ремонту пути

Время выправки пути машиной Дуоматик, , мин., исходя из расчетной схемы (рисунок 4.2), определяется по формуле: