Материал: Улучшение условий труда на участке заточки режущего инструмента

Внимание! Если размещение файла нарушает Ваши авторские права, то обязательно сообщите нам

1 - Станок для алмазной заточки резцов 3622Д; 2 - Обдирочно-шлифовальный станок 3М634; 3 - Точильно-шлифовальный станок 3Б633; 4 - Точильно-шлифовальный станок ТШ-1; 5 - Точильно-шлифовальный станок ТШ-2; Пылеуловитель «Пума 800».

Рисунок 4.1 - Планировка комнаты заточки режущего инструмента

. Анализ вредных и опасных производственных факторов


На рабочих местах заточника присутствует множество вредных и опасных производственных факторов. Они регламентируются ГОСТ 12.0.003-74 ССБТ «Опасные и вредные производственные факторы. Классификация».

Физические факторы, присутствующие на участке заточки режущих инструментов:

-       повышенное значение напряжения в электрической цепи, замыкание которой может произойти через тело человека;

-       вращающийся шлифовальный круг, разрыв шлифовального круга, отрыв эльборосодержащего слоя от корпуса круга, отрыв сегментов от корпуса инструмента.

-       повышенная запыленность воздуха рабочей зоны абразивной пылью;

-       повышенная температура поверхностей обрабатываемых инструментов;

-       повышенный уровень шума на рабочем месте;

-       повышенный уровень вибрации станка и инструмента при заточке;

-       недостаточная освещенность рабочей зоны;

-       острые кромки, заусенцы и шероховатость на поверхностях инструментов;

-       повышенный уровень статического электричества на пылеуловителях;

-       пониженная контрастность;

-       повышенная пульсация светового потока от люминесцентных ламп;

Химические факторы, присутствующие на участке заточки режущих инструментов:

-       абразивная пыль;

-       аэрозоль минерального масла.

Психофизиологические факторы, присутствующие на участке заточки режущих инструментов:

-       статические перегрузки;

-       монотонность труда.

Все факторы наглядно представлены на рисунке 5.1.

Рисунок 5.1 - Опасные и вредные факторы при заточке режущего инструмента

. Результаты аттестации рабочих мест по условиям труда


Результаты аттестации рабочих мест на участке заточки режущего инструмента приведены в таблицах 6.1 и 6.2.

Таблица 6.1 - Оценка условий труда по степени вредности и опасности факторов производственной среды и трудового процесса

Наименование факторов производственной среды и трудового процесса

Класс условий труда

Химический

2

Биологический

-

Аэрозоли преимущественно фиброгенного действия

-

Шум

3.2

Инфразвук

-

Ультразвук воздушный

-

Вибрация общая

2

Вибрация локальная

2

Неионизирующие излучения

-

Ионизирующие излучения

-

Микроклимат

2

Световая среда

2

Тяжесть труда

3.1

Напряженность труда

2

Общая оценка условий труда по степени вредности и (или) опасности факторов производственной среды и трудового процесса

3.1


Таблица 6.2 - Фактическое состояние условий труда по факторам производственной среды и трудового процесса

№ п/п

Код фактора

Наименование производственного фактора, единица измерения

Дата проведения измерения

ПДК, ПДУ, допустимый уровень

Фактический уровень фактора

Продолжительность воздействия (часы/%)

Класс условий труда, степень вредности и опасности

1

2

3

4

5

6

7

8

1.


Шум




до 8,2 ч.

2


4.50

Эквивалентный уровень звука, дБА

15.04.2013

80

?

до 8,2 ч.

3.2



Максимальный уровень звука, дБА

15.04.2013

107

115

до 8,2 ч.

3.2

2.


Вибрация








Локальная вибрация, м/с2

15.04.2013

2

1,5

до 8,2 ч.

2



Общая вибрация, м/с2


0,1

0,07

До 8,2 ч

2

2.


Микроклимат

 

 

 

до 8,2 ч.


 

4.62

Температура воздуха, °С

17.04.2013

18-27

20

до 8,2 ч.

1

 

4.63

Скорость движения воздуха, м/с

17.04.2013

0,4

0.2

до 8,2 ч.

2

 

4.64

Влажность воздуха, %

17.04.2013

40-60

50

до 8,2 ч.

2

3.


Общая оценка по освещению

 

 

 

до 8,2 ч.

2

 

4.67

Естественное освещение

15.04.2013

≥ 0,5

0,7

до 8,2 ч.

2

 

4.68

Освещенность рабочей поверхности, Лк

15.04.2013

300

580

до 8,2 ч.

2

4.

2.00

Химический фактор

 

 

 




2.001

Пыль абразивная

15.04.2013

6

4

до 8,2 ч.

2

5.

5.00

Тяжесть трудового процесса

12.12.2013


до 8,2 ч.

3.1

6.

6.00

Напряженность трудового процесса

12.12.2013


до 8,2 ч.

2

7.


Травмоопасность

12.12.2013


до 8,2 ч.

2


Выполняются работы в особых условиях труда или выполняются в особых условиях труда, связанных с наличием чрезвычайных ситуаций нет;

Оценка условий труда по травмоопасности ;

(класс условий труда по травмоопасности)

Оценка условий труда по обеспеченности СИЗ        рабочее место соответствует требованиям обеспеченности СИЗ.

(рабочее место соответствует (не соответствует) требованиям обеспеченности СИЗ, СИЗ не предусмотрены)

. Средства защиты от механического травмирования


Основным опасным фактором при заточке инструментов является вращающийся шлифовальный круг. Высокая частота вращения (до 2500 об\мин) создает достаточную центробежную силу для разрыва круга при незначительном дефекте, и как следствие может привести к серьезным травмам. Поэтому перед началом работы требуется осмотреть абразивный инструмент на наличие повреждений и испытать на прочность. При заточке так же могут появляться различные микродефекты, как на шлифовальном круге, так и на затачиваемом инструменте, защитой от которых служит предохранительный кожух и экран. Кроме того, дополнительную опасность несет попадание рукавов одежды или рукавиц под вращающийся инструмент, поэтому необходима спецодежда с манжетами, прилегающими к запястьям.

Перед допуском к работе заточника проводятся следующие мероприятия:

) Медобследование. Необходимо получить положительное заключение от всех требуемых врачей-специалистов.

) Первичный инструктаж. Проводится на рабочем месте непосредственным руководителем работ.

) Стажировка от 2 до 14 смен, в зависимости от квалификации работника.

) Проверка знаний.

) Приказ о допуске к самостоятельной работе.

Рабочее место заточника должно соответствовать требованиям ГОСТ 12.2.033-78 «ССБТ. Рабочее место при выполнении работ стоя. Общие эргономические требования». Организация рабочего места и конструкция оборудования не обеспечивает наклон корпуса тела работающего вперед менее чем на 15°. Для оптимального положения выбирается высота подставки для ног при нерегулируемой высоте рабочей поверхности. В этом случае высоту рабочей поверхности устанавливают по номограмме, приведенной на рисунке 7.1 для работающего ростом 1800 мм. Оптимальная рабочая поза для работающих более низкого роста достигается за счет увеличения высоты подставки для ног на величину, равную разности между высотой рабочей поверхности для работающего ростом 1800 мм и высотой рабочей поверхности, оптимальной для роста данного работающего.

Так же для обеспечения удобного подхода к станку предусмотрено пространство для стоп размером не менее 530 мм по ширине.

В соответствии с ПОТ Р М-006-97 оборудование подвергается периодическим техническим осмотрам и ремонтам в сроки, предусмотренные графиками, утвержденными начальником цеха. Остановленное для осмотра, чистки или ремонта оборудование отключается от технологических трубопроводов и энергоносителей. При осмотре, чистке, ремонте и демонтаже оборудования их электроприводы обесточиваются, приводные ремни снимаются и на пусковых устройствах вывешиваются плакаты: «Не включать - работают люди» (рисунок 7.2). При необходимости, в соответствии с Правилами техники безопасности при эксплуатации электроустановок потребителей (ПТЭЭП), питающий кабель электродвигателя должен быть заземлен, а зона ремонта ограждена с установкой предупреждающих или запрещающих знаков или плакатов.

- средства отображения информации; 2 - высота рабочей поверхности при легкой работе; 3 - при работе средней тяжести; 4 - при тяжелой работе

Рисунок 7.1 - Номограмма зависимости средств отображения информации и высоты рабочей поверхности от роста человека

Рисунок 7.2 - Знак «Не включать - работают люди»

Поверхности станков, защитных устройств, органов управления, станочных принадлежностей и приспособлений не должны иметь острых кромок и заусенцев, способных травмировать работающего.

Для экстренной остановки оборудование оснащено кнопками «Стоп» красного цвета с грибовидным толкателем, находящимися на панели управления Возврат кнопки в исходное положение не должен приводить к пуску станка.

Рабочее направление вращения шпинделя абразивного станка указывается хорошо видимой стрелкой, помещенной на защитном кожухе абразивного круга [5].

Согласно ст.223 Трудового Кодекса РФ работники обеспечиваются аптечкой для оказания первой помощи пострадавшим от несчастного случая. Аптечка выдается одна на участок в соответствии с ПОТ Р М-006-97 и вывешивается на видном месте под знаком «Аптечка первой помощи» (рисунок 7.3)

Рисунок 7.3 - Знак «Аптечка первой помощи»

Состав аптечки для участка заточки режущего инструмента определяется согласно Приказу Минздравсоцразвития РФ от 05.03.2011 №169н «Об утверждении требований к комплектации изделиями медицинского назначения аптечек для оказания первой помощи работникам». Он указан в таблице 7.1.

Таблица 7.1 - Оснащение аптечки

№ п/п

Наименование

Нормативный документ

Форма выпуска, (размеры)

Количество

1

Изделия медицинского назначения для временной остановки наружного кровотечения и перевязки ран

1.1

Жгут кровоостанавливающий

ГОСТ Р ИСО 10993-99


1 шт.

1.2

Бинт марлевый медицинский нестерильный

ГОСТ 1172-93

5 м х 5 см

1 шт.

1.3

Бинт марлевый медицинский нестерильный

ГОСТ 1172-93

5 м х 10 см

1 шт.

1.4

Бинт марлевый медицинский нестерильный

ГОСТ 1172-93

5 м х 14 см

1 шт.

1.5

Бинт марлевый медицинский стерильный

ГОСТ 1172-93

5 м х 7 см

1 шт.

1.6

Бинт марлевый медицинский стерильный

ГОСТ 1172-93

5 м х 10 см

2 шт.

1.7

Бинт марлевый медицинский стерильный

ГОСТ 1172-93

5 м х 14 см

2 шт.

1.8

Пакет перевязочный медицинский индивидуальный стерильный с герметичной оболочкой

ГОСТ 1179-93


1 шт.

1.9

Салфетки марлевые медицинские стерильные

ГОСТ 16427-93

Не менее 16см x 14 см N10

1 уп.

1.10

Лейкопластырь бактерицидный

ГОСТ Р ИСО 10993-99

Не менее 4 см х 10 см

2 шт.

1.11

Лейкопластырь бактерицидный

ГОСТ Р ИСО 10993-99

Не менее 1,9 см х 7,2 см

10 шт.

1.12

Лейкопластырь рулонный

ГОСТ Р ИСО 10993-99

Не менее 1 см х 250 см

1шт.

2

Изделия медицинского назначения для проведения сердечно-легочной реанимации

2.1

Устройство для проведения искусственного дыхания "Рот-Устройство-Рот" или карманная маска для искусственной вентиляции лёгких "Рот-маска"

ГОСТ Р ИСО 10993-99


1 шт.

3

Прочие изделия медицинского назначения

3.1

Ножницы для разрезания повязок по Листеру

ГОСТ 21239-93


1 шт.

3.2

Салфетки антисептические из бумажного текстилеподобного материала стерильные спиртовые

ГОСТ Р ИСО 10993-99

Не менее 12,5 x 11 см

5 шт.

3.3

Перчатки медицинские нестерильные, смотровые

ГОСТ Р ИСО 10993-99, ГОСТ Р 52238-2004, ГОСТ Р 52239-2004, ГОСТ 3-88

Размер не менее М

2 пары

3.4

Маска медицинская нестерильная 3-слойная из нетканого материала с резинками или с завязками

ГОСТ Р ИСО 10993-99


2 шт.

3.5

Покрывало спасательное изотермическое

ГОСТ Р ИСО 10993-99, ГОСТ Р 50444-92

Не менее 160 x 210 см

1 шт.

4

Прочие средства

4.1

Английские булавки стальные со спиралью

ГОСТ 9389-75

не менее 38 мм

3 шт.

4.2

Рекомендации с пиктограммами по использованию изделий медицинского назначения аптечки для оказания первой помощи работникам



1 шт.

4.3

Футляр или сумка санитарная



1 шт.

4.4

Блокнот отрывной для записей

ГОСТ 18510-87

формат не менее А7

1 шт.

4.5

Авторучка

ГОСТ 28937-91


1 шт.


7.1 Осмотр и испытания шлифовальных кругов


Каждый круг, полученный от завода-изготовителя, с базы или со склада, должен быть проверен на отсутствие трещин, выбоин и других видимых дефектов. В соответствии с ГОСТ 12.3.028-82 «Система стандартов безопасности труда. Процессы обработки абразивным и эльборовым инструментом. Требования безопасности» отсутствие трещин проверяется легким простукиванием круга (по торцу) деревянным молотком массой 150 - 200 г. [4]. Круг без трещин, подвешенный на деревянный или металлический стержень, при простукивании должен издавать чистый звук. Если звук дребезжащий, то круг бракуется.

Перед установкой на заточной или шлифовальный станок круги диаметром 150 мм и более, а скоростные круги диаметром 30 мм и более испытываются на прочность при вращении со скоростью, указанной в таблице 7.2 [4].

Испытания проводятся на специальных испытательных стендах, стоящих отдельно от основного производства (рисунок 7.4). Они устанавливаются на прочный фундамент. Стенд должен иметь камеру для защиты от осколков круга при его разрыве, которая изготавливается из стали, а так же блокировку, исключающую включение стенда при открытой камере и открывание камеры во время испытания [5]. В помещении вывешивается инструкция по проведению испытаний. Испытывает круги специально обученный персонал.

Таблица 7.2 Испытательная скорость шлифовальных кругов

Вид инструмента

Наружный диаметр инструмента, мм

Рабочая скорость инструмента (νp), м/с

Испытательная скорость инструмента (νи), м/с

Шлифовальные круги на керамической и органической связках, в том числе эльборовые и лепестковые, а также фибровые шлифовальные диски

≥ 150

≤ 40

1,5νp


≥ 30

От 40 до 80




От 80 до 120

1,4νр


Продолжительность вращения кругов при этих испытаниях должна быть не менее: диаметром до 150 мм - 1,5 мин на керамической связке, 3 мин на органической и металлической связках; диаметром более 150 мм - 3 мин на керамической связке, 5 мин на органической и металлической связках[4].

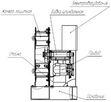
Рисунок 7.4 - Общий вид испытательного стенда для абразивных кругов

Круги, подвергавшиеся какой-либо механической переделке, химической обработке или не имеющие в маркировке указаний о допустимой рабочей скорости, испытываются в течение 10 мин при скорости, превышающей рабочую на 60%.

На каждом испытанном круге ставится отметка об испытании. Отметка содержит порядковый номер круга по книге испытаний, дату испытаний и подпись (или условный знак) ответственного за испытание лица. Отметка делается краской или специальным ярлыком. Применение круга без отметки не допускается [3].