Материал: Производительность скважин при заводнении

Внимание! Если размещение файла нарушает Ваши авторские права, то обязательно сообщите нам

СПБГУАП группа 4736 Контакты https://new.guap.ru/i03/contacts

Рисунок 1.3. Принцип суперпозиции при решении линейных уравнений: давление в данной точке – есть сумма вкладов в изменение давления от разных скважин

, где

r

- расстояние от исследуемой точки X до i-ой скважины, t

i

- время работы i-ой

 

i

 

 

скважины.

Поэтому, для того чтобы смоделировать случай, когда дебит скважины -

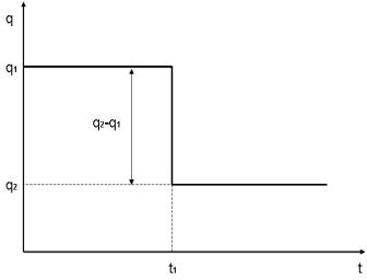
переменный, достаточно рассмотреть две скважины, находящиеся в одной точке и сложить решения для этих скважин, причем дебит первой скважины – q1 , второй q2 q1 ,

вторая скважина начинает работать в момент времени t t1 (Рисунок 1.4).

p

wf

(t) p

wf

(q

, t) p

wf

((q

q ), (t t

))

 

 

1

 

2

1

1

 

Рисунок 1.4. Принцип суперпозиции при решении линейных уравнений: скважина с переменным дебитом

В случае модели постоянного давления – все те же рассуждения верны, в отношении перепадов давления, относительно среднего пластового давления.

1.3.8. Метод отображения

Иногда полезен метод, называемый методом отображения [9]. Поясним его на примере. Допустим необходимо найти динамику распределения давления от скважины

(добывающей или нагнетательной), расположенной на некотором расстоянии от полубесконечного пласта (Рисунок 1.5).

- 13 -

СПБГУАП группа 4736 Контакты https://new.guap.ru/i03/contacts

Рисунок 1.5. Метод отображения при решении некоторых смешанных задач

Распределение давления в этом случае будет эквивалентно распределению от работы двух одинаковых скважин: первая – данная скважина, а вторая – «мнимая» скважина,

расположенная симметрично от границы полубесконечного пласта (Рисунок 1.5).

Рассмотрим скважину в центре прямоугольного ограниченного пласта. Данная система эквивалентна скважине, работающей с теми же параметрами в бесконечном пласте, но при этом скважину окружают совокупность таких же «мнимых» скважин,

симметрично расположенных от границы пласта (Рисунок 1.6).

- 14 -

СПБГУАП группа 4736 Контакты https://new.guap.ru/i03/contacts

Рисунок 1.6. Метод отображения при решении некоторых смешанных задач: скважина в прямоугольном пласте

Вообще говоря – необходимо рассматривать бесконечное число таких «мнимых» скважин (как будто они симметрично расположены во всем бесконечном пласте), но, как показывают расчеты – уже при рассмотрении 9 скважин (1 данная скважина и 8 скважин окружения) в бесконечном пласте, можно получить хорошее приближение. Однако необходимо проводить анализ чувствительности решения к количеству скважин окружения при решении данной конкретной задачи.

- 15 -

СПБГУАП группа 4736 Контакты https://new.guap.ru/i03/contacts

2. Режимы работы пласта

2.1. Классификация режимов работы пласта

Режимы течения в системе разработки обычно выделяются на основе классификации поведения давления и дебита, связываемых с определенным типом условий в идеализированной системе. В качестве такой системы наиболее часто рассматривается однородный круговой пласт с вертикальной скважиной, расположенной по центру. В

этом случае наиболее просто получить решения уравнения пьезопроводности. Наиболее распространенным условием на скважине является условие постоянного дебита. Выбор такого условия связан как с простотой решения задачи, так и с законодательными или техническими ограничениями, налагаемыми на уровни добычи ([26], стр. 176, 220).

Обычно выделяют 3 основных режима течения – неустановившийся (бесконечный),

псевдоустановившийся (полустационарный, квазистационарный) и установившийся.

При неустановившемся режиме границы пласта не оказывают влияния на поведение скважины (отсюда название бесконечный). Этот режим характеризуется постоянным дебитом (по определению) и быстрым падением забойного давления и увеличением перепада между ним и средним пластовым давлением (депресии). Длительность такого режима в высокопроницаемом пласте обычно не превышает нескольких дней.

Продолжительность такого режима определяется радиусом зоны дренирования и коэффициентом пьезопроводности и не зависит от дебита скважины.

После окончания неустановившегося режима в зависимости от условий на границе происходит переход к установившемуся или псевдоустановившемуся режимам. При псевдоустановившемся режиме область дренирования считается полностью изолированной, следовательно приток в область дренирования через ее границу отсутствует. В таком случае после достижения давлением границ области среднее давление в пласте начинает уменьшаться, при этом можно полагать, что скорость такого уменьшения постоянна во всех точках пласта и может быть вычислена из соотношения материального баланса. Перепад между пластовым и забойным давлением стабилизируется. Забойное давление уменьшается до тех пор, пока не будет достигнуто его минимальное значение.

После достижения давлением некоторого минимального значения некоторые авторы

([26], стр. 176) выделяют режим естественного истощения. В этом режиме забойное давление постоянно и равно минимально достижимому, а дебит уменьшается. Хотя формально такой режим уже нельзя назвать псевдоустановившимся, производительность

- 16 -

СПБГУАП группа 4736 Контакты https://new.guap.ru/i03/contacts

скважины при таком режиме может с успехом быть описана с использованием результатов для псевдоустановившегося режима ([26], стр 178). Такая возможность объясняется возможностью использования подхода последовательной смены стационарных состояний [1], т.е. изменение среднего давления происходит гораздо медленнее перераспределения профиля давления в пределах области дренирования.

Скорость падения давления при таких режимах определяется соотношением дренируемого объема, сжимаемости и скоростью отбора (дебитом). В связи со схожестью подходов к расчету производительности скважины на псевдоустановившемся режиме и режиме естественного истощения в дальнейшем оба этих режима будем в обозначать термином «пседвоустановившийся» в обобщенном смысле.

В случае если давление на границе области постоянно, после непродолжительного переходного режима неустановившийся режим сменяется установившимся. При установившемся режиме отбор из скважины полностью компенсируется притоком в область дренирования из-за контура питания. При этом характеристика источника притока такова, что давление на контуре постоянно и равно начальному. Такая характеристика соответствует источнику с нулевым внутренним сопротивлением, т.е. он способен отдать сколько угодно большой поток при постоянном потенциале. После наступления неустановившегося режима, как давление, так и дебит остаются постоянными.

2.2. Отсутствие описания псевдоустановившегося режима в системе заводнения в литературе

Систему ППД обычно связывают с наличием в пласте границы постоянного давления, расположенной между нагнетательной и добывающей скважинами. Наличие такой границы создает иллюзию возможности применения классической теории смены режимов на одиночной скважине при предположении о постоянном давлении на границе ее круговой области дренирования (контура питания). В соответствии с такой теорией сразу после неустановившегося (и переходного) режимов наступает режим установившийся. Такой подход действительно позволяет получить верные результаты при условии равенства начального пластового давления среднему давлению на установившемся режиме. Такая ситуация возникает если отбор из пласта равен закачке за весь анализируемый период. Это равенство, в частности, может являться следствием искусственного ограничения отборов и закачки. Такие ограничения могут быть связаны с поверхностным обустройством или с законодательством. В другом варианте – равенство дебитов обусловлено симметрией давлений нагнетания и добычи относительно

- 17 -