Материал: Электролитическое рафинирование меди

Внимание! Если размещение файла нарушает Ваши авторские права, то обязательно сообщите нам

.2.2 Электролиз с нерастворимым анодом

Для этого процесса пригодны растворы сульфата меди с концентрацией меди не менее 30 г/дм3, получаемые разными способами, обычно выщелачиванием окисленных руд и концентратов. Электролиз проводят в ваннах, где катодных основ из чистой меди около 80, анодов из сплава свинца с 8-15% сурьмы и 1% серебра на один больше. Раствор подают в каждую ванну со скоростью около 1 м3/мин. На выход по току отрицательно влияет примесь железа, которая восстанавливается на катоде и окисляется на аноде, бесполезно расходуя электроэнергию, поэтому перед электролизом железо, если его мало, осаждают известью, предварительно окисляя воздухом:

4Fe2+ + О2 + 4Н+ = 4Fез+ + 2Н2O; (30)

К = (аFe3+) / ([O2] · (aFe2+) · (aH+))= 5 · 1030 (31)

Получаемые гидратные осадки трудно промыть, и с ними теряется значительное количество меди, поэтому когда концентрация ионов Fез+ слишком высока, их перед электролизом восстанавливают цементационной медью

медь рафинирование электролитический катод

2Fез+ + Сu = 2Fе2+ + Сu2+, (32)

либо диоксидом серы

2Fез+ + SO2 + 2Н2О = 2Fе2+ + SO + 4Н+ (33)

Ионы Fе2+ окисляются на аноде при потенциале, меньшем потенциала окисления воды, уменьшая напряжение на ванне, и это выгодно; однако возникающие ионы Fе3+ восстанавливаясь на катоде, снижают выход меди по току.

По мере истощения электролита на катоде вместе с медью осаждается СuО и выделяется водород:

Сu2+ + Н2О + 2е = СuО + H2, Е° = -0,22 В; (34)

осадок становится черным, губчатым, он отрывается от катода, выпадает в шлам. Вследствие концентрационной поляризации снижается и чистота осадка, поэтому электролиз заканчивают после уменьшения концентрации меди до 15-20 г/дм3, а отработанный электролит, в котором регенерировалась серная кислота, направляют в оборот на выщелачивание.

1.3 Основные сведения по безосновной технологии

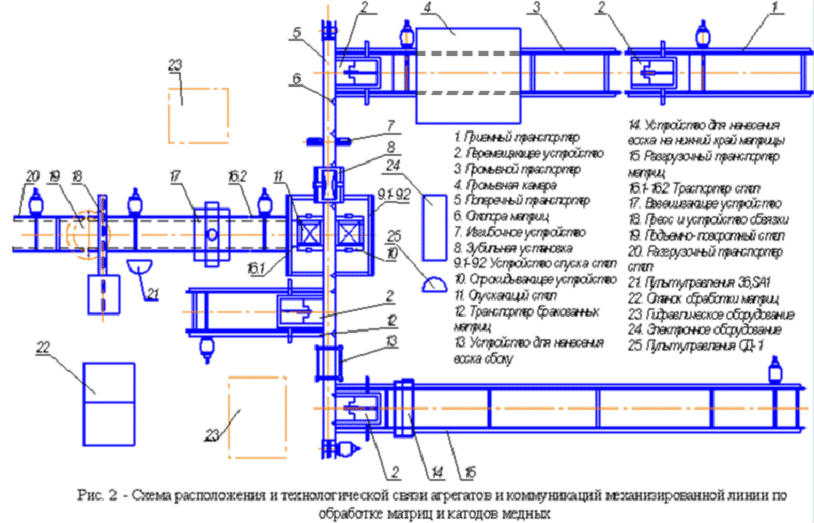
Основное достоинство безосновной технологии - получение более высококачественной меди. Особенностью технологии электрорафинирования меди безосновным способом стало наращивание катодов медных на титановых матрицах многоразового использования, с последующей механизированной промывкой, сдиркой, стопированием, взвешиванием и обвязкой пакетов на стрип-машине финской фирмы "WENMEС" (рис. 2).

В этом случае процесс электролитического рафинирования медных анодов включает следующие оперативные работы: подготовка катодных матриц; ремонт матриц; загрузка серий ванн анодами и титановыми матрицами; выгрузка катодов медных; обслуживание титановых матриц и катодов; выгрузка анодных остатков; чистка электролизных ванн; корректировка электролита; приготовление и введение в электролит ПАВ.

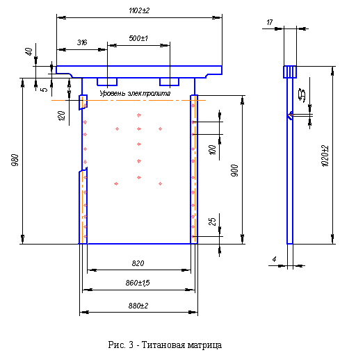
Подготовку катодных матриц к загрузке производят на стрип-машине. Основой для наращивания медных осадков служит матрица из титана (рис. 3).

В процессе эксплуатации матриц нарушается обрамление кромок, образуются оксиды на поверхности полотна. На конвейере стрип-машины электролизник визуально оценивает целостность обрамления, составляющие поверхности матриц. Готовые для дальнейшей эксплуатации матрицы продолжают движение на разгрузочный конвейер. Нижнюю кромку изолируют воском в ванне, монтированной в разгрузочный конвейер в стрип-машине методом двойного погружения, а боковые кромки изолируют расплавленным воском при помощи форсунок.




Дефектные матрицы выводят на выбраковочный конвейер, сортируют, укладывают в стопы для последующих операций: обработки поверхности матриц на станках; ремонт боковых обрамлений; выравнивание поверхности матриц.

Стопы дефектных матриц с помощью крана перевозят на участок ремонта. В качестве изоляционных боковых кромок применяют материал, обладающий диэлектрическими свойствами, химической стойкостью и механической прочностью в кислых средах в диапазоне рабочих температур. Изготавливают изоляционные обрамления на установке термопласт-автомат. Для обеспечения необходимого сцепления медного осадка к матрицам с целью удержания его до операции съема проводят обработку поверхности матриц стальными щетками на станках перед пуском в эксплуатацию. Изогнутые поверхности матриц выравнивают на гидропрессе. Отремонтированные матрицы перед загрузкой в электролизные ванны промывают в камере стрип-машины.

Аноды попадают в отделение в железнодорожных вагонетках в виде пакетов без упаковки. С помощью крана разгружают аноды с вагонеток в стеллажи. На стеллажах аноды вручную с помощью ломика устанавливают на фиксированном расстоянии, которое обеспечивается конструкцией стеллажа. Специальной бороной комплект анодов в количестве 34 штук зацепляют со стеллажей мостовым краном, перевозят до серии и загружают в ванну.

2. Технологическая часть

.1 Технологическая схема участка электролиза меди

Приемный транспортер доставляет матрицы с катодным осадком в промывочную камеру, где происходит трехстадийная промывка катодов от остатков электролита и воска с нижних и боковых кромок матриц. После промывки матрицы с нарощенной медью направляют на узел сдирки, где на первой стадии путем изгиба матриц происходит локальное, а затем, на второй стадии при помощи ножей, полное отделение медных осадков от матрицы. Катоды формируют в стопы на очередных станциях стрип-машины - опрокидывающих и опускающих вилах. Взвешивают на вмонтированный в транспортер стрип-машины весах, и направляют на станцию упаковки. Упаковку производят на прессе и обвязочном устройстве стрип-машины. Пакеты катодов обвязывают стальной упаковочной лентой. Вывоз пакетов из отделения осуществляется железнодорожным или автомобильным транспортом.

Загрязненные воды из промывочной камеры через циркуляционные баки направляют через узел очистки от воска в систему кислых растворов и на корректировку электролита. Воск, смытый с матриц, поступает на узел сепарации и регенерации, где он накапливается, осаждается на воскоснимателе, стекает через фильтр в баки-сборники, проходит процесс регенерации. Далее сливается в формы для восковки нижней кромки матрицы. Растворение анода обычно длится 15 суток. После того, как значительная часть анода сработалось, серию отключают из электрической цепи, останавливают циркуляцию и производят выгрузку матриц с наращенным осадком, промывку с помощью специальных щеток поверхности анодного остатка от шлама и выгрузку анодных остатков. Анодные остатки зацепляют на борону, поднимают и с помощью крана выдерживают над ванной 30 секунд для стока электролита. Затем транспортируют к стационарной промывочной ванне. В промывочной ванне анодные остатки выдерживают около двух минут до полного смыва шлама с их поверхности. Промывку производят горячим конденсатом при температуре от 273 до 422 К.

Рисунок 4 - Принципиальная технологическая схема электролитического рафинирования меди

Промытые анодные остатки загружают в устройство укладки анодных остатков, стопируют высотой от 500 до 700 мм, грузят на вагонетки. Анодные остатки, составляющие 18% от первоначальной массы анода, отправляют на переплавку в медеплавильный цех. После выгрузки матриц и анодных остатков электролит откачивают из ванны через сборный коллектор в сборные баки с помощью сифона. В ванне оставляют слой раствора из шламовой пульпы высотой от 70 до 150 мм в зависимости от состава и структуры шлама. Чистку ванн от шлама производят с помощью вакуум-системы, которая представляет собой разводку трубопроводов от серии ванн к баку-сборнику, работающему под напряжением. Оставшийся анодный скрап, включая мелкую осыпь, вручную смещают в угол ванны, выгружают из ванны совком и укладывают в специальную металлическую тару. Отмывают в промывочной стационарной ванне, перегружают в тару и отправляют в медеплавильный цех.

Электролитическое производство меди размещают в просторных, хорошо освещенных зданиях, снабженных мощной приточно-вытяжной вентиляцией. В продольном направлении внутренняя часть здания разделена на пролеты, обслуживаемые мостовыми кранами грузоподъемностью от 10 до 50 т. На рабочих площадка. пролетов смонтированы электролизные ванны.

Процесс рафинирования меди протекает при непрерывном обмене электролита. Для этого в цехе смонтирована система его принудительной циркуляции.

Электролит, непрерывно вытекающий из ванн, после корректировки его состава и температуры возвращается в ванны по распределительной системе.

Постоянный электрический ток к ваннам поступает от преобразовательной подстанции, которая обычно расположена в отдельном здании рядом с корпусом электролиза.

Цех имеет несколько электрически. цепей постоянного тока, каждая из которых состоит из ряда последовательно соединенных электролизных ванн и самостоятельного источника постоянного тока - выпрямительного агрегата, установленного на преобразовательной подстанции.

Назначение очистного передела - поддерживать в электролите товарных ванн минимально допустимое содержание примесей.

Для этого часть электролита товарных ванн периодически направляют на обезмеживание в регенерационные ванны, а затем на извлечение никелевого купороса путем упаривания в вакуум-аппарата..

В отделении обработки готовой продукции катоды разбраковывают по внешнему виду, увязывают в пакеты (~ 1.5 т), маркируют и отгружают потребителям.

.2 Конструкция электролизера

Электролизеры для рафинирования меди обычно называют электролитными ваннами. Их размеры на отечественных заводах существенно разнятся и зависят от числа и размеров применяемых электродов. Длина ванны определяется числом электродов и расстоянием между центрами одноименных электродов. Ширина зависит от ширины катодов: зазоры между краями катода и стенками ванны должны быть 60-70 мм.

При меньшем зазоре ухудшается циркуляция электролита, затрудняется замена электродов; превышение этого расстояния приводит к бесполезному увеличению размера ванн. Глубина ванн должна быть достаточной для того, чтобы шлам, образующийся при растворении анодов, мог отстаиваться при оптимальной скорости циркуляции электролита. Для этого необходимо, чтобы расстояние между нижними краями катодов и дном составляло 180-200 мм.

Благодаря механизации трудоемких процессов в электролитных цехах становится возможной работа на анодах все большей массы, а, следовательно, и размера. В связи с этим увеличивают и размеры ванн.

Корпуса ванн чаще всего изготавливают из монолитного (рис. 5) или сборного железобетона; в последнем случае днища делают деревянными. Внутреннюю поверхность ванн футеруют листовым (10-15 мм) винипластом или оклеивают рубероидом на битумной мастике и обкладывают кислотоупорным кирпичом.

Рисунок 5 - Продольный (а) и поперечный (б) разрезы блока ванны для рафинирования меди:

- корпус; 2 - анод; 3 - катод; 4 - сливной короб; 5 - сливной карман; 6 - распределительная труба

Железобетонные ванны на современных заводах объединены в блоки по 5-20 ванн в каждом. Блок из сборного железобетона представляет собой единую жесткую конструкцию; ванны в блоке имеют общие продольные стенки. Два блока составляют серию. Блоки и ванны в блоках образуют последовательную электрическую цепь. Электроды в каждой ванне включены параллельно. При такой схеме ток с анодов первой ванны блока переходит на катоды второй, а затем на аноды третьей ванны и т.д. Эта передача тока от одной ванны к другой может осуществляться либо при непосредственном контакте анодных ушек с катодными штангами смежной ванны - контакт Уайтхеда (рис. 6), либо через трехгранную промежуточную шину, на которую опираются аноды первой и катодные штанги второй ванн.

Рисунок 6 - Варианты передачи тока с помощью контакта Уайтхеда

- анод; 2 - катодная штанга; 3 - трехгранная шина

Анод (рис. 7) представляет собой медную плиту с двумя ушками, которые служат для его подвески на ванне и подвода тока. В связи с применением горизонтальных изложниц нижняя (при литье) плоскость анода меньше, чем верхняя. Это необходимо, чтобы аноды после остывания легко вынимались из изложниц. По длине анод делают в форме клина, суживающегося от ушек к противоположному краю.

Имея такую форму, аноды срабатываются более равномерно, срок их службы увеличивается, а число обрывов ушек уменьшается.

Толщина анодов заметно влияет на технико-экономические показатели работы электролитного передела. При работе на более толстых анодах уменьшается число полных перегрузок серий, что ведет к сокращению трудовых затрат и расхода вспомогательных материалов, достигается более полное использование анодов, так как уменьшается выход анодных остатков. Но применение утолщенных анодов связано с повышением расхода электроэнергии, так как среднее расстояние между катодами и анодами увеличивается. Кроме того, при одной и той же длине ванны число электродов в ней, а, следовательно, и производительность по меди будет меньшей.

Рисунок 7 - Медный анод

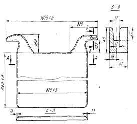
На ЗАО "Кыштымский медеэлектролитный завод" медный осадок наращивают на матрицах из титана ВТ1-0 ГОСТ 19807-91; размер рабочей поверхности 1000 * 860 мм; обрамление матриц - полипропилен ТУ 2211-015-00203521; масса 24 кг. Токоподвод (катодная штанга) выполнен из биметалла "титан-медь", изготовленного сваркой взрывом. Кромки матрицы перед завешиванием в ванну изолируют воском. С целью повышения производительности труда и надежности в процессе эксплуатации таких матриц путем исключения самосъема осадков меди (от изменения температуры, например, при промывке) полотно матрицы снабжено дополнительно одним или несколькими отверстиями.

При конструировании и монтаже ванны большое внимание уделяют электрической изоляции ее частей во избежание бесполезных утечек тока. Между днищем ванны и балками, на которые оно упирается, укладывают листы пластиката, а на них - плитки из стекла или керамики. Борт ванн изолируют от ошиновки наголовником из пластиката или винипласта и деревянными прокладками. Для уменьшения токов утечки трубы, подачи электролита на ванны и отвода его в сливные короба делают из неэлектропроводного материала - резины, полипропилена, винипласта.

Ошиновка ванн состоит из главных, переходных и промежуточных шин. Главные и переходные шины расположены в торцах блока, промежуточные (если они применяются) - на бортах перегородок между ваннами блока.

Ток в серии проходит от главной анодной шины первого блока последовательно через ванны к переходной катодной шине, установленной в противоположном торце блока. Продолжение этой катодной шины образует переходную анодную шину второго блока серии. Пройдя через ванны второго блока, ток попадает на главную катодную шину, а через нее передается в соседнюю серию ванн.

.3 Параметры работы электролизных ванн

.3.1 Состав электролита

Электролит должен быть устойчив в работе, т.е. не разлагаться химически и не образовывать осадка солей при небольших понижениях температуры. Этим условиям при рафинировании меди удовлетворяет электролит, состоящий из смеси растворов CuSO4 и H2SO4 с добавками поверхностно-активных веществ (тиомочевины, желатина, стирального порошка). В состав электролита, кроме того, входят примеси некоторых металлов, попадающие в него при растворении анодов.

Примеси, присутствующие в медных анодах, можно подразделить на четыре группы. В первую группу входят металлы, потенциалы разряда которых электроотрицательнее потенциала меди: Zn, Fe, Ni, Co, Sn, Pb. Эти металлы не могут выделяться на катоде из раствора, имеющего высокое содержание ионов меди, поэтому постепенно накапливаются в электролите. Но их присутствие и накопление не безвредно для процесса. При значительном содержании этих примесей растворимость сульфата меди в электролите понижается настолько, что становится возможным выпадение кристаллов CuSO4. Чаще всего кристаллизация CuSO4 происходит на поверхности анодов, так как прианодные слои электролита наиболее обогащены ионами меди. Это вызывает солевую пассивацию анодов, нарушающую режим электролиза. Вторая группа примесей - элементы, близкие к меди по потенциалам разряда: As, Sb, Bi. Это наиболее опасные примеси, так как загрязнение ими катодной меди наиболее вероятно и при этом ухудшаются ее электропроводимость и механические свойства. Их разряд возможен на катодах, находящихся в зонах слабой циркуляции электролита, где мала концентрация ионов меди. От примесей первой и второй группы электролит очищают в купоросном отделении цеха, куда систематически выводится часть электролита. Благодаря этому содержание примесей удается удерживать на уровне, безопасном для технологии.