Материал: 2432

Внимание! Если размещение файла нарушает Ваши авторские права, то обязательно сообщите нам

Рекомендуется изображать не все элементы, расположенные за секущей плоскостью, а только находящиеся в непосредственной близости от неё (колонны, балки, лестничные марши, ограждения лестниц, двери, вентиляционные каналы). Лестничный марш, попавший в секущую плоскость разреза, вычерчивается сплошной толстой основной линией; марш, находящийся за секущей плоскостью, – сплошной тонкой линией. Полы на перекрытиях и кровля вычерчиваются одной сплошной линией независимо от числа слоёв пола и кровли, а

Сих состав указывается в выносной надписи (см. рис. 5). Если в разрезе здания секущая

плоскость параллельна коньку крыши, то, несмотря на это, разрез крыши выполняется по

коньку, а конструкт вные элементы здания, расположенные ниже чердачного перекрытия, изображаютсяпостроениив соответств с действительным расположением секущей плоскости. При разреза по лестн це следует учитывать следующие рекомендации.

Чаще всего выполняются двухмаршевые лестницы с одинаковым количеством ступеней в маршахб. В этом случае горизонтальный уровень промежуточной площадки

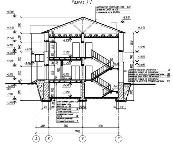
располагается посеред не высоты этажа. Для обеспечения удобства ходьбы и соблюдения требований норм пожарной езопасности рекомендуется принимать уклон маршей лестницы не более 1:1,25 с предельнымиАразмерами проступи (горизонтальной части ступени) и подступенка (вертикального подъёма ступени), равными соответственно 250 и 200 мм. Обычно высота подступенка принимается в пределах 150 … 180 мм, ширина проступи – 250 … 300 мм. Построение разреза жилого домаДвыполняется в следующей последовательности: − проводятся вертикальные линии координационных осей и снизу в кружках проставляются их марки; − выносятся горизонтальными линиями уровни поверхности земли, чистого пола этажей, верха чердачного перекрытия, карниза; − Ипроводятся контуры наружных и внутренних стен и перегородок, попавших в разрез, в соответствии с принятыми толщинами этих элементов на планах; − вычерчиваются выносы карниза и цоколя (от стены), скаты крыши; − намечается расположение оконных и дверных проёмов в стенах и перегородках, а также других видимых элементов, находящихся за секущей плоскостью; − отмечается горизонтальный уровень промежуточной лестничной площадки, отмечается ширина промежуточной площадки (от ближайшей стены), вычерчиваются марши в соответствии с принятым уклоном и ограждения лестницы; − проставляются размеры, отметки, выноски, делаются необходимые надписи.

76

На чертежах разрезов должны быть указаны: − координационные оси здания, расстояния между ними, расстояния между крайними осями, привязки подошвы фундаментов к осям; − внутри разреза: высотные отметки чистого пола этажей и чердачного перекрытия, низа несущих элементов перекрытия и потолка, верха дверных проёмов, верха и низа площадок (этажной и промежуточной) лестниц; размеры высот помещений и толщин

перекрытий, привязки проёмов по высоте; − с внешней стороны разреза: высотные отметки подошвы фундаментов, уровня земли, цоколя, низа и верха проёмов, архитектурных элементов

С(промежуточных карн зов, выступов, козырьков и т.п.), отметки карниза, верха стен, конька крыши, верха вент ляц онных каналов; привязки по высоте низа фундаментов, земли, цоколя, проёмов, карн за, конька крыши. За габаритом разреза рекомендуется сначала вынести

элементывертикальную, выполненные з материала, являющегося основным для данного здания (например, стены в к рп чном здан ), не штрихуются; штриховка выполняется только для тех

размерную л н ю, а дальше проставить отметки.

Конструкт вные элементы, попавшие в разрез, штрихуются (см. прил. 3). При этом

элементов, матер ал которых отличается от основного (например, железобетонных

перемычек, бетонных фундаментов и т.д.). Пример оформления чертежа разреза жилого дома

б

приведён в прил. 5.

А

 

 

Д

 

И

77

Контрольные вопросы к лабораторной работе №14-15

1. Для чего вычерчиваются архитектурные разрезы зданий?

2. Что показывается на архитектурных разрезах зданий?

3. Как называются разрезы, на которых показываются конструктивные элементы здания?

4. Как выполняется продольный разрез лестничного марша?

5. Через какие элементы не должна проходить секущая плоскость при построен разрезов?

ями

6.

Какой

л н ей

зображаются на разрезе линии контуров элементов и

Сконструкц й, попадающ х в секущую плоскость?

7.

Изображаются ли на разрезе элементы, расположенные за секущей

 

б

плоскостью? Если они

зо ражаются, то как?

8.

Скольк

л н

вычерчиваются полы и кровля на разрезе?

9.

Как указывается состав пола или кровли на разрезе?

 

 

 

А

10. В какой последовательности вычерчивается разрез?

Тема: Разра отка чертежей разреза промышленного здания Лабораторная ра ота: Разра отка чертежа разреза промышленного здания

1.Цель – освоить методику разработки чертежей разрезов промышленных зданий.

2.Задание: начертить поперечный разрез здания, приведенного в исходных данных

клабораторной работе №12-13.

3.Исходные данные: см. исходные данные к лабораторной работе №12-13

4.Теоретические положения. Д

Разрезы производственных и жилых полносборныхИзданий индустриального изготовления вычерчиваются схематично. На таких разрезах наносятся ссылки на чертежи конструктивных узлов и выноска и в примерах рисунков, что расположены ниже, изображены продольный виде «этажерок» с перечнем слоев конструкций. На приведенных в качестве и поперечный разрезы ( 1 – 1 и 2 – 2 ).

78

Си б

ПоперечныйАразрез производственного здания

При выполнении разрезов на нихДуказываются высоты дверных и оконных проемов, расстояния между координационными осями, наносятся отметки уровня

земли ( Ур. з. ), покрытия пола ( Ур. ч. п. ), головок подкрановых рельсов ( Ур. г. р. ) верха колонн. С помощью кружков приводятсяИссылки на листы комплекта, обозначаются узлы.

79

С

 

 

и

 

 

б

 

 

А

 

Продольный разрез производственного здания

 

Контрольные вопросы к лабораторной работе №16-17

1.

Разрезы производственных и жилых полносборных зданий индустриального

изготовления вычерчиваются схематично или в подробностях?

 

 

И

2.

Как на разрезах наносятся ссылки наДчертежи конструктивных узлов?

3.

Как на разрезах вычерчиваются кровли?

 

4.

Как на разрезах чертятся кровли?

 

5.

Какие высотные отметки наносятся на разрезах?

 

6.

Какие размеры по вертикали показываются на разрезах?

7.

Какая высотная отметка обозначается «Ур. з.»?

 

8.

Какая высотная отметка обозначается «Ур. ч. п.»?

80