Материал: 2184

Внимание! Если размещение файла нарушает Ваши авторские права, то обязательно сообщите нам

Контрольные вопросы

1. Что служит основой для разработки объемно-планировочных решений производственного здания?

2. В каких целях осуществляется унификация объемнопланировочных решений?

3.

Какие виды транспорта предусматриваются для внутрицехо-

СибАДИ

вых перевозок?

4.

Какое в каких случаях предусматривается грузоподъемное

оборудован е в про зводственных зданиях?

5.

Как е требования предъявляются к эвакуационным выходам?

2.3. Разра откаархитектурногоэскизапроизводственногоздания

Цель работы: Закрепление навыков и расширение теоретических знан й о методах о ъемно-планировочных и архитектурнокомпоз ц онных решениях промышленного предприятия.

Задача ра оты: на основании выданного задания разработать архитектурный эск з про зводственного корпуса или цеха, учитывая функциональные, технические, архитектурно-художественные экономические требования.

Исходные данные

Задание на разра отку проекта включает следующие исходные дан-

ные:

• назначение предприятия

• вид выпускаемой продукции, мощность

• район строительства

• функциональная схема предприятия.

Теоретическая часть

Промышленное предприятие – это целостный архитектурный объект. Архитектурные решения промышленных предприятий, имея некоторые особенности, тем не менее, осуществляются на тех же принципах, что и архитектура объектов иного назначения.

Промышленные здания могут иметь как фронтальносимметричные, так и фронтально-ассиметричные композиции. При проектировании следует стремиться к простым, лаконичным и четким композиционным решениям. Для объёмно-планировочных и конструктивных решений промышленных зданий характерны крупные формы элементов несущих и особенно ограждающих конструкций. Крупные элементы фа-

16

сада, масштабно взятые по отношению к окружающей застройке, нередко позволяют достигнуть выразительной архитектуры здания. Большая протяженность многих промышленных зданий часто вынуждает в композиции прибегать к многократной повторяемости одного и того же элемента. При решении подобных композиций используют прием ритмического, метрического ряда. Ритмичные членения фасада могут быть образованы чередованием глухих и остекленных участков стены, несущих конструкц й покрыт я, повторением одинаковых объёмов (блоков) зданий т. д.

 

Для практ ки проектирования современных одноэтажных и много-

этажных промышленных зданий наиболее характерны горизонтальные

С

членен я фасадов, что о условлено применением навесных стен из типо-

вых

панелей дл ной 6м, а также устройством ленточных световых про-

ёмов

солнцезащ тных устройств.

 

Вместе с тем, ольшая протяженность фасадов промышленных зда-

ний, особенно при ленточном и сплошном остеклении, вызывает впечат-

ление монотонностиби одноо разия. Поэтому для повышения архитектурной выраз тельности здания прибегают к контрастам, образованным отдельными элементами фасада. Контрастными могут быть решения главного и торцового фасадов производственного и вспомогательного зданий. Могут ыть также выделены ворота, жалюзи, вентиляционные шахты и другие технологические элементы.

ют, кроме того, путёмАиспользования таких композиционных средств, как малые архитектурные формы: светильники, флагштоки и др., а также

Большое значение в формированииДархитектурно-художественного образа здания играют новые строительные материалы. Применение для стеновых панелей и оконных заполнений алюминия, нержавеющей стали, медных сплавов, эмалей, стекла, пластиков и других новых материалов придаёт внешнему виду здания индивидуальный характер, особую

Архитектурной выразительности промышленных зданий достига-

цвет, фактура материала и средств монументального искусства.

архитектурную выразительность.

Архитектурно-художественная выразительностьИкаждого промышленного здания должна быть композиционно увязана и согласована с ар- хитектурно-художественным решением всех сооружений промышленного предприятия. Достижение архитектурно-художественного единства - одно из основных требований, предъявляемых к внешнему облику промышленных зданий.

17

Кроме технологического процесса, на внешний облик промышленных здания оказывают инженерные сооружения специального назначе-

ния (бункера, эстакады и пр.), выведенные наружу элементы технологического оборудования, конструктивные элементы, назначение и формы которых обусловлены технологическим процессом (рампы, козырьки над ними, места ввода коммуникаций и т.п.).

СибАДИчают расположен е отдельных чертежей с учетом масштаба и необходимых мест для выносных, размерных линий и пояснительных надписей. Вначале наносят раз ивочные оси, затем строят основные контуры, а после этого чертежи детализируют. Размеры на всех чертежах указывают в миллиметрах, высотные отметки - в метрах. Отметки выше уровня чистого пола первого этажа (отметка 0.000) проставляют со знаком «плюс», ниже - со знаком «минус».

Порядок выполнения работы

Чертежи лабораторной работы выполняются на двух листах формата А2 (420х594 мм). Лист должен иметь рамку, линии которой отстоят от краев с трех сторон на 5 мм, а слева на 20 мм. В нижнем углу листа располагается основная надпись размером 185х55 мм. Оформление чертежей выполняются с учетом тре ований ГОСТ 21.1101-2013 [12] и 21.501-

2011 [13] [14].

Для равномерного заполнения листа предварительно на нем наме-

План цеха. План цеха изображают в виде горизонтального разреза на уровне, находящемся в пределах дверных и оконных проемов. При многоярусном расположении окон в пределах этажа на плане наносят оконные проемы нижнего яруса. Если вышележащие ярусы оконных проемов по размерам или разбивке отличаются от нижнего, то можно по периметру плана располагать горизонтальные сечения стен по проемам вышележащих ярусов.

Ворота, двери, лестницы, перегородки, рельсовые пути, проемы, подъемно-транспортное оборудование и т. д. изображают условными обозначениями. В случае необходимости указывают зону действия крана.

Площадки антресоли, расположенные на высоте более 2 м от уровня пола, показывают штриховой линией в виде перекрещенного контура. На планах вспомогательных зданий и помещений показывают расположение шкафов, вешалок и другого оборудования бытовых помещений. Встроенные и пристроенные вспомогательные помещения, площадки, антресоли и другие участки здания (сооружения), на которые выпол-

18

няют отдельные чертежи, на общих планах показывают схематично с ссылкой на соответствующие чертежи.

На план наносят: разбивочные оси здания (сооружения); отметки уровней чистых полов (при расположении полов на одном уровне их отметки не проставляют); толщину стен и перегородок, их привязку к разбивочным осям или к поверхности ближайших конструкций; размеры и

СибАДИпривязку проемов и отверстий в стенах и перегородках (для проемов с четвертями размеры показывают по наружной стороне стены; размеры дверных проемов в перегородках на плане не показывают); оси рельсовых путей монорельсов и их привязки к разбивочным осям; уклоны полов; размеры пр вязку каналов, лотков и трапов, устраиваемых в конструкц пола; на менования помещений или технологических участков с указан ем категор производств по взрывной, взрывопожарной и пожарной опасности.

Размерные л н и наносятся вне контура изображения. Расстояние размерной л н от параллельной ей линии контура должно быть 12-16 мм, а между размерными линиями 6-8 мм. На первой размерной линии проставляют размеры дверных, оконных проемов, простенков между ними. На второй размерной линии – расстояние между смежными разбивочными осями и на третьей линии – размеры между крайними осями. Внутренние размеры помещений, толщины перегородок и внутренних стен проставляют на внутренних линиях, которые проводят на расстоянии не менее 8-10 мм от стены или перегородки.

На плане намечают линии поперечного и продольного разрезов, проходящие по лестнице и основным помещениям проектируемого здания. Масштаб на плане не указывают. Толщину наружных стен проставляют на плане этажа по результатам теплотехнического расчета.

Допускается приводить наименования помещений и категории производств в экспликации с нумерацией помещений на плане. Номера помещений участков проставляют на плане в кружках диаметром 6 - 8 мм.

Нумерация помещений в чертежах архитектурно-строительных решений должна совпадать с нумерацией помещений в других рабочих чертежах.

19

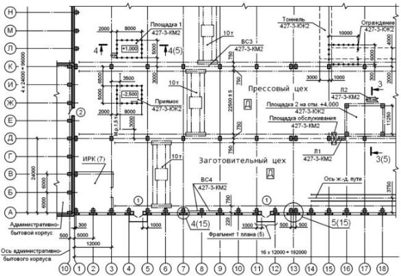
СибАДИРис. 1. План цеха

Разрезы. Положение разрезов принимают, как привило, с таким расчетом, чтобы в изо ражении попадали проемы окон, наружных ворот и дверей. По участкам, осо енности которых не выявлены в основных разрезах, приводят местные (дополнительные) разрезы.

Проемы, лестницы, подъемно-транспортное оборудование изображают условными обозначениями. Железнодорожные пути на разрезах не показывают.

Наружные стены подвалов изображают контуром. На разрезах зданий без подвалов показывают только фундаментные балки или верх ленточных фундаментов. Пол на грунте изображают одной сплошной основной линией, пол по перекрытию кровлю одной сплошной тонкой линией независимо от числа слоев в их конструкции. Конструкцию покрытия указывают в выносной надписи как для многослойной конструкции.

Из видимых элементов на разрезах показывают только находящиеся непосредственно за плоскостью разреза колонны, фермы, балки, подъ- емно-транспортное оборудование, открытые лестницы и площадки.

Допускается использование разрезов в качестве фасадов внутренних стен.

На разрезы наносят: разбивочные оси; отметки уровня земли, чистого пола этажей и площадок; отметку низа несущих конструкций по-

20