Материал: 1845

Внимание! Если размещение файла нарушает Ваши авторские права, то обязательно сообщите нам

м 140

17,52

1,13 1 1,3.

397,5

 

 

93,45

Тогда условие устойчивости плоской формы деформирования будет иметь вид

29345,24 100

140 1,1;

1,3 25470,96

 

88,63 кгс/см2 < 154 кгс/см2 .

Условие выполняется, устойчивость плоской формы деформирования обеспечена с постановкой связей в середине пролета балки и в ¼ пролета. Резерв 42,4%.

Расчет балки по второй группе предельных состояний

Момент инерции конькового сечения

 

И

 

 

 

 

 

bh3

 

17,5 93,453

 

 

Jк

 

 

о

 

 

 

 

 

 

 

 

= 1 190 130,87см4;

 

12

 

 

 

12

 

 

 

 

 

 

 

 

 

 

 

 

 

 

 

 

 

 

 

 

 

 

 

 

 

 

 

 

 

 

Е=100000 кгс/см2.

 

Прогиб, определенный по формулам строительной механики без учета

сдвиговых деформаций:

 

 

 

 

 

 

А

 

 

 

 

 

 

 

 

 

 

 

 

 

 

 

 

 

 

 

 

 

 

 

 

 

5

 

 

qн

lp4

 

 

 

5

 

 

 

705,1 15904

 

 

 

 

 

 

 

 

 

 

 

 

 

 

 

 

 

 

f0

 

 

 

 

б

 

 

 

 

 

4,9

см;

 

384 Eд

J

к

 

 

384 100Д100000 1190130,89

 

 

 

 

 

 

 

 

 

 

 

 

 

 

 

 

 

 

 

 

 

 

 

 

 

 

 

 

 

k 0,15

 

 

 

h0

 

 

 

 

 

 

 

 

 

 

 

 

 

 

 

 

 

 

 

 

 

 

0,85

;

 

 

 

 

 

 

 

 

 

 

 

 

 

 

 

 

 

 

hк

 

 

с коэффициент, уч тывающ й влияние деформаций сдвига от поперечной

С

 

 

 

 

силы. Принимается по СП [1, табл. Е3 прил. Е].

 

и

 

h0

 

 

c 15,4

3,8

 

.

 

 

h

 

β = ho/hк= 40,45 / 93,45 = 0,43.

Коэффициент, учитывающий деформации сдвига от поперечной силы:

с = 15,4+3,8β; с = 15,56.

Коэффициент, учитывающий влияние переменности высоты балки: k = 0,15+0,85β; k =0,52.

ff0 k

 

 

h

 

 

 

c

 

0

1

 

 

 

lp

 

 

 

 

 

2

 

 

 

4,9

 

 

 

40,45

2

 

 

 

 

 

 

 

 

 

 

 

 

,

 

 

 

 

 

 

 

 

f

 

1

15,56

 

 

 

 

 

 

9,52 см;

 

 

 

 

 

 

 

 

0.52

 

 

 

1590

 

 

 

 

 

 

 

 

 

 

 

 

 

 

 

 

 

 

 

f

 

9,52

0,0059 ;

f

 

1

0,004;

 

 

 

 

 

 

 

l

1590

 

250

 

 

l

 

 

 

 

 

 

0,0059 > 0,004.

 

 

36

Принятое коньковое сечение балки требованиям второй группы предельных состояний не удовлетворяет, необходимо увеличить поперечное се-

чение балки. Тогда коньковое сечение балки

h'

= 94,71 см. Сечение балки на

 

 

 

 

 

 

к

 

опоре h'

= 41,72 см.

 

 

 

 

 

 

o

 

 

 

 

 

 

 

 

J к

bh3

 

17,5 94,713

 

 

 

 

о

 

=1 238 923 см4;

 

12

12

 

 

 

 

 

 

β = ho/hк= 41,72 / 94,71 = 0,44.

Коэффициент, учитывающий деформации сдвига от поперечной силы:

с = 15,4+3,8β; с = 17,07.

Коэффициент, учитывающий влияние переменности высоты балки: k = 0,15+0,85β; k =0,52.

Прогиб, определенный по формулам строительной механики без учета сдвиговых деформаций:

f0

 

5

 

 

 

qн

lp4

 

 

5

 

 

705,1 15904

 

 

=3,13 см;

 

 

 

 

 

 

 

 

 

 

 

 

 

 

 

 

 

 

 

 

 

 

 

 

384 E

J

к

384 100 100000 1238923

 

 

 

 

 

 

 

 

 

д

 

 

 

 

 

 

 

 

 

 

 

 

 

 

 

 

 

 

 

 

 

 

 

 

 

 

 

 

3,13

 

 

 

 

 

94,71

2

 

 

 

 

 

 

 

 

 

 

f

 

 

 

 

 

1

17,07

 

И

 

 

 

 

 

 

 

 

 

 

 

 

 

 

 

 

 

 

 

 

 

 

 

 

 

 

0,52

 

 

 

 

 

1590

 

=6,3 см;

 

 

 

 

 

 

 

 

 

 

 

 

 

 

 

 

 

 

 

 

Дf

 

 

 

 

 

 

 

 

 

 

 

 

 

 

 

б

 

 

1

 

 

 

 

 

 

 

f

 

 

 

 

6,3

 

 

 

 

 

 

 

 

 

 

 

 

 

 

 

 

 

 

 

 

 

 

 

0,00396 ;

 

 

 

 

 

0,004

;

 

 

 

l

 

 

 

 

1590

 

 

 

 

 

 

 

 

l

250

 

 

 

 

 

 

и

 

А0,00396 < 0,004

 

 

 

 

С

 

 

 

 

 

 

 

 

 

 

 

 

 

 

 

 

 

 

 

 

 

 

 

 

Принятое сечен е балки требованиям второй группы предельных состояний удовлетворяет. Резерв 1%.

37

Рис. 27. Поперечное сечение колонны

3.

ПРОЕКТИРОВАНИЕ ДОЩАТО-КЛЕЕНЫХ КОЛОНН ПОПЕРЕЧНОЙ РАМЫ ОДНОЭТАЖНОГО ЗДАНИЯ

3.1. Составление расчетной схемы двухшарнирной поперечной рамы и определение усилий в колоннах

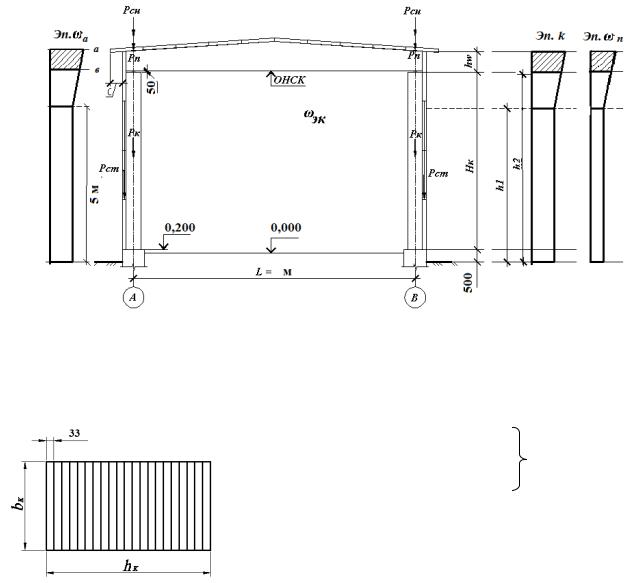
Схема поперечника показана на рис. 26. Расчетная схема поперечника представляет двухшарнирную П-образную раму. Стойками рамы являются колонны, защемленные в фундаментах, а ригель – условно недеформируемая стропильная балка, шарнирно опертая на колонны.

 

 

И

 

 

 

 

 

Д

 

 

 

 

 

 

 

 

 

 

А

 

 

 

 

 

 

 

 

 

 

Р с. 26. Конструктивная схема поперечной рамы

 

С

 

 

 

 

 

 

 

 

 

 

 

При подсчете расчетныхбнагрузок на раму используем разрез и план

здания. Шаг рам В = 4,5 м, свес карниза C = 0,5 м. Поперечное сечение ко-

лонны (рис. 27) определимииз системы

 

 

 

 

 

 

 

 

 

 

 

 

 

 

1

 

 

1

 

 

 

 

hк

 

 

 

 

 

 

Hк

;

(49)

 

 

12

 

 

 

 

 

 

 

 

25

 

 

 

hк

5bк .

 

 

 

 

 

Ширину поперечного сечения колонн необходимо принять равной ширине поперечного сечения балки: bк = bб = 17,5 см. Предварительно высоту поперечного сечения колонны находим из первого уравнения системы (49).

Полученное значение высоты поперечного сечения колонны корректируют в сторону

увеличения, разложив по доскам, с учетом сортамента пиломатериалов

(см.рис. 27).

38

3.2. Сбор нагрузок на раму

Ниже приведена методика сбора нагрузок на раму. Обозначения, использованные в данном подразделе, приведены на рис. 26.

Постоянные:

 

 

 

 

 

 

 

 

 

 

 

 

 

 

 

 

 

 

 

 

 

 

 

 

 

 

 

 

 

 

 

 

1.

Нагрузка от собственного веса плиты:

 

 

 

 

 

 

 

 

 

нормативная:

 

н

 

 

 

 

 

 

 

L

 

 

 

 

 

 

 

 

 

 

 

;

 

 

 

 

Р

 

 

qпл

 

 

 

 

 

C

0.5hк cт

 

 

 

 

 

 

 

 

 

 

 

 

 

 

 

 

 

 

п л

 

 

 

 

 

 

2

 

 

 

 

 

 

 

 

 

 

 

 

 

 

 

 

 

 

 

 

 

 

 

 

 

 

 

 

 

 

 

 

 

 

 

 

 

 

 

 

 

 

 

 

 

 

 

 

 

 

расчетная:

Р

 

 

Рн

f

;

 

 

 

 

f

1,1

– для конструкций из дерева

 

 

 

 

пл

 

 

 

пл

 

 

 

 

 

 

 

 

 

 

 

 

 

 

 

 

 

 

 

 

 

 

 

в соответствии с СП [2, табл. 7.1 ].

 

 

 

 

 

2.

Нагрузка от собственного веса рулонной кровли:

 

 

 

нормативная: Рн

 

0.07 Рн ;

 

 

 

 

 

 

 

 

 

 

 

 

 

 

 

 

 

рул

 

 

 

 

 

 

 

 

 

 

 

 

 

пл

 

 

 

 

 

 

 

 

 

 

 

 

 

 

расчетная:

Р

 

 

0.07 Р .

 

 

 

 

 

 

 

 

 

 

 

 

 

 

 

 

рул

 

 

 

 

 

 

 

 

 

 

 

 

пл

 

 

 

 

 

 

 

 

 

 

 

 

 

3.

Нагрузка от собственного веса балки:

 

 

 

 

 

 

 

 

 

 

нормативная: Рн

 

 

hт hк

 

b

L

 

 

,

где

 

 

550

кгс/м3;

 

 

 

 

 

др

др

 

 

 

 

 

б

 

 

 

 

 

2

 

 

 

 

 

 

 

 

б

 

2

 

 

 

 

 

 

 

 

 

 

расчетная:

Р Рн

f

;

 

 

 

f

 

 

1,1 .

 

 

 

 

 

 

 

 

 

 

 

 

 

б

 

 

б

 

 

 

 

 

 

 

 

 

 

 

 

 

 

 

 

 

 

 

 

 

 

 

 

4.

Суммарная нагрузка от веса конструкций покрытия:

 

 

 

нормативная: Рн

 

Рн

 

 

Рн

Рн ;

 

 

 

 

 

 

 

 

 

 

 

 

покр

 

 

пл

 

 

 

 

 

 

 

рул

 

 

 

б

 

 

 

 

 

 

 

 

 

 

 

 

 

 

 

 

 

 

 

 

 

 

 

 

 

 

 

 

 

 

И

 

 

 

 

 

 

 

 

 

 

А

 

 

 

 

 

 

расчетная: Р

Рпл

 

 

Ррул

Рб

.

 

 

 

 

 

 

 

покр

 

 

 

 

 

 

 

 

 

 

 

 

 

 

 

 

 

 

 

 

 

 

 

 

 

 

 

 

 

 

 

5.

Нагрузка от собственного веса колонны:

 

 

 

 

 

 

 

 

б

 

 

 

 

 

 

ДН , где

 

550 кгс/м3;

 

нормативная:

Рн

 

h

b

др

 

 

 

 

к

 

 

 

 

к

 

 

 

к

 

 

 

 

 

к

 

др

 

 

 

 

 

 

 

 

 

 

расчетная:

Р Рн

 

 

 

;

 

 

 

 

 

 

 

1,1 .

 

 

 

 

 

 

 

 

 

и

 

 

к

 

 

 

f

 

 

 

 

 

 

 

 

 

 

f

 

 

 

 

 

 

 

 

 

 

 

 

 

 

к

 

 

 

 

 

 

 

 

 

 

 

 

 

 

 

 

 

 

 

 

 

 

 

 

 

 

6.

Нагрузка от веса стенового ограждения:

 

 

 

 

 

 

 

нормат вная: Pн

 

q

 

H

 

 

h B ;

 

 

 

 

 

 

 

 

 

С

 

ст

 

 

 

ст

 

 

 

 

 

 

 

 

к

 

 

w

 

 

 

 

 

 

 

 

 

 

 

 

 

 

 

 

 

 

 

 

 

 

 

 

 

 

 

 

 

 

 

 

 

 

 

 

 

 

 

расчетная:

Р

 

Рн

 

f

 

;

 

 

 

 

f

1,1 .

 

 

 

 

 

 

 

 

 

ст

 

 

 

 

ст

 

 

 

 

 

 

 

 

 

 

 

 

 

 

 

 

 

 

 

 

 

Временная длительно действующая нагрузка снеговая принята по СП

[2, п.10.1]:

 

 

 

 

 

 

 

 

 

 

 

 

 

 

 

 

 

 

 

 

 

 

 

 

 

 

 

 

 

 

 

 

 

 

 

 

 

 

 

н

 

 

 

 

 

 

 

 

 

L

 

 

 

 

 

 

 

 

 

 

 

 

 

нормативная :

Р

 

qсн

 

 

 

 

 

 

C 0,5hк

,

 

 

 

 

 

 

2

 

 

 

 

 

 

 

 

 

сн

 

 

 

 

 

 

 

 

 

 

 

 

 

 

 

 

 

 

 

 

 

 

 

 

 

 

 

 

 

 

 

 

 

 

 

 

 

 

 

 

 

 

 

 

 

 

 

 

 

 

 

где qсн – расчетное значение снеговой нагрузки, принятое по СП [2, табл. 10.1] в соответствии с заданным снеговым районом строительства;

расчетная: Рсн Рсн f ; f 1,4 по СП [2, п.10.2].

Кратковременная нагрузка ветровая

Нормативное значение ветрового давления на уровне земли 0 для заданного ветрового района принимается по СП [2, табл. 11.1], кгс/м2.

На высоте Z от поверхности земли (кгс/м2), согласно СП [2, п. 11.1.3], ветровое давление вычисляется по формуле

39

z = 0 k с,

(50)

где k – коэффициент, характеризующий изменение ветрового давления на высоте, принимаемый по СП [2, табл. 11.2]; с – аэродинамический коэффициент.

Значения аэродинамических коэффициентов, соответствующие профилю поперечника, определяются по СП [2, п.11.1.7]. Значения аэродинамических коэффициентов равны:

с наветренной стороны се = 0,8;

с подветренной се3 = – 0,6.

Для удобства построения эпюр ветрового давления по высоте поперечника, необходимо заполнить табл. 5.

 

 

 

 

 

 

 

 

 

 

 

 

 

 

 

Таблица 5

 

 

 

 

 

 

 

Определение коэффициента k

 

 

 

 

 

 

 

 

 

 

 

 

Высота над поверхно-

 

 

 

k

 

 

 

Примечание

 

 

 

 

стью земли Z, м

 

 

 

 

 

 

 

 

 

 

 

 

0 – 5

 

 

 

 

 

 

 

И

По таблице 6 [2]

 

 

 

 

 

 

 

 

 

 

 

 

 

 

 

 

 

 

 

10

 

 

 

 

 

 

 

 

 

 

 

По таблице 6 [2]

 

 

 

 

h1

 

 

 

 

 

 

 

 

 

 

 

По интерполяции

 

 

 

 

h2

 

 

 

 

 

 

 

 

 

 

 

По интерполяции

 

 

 

 

 

 

 

 

А

 

 

 

 

 

 

Ветровое давление с участков стен, расположенных выше верха колонн

(см. рис. 26), заменяем на сосредоточенные силы:

 

 

 

 

 

 

 

а б

 

 

 

Дс d

 

 

 

 

 

 

Wa

 

 

 

hт

 

оп и

Wп

 

hт оп ,

 

 

 

 

2

 

2

 

 

 

и

 

 

 

 

 

 

 

 

 

 

 

где а, б, с, d – ординаты эпюр с рис. 26; hт – высота балки в торце; оп 5 см –

толщина опорной центр рующей прокладки.

 

 

 

 

 

Активное и пасс вноебзначения нагрузки от ветрового давления (кгс/м)

необходимо определ ть по формулам:

 

 

B ;

(51)

 

q

а

k с

 

B

k 0.8

 

 

 

 

 

 

 

 

 

 

 

 

 

 

 

 

 

 

 

экв

0

 

f

 

 

0

 

 

f

 

 

 

 

 

qп

0 k с f B 0 k 0.6 f

B ,

(52)

 

экв

 

 

 

 

 

 

 

 

 

 

 

 

 

 

где f = 1,4 – коэффициентС

надежности по ветровой нагрузке, принят по СП

[2, п. 11]; B ширина грузовой площади, равная в данном случае шагу поперечных рам.

Активную и пассивную эпюры неравномерного ветрового давления z на участке от уровня земли до верха колонны заменяем на равномерные, эквивалентные, из условия равенства площадей эпюр. В результате проведенных исследований построим расчетную схему рамы (рис. 28).

40