Материал: 1845

Внимание! Если размещение файла нарушает Ваши авторские права, то обязательно сообщите нам

Конструктивное решение плиты:

1.Плита состоит из несущего каркаса и фанерных обшивок, соединенных

скаркасом водостойким клеем.

2.Деревянный каркас состоит из продольных, поперечных ребер и торцевых вкладышей. Поперечные ребра ставят минимум в два ряда в местах стыка листов фанерных обшивок.

3.Продольные и поперечные ребра дополнительно объединяются между собой обоюдоострыми гвоздями (основное соединение – клеевое). Продольные ребра и торцевые вкладыши дополнительно объединяются вклеенными арматурными стержнями для обеспечения пространственной жесткости плиты. Арматурные стержни, выходящие за боковую поверхность плиты, используют для:

строповки при монтаже;

закрепления плиты в проектном положении.

4.Плита в курсовом проекте является конструкцией отапливаемого здания, поэтому по нижней обшивке по слоюИпароизоляции уложен плитный утеплитель из несгораемых или трудносгораемых материалов (плиты минераловатные на синтетическом связующем).

5.Во избежание смещения утеплителяДпри транспортировании и монтаже его закрепляют прижимными брусками сечением 25 х 25 мм, соединяя их с каркасом гвоздямиА.

6.Для обеспечения проветривания между утеплителем и верхней обшивкой в поперечных ребрахби торцевых вкладышах предусмотрен продух

– отверстие диаметром минимум 30 мм.

7.Для повышенияипредела огнестойкости фанеру нижней обшивки дополнительно закрепляют к крайним продольным ребрам гвоздями с шагом 20С0 мм.

8.По крайним продольным ребрам с наружной стороны плиты предусмотрена постановка брусков трапециевидного сечения, образующих с одной стороны паз, с другой – гребень. Это позволяет:

выравнивать нижние плоскости плит, что повышает огнестойкость покрытия;

обеспечить совместную работу плит покрытия;

выполнить качественную герметизацию стыка.

1.3. Применяемые материалы

Продольные и поперечные ребра каркаса выполнены из цельных досок толщиной от 19 до 50 мм с последующей острожкой по кромкам и пластям из древесины хвойных пород II сорта по ГОСТ 8486 86 Е. Размеры поперечного сечения продольных ребер назначают по расчету.

6

Обшивка плиты выполнена из фанеры марки ФСФ по ГОСТ 391689 толщиной 6, 8, 9, 10, 12 мм и стандартными размерами листов 1525×1525 мм и 1220×1220 мм.

Для выполнения клеевых соединений использован клей синтетический марки ФРФ50.

В качестве утеплителя применены полужесткие минераловатные плиты по ГОСТ 1897384 плотностью γм.п = 75 кг/м3.

Для пароизоляции должна быть использована полиэтиленовая пленка по ГОСТ 1938782 толщиной 0,2 мм и плотностью γп/п = 0,02 кг/м3.

Для дополнительного соединения элементов каркаса плиты запроектированы стальные гвозди по ГОСТ 402873, а также горячекатаная арматурная сталь по ГОСТ 578182 диаметром Ø 10 мм класса А II и массой

0,62 кг/п.м.

 

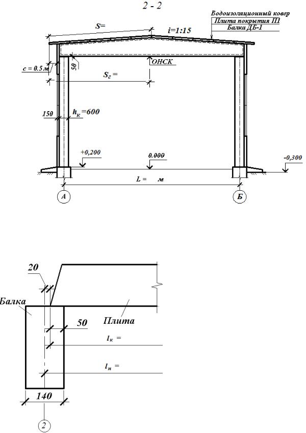
1.4. Назначение размеров плиты

 

 

 

 

 

 

 

 

И

 

Номинальные размеры плиты (м) в плане назначаются исходя из проле-

та здания L и шага стропильных балок (рис. 3, 4).

 

 

Номинальная длина плиты lн (м) равна шагу поперечных рам (см. рис.3).

 

 

 

 

 

lн В.

 

 

 

 

Предварительно высота поперечного сечения колонны hк

принята

600 мм, толщина стенового ограждения δст = 150 мм, свес с = 0,5 м.

 

 

б

 

 

 

 

 

Тогда горизонтальную проекциюДската Sг

(м) можно определить из со-

отношения

и

 

 

 

 

с .

 

 

 

 

 

 

 

 

 

S

г

0,5L 0,5h

к

 

ст

(1)

 

 

 

 

А

 

 

 

Величину ската (см. р с. 4) S (м) необходимо определить с учетом за-

 

С

 

 

 

 

 

 

 

 

 

данного уклона строп льной балки.

 

 

 

 

 

Максимально возможная номинальная ширина плиты bн лимитируется сортаментом фанеры и может быть максимально равна 1,5 м. Требуемое на

скат количество плит (см. рис. 4) nплит 1,5S шт. Полученное значение кор-

ректируется в сторону увеличения до целого числа nфакт . Тогда номинальная ширина плиты (м) определяется как bн S : nфакт .

При конструировании плиты необходимо учесть, что номинальная ширина плиты (м) может быть принята в пределах от 1,2 до 1,5 м.

1,2 bн 1,5 .

(2)

7

 

 

 

 

И

 

 

 

Д

 

 

А

 

 

б

 

 

и

 

 

 

С

 

 

 

 

Рис. 3. План здания

8

 

 

 

 

И

 

 

 

 

 

Рис. 4. Разрез 2 – 2

 

 

 

Конструктивные размеры плиты. При определении конструктивных

 

 

А

 

 

 

 

размеров плиты необходимо учесть, что древесина – материал, изменяющий

 

 

 

 

геометрические размеры в зависи-

 

 

 

Дмости от влажности воздуха, по-

и

 

 

этому необходимы зазоры между

 

 

 

 

 

 

 

б

 

смежными плитами 4 см (рис. 5).

С

 

Конструктивная ширина плиты

 

 

bк

bн 2 см.

(3)

 

 

 

 

 

 

 

Конструктивная длина плиты

 

 

 

 

 

lк

lн 4 см.

(4)

 

 

 

 

Расчетная длина плиты. При

 

 

 

 

определении

расчетной

длины

 

 

 

 

плиты ширина балки назначается

 

 

 

 

из условия опирания на нее плит

 

 

 

 

покрытия. Принимаем самый не-

 

 

 

 

выгодный

вариант. Минимальная

 

 

 

 

ширина опирания в конструкциях

Рис. 5. Опирание плиты на балку

 

из дерева равна 5 см + 2 см зазор

 

(см. рис. 5, 6).

 

 

 

 

 

 

 

 

Предварительно принята минимально возможная ширина балки,

равная

140 мм. Расчетная длина плиты lр назначается равной расстоянию между серединами площадок опирания (см. рис. 6):

9

l р lк 5 см.

(5)

1.5.1.Определение размеров поперечногоИсечения продольных ребер

Рис. 6. Схема для определения расчетной длины плиты

1.5. Компоновка поперечного сечения плиты

Предварительно принимаем продольныеДребра из досок толщиной bд=40 исходя из необходимости выполнения клеевого шва.

Ориентировочно высоту поперечного сечения продольных ребер назна-

тивный минимум. Минимально возможная высота поперечного сечения доски определяется из условия размещения всех конструктивных элементов плиты. Рассмотрим поперечное ребро плиты (рис. 7).

чают из условия (6), ориентируясь на сортамент пиломатериалов (приложе-

 

 

 

А

 

ние).

 

бhд = (1/25…1/30) lр.

 

 

 

(6)

При выборе поперечного сечения доски необходимо учесть конструк-

 

и

 

 

 

С

 

 

 

Рис. 7. Поперечное ребро каркаса плиты

Толщина утеплителя в проекте принята 70 мм, диаметр продуха назначен 30 мм. Расстояние от кромки поперечного ребра до продуха в соответствии с СП [1] принято равным диаметру продуха, т.е. 30 мм. Так как утепли-

10