Материал: Раб_чертеж

Внимание! Если размещение файла нарушает Ваши авторские права, то обязательно сообщите нам

ВВЕДЕНИЕ

Основной составной частью любой сборочной единицы является деталь. Деталью называют изделие, изготовленное из однородного по наименованию и марке металла, без применения сборочных операций. Примерами деталей могут быть валик, изготовленный из одного куска металла, болт, шпонка и т. п.

Основной целью задания является приобретение и совершенствование навыков создание эскизных рабочих чертежей, развитие пространственного представления о форме изделия, ознакомле­ние с приемами выполнения и оформления рабочего чертежа детали.

В настоящих методических указаниях изложены основные сведения, необходимые для оформления рабочего чертежа детали в соответствии с действующими стандартами. Учитывая, что некоторые стандарты пересмотрены в 2006 г. и эти изменения не нашли еще широкого от­ражения в справочной литературе, выполнение этого задания будет способствовать более быст­рому ознакомлению с новыми правилами выполнения чертежей и облегчит процесс усвоения этих правил студентами.

Для выполнения эскизного проекта студенту выдается индивидуальное задание – сборочное изделие ка­кого-либо узла или устройства. Объем выполняемых рабочих чертежей определяет преподаватель при выдаче задания.

1. Требования к рабочему чертежу детали

Чертеж детали - это документ, содержащий изображение детали и другие данные, не­обходимые для ее изготовления и контроля.

Рабочий чертеж детали должен содержать:

  1. исчерпывающие сведения о форме детали, т.е. содержать необходимые виды, разре­зы, сечения, выносные элементы и т.д.;

  2. все необходимые размеры: габаритные, присоединительные, размеры отдельных элементов детали, размеры для справок;

  3. предельные отклонения размеров от номинальных значений;

  4. сведения о шероховатости поверхностей детали;

  5. допуски на форму и взаимное расположение поверхностей;

  6. технические требования при изготовлении детали (термическая обработка, покрытие и т.д.);

  7. дополнительные данные, необходимые для изготовления и контроля детали (напри­мер, таблицы на чертежах зубчатых колес);

  8. особые требования к совместно обрабатываемым деталям;

  9. марку материала и ГОСТ на него;

  10. основную надпись по форме 1 в соответствии с ГОСТ 2.104-2006.

В связи с тем, что сведения, содержащиеся в пунктах 3-8, студенты изучают в самостоя­тельных дисциплинах «Допуски и посадки», «Технология машиностроения» и другие на рабочих чертежах деталей, выполняемых студентами 1 курса, их допускается не наносить.

Рабочий чертеж каждой детали выполняется на отдельном листе чертежного формата с соблюдением общих правил выполнения чертежей.

2. Общие правила оформления чертежей

2.1. Форматы, масштабы, линии

Форматом называются линейные размеры чертежей и другой технической документа­ции. Определяющими размерами чертежных форматов (ГОСТ 2.301-68) являются размеры внешней рамки, выполненной тонкой линией. Внутренняя рамка проводится сплошной основ­ной линией на расстоянии 20 мм от левой стороны внешней рамки и на расстоянии 5 мм от остальных сторон. Форматы подразделяются на основные и дополнительные. К основным форматам отно­сятся формат с размерами сторон 841x1189 мм, площадь которого приблизительно равна 1 м2, и остальные форматы, полученные путем последовательного деления предыдущего основного формата на две равные части параллельно его меньшей стороне (табл. 1). Дополнительные форматы образуются путем увеличения сторон основных форматов на величину, кратную раз­мерам сторон формата А4 (коэффициент увеличения - целое число).

Таблица 1. Основные чертежные форматы

Обозначение

АО

А1

А2

A3

А4

A5*

Размеры сторон, мм

841 х 1189

594 х 841

420 х 594

297 х 420

210 х 297

148 х 210

*Применяется по необходимости

Масштаб - это отношение линейного размера отрезка на чертеже к соответствующему линейному размеру того же отрезка в натуре.

Масштабы (ГОСТ 2.302-68) подразделяются на три группы: масштабы уменьшения, натуральную величину и масштабы увеличения (табл. 2).

Таблица 2. Масштабы изображений на чертежах

Масштабы уменьшения

1:2; 1:2,5; 1:4; 1:5; 1:10; 1:15; 1:20; 1:25; 1:40; 1:50; 1:75; 1:100; 1:200; 1:400; 1:500; 1:800; 1:1000

Натуральная величина

1:1

Масштабы увеличения

2:1; 2,5:1; 4:1; 5:1; 10:1; 20:1; 40:1; 50:1; 100:1

Обозначение масштаба состоит из прописной буквы М и масштабного соотношения, например М1:1, М1:2, М5:1 и т.д. При нанесении масштаба в основной надписи чертежа и при обозначении выносного элемента буква "М" не ставится.

Для изображений на рабочих чертежах предпочтительным является масштаб 1:1. Крупные и несложные детали можно вычерчивать в масштабе уменьшения, мелкие - в масштабе увеличения, добиваясь четкости и читаемости чертежа. Мелкие элементы деталей необходимо изображать отдельно в более крупном масштабе (например, с помощью выносного элемента), так как на вынесенном увеличенном изображении элемента легче показать его форму и более четко проставить размеры.

Линия является основным элементом чертежа. Для оформления чертежно-графической документации в зависимости от основного назначения линий (ГОСТ 2.303-68) установлены их соответствующие начертания и толщина (табл. 3).

Толщина всех типов линий устанавливается в соотношении с толщиной сплошной основной линии S, которая, в свою очередь, в зависимости от величины и сложности изображе­ния, а также от формата чертежа, должна быть в пределах от 0,5 до 1,4 мм. Толщина линий одного и того же типа должна быть одинакова для всех изображений на данном чертеже, вычерчиваемых в одинаковом масштабе. Рекомендуемая толщина сплошной основной линии - 1 мм.

Таблица 3. Типы линий и их назначение

Наименование линии

Начертание

Толщина

линии

Основное назначение

Сплошная основная

S

Линии видимого контура; линии перехода видимые; линии контура сечения, вынесен­ного и входящего в состав разреза

Сплошная тонкая

От S/3 до S/2

Линии контура наложенного сечения; раз­мерные и выносные линии; линии штри­ховки; линии-выноски; полки линий-выносок и подчеркивание надписей

Сплошная волнистая

От S/3 до S/2

Линии обрыва; линии разграничения вида и разреза

Штриховая

От S/3 до S/2

Линии невидимого контура; невидимые линии перехода

Штрихпунктирная тонкая

От S/3 до S/2

Осевые и центровые линии; линии сече­ний, являющихся осями симметрии для наложенных или вынесенных сечений

Штрихпунктирная утолщенная

От S/3 до S/2

Линии, обозначающие поверхности, под­лежащие термообработке; линии для изо­бражения элементов, расположенных перед секущей плоскостью

Разомкнутая

От S/3 до S/2

Линии сечений

Сплошная тонкая с изломом

От S/3 до S/2

Длинные линии обрывов

Штрихпунктирная тонкая с двумя точками

От S/3 до S/2

Линии сгиба на развертках; линии для изображения изделий в крайних или про­межуточных положениях; линии для изо­бражения развертки, совмещенной с видом

2.2. Шрифты, основные надписи

Необходимые надписи наносятся на чертежи и другую техническую документацию чертежным шрифтом (ГОСТ 2.304-81). Основным параметром шрифта является его размер, который определяется высотой прописных букв в мм: 2,5; 3,5; 5; 7; 10; 14; 20; 28; 40. На чертежах, выполненных карандашом, размер шрифта должен быть не менее 3,5. Рекомендуемый размер шрифта при нанесении размеров - 5, технических условий - 7.

Шрифты бывают двух типов: типа А и типа Б, различающихся отношением параметров шрифта (ширины букв, расстоянием между буквами, высотой строчных букв и т.д.) к его раз­меру. Все параметры шрифта типа А измеряются количеством долей, измеряемых 1/14 части размера шрифта, а типа Б - 1/10 части размера шрифта. Рекомендуется использовать наклон­ный шрифт, имеющий угол наклона около 75° к основанию строки (размер шрифта в этом слу­чае измеряется по перпендикуляру к основанию строки).

Основная надпись - это совокупность установленных характеристик изделия, занесенных в специальный штамп, который располагается в правом нижнем углу чертежа (ГОСТ 2.104-2006). На листах формата А4 основная надпись размещается всегда вдоль короткой стороны листа. Основные надписи, дополнительные графы к ним и рамки выполняют сплошными основными и сплошными тонкими линиями по ГОСТ 2.303-68.

Для оформления чертежно-конструкторской документации предусмотрено три формы основных надписей:

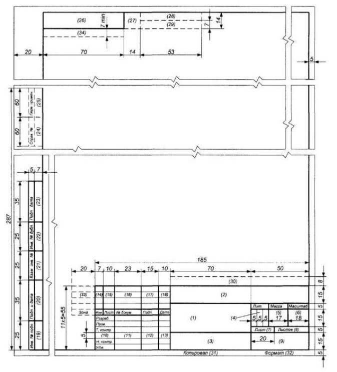
  1. основная надпись для первого листа чертежей и схем (форма 1, рис. 1);

  1. основная надпись для первого листа текстовых конструкторских документов (форма 2, ГОСТ 2.104-2006);

  2. основная надпись для последующих листов чертежей, схем и текстовых конст­рукторских документов (форма 2а, ГОСТ 2.104-2006).

Размеры строк и столбцов основной надписи указаны в ГОСТ 2.104-2006 и справочных пособиях по машиностроительному черчению.

В графах основной надписи и дополнительных графах (номер граф на форме показаны в скобках, рис.1) указывают:

в графе 1 - наименование изделия (в соответствии с требованиями ГОСТ 2.109-73), а также наименование документа, если этому документу присвоен код. Наименование изделия записывают в именительном падеже единственного числа. В наименовании, состоящем из нескольких слов, на первом месте помещают имя существительное, например: «Колесо зубчатое». В наименовании изделия не включают, как правило, сведения о назначении изделия и его местоположении. Для изделия народнохозяйственного назначения допускается не указывать название документа, если его код определен ГОСТ 2.102-68, ГОСТ 2.601-95, ГОСТ 2.602-95, ГОСТ 2.701-2008;

в графе 2 - обозначение документа по ГОСТ 2.201-80.;

в графе 3 - обозначение материала детали с указанием ГОСТа на этот материал (графу заполняют только на чертежах деталей);

в графе 4 - литеру, присвоенную документу (графу заполняют последовательно, начиная с крайней левой клетки);

Допускается для изделий народнохозяйственного назначения в рабочей конструкторской документации литеру проставлять только в спецификациях и технических условиях;

в графе 5 - массу изделия по ГОСТ 2.109-73;

в графе 6 - масштаб (проставляется в соответствии с ГОСТ 2.302-68 и ГОСТ 2.109-73);

в графе 7 - порядковый номер листа (на документах, состоящих из одного листа, графу не заполняют);

в графе 8 - общее количество листов (графу заполняют только на первом листе);

в графе 9 - наименование или различительный индекс предприятия, выпускающего документ наименование предприятия (например, КНИТУ, гр. 2211-52)(графу не заполняют если различительный индекс содержится в обозначении документа);

в графе 10 - характер работы, выполняемой лицом, подписывающим документ, в соответствии с формами 1 и 2. Свободную строку заполняют по усмотрению разработчика, например: "Начальник отдела", "Начальник лаборатории", "Рассчитал";

в графе 11 - фамилия лиц, подписавших документ:

в графе 12 - подписи лиц, фамилии которых указаны в графе 11.

Подписи лиц, разработавших данный документ и ответственные за нормоконтроль, являются обязательными.

При отсутствии титульного листа допускается подпись лица, утвердившего документ, размещать на свободном поле первого или заглавного листа документа в порядке, установленном для титульных листов по ГОСТ 2.105 -95.

Если необходимо на документе наличие визы должностного лица, то их размещают на поле для подшивки первого или заглавного листа документа;

в графе 13 - дату подписания документа;

в графе 26 - обозначение документа, повернутое на 180о для формата А4 и для формата больше А4 при расположении основной надписи вдоль длинной стороны листа и на 90о для формата больше А4 при расположении основной надписи вдоль короткой стороны листа;

в графе 32 - обозначение формата листа по ГОСТ 2.301-68.

Рис.1. Основная надпись по ГОСТ 2.104-2006