Материал: Проектирование электрической подстанции 110/10 кВ

Внимание! Если размещение файла нарушает Ваши авторские права, то обязательно сообщите нам

Данная ЗРУ СЭЩ «Самара» 110 кВ предназначена для приёма и распределения электрической энергии трёхфазного переменного тока промышленной частоты 50 Гц на напряжение 110 кВ.

Здание предназначено для размещение и защиты от внешних климатических факторов аппаратуры распределительного устройства.

Электроосвещение и силовое электрооборудование, а так же защитные мероприятия здания соответствуют требованиям действующих нормативных документов Российской Федерации. В ЗРУ СЭЩ «Самара» в качестве распределительного устройства на стороне высокого напряжения принято РУ 110 кВ.

Распределительное устройство 110 кВ из унифицированных транспортабельных блоков заводского изготовления, состоящих из металлического несущего каркаса со смонтированным на нем высоковольтным оборудованием и элементами вспомогательных цепей. Блоки разъединителей 110 кВ с двигательными приводами комплектуются (при наличии в заказе) шкафами дистанционного управления. Шкафы устанавливаются на стойки блоков (до 2-х шкафов на одну стойку).

Стойки блоков устанавливаются на металлические подставки, которые приварены к полу.

Жесткая и гибкая ошиновка

Ошиновка РУ 110 кВ выполнена трубами из алюминиевого сплава 1915 ГОСТ 18482-79, расположенными в один и два яруса, и сталеалюминиевым проводом.

Нижний ярус трубчатой ошиновки опирается на колонки аппаратов или опорные изоляторы, на нем установлены специальные надставки, на которых закреплена ошиновка верхнего яруса.

Конструкции узлов крепления жестких шин обеспечивают компенсацию температурных изменений длины шин, возможных неточностей в установке блоков.

Гибкая ошиновка применяется для выполнения коротких перемычек, отпаек, присоединения линейных вводов к РУ 110 кВ (внутри здания) и к силовым трансформаторам (снаружи здания).

Кабельные конструкции

На территории ЗРУ СЭЩ «Самара» кабели прокладываются в подвесных металлических лотках заводской поставки. Лотки закреплены на высоте 2 м от уровня планировки пола (в качестве опорных конструкций используются каркасы и стойки блоков РУ 110 кВ и специальные подставки, применяющиеся в больших пролетах). Подвесные металлические лотки не рассчитаны на прокладку в них бронированных кабелей и кабелей в алюминиевой оболочке. Проход кабелей от кабельной трассы в здание выполнен через технологические отверстия, которые расположены в полу (приложение В) или в стене (приложение Г) здания.

Прокладка кабелей выполняется согласно плану кабельной трассы и кабельного журнала проекта.

Здание

Здание выполняется из одной или нескольких отдельных секций, кабельные проходы между которыми закрыты козырьками. Несущие конструкции (каркас) здания - стальные и состоят из поперечных несущих рам, торцевых несущих (или самонесущих) фахверков и элементов их объединяющих: вертикальных и горизонтальных связей, распорок и прогонов.

Стеновое ограждение выполняется навесным из трехслойных панелей «сэндвич» со стальными облицовками и утеплителем из минеральной ваты на базальтовой основе. Кровля выполнена из трехслойных панелей «сэндвич» со стальными облицовками и утеплителем из минеральной ваты на базальтовой основе. Водоотвод с кровли наружный организованный. Над линейными вводами предусматриваются козырьки. В здании размещается необходимое для монтажа оборудования и проведения ремонтно-профилактических работ грузоподъемное оборудование (опорные или подвесные мостовые электрические краны, электрические тали). Электротехническое оборудование весом до 1 т на единицу оборудования устанавливается на металлический пол, под более тяжелое оборудование должны быть предусмотрены фундаменты.

В конструкциях каркаса используется сталь С255 и С245 ГОСТ 27772-88. В соответствии с указаниями СНиП21-01-97 и СНиП 31-03-2001 предусматриваются пожарные лестницы-стремянки на кровлю. Лестницы-стремянки выполняются с сухотрубом Ду=80 и пожарными гайками ГМ-80.

Тип и расположение окон, дверей и ворот согласно ТЗ. Пример конструктивного решения здания под РУ схемы 110-4Н (план, разрез, фасады) приведен в приложении В.

В здании размещается необходимое для монтажа оборудования и проведения ремонтно-профилактических работ грузоподъемное оборудование (опорные или подвесные мостовые электрические краны, электрические тали).

В здании применяется приточно-вытяжная вентиляция с механическим побуждением в объеме 2-х кратного воздухообмена в час.

Аварийная вытяжная вентиляция с механическим побуждением и автоматическим включением при повышении внутренней температуры более +35°C, рассчитана на пятикратный обмен воздуха в час.

Воздуховод системы, проложенный снаружи здания, утеплен минераловатным утеплителем. Оборудование и металлические воздуховоды всех систем заземлены согласно ПУЭ.

Охранно-пожарная сигнализация состав системы:

СИГНАЛ-ВК-4П;

датчик несанкционированного доступа;

датчик температуры для дистанционного измерения температуры

воздуха в помещениях;

пожарные датчики и аппаратура оповещения людей о пожаре.

Линейный ввод крепится к торцу здания в горизонтальном положении, выполнен с полимерной изоляцией.

Фундаменты под силовые трансформаторы состоят из плит НСП - 12а. Маслоприемники выполняются закрытыми на расстоянии 10 м от маслонаполненных объектов, маслосборники рассчитываются из условий размещения 100% масла. Ограждение маслосборных ям выполняется из плит УБК - 5. Вводы трансформатора уплотним.

На стороне НН устанавливаются КРУН, оборудование устанавливается в ячейках К-59. КРУН типа К-59 представляет собой отдельностоящий блок высоковольтных ячеек с коридором управления, шкаф TСH и шкаф ВЧ связи. Блок ячеек и шкафы ТСН, ТН и ВЧ связи устанавливаются на заглубленные или незаглубленные фундаменты. Заземление блока и отдельностоящих шкафов КРУН К-59 осуществляется путём приварки оснований блока и шкафов КРУН К-59 к контуру заземления. Металлические корпуса встроенного оборудования и металлические части КРУН имеют электрический контакт с каркасами распредустройств посредством или шинок заземления, или зубчатых шайб, или скользящих контактов.

Блок КРУН - это смонтированный на жёсткой раме металлический корпус, служащий защитной оболочкой, как высоковольтного оборудования, так и КРУН в целом. Блок разделён на высоковольтную часть и коридор управления. Нормальная работа КРУН типа К-59 при отрицательных температуpax и в условиях выпадения росы обеспечивается надёжным уплотнением всех соединений элементов оболочки, применением росоустойчивого оборудования, включая опорные и проходные изоляторы, а также применением автоматических устройств обогрева. Для повышения степени безопасности персонала при обслуживании КРУН вентиляционная перегородка (см. рис. 5, поз. 18 приложение Б) между высоковольтной частью и коридором управления выполнена с автоматически закрывающимися от потока газов жалюзями, исключающими выброс пламени в зону обслуживания при коротком замыкании в высоковольтных отсеках.

С целью уменьшения разрушающего воздействия избыточного давления газов при коротких замыканиях, для сброса избыточного давления газов внутри ячеек КРУ предусмотрено следующее:

крыши ячеек с воздушными вводами снабжены разгрузочными клапанами (см. рис. 5, поз. 16 приложение Б). Конструкция клапана представлена на . В остальных ячейках предусмотрена возможность отгибания верхней части листов крыши;

отсеки ввода и выкатной тележки имеют дифференциальный разгрузочный клапан (см. рис. 5, поз. 17 приложение Б), представляющий собой жёсткую перегородку, шарнирно закреплённую в нижней части и избирательно (в зависимости от места возникновения короткого замыкания) отклоняющуюся потоком газов. В исходное положение клапан возвращается вручную.

На территории ПС предусматривается асфальтная дорога для проезда автомобилей шириной 4 м, а для дежурного персонала предусматривается устройство пешеходных дорожек [согласно нормативам СО 153-34.20.122-2009]. На подстанции имеется также ремонтная площадка. Она выполнена из гравия.

Заключение

В данном курсовом проекте были решены все основные задачи по обеспечению надежного и бесперебойного электроснабжения потребителей. Оборудование не требуется постоянного присутствия обслуживающего персонала. Спроектированная подстанция отвечает всем современным требованиям в области электроэнергетики. Так как в проекте было ограничение по площади, компоновка оборудования производилась таким образом, чтобы свести к минимуму занимаемую площадь подстанции. Для этого было применено на стороне ВН ЗРУ СЭЩ «Самара» версия 1.1 2014года разработки. КРУ НН выполнено на основе шкафов серии К-59 климатического исполнения ХЛ1 по причине высокой СЗА.

Блочное построение подстанции позволяет быстро заменить вышедшее из строя оборудование. Строительство подстанции занимает меньшее время.

Проект разработан в соответствии с действующими нормами и правилами.

Список использованных источников

1. Нормы технологического проектирования. Проектирование электроснабжения промышленных предприятий. 1-я редакция - М.: 1994. - 70 с.

. Рекомендации по технологическому проектированию подстанций переменного тока с высшим напряжением 35-750 кВ.

. Хорошилов Н. В., Методические указания для курсового проектирования. Курск.: 2010. - 48 с.

. ГОСТ Р 52736-2007. Короткие замыкания в электроустановках. Методы расчета электродинамического и термического действия тока короткого замыкания.

. СТО 56947007-29.240.30.010-2008. Схемы принципиальные электрические распределительных устройств подстанций 35-750 кВ. Типовые решения. - 132 с.

. Хорошилов Н. В., Комплектные распределительные устройства с выкатными аппаратами напряжением 6-35 кВ. Учебное пособие - Курск.: 2010. - 258 с.

. Неклепаев Б. Н. Электрическая часть электростанций - М.: Энергия, 1986. 640 с.

. Рожкова Л. Д., Козулин В. С. Электрооборудование станций и подстанций. Третье издание, переработанное и дополненное - М.: Энергоатомиздат, 1987. 646 с.

. ПУЭ. Издание седьмое. Утверждены приказом Минэнерго России от 08.07.2002 №204. - 330 с. ТИ-142 версия 1.1 ЗРУ 110 кВ

. Нормы технологического проектирования подстанций переменного тока с высшим напряжением 35-750 кВ (НТП ПС) 2009г.

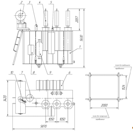
Приложение А

Рисунок 1. Эскиз трансформатора ТДН-25000/110

Таблица 1.


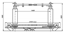
Приложение Б

Таблица 2. Технические характеристики разъединителя РГ-2-II-110/1000 У1

Наименование параметра

Значение параметра разъединителей при номинальном токе, А


1000

1600

2000

Номинальное напряжение, кВ

110

-

110

Наибольшее рабочее напряжение, кВ

126

126

126

Номинальный ток, А

1000

1600

2000

Ток электродинамической стойкости, кА

80

100

100

Ток термической стойкости, кА

31,5

40

40

Время протекания тока термической стойкости, с:


для главных ножей

3

3

3

для заземлителей

1

1

1

Номинальная частота тока, Гц

50

50

50

Испытательное одноминутное напряжение промышленной частоты, кВ:


относительно земли и между полюсами

230

230

230

между разомкнутыми контактами разъединителя

265

265

265

Испытательное напряжение грозового импульса 1,2/50 мкс, кВ:


относительно земли и между полюсами

550

550

550

между разомкнутыми контактами разъединителя

630

630

630

Минимальная длина пути утечки, см, для:


РГ-110

246

-

246

РГ-110II

339,5

339,5

339,5

Допустимая механическая нагрузка на выводы, кН

0,8

1

1

Толщина корки льда, мм

20

20

20


Рисунок 2. Разъединитель РГ-2-II-110/1000 У1

Комплектные распределительные устройства КРУН К-59

Общий вид КРУ К-59

Рисунок 3.

Рисунок 4.

Технические данные шкафа КРУ К-59:

Номинальное напряжение К-59, кВ - 6; 10.

Наибольшее рабочее напряжение, кВ - 7; 12.

Частота, Гц- 50.

Ток главных цепей, А - 630; 1000; 1600; 2000; 3150.

Номинальный ток сборных шин, А - 1000; 1600; 2000; 3150.

Ток термической стойкости, при времени протекания 3с., кА -31,5; 40

Номинальный ток электродинамической стойкости, кА -51; 81.

Номинальный ток вспомогательных цепей, В - пост. 110; 220; перем. - 110; 220.

Климатическое исполнение и категория размещения - ХЛ1.

Обслуживание - двухстороннее.

Наличие выкатных элементов - с выкатным; без выкатного.

Вид линейных присоединений - кабельный; шинный.


Таблица 3. Основные технические характеристики

наименование параметров

Величины

Класс точности при измерении  - активной энергии  - реактивной энергии

 0,5S или 1,0 1,0 или 2,0

Номинальное напряжение, В

3*57,7/100 или 3*230/400

Номинальный(макс) ток, А

5(7,5); 5(60); 10(100)

Максимальный ток в течении 0,5 с, А  - для IНОМ=5А  - для IНОМ=10А

 150 200

Стартовый ток (чувствительность), А  - для IНОМ(МАКС)=5(7,5)А, UНОМ=57,7 или 230В  - для IНОМ(МАКС)=5(60)А, UНОМ=230B  - для IНОМ(МАКС)=10(100)А, UНОМ=230B

 0,005 0,020 0,040

Активная / полная потребляемая мощность каждой параллельной цепью счетчика, Вт/ВА не более

0,5 / 7,5

Полная мощность, потребляемая цепью тока не более, В*А

0,1

Количество тарифов

4

Скорость обмена, бит/секунду: - по интерфейсу CAN и RS-485; - через инфракракрасный порт; - через GSM модем;

300, 600, 1200, 2400, 4800, 9600 9600 9600

Передаточное число основного/поверочного выхода, имп/кВт,имп/кВар: для UНОМ 57,7 В, I НОМ 5 A  для UНОМ 220 В, I НОМ 5 A для UНОМ 220 В, I НОМ 10 A для UНОМ 220 В, I НОМ 5 A

  5000/160000 1000/32000 500/16000  1000/160000

Сохранность данных при перерывах питания, лет  - постоянной информации  - оперативной информации

 40 10

Защита информации

два уровня доступа и аппаратная защита памяти метрологических коэффициентов

Диапазон температур, °С

от -40 до +55

Межповерочный интервал,лет

10

Масса, кг

не более 1,5

Габариты (длина, ширина, высота), мм

258*170*74

Гарантия производителя, лет

3