Материал: Механизация перевозки контейнеров УКК-5 и проектирование складов

Внимание! Если размещение файла нарушает Ваши авторские права, то обязательно сообщите нам

∑Д =0,03(11 340 000 + 2 948 400 + 134 568 + 13 456 + 124 708 + 221 981)=

= 443 493 руб.

Годовые приведенные расходы по перегрузке груза:

Сп = 11 340 000 + 2 948 400 + 134 568 + 13 456 + 124 708 + 221 981+443 493

= 15 226 606 руб.

Себестоимость переработки груза - отношение всех затрат механизированной дистанции ПРР (МЧ, участка, площадки) к годовому объему перерабатываемых грузов. Себестоимость переработки груза - важнейший обобщающий показатель качества работы механизированной дистанции. В нем отображены конкретные условия её работы, техническое оснащение, технология и организация ПРР. Себестоимость переработки 1 т груза можно определить по формуле:

 = 50,75 руб/т.

.11 Годовые эксплуатационные расходы по хранению грузов на складе. Себестоимость хранения грузов

Годовые эксплуатационные расходы по хранению грузов на складе определяются по формуле:

Сх=∑Зх+∑Осн+∑Эо+∑Аскл+∑Эр скл,

где ∑Зх - расходы на основную и дополнит

ельную заработную плату работникам, занятым приемкой, хранением и отправление груза, руб.;

∑Осн - отчисления на социальные нужды;

∑Эо - годовые расходы на электроэнергию для освещения склада, руб.;

∑Аскл - амортизационные отчисления на полное восстановление складских сооружений и передаточных устройств, руб.;

∑Эр скл - расходы на содержание и ремонт складских сооружений и передаточных устройств, руб.

∑Зх=α3∙12∑РхСх,

где ∑РхСх -данные берем из таблицы 6;

Таблица 6

Ведомость работников склада

Должность

Количество

Оклад

∑ окладов

Зав складом

1

25 000

25 000

Бухгалтер

1

20 000

20 000

Приемосдатчики

3

15 000

45 000

Деж. электрик

3

12 000

36 000

Деж. слесарь

3

12 000

36 000

Охрана

3

14 000

42 000

Итого



204 000


∑Зх=1,5∙12∙204 000 = 3 672 000 руб.

Отчисления на социальные нужды принимаются в размере 26% от заработной платы:

∑Осн=0,26∙∑Зх;

∑Осн = 0,26∙3 672 000 = 954 720 руб.

Расходы на электроэнергию, руб:

,

где  - мощность светильников, кВт;

 - время работы светильников в течение года для средней полосы, ч;

 - себестоимость электроэнергии, руб/кВт;

 - число светильников

 ,

где  - номинальный световой поток электролампы, зависящий от её мощности, типа светильника и напряжения осветительной сети;

 - требуемый световой поток, лм.

Требуемый световой поток определяется по формуле:

,

где  - нормируемая освещенность, лк (принимаем равной 10 лк);

 - площадь освещаемой территории (склада), Fскл =3818 м2;

 - коэффициент запаса, учитывающий ослабление свечения ламп и

загрязнения арматуры (для открытых площадок );

 - отношение средней освещенности к минимальной (

 - коэффициент использования светового потока, 0,25.

 = 245 879 лм.

Для освещения склада применяются лампы Г-220-1000, мощностью 1000 Вт, световой поток  которых составляет 18600 лм.

Определим потребное количество светильников:

 = 14 шт.

Расходы на электроэнергию составляют, таким образом:

 1· 2920 · 14 · 1,5 = 61320 руб.

Амортизационные отчисления:


где  - капитальные затраты на различные сооружения и передаточные устройства, руб.;

 - нормы амортизационных отчислений на полное восстановление складских сооружений и передаточных устройств, %;- число сооружений и передаточных устройств;

∑Аскл= 0,01 (2 451 156 ∙ 2 + 79 929 ∙ 4,2 + 399 645 ∙ 4 + 199 823 ∙ 3,2 +

+ 133 215 ∙ 2+ 1 278 864 ∙ 5) = 173729 руб.

Расходы на содержание и ремонт складских сооружений и передаточных устройств принимаются в размере 5,9 % от их стоимости:

∑Эр скл=0,059∑Кскл;

∑Эр скл=0,059(9 915 048 + 275 418 + 1 377 090 + 688 545 + 459 030 +

+ 4 406 688) = 834 070 руб.

Таким образом, годовые эксплуатационные расходы по хранению грузов на складе составляют:

Сх = 3 672 000 + 954 720 + 61320+ 173 729 + 834 070 = 5 695 839 руб.

Себестоимость хранения 1 т груза (удельные косвенные расходы):

= 18,98 руб/т.

Приведенные годовые расходы:

З = Сгод + Ен∙К,

гдеЕн - нормативный коэффициент капитальных вложений, Ен=0,15.

З = 17 922 445 + 0,15 ∙ 7 051 802= 18980215 руб.

Удельные приведенные годовые расходы:

63,26 руб/т.

2.ПРОЕКТИРОВАНИЕ СКЛАДА ДЛЯ ХРАНЕНИЯ КОНТЕЙНЕРОВ ПРИ ИСПОЛЬЗОВАНИИ МОСТОВОГО КРАНА

.1 Характеристика погрузочно-разгрузочной машины

Мостовым краном называется грузоподъемная машина, содержащая подвижную стальную конструкцию - мост, которая подвешивается или опирается на надземный крановый путь. Мостовые краны обеспечивают перемещение груза в трех взаимно перпендикулярных направлениях и не занимают полезной площади помещения, так как располагаются на определенной высоте от уровня пола. Они применяются для внутри складского и внутрицехового транспортирования грузов, а также на открытых грузовых площадках при перегрузке тяжеловесных грузов.

В таблице 7 представлены технические характеристики мостового крана.

Таблица 7

Технические характеристики мостового крана с пролетом 32 м.

Параметр

Значение

Грузоподъемность, т

5

Длина пролета, м

20…32

Высота подъема крюка, м

16

Скорость подъема груза, м/с

0,33

Скорость передвижения, м/с

0,833

Скорость передвижения тележки, м/с

0,67

Суммарная мощность, кВт

54,2

Оптовая цена, руб

710 000


.2 Компоновка склада

Определение допустимой ширина сектора и количества контейнеров в ряде

Допустимая ширина сектора , м, рассчитывается по формуле:

,

где - пролет крана,  = 32 м;

 - расстояние от эстакады крана,  м.

 = 32 - 2·2,45 - 5 = 22,1 м.

Количество контейнеров в ряде  шт., определяется по формуле:

 = 10 рядов.

Для того чтобы выполнялось условие , принимаем число рядов = 10 шт.

Тогда фактическая ширина сектора B, м, рассчитывается по формуле:


где - ширина контейнера,  = 2,1 м;

 - зазор между контейнерами,  = 0,1 м.

В = (10·2,1) + 0,1(10-1) = 21,9 м.

Определение количества секторов

Количество секторов , шт. определяется по формуле:

,

где  - количество контейнеров на складе,  =277 шт.;

 - количество контейнеров в секторе, шт.


где = 2 - количество контейнеров по длине сектора, шт.

Длину сектора принимается длине 2 контейнеров + зазор между ними 0,1 м, тогда Lсек = 5,4 м

 = 10 · 2 = 20 шт.;

 = 13 секторов.

Определение длины склада

Длина склада , м, определяется по формуле:

,

где  - длина сектора, = 5,4 м;

 - количество секторов,  = 13 шт;

 - ширина проходов,  = 1 м;

 - количество проходов,  = 13 - 1 = 12 шт;

 - предохранительный запас по краям площадки,  =10 м.

= 5,4 · 13 + 1 · 17 + 2 · 10 = 108 м.

Определение площади склада

Площадь склада, Fскл, м2, определяется по формуле:

,

где- длина склада;

 - ширина склада.

 = 108 · 36 = 3888 м2.

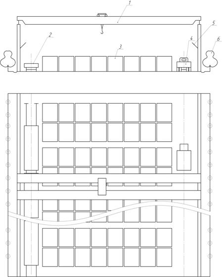
Исходя из длины, ширины склада, а также количества секторов строится компоновка склада в произвольном масштабе (рис. 3.).

Рис. 3. Схема перегрузки контейнеров УКК-5 с помощью мостового крана:

- мостовой кран L = 32 м; 2 - платформа; 3 - контейнер; 4 - автомобиль;

- освещение; 6 - зеленые насаждения

2.3 Определение количества погрузочно-разгрузочных машин

Минимально необходимое количество погрузочно-разгрузочных машин Zпрм, для обслуживания склада с заданным грузооборотом определяем по формуле:

 ,

где = 1,7 - коэффициент, учитывающий увеличение объема перегружаемого груза при его погрузке-выгрузке при складской переработке груза (рис. 1);

 - эксплуатационная производительность погрузочно-разгрузочной машины, т/ч;

 - количество смен работы в сутки, принимаем 2;

- продолжительность рабочей смены, равна 12 ч.

Эксплуатационную производительность погрузочно-разгрузочных машин Пэ, т/ч, определяем по формуле:

,

где Gг= 5 - масса груза, перегружаемая машиной за один цикл, т;

 - коэффициент использования машины по времени;

Тц - продолжительность рабочего цикла, с.

Продолжительность рабочего цикла погрузочно-разгрузочной машины

Тц, с, определяется по формуле:

,

где - время, затрачиваемое на застропку груза, = 29 с.;

 - время, затрачиваемое на отстропку груза,  = 23 с.;

 - время, затрачиваемое на наведение захватного устройства соответственно над грузом при его застропке и над штабелем при отстропке груза, . = 5 с;  = 5 с;