Материал: Механизация перевозки контейнеров УКК-5 и проектирование складов

Внимание! Если размещение файла нарушает Ваши авторские права, то обязательно сообщите нам

Механизация перевозки контейнеров УКК-5 и проектирование складов

РОСЖЕЛДОР

Федеральное государственное бюджетное образовательное учреждение

высшего профессионального образования

«Ростовский государственный университет путей сообщения»

(ФГБОУ ВПО РГУПС)

Кафедра «Эксплуатация и ремонт машин»



КУРСОВАЯ РАБОТА

по дисциплине:

«Транспортно-грузовые системы»

на тему:

«Механизация перевозки контейнеров УКК-5 и проектирование складов»











Ростов-на-Дону

г

РЕФЕРАТ

Пояснительная записка содержит 45 листов, 10 таблиц, 3 рисунка, 4 библиографических источника.

СКЛАД, ГРУЗОПОТОК, КОМПЛЕКСНАЯ МЕХАНИЗАЦИЯ, КОЗЛОВОЙ КРАН, МОСТОВОЙ КРАН, КОНТЕЙНЕР, ПЛАТФОРМА

В курсовом проекте разработано и проведено сравнение складов по перегрузке универсальных контейнеров УКК-5 козловым и мостовым кранами. В ходе проделанной работы были рассчитаны площадь склада, определено количество погрузочно-разгрузочных машин обслуживающих склад, количество платформ подаваемых на склад и время их простоя под разгрузкой, количество автомобилей. Были определены капитальные вложения в активные и пассивные фонды, годовые приведенные расходы на содержание склада и перегрузку груза. В результате был выбран оптимальный вариант по минимальным годовым приведенным расходам. Оптимальным является вариант механизации перегрузки контейнеров мостовым краном с грузоподъемностью 5 т.

СОДЕРЖАНИЕ

ВВЕДЕНИЕ

. ПРОЕКТИРОВАНИЕ СКЛАДА ДЛЯ ХРАНЕНИЯ КОНТЕЙНЕРОВ

ПРИ ИСПОЛЬЗОВАНИИ КОЗЛОВОГО КРАНА

.1 Характеристика груза и способов его

.2 Характеристика погрузочно-разгрузочной машины

.3 Выбор грузозахватного устройства

.4 Определение суточного грузооборота и емкости склада

.5 Компоновка склада

.6 Определение количества погрузочно-разгрузочных машин

.7 Определение количества и типа вагонов

.8 Выбор марки автомобиля и расчет их количества

.9 Расчет капитальных вложений

.10 Годовые эксплуатационные расходы по переработке грузов. Себестоимость переработки грузов

.11 Годовые эксплуатационные расходы по хранению грузов на складе. Себестоимость хранения грузов

. ПРОЕКТИРОВАНИЕ СКЛАДА ДЛЯ ХРАНЕНИЯ КОНТЕЙНЕРОВ

ПРИ ИСПОЛЬЗОВАНИИ МОСТОВОГО КРАНА

.1 Характеристика погрузочно-разгрузочной машины

.2 Компоновка склада

.3 Определение количества погрузочно-разгрузочных машин

.4 Определение количества и типа вагонов

.5 Расчет капитальных вложений

.6 Годовые эксплуатационные расходы по переработке грузов. Себестоимость переработки грузов

.7 Годовые эксплуатационные расходы по хранению грузов на складе. Себестоимость хранения грузов

. ТЕХНИКА БЕЗОПАСНОСТИ И ОХРАНА ТРУДА

ЗАКЛЮЧЕНИЕ

Список используемых источников

 перевозка контейнер склад

ВВЕДЕНИЕ

Переход к рыночной экономике требует более рационального подхода к перевозке всеми видами транспорта. Транспорт связывает пространственно отдельные предприятия, различные отрасли, районы в единое целое. Перевозочный процесс сопровождается двумя перевозочными операциями: погрузкой груза в транспортное средство и выгрузкой из него. Участие в перевозке грузов различных видов транспорта увеличивает число перегрузочных операций и требует наличия складов для хранения грузов в ожидании транспортных средств. В результате этого затраты на транспортирование и стоимость груза увеличиваются в несколько раз.

Железнодорожный транспорт оснащается более совершенными погрузочно-разгрузочными машинами, вводятся в эксплуатацию мастерские для технического обслуживания и ремонта машин.

обеспечение погрузки-выгрузки вагонов и автомобилей на станциях с наименьшими затратами трудовых, материальных и финансовых ресурсов, повышение уровня механизации трудовых процессов;

совершенствование системы организации погрузочно-разгрузочных машин и механизмов и полное их использование;

сокращение времени простоя вагонов и автомобилей под погрузкой-выгрузкой;

концентрация выгрузки грузов на меньшем количестве станций и специализация мест выгрузки на грузовых дворах;

обеспечение при погрузке-разгрузке надлежащего складирования грузов и их сохранности;

внедрение передовой технологии в организацию погрузочно-разгрузочных работ, обеспечение своевременного ремонта грузоподъемных машин и механизмов;

повышение производительности труда, рентабельности производства;

снижение себестоимости переработки грузов.

1. ПРОЕКТИРОВАНИЕ СКЛАДА ДЛЯ ХРАНЕНИЯ КОНТЕЙНЕРОВ ПРИ ИСПОЛЬЗОВАНИИ КОЗЛОВОГО КРАНА

.1 Характеристика груза и способов его хранения

Контейнерная транспортная система перевозок грузов предусматривает их доставку от отправителя до получателя в специальных емкостях, называемых контейнерами и представляющих собой съемный кузов подвижного состава или часть его, предназначенную для перевозок грузов без тары, в первичной упаковке или в облегченной таре железнодорожным, автомобильным, водным и воздушным транспортом.

Специальные контейнеры в основном принадлежат промышленным предприятиям и используются ими для доставки сырья, полуфабрикатов и продукции. Все специальные контейнеры можно подразделить на следующие группы: открытые, закрытые, контейнеры - цистерны, изотермические контейнеры.

Покрытие площадок может быть асфальтовым, наиболее эффективно - асфальтобетонное. Продольный уклон допускается не менее 0,4 % и не более 6 %. По бокам площадки устраиваются дренажные канавы для отвода дождевых и талых вод и придают ей уклон от середины к краям при асфальтобетонном покрытии 2 %.

Контейнеры на площадке устанавливают дверьми друг к другу преимущественно повагонными комплектами. Зазоры между контейнерами 100 мм, между комплектами - 600..800 мм, а при переработке крупнотоннажных контейнеров 200 и 800…1000 соответственно. На площадке предусматривают противопожарные разрывы через каждые 100 м, поперечные заезды для автомобилей через каждые 19 м при работе с мостовыми кранами и 44 м - при работе с кранами на железнодорожном ходу. Ширина проездов и разрывов 4…5 м.

Для быстрого нахождения нужного контейнера на площадке устанавливают указатели с наименованием участков назначения контейнеров.

На грузовых станциях железных дорог, подъездных путях промышленных предприятий в речных и морских портах созданы контейнерные пункты для погрузки, выгрузки и сортировки, хранения, текущего ремонта контейнеров. На контейнерном пункте может быть одна или несколько площадок. Схема контейнерной площадки должна обеспечивать подачу платформ или полувагонов с наименьшим объемом маневровой работы, а также удобные заезды автотранспорта при завозе и вывозе контейнеров. У въезда на площадку вывешивают указатели её специализации, порядок завоза - вывоза контейнеров.

Каждый кран, работающий на площадке, прикрепляют для обслуживания одного или двух направлений. Районы работы строго ограничены, и краны не мешают друг другу. Между участками для разных направлений предусматривают промежуточные площадки, предназначенные для установки контейнеров, переходящих на другое направление.

Применение специальных контейнеров позволяет сохранить качество перевозимых грузов и уменьшить их потери, снизить себестоимость транспортных средств под грузовыми операциями.

Технические характеристики контейнера представлены в таблице 1.

Таблица 1

Технические характеристики контейнера УКК-5

Тип контейнера

Размеры, мм

Внутренний объем, м3

Собственная масса, кг


Длина

Ширина

Высота



УКК-5

2650

2100

2400

10,3

1100



1.2 Характеристика погрузочно-разгрузочной машины

Козловы́е кра́ны - краны мостового типа, мост (пролётные строения) которых установлен на опоры, перемещающиеся по рельсам, установленным на бетонные фундаменты <#"802549.files/image001.gif">, т:

,

где - заданный годовой грузооборот, = 300 000 т;

- коэффициент неравномерности прибытия груза, = 1,1;

- продолжительность простоя склада по метео- и другим причинам в течение года, = 30 сут.

986 т.

Емкость склада, , т, определяется по формуле

,

где = 2 сут. - срок хранения груза на складе;

 = 0,7 - коэффициент складируемости, учитывающий количество груза, подвергающееся складской переработке (рис. 1).



 

 

Рис. 1 - Технологическая схема переработки груза

скл = 986 · 2 · 0,7 = 1381 т.

Количество грузовых мест Zк, шт., определяется по формуле:


где Eскл = 4872 т - емкость склада;

= 5 т- масса брутто одного контейнера;

 = 277 шт.

1.5 Компоновка склада

Определение допустимой ширина сектора и количества контейнеров в ряде

Допустимая ширина сектора , м, рассчитывается по формуле:

,

где - пролет крана,  = 32 м;

 - расстояние от головки рельса,  м.

 = 32 - 2·1,5 = 29 м.

Количество контейнеров в ряде  шт., определяется по формуле:

 = 13 рядов.

Для того чтобы выполнялось условие , принимаем число рядов = 13 шт.

Тогда фактическая ширина сектора B, м, рассчитывается по формуле:


где - ширина контейнера,  = 2,1 м;

 - зазор между контейнерами,  = 0,1 м.

В = (13·2,1) + 0,1(13-1) = 28,5 м.

Определение количества секторов

Количество секторов , шт. определяется по формуле:

,

где  - количество контейнеров на складе,  =277 шт.;

 - количество контейнеров в секторе, шт.


где = 2 - количество контейнеров по длине сектора, шт.

Длину сектора принимается длине 2 контейнеров + зазор между ними 0,1 м, тогда Lсек = 5,4 м

 = 13 · 2 = 26 шт.;

 = 10 секторов.

Определение длины склада

Длина склада , м, определяется по формуле:

,

где  - длина сектора, = 5,4 м;

 - количество секторов,  = 10 шт;

 - ширина проходов,  = 1 м;

 - количество проходов,  = 10 - 1 = 9 шт;

 - предохранительный запас по краям площадки,  =10 м.

= 5,4 · 10 + 1 · 9 + 2 · 10 = 83 м.

Определение площади склада

Площадь склада, Fскл, м2, определяется по формуле:

,

где- длина склада;

 - ширина склада.

 = 83 · 46 = 3818 м2.

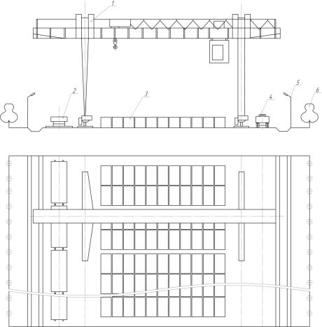
Исходя из длины, ширины склада, а также количества секторов строится компоновка склада в произвольном масштабе (рис. 2).

Рис. 2. Схема перегрузки контейнеров УКК-5 с помощью крана ККУ-7,5:

- крана ККУ-7,5; 2 - платформа; 3 - контейнер

- автомобиль МАЗ-533702; 5 - светильник; 6 - зеленые насаждения

.6 Определение количества погрузочно-разгрузочных машин

Минимально необходимое количество погрузочно-разгрузочных машин Zпрм, для обслуживания склада с заданным грузооборотом определяем по формуле:

 ,

где = 1,7 - коэффициент, учитывающий увеличение объема перегружаемого груза при его погрузке-выгрузке при складской переработке груза (рис. 1);

 - эксплуатационная производительность погрузочно-разгрузочной машины, т/ч;