Материал: МАШИНОВИКОРИСТАННЯ ТЕХНІКИ В ТВАРИННИЦТВІ ЧАСТИНА 2 ТДАТУ

Внимание! Если размещение файла нарушает Ваши авторские права, то обязательно сообщите нам

Монтаж скребкових транспортерів ТС-40С, ТС-40М, АПС60,01

Завод-виробник постачає транспортери у розібраному вигляді. Складання починають із встановлення кінцевої секції, яку кріплять до фундаменту приямка (рис. 13). Потім послідовно з'єднують останні секції. Зазори й виступи в місцях з’єднання секцій не допускаються. Транспортерні полотна ставлять у короби транспортерів зверху вниз за допомогою сталевого канату діаметром 6…8 мм. Складаючи транспортерне полотно, слід перевіряти правильність розміщення скребків залежно від напрямку руху транспортерів. Якщо кут похилу транспортерів становить понад 300, продукт потрапляє під скребки, нагромаджується під ними, піднімає скребки, погано переміщується вверх і пересипається через борти короба транспортера. Тому не рекомендується встановлювати скребкові транспортери під кутом понад 250.

а – ТС-40С; б – ТС-40М; 1 – дерев'яний щит; 2 – транспортер ТС-40С; 3 – шнек ШЗС-40; 4 – змішувач С-12; 5 – транспортер ТС-40М; 6 – шнек ШВС-40.

Рисунок 13 – Схема монтажу транспортерів.

Складання починають із встановлення кінцевої секції, яку кріплять до фундаменту приямка. Потім послідовно з'єднують останні секції. Зазори й виступи в місцях з’єднання секцій не допускаються. Транспортерні полотна ставлять у короби транспортерів зверху вниз за допомогою сталевого канату діаметром 6…8 мм. Складаючи транспортерне полотно, слід перевіряти правильність розміщення скребків залежно від напрямку руху транспортерів. Якщо кут похилу транспортерів становить понад 300, продукт потрапляє під скребки, нагромаджується під ними, піднімає скребки, погано переміщується вверх і пересипається через борти

168

короба транспортера. Тому не рекомендується встановлювати скребкові транспортери під кутом понад 250.

Місця проходів транспортерів через стіни необхідно закривати гумовими чи брезентовими фартухами. Після монтажу транспортери обкатують вхолосту протягом 1,5…2 години.

Монтаж шнекових транспортерів ШЗС-40 і ШВС-40

Шнекові транспортери постачаються заводами-виробниками складеними (рис.14,15).

1 – вивантажувальне вікно; 2 – мотор-редуктор; 3 – з’ємна кришка; – кожух; 5 – гвинт шнека; 6 – приєднальний фланець; 7 – приймальний бункер.

Рисунок 14 – Завантажувальний складальний шнек ШЗС-40.

1 – приймальний бункер; 2 – стояк; 3 – кожух; 4 – приєднальний фланець; 5 – з’ємна кришка; 6 – гвинт шнека; 7 – мотор-редуктор.

Рисунок 15 – Вивантажувальний складальний шнек ШВС-40.

169

Монтаж їх полягає у встановленні на робочі місця, з'єднанні з машинами й підключенні до електромережі. У кормоцехах інколи встановлюють секційні шнекові транспортери. Їх монтують так. Ставлять і кріплять редуктор з електродвигуном, приєднують до редуктора корпус шнека, і встановлюють шнек. При монтажі особливу увагу слід звертати на центрування валів. Биття валу шнека допускається не більше 1…2 мм, а не співвісність – не більше 0,5…0,8 мм. Зазор між внутрішньою поверхнею корпусу й робочими витками шнека по всій довжині повинен бути однаковим, у межах 0,01…0,015 діаметра шнека. Положення секцій кожуха перевіряють по наміченій осьовій лінії й по рівню.

Монтаж агрегату для приготування замінників молока АЗМ-

0,8

Агрегат АЗМ-0,8 постачають складеним. Монтаж його полягає в установці на робоче місце, підключенні технологічних трубопроводів, електропускового обладнання і випробування. Приміщення для агрегату АЗМ-0,8 обладнують водо- і паропроводами, каналізацією для змивання конденсату і води після промивання агрегату. Встановлювати агрегат потрібно так, щоб був вільний доступ до всіх вузлів із боку термометра й покажчика рівня. Ширина робочого майданчика повинна бути 1,5…2 м , а з боку завантажувального шнека – не менше 3 м.

Монтаж агрегату АПК-10

Агрегат із заводу постачають складеним. Його можна використовувати як для заготівлі силосу, так і для роботи в кормоцеху. Для встановлення агрегату біля силосних траншей споруджують горизонтальний майданчик вздовж траншей і підводять водопровід із розрахунковою витратою води 18…30 м3/год., а також будують водоймище-відстійник, у якому буде збиратися брудна вода з агрегату, відстоюватися й знову поступати на миття коренеплодів. Для відкачування з агрегату брудної води прокладають у неглибокому рівчаку гнучкий шланг.

При встановленні агрегату в кормоцеху передбачають між ним і стінами приміщення проходи 0,8…1 м та забезпечують вигідне завантаження бункера мийки, транспортера зелених кормів, і вивантаження готового корму. Підхід до агрегату з усіх боків

170

повинен бути вільним для здійснення технічного обслуговування, а приміщення світлим. Скид брудної води передбачають у каналізацію чи відстійник об'ємом 40…50 м3. Щоб вода у відстійнику не замерзала, його утеплюють. Відстояну воду можна декілька разів використовувати для миття коренеплодів.

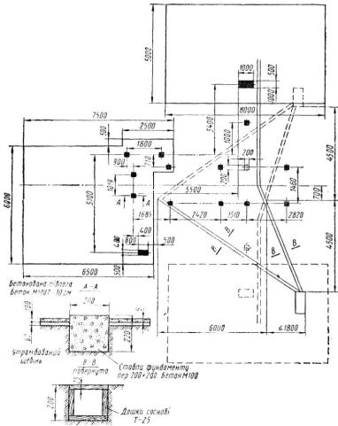
Монтаж агрегату АВМ-0,4

Агрегат встановлюють на підвищеному майданчику, ізольованому від стічних вод (рис.16). До майданчика підводять лінію електропередачі. Бажано будувати майданчик у центрі трав'яного масиву. Над бетонованим майданчиком встановлюють накриття. На відстані 50 м споруджують бетоновану підставку для цистерни з паливом.

Рисунок 16 – Схема фундаменту для агрегату АВМ-0,4.

При наявності твердого ґрунту можна замість бетону використовувати дерев'яні підкладки.

Для безпеки обслуговуючого персоналу металеві частини агрегату заземлюють.

171

Монтаж агрегату здійснюють у такій послідовності. До рами кріплять домкрати, піднімають її й вирівнюють. До нижньої частини циклона сухої маси приєднують дозатор з електродвигуном, редуктором та муфтою й кріплять його на рамі. Потім кріплять розтяжки циклона та опори. Верхній кінець трубопроводу маси з'єднують із вхідним патрубком циклона, а нижній – кріплять до рами й з'єднують із сушильною камерою за допомогою самопідтискних ущільнень. До вікна дозатора циклона кріплять вихідне вікно відбирача й з'єднують його з патрубком млина. Місця з'єднань ущільнюють гумовими прокладками. Якщо агрегат монтують у приміщенні, його обладнують вентиляцією. Вивантажувальний шнек із дозатором приєднують до циклона трав'яного борошна, і кріплять їх до рами. Приєднують розтяжки й опору шнека.

Один кінець трубопроводу системи відведення борошна з'єднують із вхідним патрубком циклона, а інший – з вихідним вікном дробарки. Встановлюють транспортер зеленої маси, прокладають електрокабель, під’єднують електродвигун та паливну апаратуру. Перевіряють агрегат на правильність обертання й відсутність сторонніх шумів. Пуск агрегату в роботу здійснюють на самому малому полум'ї форсунки, яке повинно горіти 15 хв. потім його гасять і через годину знову запалюють. Такий пуск необхідно здійснювати протягом 2…3 днів. На стаціонарних пунктах у спеціалізованих господарствах агрегати встановлюють у спеціально обладнаних приміщеннях. Монтаж агрегатів АВМ-1,5 та М-804/0- 1,5 аналогічний.

При монтажі агрегату М-804/0-1,5 можна встановлювати додатково лінію підготовки коренеплодів.

Монтаж обладнання для гранулювання трав'яного борошна (на прикладі ОГМ-1,5).

Таке обладнання монтують у закритих приміщеннях, на критих майданчиках поблизу агрегатів для приготування трав'яного борошна. Спочатку готують фундамент згідно зі схемою, наведеною в інструкції по експлуатації, а потім монтують складні одиниці й агрегати в такій послідовності. Встановлюють на фундамент гранулятор, а потім – бункер; з'єднують один кінець конічного редуктора з ворушилкою бункера; ставлять сортувалку й на її камеру дозування послідовно дві камери охолодження й одну приймальну,

172