Материал: Исследование востребованности молодых специалистов на рынке труда города Красноярска

Внимание! Если размещение файла нарушает Ваши авторские права, то обязательно сообщите нам

.5 Расчет искусственного освещения отдела анализа рынка труда и планирования


При организации рабочего места инспектора отдела важную роль следует уделить освещению. При малой освещенности работа инспектора будет протекать замедленно, зрение будет быстро утомляться. С другой стороны, соблюдение норм освещенности позволяет повысить производительность труда и снизить утомляемость. Проектируя рабочее место следует исходить из принципа наивысшей комфортности.

Для расчета освещения используем метод коэффициента использования светового потока. Этот метод позволяет определить световой поток источника света, необходимый для создания заданной овещенности горизонтальной поверхности при общем равномерном освещении с учетом света, отраженного потолком и стенами.

Помещение имеет следующие параметры: длина, А = 8,4 м., ширина, В = 5 м. Полная высота Н = 2,75 м. В качестве источников света предлагается использовать светильники ARS/R 418.

Согласно условию можно отнести категорию выполняемых работ к работам со средней точностью с присвоением разряда зрительной работы В 1.

В соответствии с выбранным разрядом зрительных работ наименьшая освещенность рабочей поверхности Е принимается равной 300 лк.

В помещениях высотой до 6 м рекомендуется применять люминесцентные лампы, основным достоинством которых является высокая светоотдача (до 75 лм/Вт), срок службы до 10000 ч, хорошая цветопередача, низкая температура.

В нашем случае в условии задачи предлагаются светильники типа ARS/R 418.

Для определения количества светильников, необходимых для обеспечения нормированного значения освещенности в конструкторском бюро необходимо определить ряд коэффициентов:

Коэффициент запаса. Коэффициент запаса Кз учитывает запыленность помещения, снижение светового потока ламп в процессе эксплуатации. Для чистых помещений коэффициент запаса = 1,5.

Для определения коэффициента использования светового потока h находят индекс помещения φ и предполагаемые коэффициенты отражения поверхностей помещения: потолка rп, стен rс, пола rр.

Для светлых административных помещений, к которым относится отдел анализа: rп = 70%, rс = 50%, rр = 30%.

Индекс помещения определяется по следующему выражению:

, (5.1)

где h1 -высота помещения, м;

h2 - высота расчетной поверхности, м;

a - длина помещения, м;

b - ширина помещения, м.

Коэффициент использования светового потока h есть сложная функция, зависящая от типа светильника, индекса помещения, коэффициента отражения потолка стен и пола.

По таблицам предложенным производителем светильников находим h = 0,51. Для люминесцентной лампы Philips TL-D 18W/54 значение светового потока Фл = 1050 лм. Освещаемая площадь принимается равной площади отдела: S = +AB = 42 м2.

Определяем количество N используемых светильников, полагая, что каждый светильник содержит четыре (n =4) лампы:

 (5.2)

.

Принимаем N = 9.

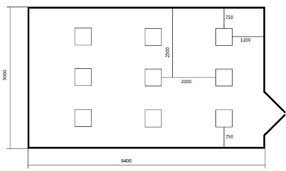
Таким образом, при использовании люминесцентных ламп Philips TL-D 18W/54 по четыре в каждом светильнике тира ARS/R 418 необходимое количество светильников N = 9. Целесообразно для обеспечения нормированной освещенности расположить светильники равномерно по всей площади потолка. А именно: три ряда по три светильника. Эскиз системы общего освещения представлен на рисунке 5.1.

Рисунок 5.1 - Система общего освещения отдела анализа и планирования

.6 Безопасность в чрезвычайных ситуациях


Гражданская оборона предприятия есть система мероприятий по подготовке к защите и защите персонала, материальных и культурных ценностей от опасностей, возникающих при ведении военных действий или вследствие этих действий, а так же при возникновении ЧС природного и техногенного характера.

Основными видами опасности для КГБУ "ЦЗН г. Красноярска" являются такие чрезвычайные ситуации как землетрясения, пожары, взрывы, транспортные аварии и катастрофы, обрушение зданий, аварии в электроэнергетических и коммунальных системах, радиационные аварии, аварии на очистных сооружениях, террористические акты.

Основными мероприятиями в области гражданской обороны в КГБУ "ЦЗН г. Красноярска" являются:

обучение работников в области гражданской обороны;

- оповещение персонала об опасностях, возникающих при ведении военных действий или вследствие этих действий, а также при возникновении чрезвычайных ситуаций природного и техногенного характера;

- эвакуация работников, членов их семей и материальных ценностей в безопасные районы;

предоставление работникам убежищ и средств индивидуальной защиты;

проведение мероприятий по световой и другим видам маскировки;

проведение аварийно-спасательных работ в случае возникновения опасностей для работников и населения при ведении военных действий или вследствие этих действий, а также вследствие чрезвычайных ситуаций природного и техногенного характера;

первоочередное обеспечение работников, пострадавших при ведении военных действий или вследствие этих действий, в том числе медицинское обслуживание, включая оказание первой медицинской помощи и другие необходимые меры;

борьба с пожарами, возникшими при ведении военных действий или вследствие этих действий;

обнаружение и обозначение районов, подвергшихся радиоактивному, химическому, биологическому и иному заражению;

санитарная обработка персонала, обеззараживание зданий и сооружений, специальная обработка техники и территории предприятия;

восстановление и поддержание порядка на объектах предприятия, пострадавших при ведении военных действий или вследствие этих действий, а также вследствие чрезвычайных ситуаций природного и техногенного характера;

срочное восстановление функционирования объектов предприятия в военное время;

разработка и осуществление мер, направленных на сохранение объектов, необходимых для устойчивого функционирования предприятия и выживания работников в военное время;

обеспечение постоянной готовности сил и средств гражданской обороны предприятия.

Мероприятия по гражданской обороне предприятия организуются и проводятся во взаимодействии с территориальными органами федеральных органов исполнительной власти, органами исполнительной власти субъектов РФ, органами местного самоуправления и другими организациями в соответствии с Конституцией РФ, федеральными конституционными законами, федеральными законами, нормативными правовыми актами президента РФ и правительства РФ, нормативными правовыми актами Министерства РФ по делам гражданской обороны, чрезвычайным ситуациям и ликвидации последствий стихийных бедствий, Положением о гражданской обороне в РФ.

Для осуществления управления гражданской обороной на предприятии создана система управления гражданской обороной (совокупность взаимообусловленных и взаимосвязанных органов управления, пунктов управления, систем связи и оповещения, автоматизированных систем управления и других специальных систем сбора и обработки информации).

Руководство гражданской обороной осуществляет директор предприятия. Руководитель предприятия несет персональную ответственность за организацию и проведение мероприятий по гражданской обороне и защите персонала предприятия.

Непосредственное управление гражданской обороной на предприятии, в соответствии со ст. 12 Федерального закона от 12.02.1998 г. 28-ФЗ "О гражданской обороне",. осуществляет назначенный приказом руководителя федерального органа исполнительной власти, ответственное лицо из числа военнослужащих войск гражданской обороны по согласованию с начальникам штаба гражданской обороны Красноярского Края.

В соответствии с требованиями Постановления Правительства Российской Федерации от 10 июля 1999 г. № 782 "О создании в организациях структурных подразделений, уполномоченных на решение задач в области гражданской обороны", в подразделениях предприятия, выполняющих задачи гражданской обороны осуществляют штатные или нештатные работники, уполномоченные на решение задач в области гражданской обороны.

Предприятие в целях решения задач гражданской обороны создает и содержит силы, средства, объекты гражданской обороны, запасы материально-технических и других средств, заключает контракты на обеспечение продовольственными и медицинскими средствами, планирует и осуществляет мероприятия по гражданской обороне.

Сведения о силах и средствах гражданской обороны являются сведениями, составляющими государственную тайну. Защита указанных сведений ведется в соответствии с законодательством Российской Федерации.

Выводы и предложения


В дипломной работе проведен анализ ситуации на рынке труда города Красноярска. Выявлено, что в текущем году, по сравнению с аналогичным периодом 2010 года, отмечены положительные тенденции, которые достигнуты благодаря реализации комплекса мер по содействию трудоустройству выпускников - от оказания информационных услуг до решения конкретных финансовых проблем. В 2011 году на проблемы занятости выпускников с учетом всех программ направленных на поддержку трудоустройства молодых специалистов, бюджетом организации было выделено более 25 млн.руб.

Агентством по труду и занятости, в частности ЦЗН г Красноярска, проведено: в рамках программы "Первое рабочее место" было трудоустроено 129 молодых специалистов. Рост указанного показателя составил 34% относительно прошлого отчетного периода. Одним из самых успешно реализуемых и востребованных направлений на рынке труда города стала "Стажировка выпускников образовательных учреждений в целях приобретения ими опыта работы". В течение года было трудоустроено 543 молодых специалиста, из них более 80% переведены на постоянное место работы. Общая сумма возмещения затрат работодателю превысила 19 млн. рублей.

Анализ рынка труда, проводился сопоставлением численности, обратившихся в центр занятости и трудоустроенных. Выявлена следующая ситуация: в 2009 доля получивших работу, составила 59,2%, в 2010 71,9%, и в 2011 - 71% соответственно, в том числе выпускники ВУЗ в 2009 году 62,2 %, в 2010 - 72,7% и 73,2% в 2011.

Признаны безработными из общей численности обратившихся выпускников в городе Красноярске на конец 2009 - 14,5% и 12,8% на конец 2011 года, в том числе выпускники ВУЗов 16% и 11,8%, СУЗ 15% и 14,7%, ПТУ 11% и 14,2%. Наблюдается стабильный ежегодный рост трудоустроенных, это говорит о том, что государство стало более серьезно подходить к проблеме трудоустройства молодых специалистов.

Тем не менее, на фоне приведенных положительных тенденций в вопросе с занятостью выпускников есть проблемы:

Дисбаланс в структуре спроса и предложения рабочей силы на рынке труда. Наименьшее число вакансий заявлено по следующим направлениям: "Финансы, кредитование, страхование" - 1,6%, "Операции с недвижимым имуществом" - 1,5 %, "Сельское хозяйство" - 0,6 %. И наоборот, наибольший процент от числа заявленных вакансий представлен в секторе строительства - 28%; в здравоохранении - 14%; обрабатывающие производства- 17%. Сфера образования представила 7% от общего числа вакантных позиций.

За последнее время без существенных изменений на рынке труда города остается спрос на специалистов в области права, экономистов, бухгалтеров. Здесь предложение превышает потребность в 6-7 раз.

Выпускники оказываются в замкнутом круге, когда ключевым требованием в трудоустройстве выступает опыт работы, который отсутствует по объективным причинам. Кроме того, нередко им мешает элементарная неуверенность в себе или, наоборот, крайне завышенная самооценка и, соответственно, завышенные требования к будущей работе. Очевидно, что многие из них просто не умеют искать работу: они не знают, как правильно себя презентовать, чем компенсировать отсутствие опыта, как правильно пройти собеседование.

К сожалению, отмечается неготовность выпускников проявить предпринимательские инициативы.

По данным различных опросов только 40-50% выпускников после окончания учебного заведения трудоустраиваются по полученной профессии (специальности).

В решении данной проблемы особая роль принадлежит профориентационной работе, вкладу учреждений образования и работодателей в этот процесс.

В связи с этим в дипломной работе предложены следующие мероприятия.

С целью профориентационного информирования молодежи о востребованных на рынке труда профессиях и специальностях, предлагается разработать специальный Интернет-ресурс. Для разработки и внедрение которого потребуются инвестиции в сумме 94100 рублей. Данное мероприятие можно считать успешным и окупившимся в случае снижения числа обратившихся выпускников на 7 человек.

Для повышения уровня профессиональной самопрезентациии и умения выстраивать отношения в коллективе предложено проводить коуч-семинары. Данное мероприятие обойдется центру занятости населения в 335,5 тыс.руб.

Можно избежать многих проблем при трудоустройстве молодых специалистов за счет формирования системы мониторинга рынка труда и рынка образовательных услуг. Постоянного анализа соответствия спроса и предложения рабочей силы по профилю и уровню квалификации в разрезе специальностей, отраслей, а также анализа причин дисбаланса спроса и предложения на рынке труда. Разработки системы прогнозирования качественной и количественной потребности экономики города в специалистах с учетом уровня и профиля подготовки, территориальной специфики экономики. Затраты связанные с введением мероприятия - 321,88 тыс.руб. Учитывая долгосрочность проекта, его окупаемость - более года. Для компенсации затрат число обратившихся за помощью в ЦЗН выпускников, должно сократиться как минимум на 23 человека.

Библиографический список


.       "Трудовой кодекс РФ" от 30.12.2001 № 197-ФЗ с изм. и доп., вступающими в силу с 01.01.2010 г.

2.     Закон РФ "О занятости населения в Российской Федерации" от 19.04.1991 № 1032-1 (ред. 30.11.2011).

.       Федеральный закон № 39-ФЗ от 25.02.99 г. "Об инвестиционной деятельности в Российской Федерации, осуществляемой в форме капительных вложений" (в ред. Федерального закона от 24.07.2007 N 215-ФЗ).

.       Федеральный закон от 21.12.1994 № 68-ФЗ (ред. от 25.11.2009) "О защите населения и территорий от чрезвычайных ситуаций природного и техногенного характера".

.       Федеральный закон от 22.07.2008 № 123-ФЗ "Технический регламент о требованиях пожарной безопасности".

6.     Алексеева И.В. Особенности учета нефинансовых активов в соответствии с Инструкцией № 25н [Текст] / И.В. Алексеева // БиНО: Бюджетные учреждения. - 2006. - №8. - с.12-50.

7.     ГОСТ 12.0.004-90* Система стандартов безопасности труда. Организация обучения безопасности труда. Общие положения. - М.: Изд-во стандартов, 2008. - 16 с.

.       ГОСТ 12.1.030-81* ССБТ. Электробезопасность. Защитное заземление и зануление. - М.: Изд-во стандартов, 1996. - 10 с.

.       ГОСТ 12.1.004-91* ССБТ. Пожарная безопасность. Общие требования. - М.: Изд-во стандартов, 2010. - 42 с.

10.   Годовой отчет КГБУ "ЦЗН г. Красноярска" за 2010 г.

11.   Годовой отчет КГБУ "ЦЗН г. Красноярска" за 2011 г.

12.   Гуськова И.Н. Рынок труда и рынок высшего образования - состояние, взаимовлияние, и перспективы развития [Текст] /И.Н. Гуськова // Человек и труд. - 2010. - № 7. - с. 29-33.

13.   Данилов Д.Е. Анализ хозяйственной деятельности в бюджетных и научных учреждениях [Текст]. учебное пособие / Д.Е. Данилов, В.Е. Арабникова, Л.К. Шипиков. - Минск: Интерпрессервис, 2005. - 336 с. - ISBN 985-482-021-1.