Материал: Геодезические работы при выносе границ земельного участка

Внимание! Если размещение файла нарушает Ваши авторские права, то обязательно сообщите нам

Преимуществом режима RTK является возможность точной обработки сигнала в реальном времени. При работе в режиме RTK базовая станция и подвижный приемник принимают сигналы от одних и тех же спутников, в то же время базовая станция передает свои координаты и спутниковые данные с помощью модема подвижному приемнику, который объединяет их со своими данными, полученными со спутников, для определения своего точного местоположения в режиме реального времени. Это необходимо, чтобы базовая станция, с уже известными координатами, могла вычислить отклонение в определении координат спутниковых сигналов и передать эту информацию в виде поправки на ровер (подвижную станцию).

Координаты подвижного приемника вычисляются с помощью специального алгоритма, который позволяет успешно работать в режиме реального времени на расстояниях до 50 км от базовой станции. Схема работы в режиме RTK приведена на рисунке 19.

Рисунок 19 - Схема работы в режиме RTK

На заключительном этапе съемки производилась обработка результатов измерений с помощью пакета программ "Trimble Business Center 3.20".

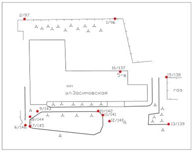
После произведенной съемки геодезистом-исполнителем была подготовлена обзорная схема расположения точек подлежащих выносу и закреплению на местности. Данная схема представлена на рисунке 20.

На основании этого документа, по согласованию с заказчиком, происходит вынос и закрепление межевыми знаками поворотных точек границ земельного участка.

На следующий день производились работы по выносу 11 характерных точек земельного участка при помощи комплекта спутникового геодезического оборудования Trimble R8 GNSS.

Один из GNSS приемников являлся базой (№5303423348) и находился в неподвижном (статичном) положении по адресу: Вологодская область, Вологодский район, г. Вологда, ул. Козленская, д. 45-а. Координаты его местоположения известны и равны Х = 352655.69, Y = 2327054.75, Z = 125.74.

Рисунок 20 - Обзорная схема местоположения характерных точек границ земельного участка с кадастровым номером 35:24:0202005:40 ВоГУ по адресу: г. Вологда, ул. Зосимовская, 5-в

Соответственно, второй приемник был ровером (№5251420691), который принимал сигналы от базы при помощи устройства модема и использовался геодезистом на месте проведения работ по адресу: Вологодская область, Вологодский район, г. Вологда, ул. Зосимовская, д. 5-в. Вместе с ровером исполнитель использовал контролер. Он прикрепляется на веху вместе с приемником и показывает на дисплее координаты точки, которую необходимо вынести на местность.

Геодезист перемещался с ровером, пока не была найдена на местонсти точка, соответсвующая выносимым координатам. Алгоритм выноса применялся последовательно по отношению ко всем поворотным точкам границ земельного участка.

В результате выполнения геодезических работ на местность были вынесены 11 характерных точек границ земельного участка под номерами: 96, 97, 137, 138, 139, 140, 142, 143, 144, 145, 146.

Из них закреплены на местности, с помощью металлической трубы диаметром 20 мм, лишь пять точек: 1-96, 2-97,7-145, 13-139 и 15-138. Остальные точки не закреплены межевыми знаками и находятся в асфальтовом покрытии.

Любой вид работ, особенно геодезических, должен соответствовать установленным государственным нормам и стандартам, которые содержаться в СНиПах, ГОСТах и других технических документах.

Геодезические работы по выносу границ земельного участка проводились на основании нижеуказанного перечня документов и инструкций:

Внутренний стандарт предприятия ВСТП-01-14 "Положения о контроле качества топографо-геодезических, фотограмметрических и картографических работ";

- ГКИНП (ОНТА)-02-262-02 "Инструкция по развитию съемочного обоснования и съмки ситуации и рельефа с применением глобальных навигационных систем ГЛОНАСС и GPS" Москва, ЦНИИГАиК, 2002 г;

ГКИНП-02-033-79 "Инструкция по топографической съемке в масштабах 1:5000, 1:2000, 1:1000, 1:500" 1982 г. и дополнения к ней от 16.02.88 г.

"Условные знаки для топографических планов масштабов 1:5000, 1:2000, 1:1000, 1:500" (ГУГК СССР. - Недра, 1989);

СП 126.13330.2012 "Геодезические работы в строительстве. Актуализированная редакция СНиП 3.01.03-84";

СП 11-104-97 "Инженерно-геодезические изыскания для строительства";

ПТБ-88 "Правила по технике безопасности на топографо-геодезических работах".

3.4 Оформление документов

Оформление документов - это завершающая процедура, которая выполняется после окончания полевых работ, когда заказчик убедится в наличии установленных на местности межевых знаков.

В результате выполненных работ инженером-геодезистом были подготовлены следующие текстовые и графические материалы:

-       обзорная схема местоположения характерных точек границ земельного участка с кадастровым номером 35:24:0202005:40;

-       кроки и абрисы местоположения характерных точек границ земельного участка с кадастровым номером 35:24:0202005:40,

-       акт сдачи межевых знаков на наблюдение за сохранностью,

-       акт выполненных работ №130 от 8.10.14 г.,

Акт сдачи межевых знаков на наблюдение за сохранностью был подписан исполнителем работ и заместителем директора спорткомплекса ФБОУ ВПО ВоГУ. В документе содержится информация о 5 характерных точках, которые были закреплены на местности посредством металлической трубы диаметром 20 мм. После подписания, акт был передан заместителю директора спорткомплекса ФБОУ ВПО ВоГУ.

Акт выполненных работ - это документ, подтверждающий завершение выполнения всего объема работ или услуг. Это двухсторонний документ, который составляется исполнителем и подписывается заказчиком. Правильно оформленный и заверенный с обеих сторон, он доказывает, что работы или услуги выполнены в оговоренном в нем объеме, в установленные сроки и заказчик не имеет претензий по качеству их выполнения. Акт выполненных работ был представлен в 2-х экземплярах и скреплялся подписями исполнителя и заказчика. Один экземпляр был передан заказчику, а второй - исполнителю.

В результате выполенных работ по выносу на местность 11 характерных точек границ земельного участка заказчик получил:

точные границы ЗУ;

уточненную площадь;

местоположение участка в общем массиве участков;

точную форму ЗУ.

Все эти сведения очень важны, поскольку с их помощью появляется целостное видение участка, понимание всех его основных характеристик и особенностей. Также наличие точных границ (закрепленное не только документально, но и фактически) значительно упрощает проведение различных сделок с землей.

Заключение

Целью данной выпускной квалификационной работы являлось установление порядка выполнения геодезических работ при выносе границ земельного участка с кадастровым номером 35:24:0202005:40 с использованием GNSS-оборудования, расположенного по адресу: Вологодская область, г. Вологда, ул. Зосимовская, д. 5-в. Для достижения поставленной цели в полном объёме был решен ряд задач.

В результате выполнения данной работы были изучены геодезические работы при ведении кадастра. Более подробно рассмотрены геодезические работы при определении границ земельного участка (межевание) и при выносе границ земельного участка.

Выявлено, что геодезические работы осуществляются на основе различных систем координат. Для координатного обеспечения геодезических работ использовались пункты ОМС, расположенные на территории Вологодской области. Вынос запроектированных границ выполняется на основании сведений, содержащихся в федеральном информационном ресурсе - ЕГРН, таких как кадастровая выписка о земельном участке, КПТ соответствующий территории.

Также были рассмотрены современное геодезическое оборудование и инструменты, используемые специалистами данной области. Вследствие чего, сделаны выводы о том, что дальнейшее внедрение в кадастровую деятельность GNSS-технологий позволит:

-  уменьшить трудовые затраты при осуществлении кадастровых работ;

-       повысить точность производимых измерений;

-       сократить временные затраты в процессе кадастровой деятельности;

-       позволит работать в любых погодных условиях.

В процессе работы была дана характеристика объекта исследования и рассмотрены основные этапы работ при выносе границ земельного участка с применением GNSS-оборудования. Они включают в себя подготовительный этап, непосредственно полевые работы и камеральные работы (оформление результатов кадастровых работ и необходимых документов).

В состав полевых работ при выносе границ земельного участка с кадастровым номером 33:24:0202005:40 на местность входят работы:

−  по выбору исходных пунктов ОМС, поиск и рекогносцировка их на местности;

−       по привязке к пунктам ОМС и определению плановых координат базовой станции с использованием GNSS-оборудования;

−       по расчету параметров перехода от WGS-84 к МСК-35;

−       по топографической съемке в режиме RTK с использованием GNSS оборудования;

−       по выносу и закреплению на местности 11 проектных точек.

Таким образом, исследовательская работа позволила оценить роль геодезических работ в кадастре, рассмотреть комплекс современного спутникового оборудования, метод и последовательность выполнения работ в RTK-режиме при выносе характерных точек границ земельного участка на местность.

Список использованных источников

1.      Зверев, Л.А. Технология кадастровых работ: монография / Л.А. Зверев. - Новосибирск: СГГА, 2008. - 234 с.

.        Коротеева, Л.И. Земельно-кадастровые работы. Технология и организация: учеб. пособие / Л.И. Коротеева. - Ростов-на-Дону: Феникс, 2007. - 158 с.

.        Варламов, А.А. Кадастровая деятельность: учебник / А.А. Варламов, С.А. Гальченко, Е.И. Аврунев.- Москва: Форум: НИЦ ИНФРА-М, 2015. - 256 с.

.        Золотова, Е.В. Основы кадастра: Территориальные информационные системы: учебник для вузов / Е.В. Золотова. - Москва: Фонд "Мир", 2012. - 417 с.

.        Юнусов, А.Г. Геодезия: учебник для вузов / А.Г. Юнусов, А.Б. Беликов, В.Н. Баранов, Ю.Ю. Каширкин. - Москва: Академический Проект: Гаудеамус, 2011. - 409 с.

.        Беликов, А.Б. Геодезия: учебное пособие / А.Б. Беликов, В.Н. Баранов, А.Г. Юнусов. - Москва: ГУЗ, 2010. - 36 с.

.        Смолич, С.В. Инженерная геодезия: учеб. пособие / С.В. Смолич, А.Г. Верхотуров, В.И. Савельева. - Чита: ЧитГУ, 2009. - 185 с.

.        Лысов, А.В. Геодезические работы при землеустройстве: учеб. пособие / А.В. Лысов, А.С. Шиганов. - Саратов: ФГОУ ВПО "Саратовский ГАУ им. Н.И. Вавилова", 2007. - 147 с.

.        Неумывакин, Ю.К. Практикум по геодезии: учеб. пособие для вузов / Ю.К. Неумывакин. - Москва: КолосС, 2008. - 318 с.

.        Неумывакин, Ю.К. Земельно-кадастровые геодезические работы: учебник / Ю.К. Неумывакин, М.И. Перский. - Москва: КолосС, 2005. - 186 с.

.        Подшивалов, В.П. Инженерная геодезия: учебник / В.П. Подшивалов, М.С. Нестеренок. - Минск: Высшая школа, 2011. - 463 с.

12.    ГКИНП-02-033-79. Инструкция по топографической съемке в масштабах 1:5000, 1:2000, 1:1000, 1:500: утв. ГУГК СССР 05.10.1979. - Введ. 01.01.1983. - Москва: Недра, 1982. - 64 с.

13.    СП 126.13330.2012. Геодезические работы в строительстве: актуализированная редакция СНиП 3.01.03-84: утв. Минрегион России 29.12.2011. - Введ. 01.01.2013. - Москва: Минрегион России, 2012. - 47 с.

14.    СП 11-104-97. Инженерно-геодезические изыскания для строительства: утв. Госстрой России 17.02.2004. - Введ. 01.05.2004. - Москва: "ПНИИИС" Госстроя России, 2004. - 239 с.

.        Кафтан, В.И. Системы координат и системы отсчета в геодезии, геоинформатике и навигации / В.И. Кафтан // Геопрофи. - 2008. - № 4. - С. 62-65.

.        ГОСТ 32453-2013. Глобальная навигационная спутниковая система. Системы координат. Методы преобразований координат определяемых точек. - Введ. 01.06.2014 - Москва: Стандартинформ, 2014. - 42 с.

.        Руководство по Всемирной геодезической системе - 1984 (WGS-84). Doc 9674 - AN/946. - ICAO, 2002. - 145 с.

.        "Параметры земли 1990 года" (ПЗ-90.11): справочный документ. - Москва, 2014 г. - 52с.

.        Руководство пользователя по выполнению работ в системе координат 1995 года (СК-95) ГКИНП (ГНТА) - 06-278-04. Москва: ЦНИИГАиК, 2004. - 88с.

.        ГКИНП (ГНТА)-01-006-03 Основные положения о государственной геодезической сети Российской Федерации: утв. Федеральной службой геодезии и картографии России 17.06.2003. - Введ. 25.06.2003. - Москва: Роскартография, 2004. - 6 с.

.        Назаров, А.С. Координатное обеспечение топографо-геодезических и земельно-кадастровых работ: учеб. пособие / А.С. Назаров. - Минск: учеб. центр подгот., повышения квалификации и переподгот. кадров землеустроит. и картографо-геод. службы, 2008. - 83 с.

.        Горобец, В.П. Современное состояние и направления развития геодезического обеспечения РФ. Системы координат / В.П. Горобец, Г.В. Демьянов, А.Н. Майоров, Г.Г. Побединский // Геопрофи. - 2013. - № 6. - С. 4-9.

.        Демьянов, Г.В. Проблемы непрерывного совершенствования ГГС и геоцентрической системы координат России / Г.В. Демьянов, А.Н. Майоров, Г.Г. Побединский // Геопрофи. - 2011. - № 4. - С. 15-21.

.        Куштин, И.Ф. Инженерная геодезия: учебник / И.Ф. Куштин, В.И. Куштин. - Ростов-на-Дону: Издательство ФЕНИКС, 2002. - 416 с.

.        Горбунова, В.А. Инженерная геодезия: учеб. пособие / В.А. Горбунова. - Кемерово: КузГТУ, 2012. - 193 с.

.        Михелев, Д.Ш. Инженерная геодезия: учебник для вузов / Д.Ш. Михелев, Е.Б. Клюшин, М.И. Киселев, В.Д. Фельдман. - Москва: Издательский центр "Академия", 2010. - 480 с.

.        Дементьев, В.Е. Современная геодезическая техника и ее применение / В.Е. Дементьев. - Москва: Академический проспект, 2008. - 591 с.

.        Коугия, В.А. Инженерная геодезия: учеб. пособие / В.А. Коугия. - Санкт-Петербург: ПГУПС, 2008 - 93 с.

.        Карабцова, З.М. Геодезия: учеб. пособие / З.М. Карабцова. - Владивосток: ТИДОТ ДВГУ, 2002. - 151 с.

.        Поклад Г.Г. Геодезия: учеб. пособие для вузов / Г.Г. Поклад, С.П. Гриднев. - Москва: Академический Проект, 2007. - 592 с.