При составлении расчетных схем в ряде случаев реальные нагрузки приводятся не только к сосредоточенным и распределенным нагрузкам, но и к сосредоточенным моментам сил, моментам, распределенным по поверхности или по линии.
Моментом силы называют механическую величину, характеризующую внешнее воздействие на тело и определяющую изменение его вращательного движения.
Непосредственно с нагрузками связана гипотеза о малости перемещений точек деформируемого тела, которые вызваны внешней нагрузкой, т. е. смещение точек приложения сил и изменение углов линий действия сил малы, что позволяет записывать условия равновесия для деформированного тела как для недеформированного.
3.5. Выбор допускаемых напряжений
Для проведения расчетов на прочность и жесткость необходимо знать основные физико-механические свойства материалов. В приложении приведены свойства некоторых материалов, получивших широкое применение в приборостроении.
При оценке прочности максимальное расчетное напряжение должно быть меньше допускаемого для данного материала
, которое в свою оче-
редь должно быть меньше предельного. В качестве предельного напряжения
принимают: для хрупких материалов – временное напряжение 

, для
пластичных материалов – напряжение текучести 

. Коэффициент запаса
принимают равным 1,5...2,5.
4.ПРИМЕРЫ СОСТАВЛЕНИЯ РАСЧЕТНЫХ СХЕМ
ИРЕШЕНИЯ ЗАДАЧ
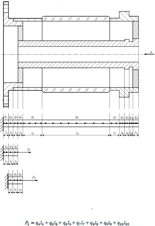
Вусловиях транспортировки и эксплуатации приборы подвергаются воздействию статических и динамических нагрузок. Требуется оценить напряженно-деформированное состояние и определить низшую частоту собственных колебаний элементов конструкций. В расчетах предполагается, что свойства материалов элементов конструкций удовлетворяют ранее перечисленным гипотезам (сплошность, однородность, изотропность и т. д.). В качестве примера возьмем изолятор (рис. 4.1, а). Узел подвергается воздействию ускорения .
11
4.1. Расчет прочности при ускорении, направленном вдоль оси конструкции
Поскольку конструкция имеет цилиндрическую форму и закрепление с одной стороны, ее можно представить в виде расчетной схемы стержня с жесткой заделкой с одной стороны. По всей длине стержня необходимо определить грузовые участки 
. Границы грузовых участков на стержне про-
водятся в тех местах, где на реальной конструкции происходит смена формы и (или) материала (рис. 4.1, а). В качестве внешнего воздействия берутся равномерно распределенные на каждом грузовом участке нагрузки 
(рис.
4.1, б), обусловленные воздействием на прибор ускорения 
:
где
– номер грузового участка;
– масса конструкции в пределах i-го грузового участка; 
– длина i-го грузового участка;
– плотность материала на i-м грузовом участке; 

– площадь поперечного сечения i-го грузового
участка.
Поскольку вероятность разрушения конструкции повышается по мере приближения к месту закрепления, схему можно упростить: необходимо оставить первые 3 участка от опоры, а остальные представить в виде сосредоточенной силы 
, которая равна сумме произведений
на 
отброшенных
грузовых участков: 
12
а
б
в
г
Рис. 4.1
Для рассматриваемого изолятора сила 
(рис. 4.1, в), представляющая
собой внешние нагрузки на отброшенных грузовых участках, равна:
.
13
Если площадь поперечного сечения элемента конструкции на первом грузовом участке велика по сравнению с площадью поперечного сечения на остальных участках, первый участок можно опустить и расчет начать со второго участка (рис. 4.1, г). Тогда сила 
заменяется силой
:
Для расчета напряжений необходимо найти значения нормальной силы 
и построить ее эпюр. Напряжение определяется по формуле
Для оценки прочности необходимо на каждом грузовом участке определить максимальное значение напряжения
и записать условия проч-
ности. Условие прочности запишется в виде
Для хрупких материалов |
, для пластичных – |
. |
Если максимальное расчетное напряжение меньше допустимого, то конструкция выдержит заданную нагрузку.
4.2.Расчет прочности при ускорении, направленном по нормали
коси конструкции
Аналогично рассуждениям в 4.1 конструкцию представляем в виде расчетной схемы стержня с жесткой заделкой с одной стороны (рис. 4.2, б). Определяем грузовые участки 
.
В качестве внешнего воздействия берутся равномерно распределенные на каждом грузовом участке нагрузки 

, обусловленные воздействием на
прибор ускорения 
, но направленные по нормали к оси стержня (рис. 4.2, а).
Оставляем первые 3 участка от опоры (рис. 4.2, в), а остальные представляем в виде сосредоточенной силы 
, которая равна сумме произведений
на 

отброшенных грузовых участков:
и момента
14
Для данной схемы
Если площадь поперечного сечения элемента конструкции на первом грузовом участке велика по сравнению с площадью поперечного сечения на остальных участках, первый участок можно опустить и тогда сила 
заменя-
ется силой
, а момент
– моментом
(рис. 4.2, г).
Для расчета напряжений необходимо найти значения и построить эпюры внутренних сил
и .
где 

– осевой момент инерции сечения,
– максимальное значение ко-
ординаты 
в данном сечении, т. е. максимальный радиус данного сечения. Условие прочности запишется в виде
Для хрупких материалов |
, для пластичных – |
. |
Если максимальное расчетное напряжение меньше допустимого, то конструкция выдержит заданную нагрузку.
15