а
б
в
г
Рис. 4.2
Максимальное напряжение на каждом грузовом участке определяется по формуле
16
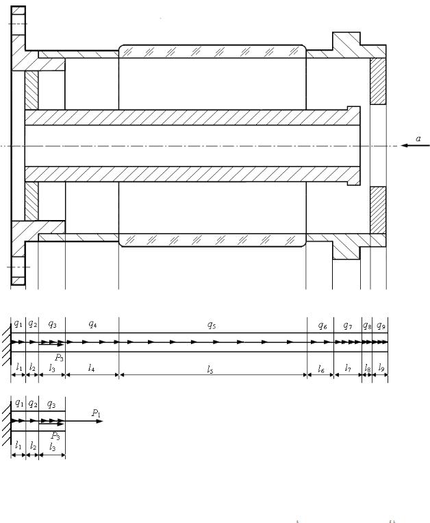
Вконструкции могут быть элементы, которые имеют только крепление
ис остальными частями не соприкасаются. Такие элементы рассчитываются отдельно и вводятся в расчетную схему в местах их крепления в виде самостоятельных сил и моментов (рис. 4.3 и 4.4).
а
б
в
Рис. 4.3
В схеме изолятора (рис. 4.3) есть внутренний стержень, который закреплен у основания. При выделении грузовых участков 
и расчете сил 
этот
стержень не учитывают. Можно обозначить его 10-м элементом и предста-
17
вить отдельной силой
, которая вводится на границе второго и третьего участков (рис. 4.3, б):
где
– плотность материала стержня;
– площадь поперечного сечения стержня;
– длина стержня.
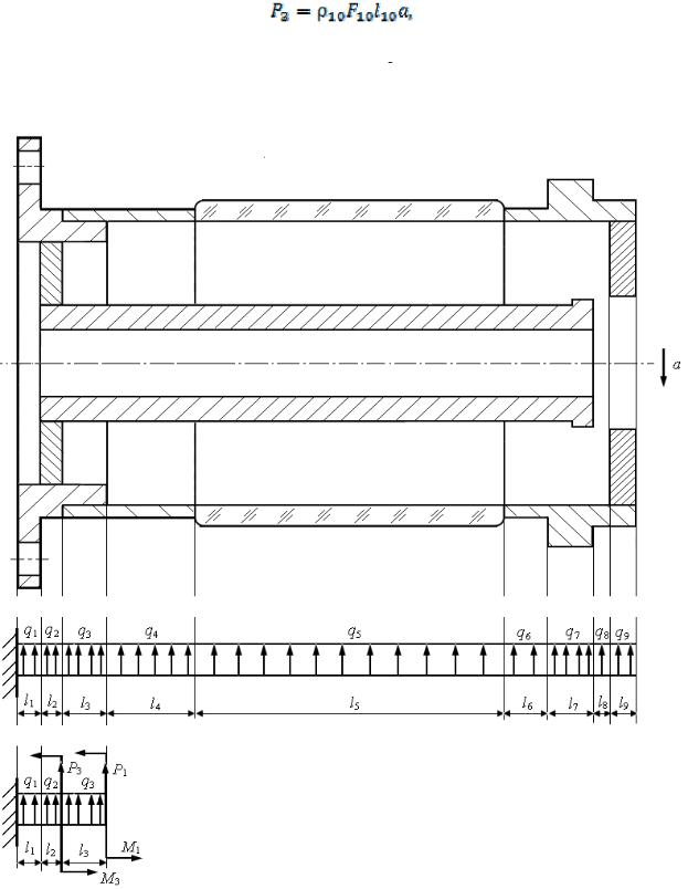
а
б
в
Рис. 4.4
18
Дальше проводится расчет нормальной силы
и напряжений
и
определяется прочность.
В расчете при ускорении, направленном по нормали к оси конструкции, внутренний стержень представляется отдельной силой
и моментом
в
месте крепления (рис. 4.4, в):
Рассчитываются внутренние силы
,
и максимальные напряжения на каждом грузовом участке, а затем определяется прочность.
4.3. Расчет жесткости конструкции
Расчет жесткости стержня – это оценка его упругой податливости под действием приложенных нагрузок и (или) подбор таких размеров поперечного сечения, при которых перемещения не будут выходить за установленные нормами пределы.
Для количественной оценки жесткости изделия необходимо знать перемещения, которые совершают элементы конструкции под влиянием различных внешних воздействий.
Выражения, характеризующие перемещения стержня при изгибе и кручении, получают, интегрируя дифференциальные зависимости Коши с учетом закона Гука и условий сплошности. Искривленную при изгибе ось стержня называют изогнутой, перемещение центра тяжести сечения по направлению, перпендикулярному к оси стержня, – прогибом стержня в данном сечении, наибольший прогиб – стрелой прогиба. Угол , на который
каждое сечение поворачивается по отношению к своему первоначальному положению, носит название угла поворота сечения. Прогиб в плоскости
считают положительным, если его направление совпадает с направлением оси
. Угол поворота считают положительным при повороте сечения против
часовой стрелки.
Для расчета перемещений воспользуемся теоремой Кастильяно, которая базируется на общем выражении для потенциальной энергии нагруженного стержня. Выделим из стержня элементарный участок длиной . В общем
случае нагружения в поперечных сечениях стержня возникают 6 составляю19
щих внутренних сил:
. По отношению к элементарному
участку рассмотрим эти внутренние силы как внешние. Определим работу, совершаемую этими силами при деформировании элемента. Она равна потенциальной энергии, накопленной в элементарном участке стержня. Допустим, что левое сечение элемента неподвижно. Точка приведения сил в правом сечении перемещается. При этом совершается работа. Полная потенциальная энергия элемента стержня может рассматриваться как сумма независимых работ каждого из шести силовых факторов:
При кручении элементарного участка стержня длиной
согласно равенству
угол закручивания
где 
– полярный момент инерции; 
– модуль упругости при сдвиге.
Потенциальная энергия деформации кручения
При изгибе в плоскости элементарного отрезка
в соответствии с равенством
угол поворота и потенциальная энергия деформации изгиба
Если изгиб происходит в плоскости
, то соответствующее выражение для потенциальной энергии принимает вид
20