Материал: 468

Внимание! Если размещение файла нарушает Ваши авторские права, то обязательно сообщите нам

таким, чтобы обеспечить отведение сточных вод самотёком при неполном заполнении потоком сечения трубы такое движение жидкости называют безнапорным или со свободной поверхностью.

Гидравлический расчёт К1 выполняют в соответствии с требованиями СНиП 2.04.03-85. Не оговоренные ниже буквенные обозначения величин расшифрованы в приложении 1 СНиП 2.04.01-85 (http://sologaev.ucoz.ru).

Расчёт поясним на примере дворовой сети, изображённой на генплане на рис. 17. Имеем две диктующие точки: верхнюю и нижнюю. Верхней диктующей точкой является абсолютная отметка лотка колодца КК1-1, которая была найдена при построении аксонометрической схемы К1 и равна 97,15 м. Нижней диктующей точкой является отметка лотка трубы уличного канализационного коллектора в колодце КК1-3, которую принимают по индивидуальному заданию. В нашем случае она равна 94,30 м (см."Исходные данные для проектирования"). Сеть дворовой канализации от колодца КК1-1 к колодцу КК1-3 надо проложить с уклоном таким образом, чтобы верх трубы соединительной ветки у колодца КК1- 3 не оказался ниже верха трубы уличного коллектора, то есть не ниже "шелыга в шелыгу" (об этом способе соединения см. в лекционном курсе).

При гидравлическом расчёте К1 с учётом СНиП 2.04.01-85 вводятся следующие ограничения по скорости V, наполнению H/d и уклону i:

0,7 V 4, м/с;

0,3 H/d 0,6; 1/d i 0,15 ,

где d в мм. При выполнении расчёта необходимо следить, чтобы эти величины находились в вышеуказанных интервалах.

Гидравлический расчёт К1 удобно вести в табличной форме. Таблица гидравлического расчёта дворовой канализации может быть выполнена с помощью пакета MS Excel — файл K1_tabl.xls (http://sologaev.ucoz.ru).

Таблица гидравлического расчёта дворовой канализации К1

Уч-к

L,

N

P

qtot,

qs,

d,

H/d

V,

i

z,

Абс.отм.лотка,м

 

м

 

 

л/с

л/с

мм

 

м/с

 

м

в начале

в конце

1

2

3

4

5

6

7

8

9

10

11

12

13

КК1-1…КК1-2

18

24

0.0144

0.8

2.4

150

0.3

0.55

0.008

0.14

97.15

97.01

КК1-2…КК1-3

20

48

0.0144

1.2

2.8

150

0.3

0.63

0.010

0.20

97.01

96.81

Рис. 21

Поясним вычисление отдельных столбцов таблицы.

Во 2-й столбец заносят расстояния между осями соседних колодцев, которые берут с генплана, плана секции подвала с сетью К1 и аксонометрии К1 .

Столбец 3 таблицы на рис. 21 содержит число санитарно-технических приборов N, обслуживаемых расчётным участком сети К1. Поясним определение N на примере участка КК1-2...КК1-3 (см. генплан выше). Стоки на этот участок поступают от выпуска К1-2 и соседнего участка КК1-1...КК1-2, который берёт стоки от выпуска К1-1. В нашем примере каждый выпуск обслуживает секцию

26

трёхэтажного здания. В каждой секции (см. план этажа секции с сетями К1 выше) имеется два стояка. Число приборов (унитазов, ванн, умывальников и моек) на этаже секции равно 8, поэтому для участка КК1-1...КК1-2 N = 8*3 = 24, а для участка КК1-2...КК1-3 N = 8*3 + 24 = 48 (см. рис. 21, столбец 3).

В 4-й столбец внесена вероятность совместного действия приборов P = 0,0144, которую определяют по формуле (3) СНиП 2.04.01-85 . Например,

 

 

P P

tot

 

qhrtot,u

 

156,

00144,.

 

 

 

 

qtot 3600

03, 3600

 

 

 

 

 

 

 

 

 

 

 

 

 

 

0

 

 

 

 

Данные по qhrtot,u

и q0tot взяты по приложению 3 СНиП 2.04.01-85 для жилых домов

квартирного

типа

с

централизованным

горячим

водоснабжением,

оборудованными умывальниками, мойками и душами с ваннами длиной от 1500 до 1700 мм (у нас ванны 1700 мм см. в спецификации К1).

Столбцы 5-й, 6-й, 9-й, 10-й, 11-й таблицы на рис. 21 Excel рассчитывает автоматически после нажатия клавиши F9. Надо лишь визуально проверять ограничения по скорости, наполнению и уклону (см. выше). На малорасходных участках возможно некоторое занижение скоростей, что и получилось в таблице на рис. 21, что допустимо.

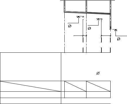
Продольный профиль дворовой канализации К1

Ì1:500 по горизонтали

Ì1:100 по вертикали

1,95

 

2,09

 

2,29

 

 

96,50

96,10

 

 

 

 

32

 

 

 

 

100

 

 

 

 

 

 

 

 

 

2750

 

6000

94,30

 

 

 

 

 

450

 

B1

 

B1

K1

 

Отметка лотка трубы

97,15

97,01

96,81

 

 

 

 

 

Oтметка земли

99,10

99,10

99,10

 

 

 

 

 

 

 

 

Обозначение трубы

Трубы керамические

150

 

 

ÃÎÑÒ 286-82

 

 

 

 

 

 

Уклон

 

0,008

0,010

Длина

18,00

20,00

Расстояние

18,00

20,00

Номер колодца

ÊÊ1-1

ÊÊ1-2

ÊÊ1-3

Рис. 22

В столбцах 12-м и 13-м таблицы на рис. 21 автоматически рассчитываются абсолютные отметки лотка труб продольного профиля канализации. Надо лишь задать начальную отметку лотка первого колодца КК1-1 (у нас 97,15 м), которая

27

является верхней диктующей точкой. После расчёта в Excel (нажатием клавиши F9) также на забудьте проверить нижнюю диктующую точку (см. выше).

Профиль дворовой канализации выполняют по ГОСТ 21.604-82. Пример профиля см. на рис. 22.

Продольный профиль сети дворовой канализации изображают в виде её развёртки по оси трубопровода, а под ним помещают таблицу данных для прокладки сети. Профиль изображают в разных масштабах по горизонтали и вертикали. На профиле над колодцами проставляют глубину заложения лотка трубы, которую вычисляют как разность отметок земли и лотка трубы. Кроме самой сети К1 на профиле показывают пересекаемые трубопроводы (см. рис. 22). Все остальные детали профиля см. рис. 22. По требованиям СНиП II-89-80 (с изм. 1994 г.) расстояния в свету между пересекающимися трубами В1 и К1 должны быть не менее 0,5 метра (не менее 0,4 метра, если В1 выше К1). На профиле рис.

22это соблюдено.

3.5.Таблица «Основные показатели по водопроводу и канализации здания»

Таблицу «Основные показатели по водопроводу и канализации здания» составляют по ГОСТ 21.601-79 (с изм.). Пример таблицы представлен на рис. 23, где размеры даны лишь для вычерчивания таблицы, показывать же их на листе практических занятий не надо.

 

10

36

10

 

8

 

8

Основные показатели по водопроводу и канализации здания

Наименование

 

Потребный

 

Расчетный расход

 

Мощность

 

 

 

 

 

 

электродвига-

 

 

 

 

напор на

 

 

 

 

 

 

 

 

 

 

Примечание

 

системы

 

 

ì3/ñóò

 

ì3

 

 

 

ïðè ïî-

 

теля насоса,

 

 

 

вводе Нтр, м

 

 

 

ë/ñ

 

 

 

 

 

 

 

 

 

 

 

 

æàðå,

 

êÂò

 

 

 

 

 

 

 

 

 

 

 

 

 

 

ë/ñ

 

 

 

 

 

Водопровод В1

 

27,44

 

-

 

0,29

 

0,53

 

-

 

1,5

 

 

 

 

 

 

 

 

 

 

 

 

 

 

 

 

 

 

 

 

 

Канализация К1

 

-

 

-

 

-

 

2,8

 

-

 

-

 

 

 

 

40

 

30

 

15

 

15

 

15

 

15

 

25

 

30

 

 

 

 

 

 

 

 

 

 

 

 

 

 

 

 

 

185

 

 

 

 

 

 

 

 

 

 

 

 

 

 

 

 

 

 

 

 

 

 

 

 

 

 

 

 

 

 

 

 

 

 

 

 

 

 

 

 

 

 

Рис. 23

28

Библиографический список

1.Гидравлика, водоснабжение и канализация: учебник для вузов /В.И. Калицун и др. – М.: Стройиздат, 1980.– 359 с.

2.ГОСТ 21.205–93. Условные обозначения элементов санитарно-технических систем. – М., 1993. – 16 с.

3.ГОСТ 21.206–93. Условные обозначения трубопроводов. – М., 1993. – 4 с.

4.ГОСТ 2874–82*. Вода питьевая. Гигиенические требования и контроль за качеством. – М.: Изд-во стандартов, 1984. – 6 с.

5.Лукиных А.А., Лукиных Н.А. Таблицы для гидравлического расчёта канализационных сетей и дюкеров по формуле акад. Н.Н. Павловского. – М.: Стройиздат, 1974. – 156 с.

6.СанПиН 2.1.4.1074–01. Питьевая вода. Гигиенические требования к качеству воды централизованных систем питьевого водоснабжения. Контроль качества. – М.: Минздрав России, 2002. – 64 с.

7.СНиП 2.04.01–85. Внутренний водопровод и канализация зданий. – М.: ЦИТП Госстроя СССР, 1986. – 56 с. – Свод правил (СП), 2012.

8.СНиП 2.04.02–84. Водоснабжение. Наружные сети и сооружения. – М.: Стройиздат, 1985. – 136 с. – Свод правил (СП), 2012.

9.СНиП 2.04.03–85. Канализация. Наружные сети и сооружения. –М.: Госстрой

СССР, 1986. – 72 с. – Свод правил (СП), 2012.

10.СНиП 3.05.01–85. Внутренние санитарно–технические системы. –М.: ЦИТП Госстроя СССР, 1988. – 40 с. – Свод правил (СП 73), 2012.

11.Сологаев В.И. Защита от подтопления в городском строительстве. Устройство и работа. – Омск: Изд–во ОмГАУ, 2018. – 56 с.

12.Сологаев В.И. Механика жидкости и газа: Учебное пособие. – Омск: СибАДИ, 2017. – 64 с.

13.Сологаев В.И. Фильтрационные расчеты и компьютерное моделирование при защите от подтопления в городском строительстве: Монография. – Омск: Изд–во СибАДИ, 2002. – 416 с.

14.ТСН 21-302–2000 МО. Проектирование систем мусороудаления и автоматического пожаротушения в жилых домах, общественных зданиях и на объектах коммунального хозяйства на территории Московской области. – М., 2000. – 32 с.

15.Шевелев Ф.А., Шевелев А.Ф. Таблицы для гидравлического расчёта водопроводных труб. – М.: Стройиздат, 1984. – 117 с.

29