qc |
|
180 38 |
0,29 (м3 /ч). |
|
1000 24 |
||||
T |
|
|
Последняя колонка табл. 4 СНиПа была исправлена изменением от 1996 г., что нужно учитывать при подборе водомера. По табл. 4, сопоставляя qcT = 0,29 м3/ч с
эксплуатационным расходом воды, находим диаметр условного прохода счётчика 15 мм, то есть первоначально его марка получается ВК-15 (водомер крыльчатый). Отметим попутно, что диаметрам 15-40 мм в табл. 4 СНиПа соответствуют крыльчатые водомеры (марка ВК-...), а диаметрам 50 мм и более турбинные водомеры (марка ВТ-...).
Проверим выбранный счётчик ВК-15 на потерю напора по формуле (18) СНиПа:
h S q2.
По исправленной последней колонке табл. 4 СНиПа величина S = 14,5
м/(л/с)2. Расчётный секундный расход воды для здания уже рассчитан в таблице . Это расход на вводе водопровода (участок 9-10) q = 0,53 л/с. Тогда потеря напора на домовом водомере
h 14,5 0,532 |
4,07 м. |
Потеря напора на крыльчатом водомере ВК-15 не превышает 5 метров, что разрешено изменённой редакцией п. 11.3 СНиП 2.04.01-85. Поэтому для всего здания подобран водомер ВК-15 (домовой водомер). Водомерный узел см. рис. 8 .
Квартирные водомеры принимаем тоже ВК-15. Потеря напора на квартирном водомере (используем расход участка 3-4 таблицы гидравлического расчёта )
h 14,5 0,232 |
0,77 м. |
По табл. 4 СНиПа находим для ВК-15 минимальный расход воды (0,03 м3/ч)/3,6 = 0,0083 л/с. В квартире на участке 3-4 расход q = 0,23 л/с (см. таблицу), что больше минимального и ВК-15 может быть принят как квартирный водомер.
ПОДБОР НАСОСОВ
Проектирование насосных установок осуществляют в соответствии с гл. 12 СНиП 2.04.01-85. Проиллюстрируем это на примере.
В соответствии с п. 12.7 и п. 12.9 СНиПа насос подбирается по максимальному секундному расходу воды q (это расход на вводе В1, то есть участок 9-10 таблицы) и требуемому напору насоса Hp.
Вначале переведём q = 0,53 л/с в м3/ч, то есть найдём подачу (производительность) насоса по расходу:
q 0,53 3,6 1,91 (м3
ч).
Таким образом, подача (производительность) насоса должна быть не менее
1,91 м3/ч.
Потребный напор на вводе водопровода должен быть
Hтр H geom H hдом.в hкв.в H f .
где
Hgeom геометрическая высота от отметки оси наружной трубы В1 до отметки наиболее высокорасположенного водоразборного устройства в здании (1-го на
16
расчётной линии сети); её можно подсчитать по аксонометрической схеме , |
|
например, Hgeom= 3,9 + 6,85 = 10,75 м; |
|
H суммарные потери напора во внутреннем водопроводе В1; принимают по |
|
таблице гидравлического расчёта |
H = 8,70 м; |
hдом.в потери напора на домовом водомере, hдом.в = 4,07 м (см. выше); |
|
hкв.в потери напора на квартирном водомере, hкв.в = 0,77 м (см. выше); |
|
Hf свободный напор для водоразборного устройства принимают по |
|
приложению 2 СНиП 2.04.01-85, например, для смесителя мойки Hf = 2 м. |
|
Таким образом, потребный напор на вводе водопровода |
|
Hтр = 10,75 + 8,70 + 4,07 + 0,77 + 2 = 26,29 м. |
|
Сравним его с наименьшим гарантированным напором в наружной сети |
|
водопровода (см. исходные данные ) Hg = 15 м , который тоже отсчитан от оси |
|
наружного водопровода В1. Так как Hg меньше, чем Hтр , то вода не сможет |
|
поступать за счёт напора в наружной сети В1 на верхние этажи здания. |
|
Следовательно, нужен насос для подкачки воды. Требуемый напор насоса |
|
Hр= Hтр Hg = 26,29 -15 = 11,29 м. |
|
С учётом найденных величин q = 1,91 м3/ч и H = 11,29 м по каталогам и |
|
|
р |
справочникам подбирают насос. Наиболее широко для зданий применяют насосы |
|
консольные центробежного типа. Для выбора насоса можно использовать рис. 13, |
|
заимствованный из книги П.П. Пальгунова и В.Н. Исаева (1991 г.). |
|
(Hмpвод. ст.) |
|
|
q , (м3/ч) |
|
Рис. 13 |
Таким образом, с некоторым запасом выбран насос 1,5К-8/18. Его марка |
|
расшифровывается так: |
|
1,5 мощность электродвигателя в кВт; |
|
К насос консольного типа, то есть он соединяется с электродвигателем |
|
консолью; |
|
8 подача (производительность) насоса q в м3/ч; |
|
18 напор насоса Hp в м. |
|
17
Количество насосов в насосной установке должно быть не менее двух: один рабочий и другой резервный. Эти требования изложены в СНиП 2.04.02-84, гл. 7. Насосную установку для рассматриваемого здания см. рис. 9 .
Подбором водомеров и насосов заканчивается расчётная часть по водопроводу. Расчёты по подбору водомеров и насосов в кратком виде выносят на лист. Остальной перечень чертежей по водопроводу см. в п. 1.2.
2.5. Составление спецификации на водопровод
Спецификация оборудования системы водопровода В1 это таблица, содержащая перечень трубопроводов, оборудования, изделий и деталей В1 для всего здания. Размеры спецификации принимают стандартные по ГОСТ 21.10197. Пример спецификации для внутреннего водопровода нашего здания показан на рис. 14.
Спецификация оборудования системы водопровода В1
Марка, |
|
Обозначение |
|
Наименование |
Êîë. |
|
Масса |
|
Приме- |
|
||
ïîç. |
|
|
|
|
|
|
|
åä., êã |
|
чание |
|
|
Ê8/18 |
|
ПО "Взлет", г. Омск |
|
Насос 1,5К-8/18 |
|
2 |
|
64 |
|
|
|
|
|
|
|
|
|
|
|
|
|
|
|
|
|
ÂÊ-15 |
|
ÃÎÑÒ 6019-83 |
|
Водомер ВСКМ-15 |
|
13 |
|
|
|
|
|
|
|
|
|
|
|
|
|
|
|
|
|
|
|
Ì-100 |
|
Oмский манометровый завод |
|
Манометр МТП-100 |
|
3 |
|
|
|
|
|
|
|
|
|
Каталог ЦКБА |
|
Клапан обратный |
32 |
3 |
|
1,8 |
|
|
|
|
|
|
|
|
|
|
|
|
|
|
|
|
|
|
|
Òî æå |
|
Вентиль 15Б3р |
32 |
10 |
|
1,1 |
|
|
|
|
|
|
|
|
|
|
|
|
|
|
|
|
|
|
|
" |
|
Вентиль 15Б3р |
20 |
8 |
|
0.5 |
|
|
|
|
|
|
" |
|
Вентиль 15Б3р |
15 |
28 |
|
0.4 |
|
|
|
|
|
|
ÃÎÑÒ 25809-96 |
|
Смеситель См-МДЦБА |
12 |
|
|
|
|
|
|
|
|
|
Òî æå |
|
Смеситель См-ВУДРНШл |
12 |
|
|
|
|
|
|
|
|
|
|
|
|
|
|
|
|
|
|
|
|
|
|
ÃÎÑÒ 3262-75 (ñ èçì.) |
|
Трубы стальные водогазо- |
|
|
|
|
|
|
|
|
|
|
|
|
|
|
|
|
|
|
|
|
|
|
|
Òî æå |
|
проводные оцинкованные: |
|
|
|
|
|
|
|
32 |
|
" |
|
Труба Ц-32х3,2 |
32 |
45 |
|
3,09 |
|
ì |
|
|
25 |
|
" |
|
Труба Ц-25х3,2 |
25 |
11 |
|
2,39 |
|
ì |
|
|
20 |
|
" |
|
Труба Ц-20х2,8 |
20 |
61 |
|
1,66 |
|
ì |
|
|
15 |
|
" |
|
Труба Ц-15х2,8 |
15 |
63 |
|
1,28 |
|
ì |
|
|
|
15 |
|
60 |
|
65 |
|
10 |
|
15 |
|
20 |
|
|
|
|
|
|
|
|
||||||
|
|
|
|
|
185 |
|
|
|
|
|
|
|
|
|
|
|
|
|
|
|
|
|
|
|
|
|
|
|
|
|
|
|
|
|
|
|
|
|
Рис. 14
8 15
В данной спецификации два типа смесителей: для моек (См-МДЦБА) и общий для ванны и умывальника (См-ВУДРНШл) с душевой сеткой на гибком шланге.
На листе спецификацию чертят строго по указанным размерам (см. рис. 14). В первом столбце указывают марку или позицию трубы, оборудования. Во втором столбце «Обозначение» вписывают ссылку на ГОСТ, каталог, предприятиеизготовитель. В столбце «Наименование» пишут название изделия, оборудования или прибора, затем его марку или характеристику. В столбце «Кол.» указывают количество поштучно или в метрах, причём количество в метрах (обычно для труб) дополнительно оговаривают в примечании (последний столбец). В столбце
18
«Масса ед., кг» указывают массу одного изделия (если количество поштучно) или 1 погонного метра трубы (если их количество дано в метрах). Сведения по массе принимают по справочникам и каталогам изделий и оборудования. Массу погонного метра стальных водогазопроводных труб можно выписать из ГОСТ 3263-75 «Трубы стальные водогазопроводные», электронную версию которого можно получить через Интернет на нашем сайте:
http://sologaev.ucoz.ru
3. ПРОЕКТИРОВАНИЕ ВНУТРЕННЕЙ КАНАЛИЗАЦИИ ЗДАНИЯ
3.1. Выбор системы и разработка схемы канализации
Систему внутренней канализации для рассматриваемого здания выбирают согласно положений СНиП 2.04.01-85 (см. http://sologaev2010.narod.ru). На практических занятиях в учебных целях можно ограничиться лишь разработкой бытовой канализации К1, применяя виртуальные аналоги оборудования систем водоотведения многоквартирного жилого здания с использованием электронных таблиц MS Excel и системы автоматизированного проектирования AutoCAD.
Разработка схемы внутренней канализации осуществляется поэтапно. В данных методических указаниях рассмотрен пример проектирования канализации К1 для жилого трёхэтажного двухсекционного здания с техническим подпольем и плоской кровлей (исходные данные для проектирования см. выше). Трубы приняты чугунные канализационные раструбные диаметром 50 мм и 100 мм по ГОСТ 6942-98 (см. http://sologaev.ucoz.ru).
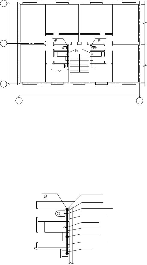
Вначале на плане этажа наносят канализационные стояки, к которым присоединяют отводные трубопроводы от санитарно-технических приборов. Для этой цели можно использовать вкладыш задания с планом этажа секции, но лучше перечертить его в тонких линиях, так как будет не архитектурный план секции, а план с инженерной сетью канализации, где толстыми основными линиями наносят только канализацию. Квартирные отводящие трубы задают конструктивно (без расчёта) диаметром 100 мм от унитазов с уклоном 0,02 и диаметром 50 мм от моек, умывальников и ванн с уклоном 0,035.
В результате получают план этажа секции с сетями К1 в масштабе 1:100 или 1:200, пример показан на рис. 15.
19
План этажа секции с сетями К1 |
|
 |
|
6000 |
|
Ñò K1-1 |
Ñò K1-2 |
100 |
100 |
Á |
Ê1 |
|
|
|
50 |
6000 |
|
Фрагмент 1 |
|
À |
|
|
18000 |
1 |
2 |
|
Рис. 15 |
Стояки наносят крупными точками и каждому из них присваивают марку, например, Ст К1-1 (см. рис. 15). Количество канализационных стояков можно принимать равным числу водопроводных и разместить их рядом с ними, в одно монтажное отверстие в плите перекрытия. Это соответствует требованиям СНиП
3.05.01-85 (см. http://sologaev.ucoz.ru).
Особенность монтажа канализации состоит в том, что её собирают с раструбными соединениями, а повороты труб и боковые присоединения устраивают с помощью фасонных деталей. Для проработки этой особенности в курсовой работе надо вычертить в масштабе 1:50 или 1:100 фрагмент плана этажа с сетью К1, пример которого показан на рис. 16.
Фрагмент 1
Ñò K1-1 |
ÒÏ-100õ100 |
|
100 |
||
Ï-100-250 |
||
|
||
|
ÒÏÐ-100/50õ100 |
Ò×Ê-50-1000 ÒÏ-50õ50 Ï-50-400 ÒÏ-50õ50
Ò×Ê-50-1000 Ê-50
Рис. 16
20