Материал: 2432

Внимание! Если размещение файла нарушает Ваши авторские права, то обязательно сообщите нам

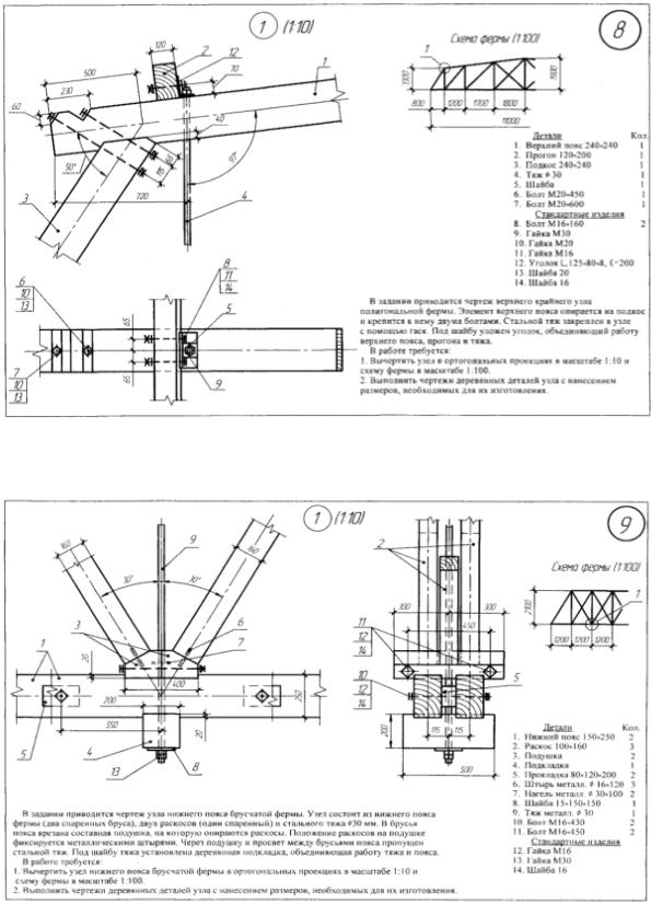
Вариант 8

СибАДИВариант 9

101

Вариант 10

Си 4. Теоретбческ е положения

Чертежи несущих деревянныхАконструкций здания входят в состав основного комплекта рабочих чертежей марки КД. В комплект чертежей также включают схемы расположения элементов конструкций (например, план стропил), сборочные чертежи элементов конструкций и рабочиеДчертежи.

План стропил вычерчивают для зданий, имеющих чердачное помещение.

сооружения.

Сборочные чертежи служат для монтажа деревянных конструкций здания или И

В состав рабочих чертежей входят геометрическая схема фермы, виды фермы с простановкой размеров и маркировкой и узлы.

Узлы соединений отдельных элементов фермы

Выносной элемент на чертежах деревянной конструкции принято называть узлом. Узлы выполняют по ГОСТ 2.305-68 с учетом требований СПДС. При выполнении чертежей узлов место, которое необходимо показать на выносном элементе, отмечают на схеме замкнутой сплошной тонкой линией (окружность или овал) с указанием на полке линии-выноски порядкового номера выносного элемента арабскойтцифрой (рис. 1).

102

Выносной элемент обозначают маркировочным кружком диаметром 12... 14 мм. В кружке указывают порядковый номер узла.

Маркировочный кружок чертят над выносным элементом.

С

 

ходимо

 

б

 

Рис. 1

На чертеже узла нео

сохранять такое положение элементов, какое

принято на схеме ли на главном виде конструкции. На чертеже узла указывают вид

А

соединения и соединяющие элементы - накладки, прокладки, гвозди, болты, скобы, их расположение, размеры и т.п.

На чертеже узла проставляют размеры: врубки, от центра узла до торца соединяемых элементов, от торца Драскоса до оси скрепляющего болта. Если элементом конструкции является доска или брус, то на главном виде проставляют размер, определяющий ширину видимой части изображаемого элемента.

1.В состав какого комплекта рабочих чертежейИвходят чертежи несущих металлодеревянных конструкций?

2.Какие чертежи включают в комплект чертежей марки КД?

3.Для каких зданий вычерчивают план стропил?

4.Для чего нужны сборочные чертежи металлодеревянных конструкций

здания или сооружения?Узлы соединений отдельных элементов фермы вычерчивают в масштабе 1:5,

103

5.

Чертежи каких элементов входят в состав рабочих чертежей

металлодеревянных конструкций?

6. Какой элемент на чертежах металлодеревянных конструкций называется узлом?

7.

Как обозначаются узлы на схемах металлодеревянных конструкций?

8.

Что такое вид соединения металлодеревянных конструкций?

9.

Что такое соединяющие элементы в узлах металлодеревянных

С

конструкций?

10. В как х масштабах вычерчивают узлы металлодеревянных конструкций?

и

 

Тема: Разработка чертежа типовой ж/б колонны

Лабораторная ра ота: Разра отка чертежа типовой ж/б колонны

1.Цель – осво ть в ды железо етонных колонн, их конструктивные решения, методику х черчен я.

2.Задан е: начерт ть узел железобетонной колонны в соответствии с исходными данными.

3.Исходные данныеб

АВариант 1

Д И

104

Вариант 2

Си б

АВариант 3

Д И

105