Материал: 2432

Внимание! Если размещение файла нарушает Ваши авторские права, то обязательно сообщите нам

Вариант 4

Си б АВариант 5

Д И

106

Вариант 6

СибАДИВариант 7

107

Вариант 8

Си б АВариант 9

Д И

108

Вариант10

С

 

и

 

б

А

 

Д

4. Теоретическиеположения

И

 

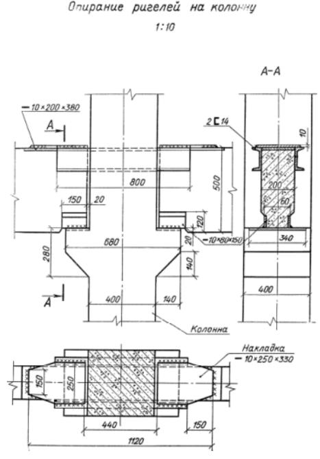
Сборочные чертежи элементов бетонных и железобетонных конструкций, включаюшие виды, разрезы и схемы армирования выполняют в масштабе 1:20, 1:50 или 1:100. Чертежи узлов конструкций (выносные элементы) вычерчивают в более крупном масштабе (1:5 или 1:10). На видах и разрезах показывают геометрическую форму конструкции, изображают имеющиеся в ней отверстия, проёмы, закладные детали, пробки, каналообразователи и т. п.

109

На сборочных чертежах показывают также различные метки и надписи, необходимые для правильной ориентации элементов при их транспортировке и монтаже: риски координационных осей, метки, указывающие места опирания элемента при транспортировке и складировании, места обрезки предварительно напрягаемой арматуры и т. п. Арматуру и её расположение показывают на других

чертежах-схемах армирования. Си б А Д

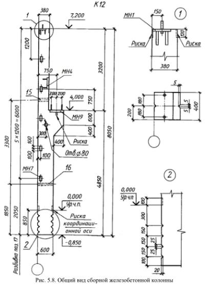
На рис. 5.8 приведён сборочный чертёж колонныИК-12. На виде нанесены

все размеры, определяющие габариты и форму колонны, изображены и замаркированы закладные детали МН 1, МН 4, МН 9; пробки МН 7, а также отверстие с указанием диаметра и т. п. Закладная деталь МН 9 расположена на опорной части консоли, для опирания подкрановой балки

110