П4. Принципиальная схема монтажа приточной вентиляционной установки с подогревом приточного воздуха
4 - 4
1 |
|
|
3 |
|
4 |
2 |
4 |
|
|
4 |
|
5 |
ø125 |
~352 |
min. 150 |
|
4
1 – оконный блок; 2 – отопительный прибор; 3 – подоконник; 4 – приточная вентиляционная установка; 5 – наружная решетка
П5. Принципиальная схема монтажа приточной вентиляционной установки, совмещенной с отопительным прибором
5
1
3
4
2
5
|
5 - 5 |
|
1 |
|
3 |
ø125 |
4 |
|
|
|
2 |
1 – оконный блок; 2 – отопительный прибор; 3 – подоконник; 4 – приточный блок, встроенный в отопительный прибор
46
ПРИЛОЖЕНИЕ Р (рекомендуемое)
СХЕМЫ ПОДКЛЮЧЕНИЯ КУХОННЫХ ВЫТЯЖЕК К ВЕНТИЛЯЦИОННЫМ КАНАЛАМ
а |
б |
|
3 |
|
|
|
|
1 |
|
|
7 |
5 |
|
2 |
4 |
||
|
|||
6 |
|
|
|
3 |
|
1 |
|
5 |
2 |
4 |
6 |
|
в |
г |
|
1 |
|
5 |
2 |
4 |
|
|
|
7 |
5 |
|


1

5 2 



4
5
Р и с у н о к Р1 - Схемы подключения кухонных вытяжек (вытяжных зонтов с встроенным вентилятором) к вентиляционным каналам: а, в – с дополнительным вентилятором; б, г – без дополнительного вентилятора (1 – вентиляционный канал; 2 – кухонная вытяжка; 3 – тройник; 4 – вытяжная вентиляционная решетка; 5 – обратный клапан; 6 – кухонная плита; 7 – вытяжной вентилятор)
а |
б |
|
1 |
|
2 |
4 |
|
7 |
||
|
||
6 |
|
|
4 |
3 |
|
|
|
1 |
|
|
|
|
|
2 |
|
7 |
5 |
|
|
4 |
|
|
|
|
6
Р и с у н о к Р2 - Схемы оснащения вытяжных вентиляционных каналов кухонь с автономными вытяжными зонтами: а – с вытяжным вентилятором; б – с вытяжным вентилятором и дополнительным ответвлением для естественной вытяжки (1 – вентиляционный канал; 2 – кухонная вытяжка; 3 – тройник; 4 – вытяжная вентиляционная решетка; 5 – обратный клапан; 6 – кухонная плита; 7 – вытяжной вентилятор)
47
Приложение С
(справочное)
ПРИМЕРЫ АЭРОДИНАМИЧЕСКОГО РАСЧЕТА СИСТЕМ ВЕНТИЛЯЦИИ
С1. Система вентиляции с естественным побуждением
С1.1. Цель расчета: проверка достаточности размеров вытяжных вентиляционных каналов системы вентиляции жилого дома и определение требуемого количества приточных клапанов.
С1.2 Исходные данные Десятиэтажный крупнопанельный жилой дом в конструкциях серии 97. Район строительства – г.Омск.
Здание расположено в жилой застройке. Уровень транспортного шума у фасада LA2м = 55 дБА. Схематичный план рядовой секции жилого дома приведен на рисунке С1.
Система вентиляции - естественная, с организованным притоком через стеновые вентиляционные клапаны и организованным удалением воздуха через вытяжные вентиляционные каналы, расположенные на кухне и в уборной. Принципиальная схема вентиляции соответствует рисунку 5.1, б.
Вытяжные каналы выполнены в сборных вентиляционных блоках заводского изготовления. Схема расположения и основные размеры вентиляционных каналов приведены на рисунке С2. Присоединение каналов–спутников к вертикальному сборному каналу – через этаж.
Приток воздуха - через стеновые вентиляционные клапаны.
Оконные и дверные балконные блоки - из ПВХ-профилей с двухкамерными стеклопакетами.
Зависимость расхода воздуха от перепада давлений для окон и балконных дверей описывается выражением Lок = 0,63 ( p/10)0,676 (по результатам испытаний).
Расчетные параметры переходного периода года:
-температура внутреннего воздуха tint =+21 оС;
-температура наружного воздуха text = +5 оС;
-расчетная скорость ветра v = 0 м/с. Расчетные параметры холодного периода года:
-температура внутреннего воздуха tint =+21 оС.
-температура наружного воздуха text = -37 оС;
-расчетная скорость ветра v = 2,8 м/с.
|
Кухня |
|
Жилая |
|
|
комната |
|
|
|
Жилая |
|
Жилая |
комната |
|
|
|
|
комната |
|
|
|
Жилая |
|
|
комната |
|
|
Кухня |
Кухня |
Р и с у н о к С1 - |
Схематичный план рядовой секции многоэтажного жилого дома |
|
48
ВЕ-1 |
ВЕ-2 |
1 - 1
40 220 40
50 |
460 |
50 |
60 |
50 |
120 |
40 |
40 |
120 |
|
|
|
|
||
1 |
1 |
|
|
|
|
60 |
50 |
50 |
|
|
|
60 |
50 |
2 |
|
|
|
|
2 |
|
|
|
|
|
|
|
|
2 - 2 |
|
|
|
|
|
|
40 |
60 |
50 |
|
|
|
220 |
|
|
|
|
|
|
|
|
|
|
|
40 |
|
|
50 |
|
460 |
50 |
|
|
120 |
40 |
40 |
120 |
Р и с у н о к С2 - Развертка по вентиляционным блокам с указанием размеров каналов и расходов воздуха на отдельных участках
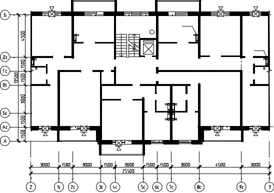
Расчет выполнен на примере трехкомнатных квартир. Планировочное решение квартир – аналогично рисунку В1.
С1.3 Результаты расчета требуемого воздухообмена Количество проживающих в каждой квартире - 3 человека. Расчетный воздухообмен квартир составляет (см. приложение В):
- в режиме обслуживания (в режиме проектной эксплуатации) - Lтрраб = 110 м3/ч; - в нерабочем режиме - Lтрнер = 23 м3/ч.
Расходы воздуха, удаляемого по каналам-спутникам и сборным каналам, приведены на расчетной схеме на рисунке С3.
С1.4 Определение располагаемых перепадов давлений для переходного периода года Располагаемый перепад давлений для условий переходного периода года рассчитываем по
формулам 5.8, 5.11, 5.12, принимая:
-плотность наружного воздуха ρн = 353/(273+5) = 1,270 кг/м3;
-плотность внутреннего воздуха ρint = = 353/(273+21) = 1,205 кг/м3;
-расстояние по вертикали от центра приточного вентиляционного устройства до устья сборного
вытяжного канала, hр , по разности отметок.
В частности, для квартиры первого и десятого этажей :
49
Pр,11 эт = 31,19 9,81 (1,270 – 1,205) = 19,89 Па; |
|
|
|
|
|
|||||||
Pр,210 эт = 5,99 9,81 (1,270 – 1,205) = 3,82 Па. |
|
|
|
|
|
|||||||
Результаты расчета располагаемых давлений по всем этажам приведены в таблице С1. |
|
|||||||||||
|
|
|
ВЕ-1 |
|
|
|
ВЕ-2 |
|
|
|
|
|
|
|
|
60 м3/ч 10 |
|
|
|
50 м3/ч |
|
|
|
||
|
|
|
l = 4,34 м |
|
|
|
l = 4,34 м |
10 |
|
|
||
91 |
|
60 м3/ч |
|
|
91 |
l |
50 м3/ч |
|
|
|
5990 |
|
|
l = 7,14 м |
|
|
|
= 7,14 м |
|
|
|
|
|
||
|
|
|
480 м3/ч |
9 |
|
|
|
400 м3/ч |
9 |
|
8790 |
Этаж 10 |
|
|
|
l = 7,19 м |
|
|
|
l = 7,19 м |
|
||||
|
|
|
|
|
|
|
|
|
|
|
|
|
|
|
60 м3/ч |
420 м3/ч |
|
|
|
50 м3/ч |
350 м3/ч |
|
|
|
|
81 l = 2,8 м |
l = 2,8 м |
8 |
81 l = 2,8 м |
l = 2,8 м |
8 |
|
11590 |
Этаж 9 |
||||
|
|
|
|
|
|
|
|
|
|
|
||
|
|
60 м3/ч |
360 м3/ч |
|
|
|
50 м3/ч |
300 м3/ч |
|
|
|
|
|
|
|
|
|
|
|
|
|
||||
71 l = 2,8 м |
l = 2,8 м |
7 |
71 l = 2,6 м |
l = 2,8 м |
7 |
|
14390 |
Этаж 8 |
||||
|
|
|
|
|
|
|
|
|
|
|
||
|
|
60 м3/ч |
|
|
|
|
|
250 м3/ч |
|
|
|
|
|
|
|
6 |
|
|
50 м3/ч |
6 |
|
|
|
||
61 l = 2,8 м |
|
61 l = 2,8 м |
l = 2,8 м |
|
17190 |
Этаж 7 |
||||||
|
|
|
|
|
|
|
|
|
|
|
||
|
|
60 м3/ч |
240 м3/ч |
|
|
|
50 м3/ч |
200 м3/ч |
|
|
|
|
51 l = 2,8 м |
l = 2,8 м |
5 |
51 l = 2,8 м |
l = 2,8 м |
5 |
|
19990 |
Этаж 6 |
||||
|
|
|
|
|
|
|
|
|
|
|
||
41 |
60 м3/ч |
180 м3/ч |
|
|
|
50 м3/ч |
150 м3/ч |
|
|
|
||
4 |
41 |
4 |
|
|
|
|||||||
|
|
l = 2,8 м |
l = 2,8 м |
|
|
l = 2,8 м |
l = 2,8 м |
|
22790 |
Этаж 5 |
||
|
|
|
|
|
|
|
|
|
|
|
||
|
|
60 м3/ч |
|
|
|
|
3 |
|
|
|
|
|
|
|
120 м3/ч |
|
|
|
100 м3/ч |
|
|
|
|
||
31 l = 2,6 м |
3 |
31 |
50 м /ч |
3 |
|
|
|
|||||
|
|
|
l = 2,8 м |
|
|
l = 2,8 м |
l = 2,8 м |
|
25590 |
Этаж 4 |
||
|
|
|
|
|
|
|
|
|
|
|
||
21 |
60 м3/ч |
|
|
21 |
50 м3/ч |
|
|
|
|
|||
|
|
l = 2,8 м |
60 м3/ч |
2 |
|
|
l = 2,8 м |
50 м3/ч |
2 |
|
|
Этаж 3 |
|
|
|
l = 2,8 м |
|
|
|
|
l = 2,8 м |
|
|
28390 |
|
|
|
60 м3/ч |
|
|
|
|
50 м3/ч |
|
|
|
|
|
1 |
|
|
|
1 |
|
|
|
|
|
|||
|
|
l = 2,8 м |
|
|
|
|
l = 2,8 м |
|
|
|
31190 |
Этаж 2 |
|
|
|
|
|
|
|
|
Приточный |
|
|||
|
|
|
|
|
|
|
|
клапан |
|
|
||
|
|
|
|
|
|
|
|
|
|
|
|
Этаж 1 |
Р и с у н о к С3 - Расчетные схемы систем вентиляции ВЕ-1 и ВЕ-2
С1.5 Расчет потерь давления в вытяжных каналах при расчетных расходах воздуха Определяем потери давления на трение и местные сопротивления в вытяжных каналах, задавая
по всем участкам расчетные расходы воздуха (по формуле 5.14).
Pпотв,i = ( Ri li i + zi ) , |
(С.1) |
где li – длина i-го участка вентиляционного канала, м;
i – поправочный коэффициент, учитывающий шероховатость поверхности воздуховодов, принимаемый по приложению М;
50