Т а б л и ц а С12 – Результаты расчета потерь давления при движении воздуха из квартир некоторых этажей системы ВЕ-1
№ |
Li, |
li , |
ai х bi , |
|
i, |
dэ, |
|
Ri , |
Ri li i |
i |
Z , |
Pпотв,i, |
участка |
м3/ч |
м |
|
м/с |
м |
|
Па/м |
, |
Па |
Па |
||
|
|
|
м |
|
|
|
|
|
Па |
|
|
|
1 |
2 |
3 |
4 |
|
5 |
6 |
|
7 |
8 |
9 |
10 |
11 |
|
|
|
|
|
Первый этаж |
|
|
|
|
|
||
1 |
50 |
2,8 |
0,14х0,14 |
|
0,71 |
0,140 |
|
0,080 |
0,31 |
4,23 |
1,28 |
1,59 |
2 |
50 |
2,8 |
0,14х0,14 |
|
0,71 |
0,140 |
|
0,080 |
0,31 |
0,52 |
0,16 |
0,46 |
3 |
100 |
2,8 |
0,14х0,14 |
|
1,42 |
0,140 |
|
0,260 |
1,12 |
0,52 |
0,63 |
1,75 |
4 |
150 |
2,8 |
0,14х0,27 |
|
1,10 |
0,184 |
|
0,110 |
0,46 |
0,52 |
0,38 |
0,84 |
5 |
200 |
2,8 |
0,27х0,27 |
|
0,76 |
0,270 |
|
0,037 |
0,16 |
0,52 |
0,18 |
0,34 |
6 |
250 |
2,8 |
0,27х0,27 |
|
0,95 |
0,270 |
|
0,055 |
0,22 |
0,52 |
0,28 |
0,51 |
7 |
300 |
2,8 |
0,27х0,27 |
|
1,14 |
0,270 |
|
0,080 |
0,33 |
0,52 |
0,41 |
0,74 |
8 |
350 |
26,8 |
0,27х0,27 |
|
1,33 |
0,270 |
|
0,100 |
4,07 |
0,25 |
0,27 |
4,34 |
9 |
800 |
0,6 |
0,27х0,51 |
|
1,61 |
0,353 |
|
0,100 |
0,09 |
1 |
1,57 |
1,66 |
|
|
|
|
|
|
|
|
|
|
Pпот |
выт,i = |
12,24 |
|
|
|
|
|
Восьмой этаж |
|
|
|
|
|
||
81 |
50 |
2,8 |
0,14х0,14 |
|
0,71 |
0,140 |
|
0,080 |
0,31 |
4,06 |
1,23 |
1,54 |
8 |
350 |
26,8 |
0,27х0,27 |
|
1,33 |
0,270 |
|
0,100 |
4,07 |
0,25 |
0,27 |
4,34 |
9 |
800 |
0,6 |
0,27х0,51 |
|
1,61 |
0,353 |
|
0,100 |
0,09 |
1 |
1,57 |
1,66 |
|
|
|
|
|
|
|
|
|
|
Pпот |
выт,i = |
7,54 |
|
|
|
|
|
Девятый этаж |
|
|
|
|
|
||
10 |
50 |
2,8 |
0,14х0,14 |
|
0,71 |
0,140 |
|
0,080 |
0,31 |
4,23 |
1,28 |
1,59 |
11 |
50 |
2,8 |
0,14х0,14 |
|
0,71 |
0,140 |
|
0,080 |
0,31 |
0,52 |
0,16 |
0,46 |
12 |
100 |
2,8 |
0,14х0,14 |
|
1,42 |
0,140 |
|
0,260 |
1,12 |
0,52 |
0,63 |
1,75 |
13 |
150 |
2,8 |
0,14х0,27 |
|
1,10 |
0,184 |
|
0,110 |
0,46 |
0,52 |
0,38 |
0,84 |
14 |
200 |
2,8 |
0,27х0,27 |
|
1,47 |
0,184 |
|
0,190 |
0,82 |
0,52 |
0,68 |
1,50 |
15 |
250 |
2,8 |
0,27х0,27 |
|
0,95 |
0,270 |
|
0,055 |
0,22 |
0,52 |
0,28 |
0,51 |
16 |
300 |
2,8 |
0,27х0,27 |
|
1,14 |
0,270 |
|
0,080 |
0,33 |
0,52 |
0,41 |
0,74 |
17 |
350 |
2,8 |
0,27х0,27 |
|
1,33 |
0,270 |
|
0,100 |
0,43 |
0,52 |
0,56 |
0,98 |
18 |
400 |
7,2 |
0,27х0,27 |
|
1,52 |
0,270 |
|
0,120 |
1,33 |
0,25 |
0,35 |
1,68 |
9 |
800 |
0,6 |
0,27х0,51 |
|
1,61 |
0,353 |
|
0,1 |
0,09 |
1 |
1,57 |
1,66 |
|
|
|
|
|
|
|
|
|
|
Pпотвыт,i= |
10,13 |
|
|
|
|
|
Семнадцатый этаж |
|
|
|
|
||||
19 |
50 |
7,14 |
0,14х0,14 |
|
0,71 |
0,140 |
|
0,080 |
0,31 |
3,20 |
0,97 |
1,75 |
9 |
800 |
0,6 |
0,27х0,51 |
|
1,61 |
0,353 |
|
0,100 |
0,09 |
1 |
1,57 |
1,66 |
|
|
|
|
|
|
|
|
|
|
Pпотвыт,i= |
3,41 |
|
С4.6 Подбор вентиляторов Подбор вентиляторов проводим на климатические условия теплого периода (при равенстве рас-
четных температур наружного и внутреннего воздуха) для всех квартир.
Максимальный перепад давлений, требуемый для преодоления потерь давления в вытяжных каналах и приточных клапанах определяем по формуле 5.15 СТО с учетом P р = 0 Па
Pвенвыт =1,1 ( Pпотвыт + Pпр - Pр )
Наихудшие условия наблюдаются для квартиры второго этажа (наибольшие потери давления в вытяжных каналах Pпотвыт,1 = 12,56 Па – см. таблицу С13).
Для обеспечения требуемого воздухообмена величина Pпр должна составлять ~ 17 Па. По
графикам рисунка С14 при Pпр = 17 Па Lклап1эт = 33,1,0 м3/ч, Lок1эт = 1,0 м3/(ч м2). Соответственно Lпр2эт = 33,1 3 + 1,0 11,38 м3/(ч м2) = 110,4 м3/ч;
Таким образом, для вытяжного канала второго этажа системы ВЕ-1
Pвенвыт = 1,1 (12,56 + 17,0 - 0) ≈ 32,5 Па; для вытяжного канала второго этажа системы ВЕ-2
Pвенвыт = 1,1 (12,24 + 17 - 0) ≈ 32,2 Па.
71
Результаты расчета требуемых характеристик вентиляторов по этажам рассчитываемого здания приведены в таблице С13.
По характеристикам подбираем вентиляторы, обеспечивающие расход воздуха для совмещен-
ного санузла Lвен = 50 м3/ч при давлении 32,5 Па; для кухни Lвен = 60 м3/ч при давлении 32,2 Па. Указанным требованиям соответствуют вентиляторы «Punto Filo MF 120/5”».
Характеристика вентилятора приведены на рисунке С17 Регулирование расхода удаляемого воздуха предусматриваем за счет регулирования частоты
оборотов вентиляторов.
Т а б л и ц а С13 – Результаты расчета характеристик бытовых вентиляторов в трехкомнатных квартирах по этажам здания со стеновыми вентиляционными клапанами
|
|
|
|
|
|
|
|
|
№ |
|
Lвен, м3/ч |
Pпр, |
Pпотвыт ,Па |
Pвенвыт, Па |
|||
этажа |
ВЕ-1 |
|
ВЕ-2 |
Па |
ВЕ-1 |
ВЕ-2 |
ВЕ-1 |
ВЕ-2 |
2 |
50 |
|
60 |
17,0 |
12,24 |
12,56 |
32,16 |
32,52 |
3 |
50 |
|
60 |
17,0 |
11,72 |
12,59 |
31,59 |
32,55 |
4 |
50 |
|
60 |
17,0 |
9,97 |
12,05 |
29,67 |
31,95 |
5 |
50 |
|
60 |
17,0 |
9,13 |
10,91 |
28,75 |
30,70 |
6 |
50 |
|
60 |
17,0 |
8,79 |
10,44 |
28,37 |
30,19 |
7 |
50 |
|
60 |
17,0 |
8,28 |
9,70 |
27,81 |
29,37 |
8 |
50 |
|
60 |
17,0 |
7,54 |
8,64 |
26,99 |
28,21 |
9 |
50 |
|
60 |
17,0 |
10,13 |
10,77 |
29,84 |
30,55 |
10 |
50 |
|
60 |
17,0 |
11,20 |
10,80 |
31,02 |
30,58 |
11 |
50 |
|
60 |
17,0 |
9,45 |
10,26 |
29,10 |
29,98 |
12 |
50 |
|
60 |
17,0 |
8,61 |
9,11 |
28,18 |
28,72 |
13 |
50 |
|
60 |
17,0 |
7,11 |
8,65 |
26,52 |
28,21 |
14 |
50 |
|
60 |
17,0 |
6,61 |
7,90 |
25,97 |
27,40 |
15 |
50 |
|
60 |
17,0 |
5,86 |
6,85 |
25,15 |
26,23 |
16 |
50 |
|
60 |
17,0 |
4,88 |
5,51 |
24,07 |
24,77 |
17 |
50 |
|
60 |
17,0 |
3,41 |
3,02 |
22,46 |
22,02 |
Pвен , Па |
|
|
|
45 |
|
|
|
|
|
Punto Filo MF 120/5” |
|
30 |
|
|
|
15 |
|
|
|
0 |
|
|
150 Lвен, м3/ч |
0 |
50 |
100 |
|
Р и с у н о к С17 - Характеристики осевого венти-
лятора Punto Filo MF 120/5”
72
С5. Система вентиляции с централизованным механическим удалением воздуха («гибридная» система вентиляции)
С5.1. Цель расчета: подбор вытяжных вентиляторов, оценка работоспособности системы при различных сочетаниях внешних и внутренних воздействий.
С5.2 Исходные данные Десятиэтажный крупнопанельный жилой дом в конструкциях серии 90. Район строительства – г.Новосибирск.
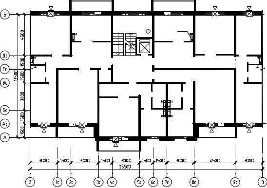
Схематичный план рядовой секции жилого дома приведен на рисунке С17.
Здание расположено в жилой застройке. Уровень транспортного шума у фасада LA2м = 75 дБА. Система вентиляции – «гибридная», с организованными притоком через оконные вентиляцион-
ные клапаны EMM 3-30 «Aereco» и организованным удалением воздуха через вытяжные вентиляционные каналы с вытяжными гигрорегулируемыми устройствами марки BXC «Aereco», расположенные на кухне и в уборной. На оголовке каждой вытяжной шахты установлен вытяжной вентилятор. Принципиальная схема вентиляции соответствует рисунку 5.2, в настоящего СТО.
Вытяжные каналы выполнены в сборных вентиляционных блоках заводского изготовления. Схема расположения и основные размеры вентиляционных каналов приведены на рисунке С18. Присоединение каналов–спутников к вертикальному сборному каналу – через этаж.
Оконные и дверные балконные блоки - из ПВХ-профилей с двухкамерными стеклопакетами. Зависимости расхода воздуха от перепада давлений для приточных устройств и оконных блоков приведены на рисунке С14.
Расчетные параметры переходного периода года:
-температура внутреннего воздуха tint =+21 оС;
-температура наружного воздуха text = +5 оС;
-расчетная скорость ветра v = 0 м/с. Расчетные параметры холодного периода года:
-температура внутреннего воздуха tint =+21 оС.
-температура наружного воздуха text = -39 оС;
-расчетная скорость ветра v = 4,7 м/с.
Расчет выполнен на примере трехкомнатных квартир.
|
Кухня |
Жилая |
|
комната |
|
|
Жилая |
Жилая |
комната |
|
|
комната |
|
|
Жилая |
|
комната |
|
Кухня |
Р и с у н о к С18 - |
Схематичный план рядовой секции многоэтажного жилого дома |
73
В-1 |
В-2 |
1 - 1
40 220 40
50 |
460 |
50 |
|
60 |
50 |
120 |
40 |
40 |
120 |
1 |
1 |
|
|
|
|
|
|
60 |
|
50 |
|
|
|
|
60 |
50 |
|
|
|
|
|
2 |
|
2 |
|
|
|
|
|
|
|
|
2 - 2 |
|
|
|
|
|
|
|
40 |
|
60 |
60 |
|
|
|
220 |
|
|
|
|
|
|
|
|
|
|
|
|
|
40 |
|
|
|
50 |
|
460 |
50 |
|
|
|
120 |
40 |
40 |
120 |
Р и с у н о к С19 - Развертка по вентиляционным блокам с указанием размеров каналов и расходов воздуха на отдельных участках
С5.3 Результаты расчета требуемого воздухообмена Количество проживающих в каждой квартире - 3 человека. Расчетный воздухообмен квартир составляет:
- в режиме обслуживания (в режиме проектной эксплуатации) - Lтрраб = 110 м3/ч; - в нерабочем режиме - Lтрнер = 23 м3/ч.
Расходы воздуха по каналам-спутникам и сборным каналам приведены на рисунке С20.
С5.4 Расчет потерь давления в вытяжных каналах при расчетных расходах воздуха Определяем потери давления на трение и местные сопротивления в вытяжных каналах, задавая
по всем участкам расчетные расходы воздуха (по формуле 5.14).
Pпотв,i = ( Ri li i + zi ) ,
где li – длина i-го участка вентиляционного канала, м;
i – поправочный коэффициент, учитывающий шероховатость поверхности воздуховодов, принимаемый по приложению М;
Ri – удельные потери давления на трение на i-ом участке вытяжного канала, Па, определяемые по номограммам приложения Н с учетом приведения расчетных размеров вытяжных каналов к эквивалентному диаметру dэ (см. формулу С2);
zi – потери давления в местных сопротивлениях на i-ом участке вытяжного канала, Па.
74
|
|
|
В-1 |
|
|
|
|
|
В-2 |
|
|
|
|
|
|
|
|
|
|
600 м3/ч |
11 |
11 |
500 м3/ч |
|
|
|
|
|
|
|
|
||
|
|
|
l = 0,4 м |
|
|
l |
= 0,4 м |
|
|
|
|
|
|
|
|
|
|
|
|
60 м3/ч |
|
|
|
|
3 |
|
|
6790 |
|
|
|
|
|
91 |
|
3 |
l = 5,14 м10 |
91 |
|
3 |
50 м /ч |
10 |
|
|
|
|
||||
|
60 м /ч |
|
|
|
l |
50 м /ч |
l = 5,14 м |
|
|
|
|
|
||||
|
l = 7,94 м |
|
|
|
|
= 7,94 м |
|
|
|
|
|
|
|
|
||
|
|
|
480 м3/ч |
9 |
|
|
|
|
400 м3/ч |
9 |
|
9590 |
|
|
|
Этаж 10 |
|
|
|
l = 7,99 м |
|
|
|
|
l = 7,99 м |
|
|
|
|
||||
|
|
|
|
|
|
|
|
|
|
|
|
|
|
|
|
|
|
|
60 м3/ч |
420 м3/ч |
|
|
|
|
50 м3/ч |
350 м3/ч |
|
|
|
|
|
|
|
81 l = 2,8 м |
l = 2,8 м |
8 |
|
81 l = 2,8 м |
l = 2,8 м |
8 |
|
12390 |
|
|
|
Этаж 9 |
||||
|
|
|
|
|
|
|
|
|
|
|
|
|
|
|
||
|
|
60 м3/ч |
360 м3/ч |
|
|
|
|
50 м3/ч |
300 м3/ч |
|
|
|
|
|
|
|
|
|
|
|
|
|
|
|
|
|
|
|
|
||||
71 l = 2,8 м |
l = 2,8 м |
7 |
|
71 l = 2,6 м |
l = 2,8 м |
7 |
|
|
15190 |
|
|
Этаж 8 |
||||
|
|
|
|
|
|
|
|
|
|
|
|
|
|
|
||
|
|
60 м3/ч |
|
|
|
|
|
|
250 м3/ч |
|
|
|
|
|
|
|
|
|
|
6 |
|
|
|
50 м3/ч |
6 |
|
|
|
|
|
|
||
61 l = 2,8 м |
|
|
61 l = 2,8 м |
l = 2,8 м |
|
|
|
17990 |
|
Этаж 7 |
||||||
|
|
|
|
|
|
|
|
|
|
|
|
|
|
|
||
|
|
60 м3/ч |
240 м3/ч |
|
|
|
|
50 м3/ч |
200 м3/ч |
|
|
|
|
|
|
|
51 l = 2,8 м |
l = 2,8 м |
5 |
|
51 l = 2,8 м |
l = 2,8 м |
5 |
|
|
|
|
20790 |
Этаж 6 |
||||
|
|
|
|
|
|
|
|
|
|
|
|
|
|
|
||
|
|
60 м3/ч |
180 м3/ч |
|
|
|
|
50 м3/ч |
150 м3/ч |
|
|
|
|
|
|
|
41 |
4 |
|
41 |
4 |
|
|
|
|
|
|
||||||
|
|
l = 2,8 м |
l = 2,8 м |
|
|
|
l = 2,8 м |
l = 2,8 м |
|
|
|
|
23590 |
Этаж 5 |
||
|
|
|
|
|
|
|
|
|
|
|
|
|
|
|
||
|
|
60 м3/ч |
|
|
|
|
|
3 |
|
|
|
|
|
|
|
|
|
|
120 м3/ч |
|
|
|
|
100 м3/ч |
|
|
|
|
|
|
|
||
31 l = 2,6 м |
3 |
|
31 |
50 м /ч |
3 |
|
|
|
|
|
|
|||||
|
|
|
l = 2,8 м |
|
|
|
l = 2,8 м |
l = 2,8 м |
|
|
|
|
26390 |
Этаж 4 |
||
|
|
|
|
|
|
|
|
|
|
|
|
|
|
|
||
21 |
60 м3/ч |
60 м3/ч |
2 |
|
21 |
50 м3/ч |
50 м3/ч |
2 |
|
|
|
|
|
|||
|
|
l = 2,8 м |
|
|
|
l = 2,8 м |
|
|
|
|
|
Этаж 3 |
||||
|
|
|
l = 2,8 м |
|
|
|
|
|
l = 2,8 м |
|
|
|
|
|
29190 |
|
|
|
60 м3/ч |
|
|
|
|
|
50 м3/ч |
|
|
|
|
|
|
|
|
1 |
|
|
|
|
1 |
|
|
|
|
|
|
|
|
|||
|
|
l = 2,8 м |
|
|
|
|
|
l = 2,8 м |
|
|
|
|
|
|
31990 |
Этаж 2 |
|
|
|
|
|
Вытяжной |
|
Приточный |
|
|
|
|
|||||
|
|
|
|
|
|
клапан |
|
|
|
|
|
|||||
|
|
|
|
|
клапан |
|
|
|
|
|
|
|
|
|
|
Этаж 1 |
|
|
|
|
|
|
|
|
|
|
|
|
|
|
|
|
|
Р и с у н о к С20 - Расчетные схемы систем вентиляции В-1 и В-2
Потери давления в местных сопротивлениях zi рассчитываем по формуле С3 при расчетных скоростях движения воздуха на i-м участке канала.
В частности, для участка 1 вытяжного канала первого этажа системы В-1:
-расход воздуха Lуд,1 = 60 м3/ч;
-длина участка l1 = 2,8 м;
-эквивалентный диаметр канала 120х220 мм - dэ = 2 0,12 0,22/ (0,12+0,22) = 0,155 м;
-скорость движения воздуха - 1 = 60/(3600 0,12 0,22) = 0,63 м/с;
-потери давление на трение (по номограмме приложения Н) - R1 = 0,052 Па/м;
-поправочный коэффициент, учитывающий шероховатость поверхности воздуховодов - 1 = 1,15;
-сумма коэффициентов местных сопротивлений (см. приложение И) - ζI = 4,23 (вентиляционная решетка ζ = 2; поворот с изменением сечения ζ = 1,03; вход в сборный канал с поворотом ζ = 1,2);
-потери давления на трение и местные сопротивления Pпотвыт,1 = 0,052 2,8 1,15 + (4,23 0,632/2)
1,205 = 1,18 Па.
Особенность проектируемой системы – установке на входе в каждый вытяжной канал всех квартир гигрорегулируемых вытяжных устройств марки BXC «Aereco» (рисунок С21).
Результаты расчета потерь давлений по остальным участкам приведены в таблице С14.
75