|
|
|
Крутизна откоса (отношение его высоты к заложению) при |
||||
|
Виды грунтов |
|
|
глубине выемки, м, не более |
|||
|
|
|
1,5 |
|
3 |
|
5 |
|
Супесь |
|
1:0,25 |
|
1:0,67 |
|
1:0,85 |
|
Суглинок |
|
1:0 |
|
1:0,5 |
|
1:0,75 |
|
Глина |
|
1:0 |
|
1:0,25 |
|
1:0,5 |
|
Лессовые |
|
1:1 |
|
|
|
|
|
|
1:0,5 |
|
1:0,5 |
|||
|
Примечания 1. При напластовании различных видов грунта крутизну откосов для всех пластов |
||||||
|
надлежит назначать по наименее устойчивому виду от обрушения откоса |
||||||
|
СибАДИ |
||||||
|
2. К неслежавшимся насыпным относятся грунты с давностью отсыпки до 2-х лет для песчаных; |
||||||
|
до 5-ти лет для пылевато-глинистых грунтов. |
|
|
|
|
||
|
3. Крутизна откосов выемок глуб ной более 5-ти м во всех случаях |
глубиной менее 5 м при гид- |
|||||
|
рогеологическ х услов ях |
в дах грунтов не предусмотренных СНиП, а также откосов, подвер- |
|||||
|
гающихся увлажнен ю, должны устанавливаться проектом. |
|
|
||||
|
Расчетная дл на подкранового пути корректируется исходя из минимальной дли- |
||||||
|
ны одного звена - 12,5 м с учетом тре ования норм не менее двух звеньев (25 м). В |
||||||
|
случае устройства пути |
з одного звена при стесненной строительной площадке, гру- |
|||||
зоподъемность крана определяется исходя из условия его работы без передвижения. Кран, установленный на таком пути, является стационарным.
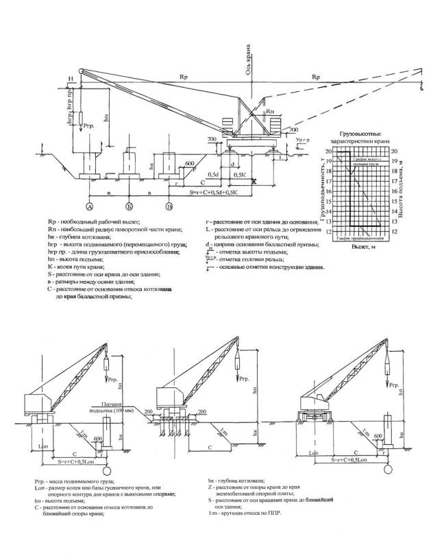
Рисунок 7 - Привязка стрелового крана к зданию
46
СибАДИРисунок 8 - Установка ашенного крана у откоса котлована
Рисунок 9 - Установка стрелового крана у откосов выемки
При привязке стреловых башенных кранов с поворотной башней для возведения надземной части здания (сооружения) расстояние (Sк) от оси вращения крана до ближайшей оси здания (сооружения) как показано на рисунках 6 и 7 определяется наибольшей суммой расстояний от оси здания до его выступающих частей (а) и габарита приближения (п) плюс величина габарита поворотной части крана (Rп)
47
S = a + п + Rп
Примечание. Сумма а + п для башенных кранов определяется с учетом п. 3.5 и принимается наибольшей.
При привязке стреловых башенных кранов с поворотной башней для возведения надземной части здания (сооружения) расстояние (Sк) от оси вращения крана до ближайшей оси здания (сооружения) как показано на рисунках 6 и 7 определяется наибольшей суммой расстояний от оси здания до его выступающих частей (а) и габарита приближения (п) плюс величина габарита поворотной части крана (Rп)
S = a + п + Rп
Примечан е. умма а + п для башенных кранов определяется с учетом п. 3.5 и принимается наибольшей.
Расчеты определение опасных зон на стройплощадке
При работе грузоподъемного крана на строительстве отдельного здания можно выделить следующ е самостоятельные зоны: обслуживания, вблизи строящегося здания и опасной для нахожден я людей.
Зона обслуж ван я башенных рельсовых и самоходных кранов определяется максимальным рабоч м вылетом стрелы на участке между крайними стоянками крана на рельсовом или безрельсовом крановом пути.
Согласно СНиП 12-03-2001 границы опасных зон в местах, над которыми происходит перемещение грузов подъемными кранами, а также вблизи строящегося здания принимаются от крайней точки горизонтальной проекции наружного наименьшего габарита перемещаемого груза или стены здания с прибавлением наибольшего габарит-
|
ного размера перемещаемого (падающего) груза |
минимального расстояния отлета |
||
|
груза при его падении. Минимальное расстояние отлета груза (предмета) приведено в |
|||
|
таблице 5. |
|
|
|
|
Таблица 5 - Минимальное расстояние отлета груза |
|
||
|
|
|
Минимальное расстояние отлета груза (предмета), м |
|
|
Высота возможного падения |
|
||
|
груза (предмета), м |
|
перемещаемого краном |
падающего со здания |
|
До 10 |
|
4 |
3,5 |
|
до 20 |
|
7 |
5 |
|
до 70 |
|
10 |
7 |
|
до 120 |
|
15 |
10 |
|
СибАДИ |
|||
|
до 200 |
20 |
15 |
|
|
до 300 |
25 |
20 |
|
|
до 450 |
30 |
25 |
|
* При промежуточных значениях высоты возможного падения груза (предмета) минимальное расстояние их отлета допускается определять методом интерполяции.
Границы зон, возникающих при работе крана на зданиях и сооружениях, представлены на рисунках 5.2-5.4. лабораторная работа 6.
48
Пример расчета:
Выбор кранов для выполнения лабораторной работы по возведению здания или сооружения осуществляется в два этапа.
На первом этаже исходя из габаритов возводимого здания (сооружения), максимальной массы сборных элементов и их расположения в плане здания, размеров строительной площадки (условия стесненности производства работ), выбирают тип крана (стреловой, башенный), который по своим техническим характеристикам может обеспечить выполнение технологических операций и процессов.
На втором этаже выбирают конкретную модель крана с необходимыми парамет- СибАДИрами (грузоподъемность, длина стрелы, дополнительное оборудование). Так при
строительстве промышленных зданий и других развитых в плане сооружений относительно небольшой высоты рекомендуется использовать стреловые самоходные краны.
Башенные краны спользуются, в основном, при строительстве жилых и админи- стративно-бытовых здан й, а также промышленных зданий и сооружений большой
высоты, большой дл ны относительно небольшой ширины.
Выбор конкретной модели начинают с определения требуемых параметров монтажных кранов при возведен того или иного здания из сборных элементов. При выборе кранов сходными данными являются:
− объемно-план ровочное и конструктивное решение строящегося здания; − массы монт руемых элементов, расположение их в плане и по высоте; − методы орган зац строительства, способы и методы монтажа.
Рабочие параметры кранов определяются на основе монтажных характеристик элементов сборных конструкций. К монтажным характеристикам сборных элементов относятся:
Qм− монтажная масса, т;
Нм− монтажная высота подъема крюка, м; Z м − монтажный вылет крюка крана, м.
Монтажная масса конструкций характеризуется массой самой конструкции и массой монтажных приспособлений. Определяется монтажная масса для самых тяжелых и наиболее удаленных элементов по формуле:
Q м Q эл. qприсп. ,
где Qэл. − масса элемента, конструкции, т; qприсп. − масса монтажных приспособле-
ний, т.
Высота подъема крюка ( Нм) технологически необходимая высота вертикального
перемещения монтируемых элементов определяется по формуле:
Нм h1 h2 h3 h4 ,
где h1− проектная отметка (превышение опоры монтируемого элемента над уровнем стоянки крана; h2 − высота подъема элемента над опорой (принимают для безопасности и удобства монтажа от 0,5 до 1,0 м); h3 − высота (толщина) монтажного элемента; h4 − длина (высота) стропов или грузозахватного приспособления над монтируемым
элементом.
Монтажный вылет стрелы (крюка) крана описывается радиусом его действия, т.е. расстоянием от центра тяжести монтируемого элемента до оси вращения крана:
49
|
|
Z 1 2 3 , |
|
||
где 1− расстояние от оси вращения крана до шарнира крепления стрелы для стрело- |
|||||
вых кранов (принимается 1,5 м) и до ближайшей опоры − для башенных; 2− расстоя- |
|||||
ние от шарнира крепления стрелы или опоры крана до наружной поверхности соору- |
|||||
жения; 3 − расстояние от наружной поверхности сооружения до оси крюка крана (см. |
|||||
рис. 8.1). |
|
|
|
|
|
|
|
|
|
4 |
|
|
|
|
|
h |
|
|
|
|
|
3 |
|
|
|
|
|
h |
|
|
|
|
|
2 |
|
|
|
|
|
h |
|
|
|
|
|
1 |
м |
|
|
|
|
h |
Н |
|
1 |
Z |
2 |
3 |
|
|
|
|
|
|
|
Р сунок 8.1 – Определение монтажного вылета стрелы (крюка) крана. |
|||||
Для определения тре уемого вылета крюка крана и длины стрелы монтажного |
|||||
крана обычно пользуются двумя спосо ами: графическим или аналитическим. |
|||||
Графический способ. В произвольном масштабе вычеркивают контур монтируе- |
|||||
мого сооружения, контур характерного элемента или конструкции в монтажном поло- |
|||||
жении над проектной отметкой и проводят ось крюка крана. |
|
||||
Для кранов с наклонной стрелой |
(рис. 8.2) ось стрелы проводят через две точки: |
||||
А, расположенную на высоте Нм 1,5м (где 1,5 м − минимальное расстояние от крюка |
|||||
крана до оголовка стрелы, т.е. высота полиспаста), и В, обеспечивающую безопасный |
|||||
зазор между стрелой |
выступающими гранями ранее смонтированных элементов |
||||
(принимается от 1,0 до 1,5 м по условиям техники безопасности). |
|||||
Ось стрелы проводят до пересечения с линией N-N, расположенной на уровне |
|||||
крепления стрелы, параллельной плоскости стоянки крана (принимается по техпас- |
|||||
порту или 1,5 м). Получают точку Д. Затем от точки Д влево откладывают 1(по тех- |
|||||
СибАДИ |
|||||
паспорту или принимают 1,5 м для стреловых кранов). Все построения выполняют в |
|||||
том же масштабе. По построенной схеме графически определяют длину стрелы крана |
|||||
L (м) и монтажный вылет крюка Z (м). |
|
|
|
||
Аналитический метод. Используя рис. 8.2 и 8.3 проводят дополнительные построения и получают два прямоугольных подобных треугольника. Обозначим один
АВС со сторонами а, в, с и второй ВДЕ со сторонами а1, в1, с1. |
|
Из АВС находят а = (1,5 м + h4 + h3 + h2 ) − 1,0 м; |
в = ( 3 1,0 м); |
с2 = а2 + в2, отсюда определяют с.
50