Материал: Технология отрасли - 2020

Внимание! Если размещение файла нарушает Ваши авторские права, то обязательно сообщите нам
  1. Цель замачивания, химические изменения при замачивании.

Основная цель замачивания - довести зерно до требуемой влажности, очистить его от пыли и грязи, удалить легкие зерновые и незерновые примеси, продезинфицировать зерно.

Переход зерна из состояния покоя к первым признакам жизни начинается с процесса набухания. В зерне появляется свободная влага в виде пара или в капельно-жидком состоянии. При наличии достаточного количества влаги зерно быстро увеличивается в объеме. Скорость поглощения влаги зависит от особенностей используемого зерна. Крупные зерна поглощают ее медленнее, так как их поверхность, отнесенная к единице массы, меньше.

Весь процесс взаимодействия зерна с водой можно разделить на три этапа. Начальный этап длится от 0,5 до 1,0 часа, за это время происходит влагонасыщение плодовых и семенных оболочек, алейронового слоя и зародыша. Основной этап составляет от 5 до 12 часов, за это время происходит перенос влаги внутрь эндосперма. Заключительный этап длиться до суток и более, при этом завершается распределение влаги по анатомическим частям.

Длительное нахождение зерна в воде приводит к активации биохимических процессов в прорастающей зерновке, которые заключаются в интенсивном гидролизе высокомолекулярных соединений, расположенных в эндосперме, и переводе их в водорастворимое состояние, доступное для подачи в росток, наряду с этим возрастает дыхательный газообмен зерна При замачивании первоначальный захват воды производят плодовые оболочки, которые имеют большое количество капилляров, пор, пустот, служащих резервуарами для первичного накопления влаги. Вода, поглощенная плодовыми оболочками, связана непрочно и легко может испариться. Зародыш, богатый белками, липидами и углеводами, по своей биологической роли и физической структуре обладает способностью интенсивного поглощения влаги. Эндосперм, состоящий главным образом из крахмала и белков, также способен поглощать значительное количество воды, но ее поглощение сдерживается оболочками и алейроновым слоем зерна С увеличением длительности увлажнения замоченного зерна наблюдается снижение содержания крахмала. Растворение крахмала у прорастающего зерна начинается около щитка и постепенно распространяется по эндосперму. Крахмал под действием α-амилазы расщепляется до растворимых углеводов – декстринов и сбраживаемых сахаров. Декстрины – это коллоидные вещества, растворимые в воде, имеющие значительно меньшую молекулярную массу по сравнению с крахмалом. Β-амилаза, действуя на крахмал и родственные полисахариды, образует путем инверсии мальтозу. Молекула мальтозы состоит из двух молекул глюкозы, и является конечным продуктом распада крахмала. Одновременно с крахмалом идет распад и клетчатки, являющейся основой оболочек и клеток зерна. Таким образом, содержание крахмала по сравнению с исходным зерном снижается. Значительная часть сахаров используется при дыхании зерна. Через 18 часов замачивания наблюдается рост содержания восстановливающих сахаров, что объясняется распадом крахмала.При прорастании происходит не только распад крахмала, но и значительные изменения белков зерна. При прорастании пшеницы содержание клейковины уменьшается, свойства ее изменяются в сторону ослабления. Аминокислоты, входящие в состав белков, являются конечными продуктами распада белков, которые используются при прорастании. Через клетки щитка аминокислоты поступают в зародыш так же, как и продукты распада крахмала и клетчатки, и идут на построение тканей развивающегося ростка.Как только в зерне появляется в избытке свободная влага, в нем начинается процесс быстрого распада жира. Сконцентрированные в основном в зародыше липиды являются важным источником энергии для прорастающего зерна, и в процессе прорастания их содержание резко снижается.

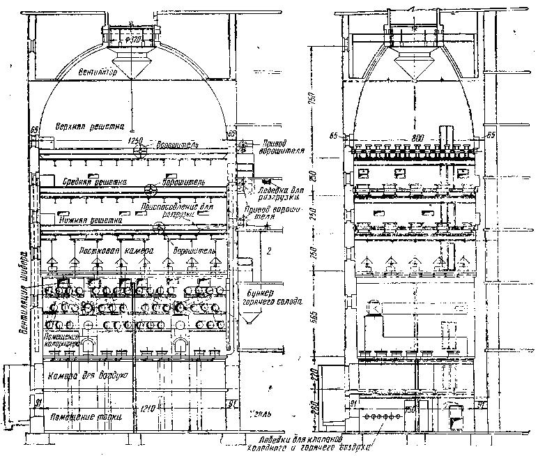
  1. Устройство сушилок для солода.

ОСНОВНЫЕ ТИПЫ СУШИЛОК

Горизонтальная двухъярусная сушилка (рис. II-34) является простейшей и наиболее распространенной сушилкой солода. Она представ­ляет собой прямоугольное или квадратное высокое здание с двумя горизонтальными решетками, на которые ровным слоем укладывают солод.

Верхняя решетка 1 служит для удаления из солода главной массы влаги, на нижней решетке 2 происходит окончательное удаление влаги и отсушка солода.

В нижнем этаже 3 сушилки помещается топка 4 для сжигания топ­лива. Горячие газы из топки поднимаются в газоходы калорифера 5, находящиеся во втором этаже, где отдают часть тепла холодному воздуху и затем уходят через дымовую трубу в атмосферу.

Холодный воздух засасывается снаружи в помещение топки, а затем последовательно проходит через калорифер, через оба слоя солода на нижней и на верхней решетках и, обогащенный влагой, уходит в вытяжную трубу 6. В междуэтажных перекрытиях над помещением топки и над помещением калорифера по всему сечению сушилки сделаны круглые отверстия 7 и 8 с клапанами, позволяющими регулировать количество проходящего воздуха. Холодный воздух можно подавать непосредственно под решетки, минуя калорифер, для чего в стене сушилки делают верти­кальные каналы 9 и 10.

Калорифер и нижнюю решетку разделяет междуэтажное перекры­тие 11, имеющее назначение задержать проваливающиеся сквозь решетку ростки и тем сохранить их от сгорания на трубах калорифера; затем предохранить солод от неравномерного нагревания на нижней решетке лучистой теплотой от труб калорифера и, наконец, равномерно распреде­лить по всему сечению сушилки холодный воздух, подаваемый под ниж­нюю решетку по вертикальным каналам 10.

Горизонтальная трехъярусная сушилка в принципе по своему устрой­ству отличается от двухъярусной только наличием в ней трех решеток.

Известно, что большую часть влаги солод отдает на верхней и на средней решетках и при относительно низкой температуре; на нижней решетке происходит окончательное высушивание и поджаривание солода при малом количестве воздуха и повышенной температуре. Поэтому для подачи холодного воздуха под среднюю и верхнюю решетку в стенах сушилки устраивают вертикальные каналы. Кроме того, для изолирования процесса обезвоживания солода от процесса тепловой обработки его, т. е. отсушки, поджаривания, в некоторых конструкциях трехъярусных сушилок нижнюю решетку отделяют от верхних междуэтажным перекрытием.

Рис. II-34. Горизонтальная двухъярусная сушилка солода

Размещаются две топки, два калорифера, а ворошилки солода полу­чаются более короткими.

Стремление увеличить производительность сушилок, сделать их более компактными и экономичными привело к созданию особой группы суши­лок высокой производительности.

Обыкновенная сушилка с горизонтальными решетками может быть превращена путем развития некоторых своих деталей и более высокой нагрузки солода на решетки в сушилку высокой производительности.

Рис. II-35. Горизонтальная трехъярусная сушилка солода

Нагрузку на решетки принято определять высотой слоя солода на верхней решетке. В обыкновенных сушилках с естественной тягой или винтовым вентилятором высоту слоя на верхней решетке берут для светлого солода 14-22 см, для темного - 22-30 см. В сушилках высокой производительности высота эта доходит до 60-70 см.

Чтобы преодолеть значительное сопротивление высокого слоя, необходимо усилить тягу. Винтовой вентилятор по создаваемому разрежению уже оказывается непригодным; необходим центробежный вентилятор. Установка центробежного вентилятора, способного создавать более высокое разрежение, чем вытяжная труба, делает последнюю излишней, поэтому сушилки высокой производительности обычно строят с очень короткой трубой.

Второй особенностью сушилок высокой производительности является более развитая, нежели в обычных сушилках, поверхность стальных дымоходов, так как для работы сушилок высокой производительности требуется большое количество нагретого воздуха.

Для перемешивания солода на решетках устанавливают ворошилки: на нижних решетках - обычные, как и у сушилок первого типа, а на, верхней решетке - в виде подвижной каретки с вертикальными шнеками,. подобно солодоворошителю пневматической ящичной солодовни.

Сушилки высокой производитель­ности могут быть двухъярусными и трехъярусными. Как те, так и другие в одинаковой степени пригодны для изготовления любых сортов солода.

На рис. II-36 изображена двухъярусная сушилка высокой производительности. Характерные особенности ее: искусственная тяга, осуществляемая двумя центробежными вентиляторами 10, и сильно развитая поверхность нагрева 2.

Над калорифером установлено глухое перекрытие с широкими воздухораспределительными трубами 3. Холодный воздух сюда и под верхнюю решетку подводят расположенными в стенах каналами 8.

Вертикальная сушилка показана на рис. II-37. В башне-сушилке располагают попарно несколько (в зависимости от производительности) вертикальных решеток 3, между которыми засыпают солод. Толщина слоя солода между решетками 20 см, а расстояние между парными решетками, т. е. ширина воздушной шахты, - 80 см. По высоте сушилка разделена на три этажа, что сооответствует трехъярусной сушилке.

  1. Оценка качества солода.

Для оценки качества солода существуют специальные методы анализа, разработанные МЕВАК (Аналитической комиссией стран Центральной Европа: по технологии пивоварения).

Солод исследуют:

  • путем ручной и визуальной оценки;

  • путем механических методов анализа;

  • с помощью методов технохимического контроля.

Визуальное и ручное обследование

Ручную и визуальную оценку солода проводят на цвет, запах, вкус и аромат, цвет и блеск, а также на степень загрязнения. При помощи ручного обследования можно получить лишь приблизительную оценку качества солода.

Сортировка

Сортировка солода осуществляется так же, как и для ячменя, причем 1-го сорта должно быть не менее 85%, а отходов - не более 1%.

Масса 1000 зерен

Определение массы 1000 зерен солода проводят так же, как и у ячменя. За норму принимают следующие показатели:

  • 28-38 г - для воздушно-сухого солода;

  • 25-35 г - для сухого вещества солода.

Масса гектолитра

Масса гектолитра рассчитывается так же, как и у солода, однако определяют ее не всегда (из-за низкой информативности данного параметра).

Проба на плавучесть (погружение)

Если зерна ячменя обычно тонут, то зерна солода — нет, оставаясь наверху из-за присутствия в них воздуха. Процент плавающих зерен тем выше, чем сильнее развился листок зародыша и, следовательно, чем глубже в солод проникли процессы растворения. Содержание тонущих зерен должно быть:

  • 30-35% - у хорошо растворенного светлого солода;

  • 25-30% - у темного солода.

Стекловидность

Стекловидность определяют при помощи продольного разреза зерна. При этом содержание полностью стекловидных зерен должно быть не более 2%, а содержание мучнистых зерен — не менее 95%.

Рыхлость

Недостаточная рыхлость или повышенная стекловидность может вызвать трудности при фильтровании затора, осветлении сусла и фильтровании пива. Рыхлость определяют фриабилиметром. При этом зерна солода разделяются на мучистые, легко растираемые между резиновым валиком и вращаемым ситовым барабаном, и на твердые. Результат выражают в процентах рыхлости или стекловидности. В настоящее время нормативные значения таковы:

Рыхлость (светлый солод)

  • выше 81% очень хорошо

  • 78-81% хорошо

  • 75-78% удовлетворительно

  • ниже 75% неудовлетворительно

Стекловидность

  • ниже 1% очень хорошо

  • 1-2% хорошо

  • 2-3% удовлетворительно

  • выше 3% неудовлетворительно

Всхожесть

В норме при повторном замачивании показывают сохранение жизнеспособности и прорастают от 6 до 10% зерен солода. Если всхожесть составляет более 10%, то возникает предположение, что солод высушивался недостаточно интенсивно или продолжительность сушки была недостаточной.

Плотность

Данные о плотности дают представление о растворении эндосперма. Чем меньше плотность, тем лучше растворение зерна.

Метод окрашивания среза зерна (модификация Carlsberg)

В разных партиях солода могут содержаться зерна с различной степенью растворения. При дальнейшей переработке присутствие зерен с недостаточным растворением, а значит, и со слишком высоким содержанием (3-глюкана может вызвать сложности при фильтровании. Контроль этого параметра осуществляется при помощи относительно простого разреза зерна, когда зерна разрезают вдоль и путем окрашивания фтористым кальцием определяют степень растворения. По этому показателю зерна делят на 6 категорий — от нерастворенных до полностью растворенных) и тем самым определяют однородность солода по растворимости, которая должна быть не менее 70%, а лучше — 75%.

Влажность

Определение влажности выполняют так же, как и у ячменя. Нормативные значения для солода составляют:

  • светлого солода 3,0-5,8% (у свежевысушенного 0,5-4%);

  • у темного солода 1,0-4,5% (у свежевысушенного 0,5-4%).

  • у товарного солода предельное значение составляет обычно 5%.

Конгрессный способ затирания

Важнейшим показателем качества солода является, естественно, его поведение в процессе затирания и способность максимально расщеплять содержащиеся вещества. Для его определения существует лабораторный стандартизованный метод затирания, называемый Конгрессным (в соответствии с требованиями Аналитического комитета Европейской пивоваренной конвенции), который дает возможность определить выход экстракта при переработке солода. При этом исходят из того, что чем лучше солод растворен, тем меньше степень его измельчения влияет на выход. Поэтому конгрессный метод затирания всегда проводят в виде двойного определения, в котором масса каждой пробы составляет по 50 г солода:

  • солод измельчают очень грубо так, чтобы содержание муки (грубого помола) составляло 25%;

  • солод измельчают очень тонко так, чтобы содержание муки (тонкого помола) составляло 90%.

Солод оценивается тем выше, чем больше у него экстрактивность. При этом хорошую оценку дают при достаточном растворении солода. При хорошо растворенном солоде разница между экстрактивностью в грубом и тонком помоле невелика, поскольку помол в этом случае оказывает меньшее влияние на выход экстракта.