Материал: Технологии информационного моделирования в управлении проектами

Внимание! Если размещение файла нарушает Ваши авторские права, то обязательно сообщите нам

и кафельную плитку толщиной 20, можем выбрать любой цвет и материал для отображения пола.

На 3D виде можем посмотреть, как теперь отображается пол с плиткой.

Мы можем также задать отдельными элементами состав перекрытия, для этого создаем каждый тип пола отдельным типом и добавляем к имеющемуся перекрытию из бетона толщиной 200 мм с соответствующим смещением, равным толщине пола. Таким образом мы сможем задать отдельный состав пола для каждого помещения, если это необходимо.

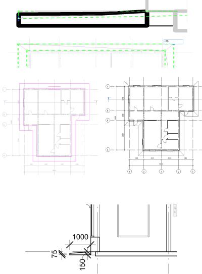
13.5.7.Отмостка

Спомощью инструмента «Перекрытие» мы можем задать также отмостку здания. Создадим нужный тип перекрытия через свойства, изменить тип, скопируем и назовем «VC_Отмостка_150». Структура будет Бетон В25, созданный нами ранее, толщиной 150 мм, и поставим галочку в столбце «Переменная», так как толщина отмостки к краю уменьшается.

Строим перекрытие по контуру здания и добавляем смеще-

ние через команду «Офсет» на 1000 мм.

251

Для задания переменной толщины отмостки выделим ее и

применим инструмент «Изменить субэлементы» . Зададим отметку – 75:

Таким образом, у нас появилась отмостка по всему периметру здания. На разрезе посмотрим ее сечение.

252

13.6. Практическое задание 6

По ссылке ниже доступна запись 6-го практического заня-

тия в программе Autodesk Revit. Кровля: https://clck.ru/saoKn.

В Revit есть несколько вариантов построения кровли: крыша по контуру (аналогично построению перекрытия), выдавливанием и по грани (для необычных форм кровли).

13.6.1. Крыша по контуру

Рассмотрим первый вариант, крыша по контуру. В режиме эскиза строим кровлю аналогично тому, как работали с перекрытием, отметим галочкой параметр «Формирование уклона», можем задать «Свес», т.е. насколько будет выступать кровля от стены. Параметр «Продолжать до сердцевины» указывается, если кровля плоская и ее нужно соединить с несущей частью стены, при этом у нас еще задана отделка, и это нужно учесть.

253

13.6.2. Уклоны

Далее мы можем отредактировать созданную кровлю, для

этоговыделяемееинажимаем«Редактироватьпроекцию» . Например, нам нужно задать уклоны для каждой грани.

В этом случае выделяем необходимую грань и в свойствах задаем требуемый уклон и свес.

Если уклон не требуется, мы не ставим нуль, так как это может выдать ошибку в Revit, просто убираем галочку в пункте «Формированиеуклона». Вэтомслучаекровляполучитсядвускатной.

254

В случае если нам требуется плоская кровля, при построении отключаем параметр «Формирование уклона», свес задаем «0» и ставим галочку «Продолжить до сердцевины стены».

13.6.3. Кровля выдавливанием

Данное построение работает путем формирования линии на какой-либо плоскости с последующим выдавливаем кровли. Данный вид построения используется для крыш, для которых нельзя определить задание уклона, может использоваться при построении козырьков здания.

Построим козырек у нашего здания, для этого выберем инструмент«Крышавыдавливанием», находясьнауровне2-гоэтажа.

255