Материал: Технологічний процес роботи вантажного комплексу аеропорту

Внимание! Если размещение файла нарушает Ваши авторские права, то обязательно сообщите нам

[ м2 ];

[ м2 ].

Кількість штабелів розраховується за формулою:

 [од],

де  - площа одного штабелю,

 = 24 (м2) - згідно з вихідними даними

[од];

[од].

При визначенні необхідної робочої площі для вантажів, складованих на стелажах (МПЛ), за основу розрахунку приймається обсяг робочої комірки стелажа :

 [м3],

Де l - довжина комірки, (м), - ширина комірки, (м)., - висота комірки, (м).= 1,5 (м), b = 1,2 (м), h = 1,2 (м) - згідно з вихідними даними.

[ м3 ].

Розрахунок вагової ємності комірки стелажа виконується за формулою:

 [т],

де  - об'ємна вага складованого вантажу, т/м3;

 - коефіцієнт заповнення комірки вантажем.

 = 1, 2 (т/м3),  = 0,4 - згідно з вихідними даними.

[т].

Кількість робочих комірок стелажів, що необхідне для розміщення вагової ємності складованого вантажу , визначається за формулою:

 [од];

[од];

[од];

[од];

[од];

[од].

Кількість ярусів стелажів визначається за формулою:

[од],

де  - питоме навантаження, що допускається, на 1 м2 площі складу стелажного збереження, т/м2;

 - площа однієї комірки;

 = 3,6 (т/м2),  = 1,8 (м2) - згідно з вихідними даними.

Кількість ярусів є цілим числом. У разі отримання нецілого результату розрахунків його треба округлити у менший бік.

[од].

Розрахункове число робочих комірок у нижньому ярусі стелажів визначається з умови:

 [од].

[од];

[од];

[од];

[од];

[од].

Сумарна робоча площа відділу складу, призначеного для збереження вантажів на стелажах, розраховується по формулі:

 [м2],

де  - ширина прорізів між суміжними комірками.

 = 0,1 (м) - згідно з вихідними даними.

 [м2];

2];

2];

2];

2].

Розрахунок додаткової площі вантажного складу.

Площа ділянок приймання і комплектування вантажів розраховуються на підставі показника розрахункового навантаження на 1 м2 площі. Площа ділянки приймання і комплектування розраховується по наступній формулі:

 [м2],

де  - навантаження на 1 м2 на ділянці приймання і комплектації, т/м2;

 - термін збереження вантажів на ділянці приймання і комплектації, діб.

 = 0,5 (т/м2),  = 0,9 (доби),  = 1,6 - згідно з вихідними даними.

2];

2];

2];

2];

2];

2];

2].

Розрахунок допоміжної площі вантажного складу.

Орієнтований підрахунок площі , зайнятої проїздами і проходами, може бути виконаний по формулі:

 [м2],

де  - коефіцієнт, що враховує потребу в допоміжній площі усередині складу, зайнятої проїздами і проходами. Він дорівнює 0,6 згідно з вихідними даними.

2];

2];

2];

2];

2];

2];

2].

Розрахунок службової площі вантажного складу.

 [м2],

де  - кількість працівників на складі, чол.

, - нормативна площа на 1 чоловік, м2.

Для складу МПЛ врахувати також чисельність робітників митниці.

n = 7 (чол), nm = 4 (чол) - згідно з вихідними даними.

2];

2].

.2.2 Розрахунок геометричних параметрів складів, кількості складських піддонів

Як правило, при проектуванні складів задаються їхньою шириною Вскл, що за будівельними вимогами застосовується кратної 3 і складає, наприклад, 18,24,36 чи 48 м.

Довжина складу , визначається за формулою:

 [м]


2]

=582+262+349+22,75 = 1216 [м2];

=309+1211+198+35,75 =1754 [м2];

2];

2];

2];

2];

2];

2];

2].

Отже, довжина складу буде наступною:

[м];

34 [м]; штабеля

 [м].стелажи

.2.3 Розрахунок довжини фронту навантажувально-розвантажувальних робіт

Необхідна довжина фронту вантажно-розвантажувальних робіт визначається за формулою:

 [м],

де  - довжина або ширина транспортного засобу, в залежності від способу розстановки автомашин, м;

 - запасна відстань між суміжними машинами, встановленими біля розвантажувальної рампи.

=2,9 (м),  = 2 (м) - згідно з вихідними даними.

[м];

[м];

[м];

[м];

[м];

[м];

[м].

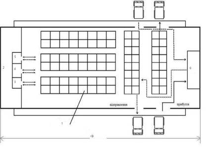
Рис. 2. Схема вантажного комплексу при штабельному зберіганні вантажів.

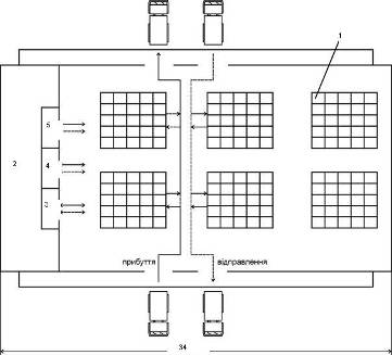
Рис. 3. Схема вантажного комплексу при стелажному зберіганні вантажів.

.2.4 Розрахунок оптимального числа місць приймання вантажів

Оптимальне число місць приймання і чисельність комплектів машин і устаткування для забезпечення вантажно-розвантажувальних робіт і операцій, зв'язаних із прийманням і оформленням вантажів, розраховується за формулою:

 [од],

де  - інтенсивність вхідного потоку автомашин од/год;

 - середній час очікування машин з вантажем у черзі на розвантаження, год;

 - імовірність того, що пункти приймання будуть зайняті, і чергова автомашина з вантажем буде чекати своєї черги на розвантаження;

 - імовірність того, що час простою машин у чеканні розвантаження може виявитися більше заданого;

 - інтенсивність обслуговування одного відправника вантажу (зворотно пропорційна середньому часу обслуговування одного відправника вантажу ).

=1 (год),  = 0,9, =0,1, = 1/0,5=2 - згідно з вихідними даними.

Інтенсивність вхідного потоку автомашин може бути розрахована за формулою:

 [од/год],

де  - час роботи складу протягом доби з приймання та відправлення вантажів зі складу, годин на добу;

 - середня вантажопідйомність використовуваних засобів транспорту, т;

 - коефіцієнт використання вантажопідйомності машини.= 18 (год/добу), = 3 (т),  = 0,5 - згідно з вихідними даними.

[од/год];

[од/год];

[од/год];

[од/год];

[од/год];

[од/год];

[од/год].

Отже,

[од];

[од];

[од];

[од];

[од];

[од];

[од].

.3 Розрахунок кількості засобів механізації вантажного комплексу аеропорту

Для обробки вантажів необхідні механізація й автоматизація всіх процесів наземного обслуговування вантажних перевезень: для виконання внутрішньо складських операцій, транспортування вантажів від складів до літаків, виконання навантажувально-розвантажувальних робіт.

У сучасних вантажних комплексах аеропортів велика частина операцій по переробці вантажів виконується за допомогою засобів механізації. У крупних складах і вантажних аеровокзалах поряд з механізацією широке застосування мають також засоби автоматизації виробничих процесів.

Засоби механізації й автоматизації, що застосовуються для обслуговування вантажних перевезень на повітряному транспорті, за місцем їх застосування у технологічному процесі класифікуються на: