На основании таблиц повторяемости метелевых ветров и таблиц расчетных
объемов снегоприноса в зависимости от скорости на высоте флюгера и
повторяемости метелевых ветров рассчитывают объемы переноса за каждую зиму по
основным направлениям ветра по формуле (10.2) и сводим расчеты в таблицу 10.3
Таблица 10.3 Ведомость объемов переноса снега (W) за зиму по основным направлениям ветра
|
Скорость ветра м/с |
Объемы переноса снега,м3/пог.м по направлениям ветра |
|||||||
|
|
WС |
WСВ |
WВ |
WЮВ |
WЮ |
WЮЗ |
WЗ |
WСЗ |
|
3 |
0.025 |
0.025 |
|
|
|
|
|
|
|
4 |
0.059 |
0.039 |
|
|
0.04 |
0.04 |
|
|
|
5 |
0.116 |
0.116 |
|
0.08 |
|
0.155 |
0.039 |
0.12 |
|
6 |
1.2 |
1.2 |
0.6 |
0.8 |
|
0.4 |
|
|
|
7 |
0.6 |
1.3 |
1.0 |
|
|
0.3 |
0.6 |
0.6 |
|
8 |
1.0 |
0.5 |
1.4 |
|
1.0 |
0.5 |
|
|
|
9 |
1.4 |
2.0 |
|
|
|
1.4 |
2.0 |
0.7 |
|
10 |
2.8 |
3.7 |
0.9 |
0.9 |
|
|
|
1.8 |
|
11 |
1.2 |
2,5 |
1,2 |
|
|
|
|
|
|
12 |
|
|
|
|
|
|
|
|
|
13 |
2,0 |
6,1 |
|
|
|
2,0 |
|
|
|
14 |
|
|
|
|
|
|
|
|
|
15 |
3,1 |
|
|
|
|
3,1 |
|
6,3 |
|
W |
13,5 |
20,58 |
5,1 |
1,78 |
1,04 |
7,89 |
2,64 |
9,52 |
Объемы снегоприноса с каждой стороны участка автодороги, которые представляют собой геометрическую сумму расчетных объемов снегоприноса по всем румбам, относящихся к определенной стороне дороги данного направления.
Для участка автодороги с направлением СВ объем снегоприноса с левой
стороны дороги выразится уравнением
Таблица 10.4 Расчет объемов снегоприноса за зиму с левой и правой стороны автодороги при различном её направлении относительно стран света
|
Направление автодороги |
СВ-ЮЗ |
|||
|
Сторона снегоприноса |
правая |
левая |
||
|
sin W |
0.7WВ |
3,57 |
0.7WЗ |
1,82 |
|
|
WЮВ |
1,878 |
WСЗ |
9,52 |
|
|
0,7WЮ |
0,72 |
0,7WС |
9,45 |
|
|
|
6,07 |
|
20,79 |
Зимнее содержание дорог представляет собой комплекс мероприятий, включающий защиту дорог от заносов, их очистку от снега, борьбу с зимней скользкостью, защиту от лавин и борьбу с наледями.
Зимний период года является самым сложным для эксплуатации дорог и организации движения. Продолжительность его колеблется от 20 суток в южных районах до 260 суток в северных. Зимние условия характеризуются короткой светлой частью суток, низкой температурой воздуха, снегопадами и метелями, формирующими снежные отложения, а также зимней скользкостью.
Комплекс мер по зимнему содержанию включает:
профилактические меры, цель которых предупредить или максимально ослабить образование снежных и ледяных отложений на дороге (уменьшение снегозаносимости дорог, профилактическая обработка покрытий химическими противогололёдными материалами и др.);
защитные меры, с помощью которых преграждают доступ к дороге снега и льда, поступающего с прилегающей местности (защита от метелевого переноса, снежных лавин и др.);
меры по удалению уже возникших снежных и ледяных отложений (очистка дорог
от снега и льда), а также по уменьшению их воздействия на автомобильное
движение (посыпка обледеневшей поверхности дороги фрикционными материалами).
10.2 Технология очистки дорог от снега
При патрульной снегоочистке дорогу очищают путём систематических проездов (патрулирования) машин по обслуживаемому участку в течение всего времени, пока продолжается метель или снегопад. К патрульной снегоочистке необходимо приступать как только начинается метель или снегопад.
Очистку следует вести на возможно большей скорости, что способствует увеличению дальности отбрасывания снега. Учитывая это, очистку ведут плужными снегоочистителями. Для удаления снега без образования валов очистку следует вести со скоростью не менее 30 - 35 км/ч. Патрульную снегоочистку можно вести как одиночными машинами, так и отрядом снегоочистителей. Преимущество работы отряда заключается в том, что снег сразу удаляется за пределы дорожного полотна, благодаря чему устраняются препятствия для снеговетрового потока и дорога хорошо продувается.
Удаление снежных валов. Обычно их удаляют роторными снегоочистителями или валоразбрасывателями. Снежные валы часто расположены над кюветом или очень близко к нему, так как полосу расчистки всегда стремятся сделать как можно шире. В этом случае вал сначала сдвигают автогрейдером на проезжую часть, а затем роторным снегоочистителем удаляют его, отбрасывая снег в сторону.
Расчистка от снежных заносов. Для расчистки применяют весь комплекс
снегоочистительных машин (плужные и роторные снегоочистители, автогрейдеры,
бульдозеры и валоразбрасыватели). В начальной стадии (при толщине снежных
отложений 0,2 - 0,3 м), их расчищают плужными снегоочистителями, которые должны
работать в комплексе с роторным снегоочистителем, необходимым для удаления
валов. Если толщина снежных отложений становится значительной, для расчистки
применяют тяжёлые снегоочистительные машины: автогрейдеры, двухотвальные
плужные снегоочистители на гусеничном ходу, роторные снегоочистители,
бульдозеры.
10.3 Способы защиты дорог от снежных заносов
Заносимые участки можно защитить от снежных заносов тремя путями: задержать переносимый метелью снег на подступах к дороге и вызвать образование снежных отложений на безопасном расстоянии или в заранее подготовленном месте; увеличить скорость снеговетрового потока над дорогой и предотвратить снежные отложения на дороге; полностью укрыть дорогу от снега с помощью специальных сооружений. Из сооружений, полностью защищающих дорогу от снега применяются только противолавинные галереи.
Постоянные снегозащитные сооружения. Самым надёжным и экономичным постоянным средством снегозащиты являются снегозащитные лесонасаждения - основной вид защиты автомобильных и железных дорог от снежных заносов. Однако и они обладают рядом недостатков: для их размещения вдоль дорог необходимы значительные земельные площади; лесные насаждения медленно растут и вступают в работу; они требуют постоянного ухода.
Одна из причин образования снежных заносов - нарушение требований снегозаносимости к параметрам и форме земляного полотна на стадии проектирования или отступления от проектных решений при строительстве.
Особенно часто эти нарушения встречаются на участках выемок, поэтому служба содержания дорог в процессе ремонта выполняет работы по приданию земляному полотну обтекаемого профиля, уполаживанию откосов, поднятию насыпей и др.
Участки дорог, где нельзя уменьшить снегозаносимость совершенствованием форм земляного полотна, защищают от снежных заносов лесонасаждениями, заборами и другими средствами.
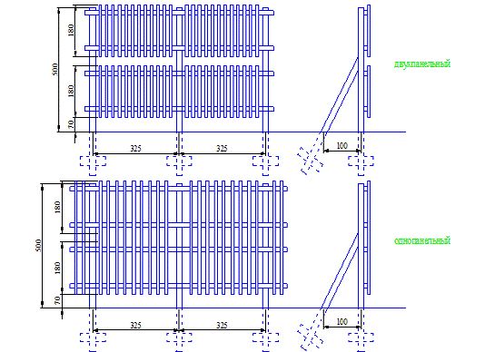
Надёжным средством защиты дорог от снежных заносов являются высокие
снегозадерживающие заборы: двухпанельные с просветностью решётки 50% и
однопанельные с просветностью решётки до 70 %. Однопанельные заборы применяют
как правило для вторых и третьих рядов многорядных линий заборов, двухпанельные
- при устройстве заборов в один ряд или ближайшем к дороге ряду многорядных
линий заборов.
В зависимости от направления господствующих метелевых ветров и рельефа
местности заборы устанавливают на расстоянии h = (15 - 25)Hз от
дороги, где Hз - высота забора. Высоту забора
определяют исходя из объёма снегоприноса к дороге:
где: Hз [м] - высота забора;
Wс.д [м3/м] - объём снегоприноса;
Hп [м] - средняя многолетняя толщина снежного покрова в данной местности;
Заборы выше 5 метров по технико-экономическим соображениям делать не
рекомендуется. Если по расчёту требуется большая высота, то устраивают два, три
и более рядов заборов. Общая снегосборная способность заборов, поставленных в
несколько рядов:
где: Wз [м3/м] - общая снегосборная способность заборов;
Hз [м] - высота забора;
l [м] - расстояние между рядами, которое следует принимать 30 Hз
Работа заборов снегопредупреждающего действия основана на увеличении
скорости снеговетрового потока в момент прохождения над дорогой, что
предотвращает образование на ней снежных отложений. Заборы
снегопредупреждающего действия рекомендуются при одновременном соблюдении
следующих условий: господствующие ветры направлены под постоянным углом от 50
до 90о к оси дороги; сухой и легкоподвижный снег; объём снегопереноса более 300
- 500 м3/м.
Защищать заборами снегопредупреждающего действия можно выемки до 5 м, низкие насыпи, нулевые места. Для защиты полувыемок-полунасыпей заборы снегопередувающего действия следует применять, если уклон косогора не превышает 45о. Заборы снегопередувающего действия могут быть из дерева или сборные из железобетона и керамзита.
Снегоизолирующие постоянные сооружения предназначены для полной защиты
дороги от снегопадов и метелей. Конструктивно такая снегозащита выполняется в
виде галерей в горных районах. Для защиты от метелей и снегопадов можно
устраивать лёгкие ограждающие конструкции на наиболее опасных по
снегозаносимости участках в виде навесов из полиэтиленовых плёнок, надувных
навесов или других лёгких материалов и конструкций.
Временные снегозадерживающие устройства.
Простейшие из них снежные стенки или валы, высотой 0,5 - 0,8 м, которые устраивают снегособирателями (риджерами). Лучше работают стенки с размывами или из отдельных столбов и пирамид. Снежные валы можно устраивать, когда толщина снежного покрова не менее 20 см.
Наиболее распространенным видом защитных устройств из снега являются траншеи, которые выкапывают с помощью двухотвальных снегоочистителей или бульдозеров. Снегозащитные траншеи прокладывают в несколько рядов, параллельно дороге. Число траншей, которые необходимо одновременно иметь для надёжной защиты дороги, зависит от объёма снегопереноса (до 100 м3/м - не менее 3; до 200 м3/м - не менее 4; свыше 200 м3/м - не менее 5). Оптимальное расстояние между траншеями составляет 12 - 15 м. Ближайшая траншея должна быть расположена от дороги не ближе 30 м и не дальше 100 м. После заполнения траншей снегом до половины глубины, их прочищают. Переносные деревянные щиты - маневренное средство снегозащиты - могут применяться в качестве самостоятельного средства защиты дорог от снежных заносов и как средство усиления посадок и постоянных заборов. Значительно меньше заносятся снегом щиты с неравномерно распределённым заполнителем, при котором решётка сгущена в верхней части и разрежена в нижней. Применяются четыре типа щитов с разреженной нижней частью:
тип I - щиты высотой 2 м с общей просветностью 50%, просветностью нижней половины 60%, верхней - 40%;
тип II - щиты высотой 1,5 м с общей просветностью 50%, просветностью нижней половины 60%, верхней - 40%;
тип III - щиты высотой 2 м с общей просветностью 50%, просветностью нижней половины 70%, верхней - 50%;
тип IV - щиты высотой 1,5 м с общей просветностью 60%, просветностью нижней половины 70%, верхней - 50%;
Щиты I типа применяют в районах с объёмом снегопереноса более 100 м3/м и скоростью ветра более 20 м/с; II типа - в районах с объёмом снегопереноса менее 100 м3/м и скоростью ветра более 20 м/с; III типа - в районах с объёмом снегопереноса более 100 м3/м и скоростью ветра менее 20 м/с; IV типа - в районах с объёмом снегопереноса менее 100 м3/м и скоростью ветра менее 20 м/с.
Наряду с деревянными снегозащитными устройствами начинают использовать щиты из пластмассовых материалов. Щиты привязывают к кольям. Расстояние от щита до дороги назначают равным 15 - 20 высотам щита, между рядами в многорядных щитовых линиях - равным 25 - 30 высотам щита.
При объемах снегоприноса до 75 м3/м можно применять временные пространственные
снегозащитные средства, предложенные кандидатом технических наук В.А.
Коломийцем. Они могут иметь рулонное или листовое заполнение. Их устанавливают
параллельно оси дороги не расстоянии 30 H от бровки земляного полотна.
Комплексная снегозащита дорог. Широко применяется комплекс временных и
постоянных средств защиты дорог от снежных заносов. Общая снегоёмкость
комплексной снегозащиты:
где: Wвр - суммарная снегоёмкость временной снегозащиты;
Wпос - суммарная снегоёмкость постоянной снегозащиты.
Простейший вид комплексной защиты - сочетание снежных валов и траншей с переносными решётчатыми щитами. При неоднократной перестановке щитов и устройстве траншей за зиму это позволяет задерживать до 200 м3/м.
Оптимальный комплекс средств защиты определяют на основе расчёта общей
(абсолютной) и сравнительной экономической эффективности.
11. Организация строительства
Сроки строительства определяем по формуле:
Тстр=Ак - (Тв+Тк+Трем+Торг+Тсв.раз.)Ксм
где, Ак - календарное время строительства для конструктивного слоя;
Тв - количество выходных и праздничных дней за календарное время;
Тк - количество не рабочих дней (простоев) по климатическим условиям за календарное время. Для V-климатической зоны принимаем 3% от Ак;
Трем - количество не рабочих дней для ремонта машин и оборудования. Для V-климатической зоны принимаем 14 дней в год;
Торг - количество не рабочих дней по организационным причинам определяется по формуле:
Торг=0,045Ак=10 дней
Тсв.раз - время на развертывание, свертывание потока для каждого конструктивного слоя;
Ксм - коэффициент сменности.