Материал: Создание лабораторно-опытного образца установки с использованием теплового насоса

Внимание! Если размещение файла нарушает Ваши авторские права, то обязательно сообщите нам

Создание лабораторно-опытного образца установки с использованием теплового насоса

МИНИСТЕРСТВО ВЫСЩЕГО И СРЕДНЕГО СПЕЦИАЛЬНОГО

ОБРАЗОВАНИЯ РЕСПУБЛИКИ УЗБЕКИСТАН

БУХАРСКИЙ ТЕХНОЛОГИЧЕСКИЙ ИНСТИТУТ ПИЩЕВОЙ

И ЛЕГКОЙ ПРОМЫШЛЕННОСТИ







"Создание лабораторно-опытного образца установки с использованием теплового насоса"

А 520713 "Машины и агрегаты пищевой промышленности"

ДИССЕРТАЦИЯ

на соискание академический степени Магистр



Киличев Нозим

Научный руководитель

д. т. н. Джураев Х.Ф.



Бухара 2010

Оглавление

 

Введение

Глава 1. Теория и практика принципа работы тепловых насосов

1.1 Принцип работы бытовых и хозяйственных тепловых насосов

1.2 Конструкции и принципы работы парокомпрессионных насосов

1.3 Развитие тепловых насосов

Глава 2. Теоретические основы холодильные машины, их экологическая и экономическая перспективность

2.1 Основы термодинамики растворов, принцип действия абсорбционной холодильной машины

2.2 Теоретический цикл в диаграмме абсорбционно-водоаммиачных холодильных машин

2.3 Влияние параметров внешних источников на процессы и эффективность работы абсорбционных водо-аммиачных холодильных машин

2.4 Высокоэффективные абсорбционные водоаммиачные холодильные машины

Глава 3. Методика расчета основных теплообменных аппаратов абсорбционных холодильных машин

3.1 Методика расчета тепловых установок и их основные конструкционные параметры

3.2 Методика расчета коэффициентов теплопередачи

3.3 Методика определения числа ректификационных тарелок для выпарных элементов

3.4 Методика расчета цикла абсорбционного теплового насоса

Глава 4. Исследование применения и расчет тепловых насосов в схеме сушильно-холодильной установки

4.1 Расчет и проектирование абсорбционно-холодильной машины применяемого в сушилно-холодильной установке

4.1.1 Тепловой расчет абсорбционно - холодильной машины

4.1.2 Расчет процессов парогазового кругооборота машины

4.2 Выбор параметров процессов водоаммиачного цикла машины

4.2.1 Расчет процессов водоаммиачного цикла машины с выравнивающим газом

4.2.2 Коэффициенты холодильной машины

4.2.3 Определение тепловых нагрузок или производительности аппаратов

4.3 Тепловой расчет и конструирование аппаратов абсорбционно-диффузионной холодильной машины

4.3.1 Расчет испарителя

4.3.2 Расчет конденсатора

4.3.3 Расчет абсорбера

Выводы

Список литературы

Введение

Проблема энергосбережения в настоящее время имеет большое значение, в первую очередь в связи с ограниченностью природных ресурсов, неравномерным их распределением, а также в связи с всё возрастающим техногенным загрязнением окружающей среды, частью которого являются тепловые сбросы нефтегазовых и холодильных машин.

Уменьшение вредного влияния на окружающую среду может быть достигнуто развитием холодильных систем и тепловых насосов (ТН), как при их создании, так и в процессе эксплуатации.

В области холодильной техники к энергосберегающим системам относятся теплоиспользующие абсорбционные холодильные машины и тепловые насосы.

Абсорбционные холодильные машины работают, потребляя энергию в виде теплоты, причём в ряде случаев используются так называемые вторичные тепловые ресурсы, такие, как тепловые сбросы тепловых электрических станций, тепловые отходы химических предприятий и др.

При выработке холода абсорбционными холодильными машинами, работающими с использованием вторичных тепловых ресурсов, полностью сберегается тепло, которое в противном случае было бы затрачено на производство электроэнергии, необходимой для привода электродвигателей компрессоров. Энергосберегающий эффект в виде экономии топлива проявляется при работе абсорбционных холодильных машин от незагруженных теплофикационных отборов тепловых электрических станций. Одним из назначений абсорбционной холодильной машины при этом является получение холодной воды в режиме кондиционирования воздуха.

Тепловой насос, изобретение одной из форм которого принадлежит лорду Кельвину, термодинамически идентичен холодильной машине. Большинство квартир, пищевых складов и крупных общественных зданий в промышленно развитых странах оборудовано холодильниками и воздушными кондиционерами. Принципиальное отличие теплового насоса от холодильника состоит в той роли, которую он играет у потребителя. Холодильники и воздушные кондиционеры предназначены для охлаждения, тогда как тепловой насос - для нагрева.

Имеется множество конструкций тепловых насосов, большая часть из них конструирована несколькими десятилетиями ранее. Литература по термодинамике, кондиционированию и даже промышленной технологии пестрит упоминаниями тепловых насосов, число действующих агрегатов семизначно. Однако принцип действия тепловых насосов для некоторых до сих пор таит изрядную долю тайны, и одна из главных целей проводимых исследований состоит в преодолении существующего барьера к его пониманию и применению.

Основной целью диссертационной работы является исследование применения теплового насоса в принципиальной схеме сушильно-холодильной установке.

Для достижения поставленной цели в работе сформулированы и решены следующие конкретные задачи исследования:

исследование принципиальной схемы и выявление возможности применения теплового насоса в сушилно-холодилной установке;

разработка принципиальной схемы лабораторной сушилно-холодильной установки.

В результате проведенных теоретических и экспериментальных исследований получены следующие научные результаты:

выявлено возможность применения теплового насоса в качестве генератора тепла и холода в схеме сушилно-холодильной установки;

определено снижение удельного расхода энергии на единицу продукции.

Практическая значимость результатов диссертации заключается в разработке эффективной схемы сушилно-холодильной установки с применением теплового насоса. В диссертации приведены принципиальные схемы, принципы работы, особенности тепловых насосов. Результаты исследований могут быть использованы инженерно-техническими и научными работниками различных отраслей промышленности, а также магистрами и бакалаврами в учебном процессе.

Структура и объем диссертации. Диссертационная работа состоит из введения, трех глав, вывода, списка использованной литературы, состоящего из 34 наименований. Диссертационная работа изложена на 80 страницах машинописного текста и включает 21 рисунков и 2 таблиц.

тепловой насос холодильная установка

Глава 1. Теория и практика принципа работы тепловых насосов


Среди различных типов ТН наибольшее распространение получили парокомпрессионные. Единичные мощности составляют от нескольких ватт до нескольких мегаватт, привод компрессоров осуществляется как электродвигателями, так и тепловыми двигателями внутреннего и внешнего сгорания. Разнообразны также и типы применяемых компрессоров.

Единственное досадное обстоятельство связано с надежностью тепловых насосов. Опыт конца 50-х и начала 60-х годов в США и Европе выявил поломки отдельных частей и относительно высокую стоимость агрегатов, что породило разочарование в тепловых насосах. Теперь трудности в основном преодолены - надежность вместе с обслуживанием на дому стали основными факторами, обеспечивающими продажу агрегатов. В связи с важностью проблемы надежности специальная глава посвящена проблемам конструирования.

Развитие тепловых насосов особенно продвинулось под влиянием энергетических трудностей 1973 г. Благодаря возможности экономии энергии, что является основным назначением теплового насоса, их применение расширилось. Они используются в жилых и общественных зданиях, а также в промышленности. Развитие тепловых насосов становится предметом деятельности национальных правительственных и международных организаций.

.1 Принцип работы бытовых и хозяйственных тепловых насосов


Тепловые насосы в настоящее время все быстрее и глубже внедряется в производство, в быт и хозяйственную деятельность человека. Это выражается в том, что ТН есть почти в каждой квартире. Это бытовой холодильник. Его агрегат выкачивает тепло из объема холодильного шкафа в комнату. По такому же принципу работает и отопительный тепловой насос. Теория ТН изложена в описании термодинамического цикла Карно еще в 1824 году. Хладагент (фреон) перемещается компрессором по замкнутому контуру, состоящему из испарителя, конденсатора и клапана.

Сжатый компрессором в конденсаторе (горячая решетка на задней стенке простейшего холодильника) хладагент переходит из газообразного в жидкое состояние при высоком давлении и температуре. Далее через дросселирующий клапан он продавливается в испаритель (обмерзшая панель внутри холодильника), где тем же компрессором создается низкое давление. При резком падении давления после клапана хладагент активно кипит, переходя в газообразную фазу с резким уменьшением температуры (для ТН до - 8°С и ниже). Таким образом, производится перенос тепла из объема, в котором расположен испаритель, в объем, который занимает конденсатор. В тепловых насосах эти объемы выполняются в виде теплообменников. В первый подается относительно теплый носитель от низкотемпературного источника тепла (НТИ), второй включается в контур системы отопления.


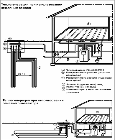
Теоретически несложно в теплое время года, поменяв местами испаритель и конденсатор ТН, использовать его для охлаждения здания. В качестве НТИ может использоваться наружный воздух при условии, что его температура превышает температуру кипения хладагента в испарителе; грунтовые, либо воды из незамерзающих водоемов; земля, тепло из которой переносится в теплообменник ТН раствором, циркулирующим по трубам, уложенным в земляной коллектор, либо опущенным в скважины-зонды; технологические сбросы предприятий в жидком или газообразном состоянии.

Рис. 1.1 Принципиальная схема теплогенерации из грунтовых вод

Рис. 1.2 Принципиальная схема теплогенерации из окружающего (наружного) воздуха

Главная характеристика эффективности ТН - коэффициент преобразования (СОР), или коэффициент мощности, равный отношению теплопроизводительности ТН, или тепловой мощности к мощности его компрессора (потребляемой). В зависимости от используемого НТИ и конструкции отопительного теплообменника различают следующие типы ТН:

"воздух--воздух", к которым относятся обычные кондиционеры и те же холодильники;

"воздух-вода" - относительно недорогой вариант, не требующей сооружения сложной системы наружных сооружений.

Недостаток - падение коэффициента преобразования с понижением температуры воздуха (СОР = 3-3,6);

"вода-вода" - наиболее эффективный вариант

(СОР = 5,4 - 6,4). Недостаток - нужно наличие незамерзающего водного источника;

"рассол--вода" с грунтовыми коллекторами, либо зондами. (В трубы,

проложенные в земле, на всякий случай подается незамерзающий раствор - рассол). Наиболее универсальный вариант. Недостаток - требует значительных затрат на сооружение земляного коллектора (1 м. п. уложенной трубы - 20 - 30 Вт тепла), либо еще больших затрат на сверление скважин для грунтовых зондов (1 м. п. скважины - 40--60 Вт тепла).

Рис. 1.2 Принципиальная схема теплогенерации при использования земляных зондов и коллекторов

Один из первых успешно работавших домашних тепловых насосов установил в своем доме Сампер [10] - конструктор описанной выше установки в Норвиче. Одноэтажный дом имел хорошую теплоизоляцию и полностью отапливался тепловым насосом. Сначала, в первые годы эксплуатации, источником тепла был воздух, а затем - подземный теплообменник, использовавший тепло грунта па глубине около 1 м. В комнаты тепло поступало по медным трубкам, вмонтированным в бетонный пол. Коэффициент преобразования составляет 2,8, и установка нормально работает в настоящее время.

В 50-е годы было выпущено много мелких тепловых насосов домашнего применения. Наиболее подробно описан холодильник-нагреватель Феррапти [11], осуществляющий одновременно охлаждение пищевой кладовой и подачу отведенного тепла при повышенной температуре для нагрева воды. Аккумулятором тепла служил бак на 136 л, нагреваемый зимой мощностью 0,7 кВт и летом в жаркие месяцы мощностью 1,3 кВт,

Мощность компрессора 400 Вт, температура кладовки снижается в среднем на 11° С. Интересно, что установка стоила 141 фунт стерлингов, но она была в то время отнесена к предметам роскоши и на нее произведена наценка на 60%, что отпугнуло возможных покупателей. Однако те установки, что были проданы, работали хорошо.

 

1.2 Конструкции и принципы работы парокомпрессионных насосов

 

Тепловой насос VITOCAL 300 <#"866256.files/image005.gif">

Рис. 1.3 Производство тепловых насосов в США: I - ранний период роста; II - период переоценки; III - период быстрого роста.

вдвое больше и в 1957 г. - в 10 раз больше. В 1963 г. было выпущено уже 76 000 агрегатов, причем большинство из них установлено в южных штатах, где требуется летнее охлаждение и отопление зимой. Такие тепловые насосы успешно конкурируют с обычными котлами, дающими только тепло.

Проблемы возникли, когда эти установки начали применять в холодных северных штатах и выявился их недостаточный ресурс. За агрегированными тепловыми насосами установилась репутация ненадежных устройств. Это привело к прекращению роста выпуска в начале 60-х годов вплоть до 1971 г., когда снова начался их рост (рис. 1.3).

Интерес к тепловым насосам никогда не был так велик, как в настоящее время. В Европе, Японии и США выпускают установки для теплоснабжения квартир, общественных зданий и промышленных процессов. Международное энергетическое агентство и Европейское экономическое сообщество выдвинули крупные программы развития тепловых насосов с демонстрацией новых конструкций и способов применения. В ближайшие годы на рынке появятся совершенно новые тепловые насосы для домашнего применения, использующие газ вместо электроэнергии. Расширится применение тепловых насосов в промышленности с вытеснением обычных сушилок. Тепловые насосы позволяют нам использовать энергию более эффективно и восстанавливать сбросную энергию, чем определяется их важная роль в сохранении наших энергетических ресурсов.

Глава 2. Теоретические основы холодильные машины, их экологическая и экономическая перспективность


Анализ работы компрессионной и абсорбционной холодильных машин показал, что в данных условиях абсорбционная холодильная машина работает более эффективно.

Использование абсорбционных холодильных машин для кондиционирования и теплоснабжения дало возможность осуществить их круглогодичную загрузку, упростить системы хладо- и теплоснабжения, создать экономичные, безопасные и малошумные машины.

На уровень эффективности холодильной системы оказывает влияние ряд факторов, непосредственно связанных с эксплуатацией. С одной стороны, это факторы, обусловленные конструкцией системы (надёжность, уровень автоматизации и др.), с другой - её влияние на окружающую среду.

Эксплуатационные показатели абсорбционной холодильной машины, связанные с надёжностью и уровнем автоматизации, выше, чем у компрессионной, т.к. надёжность компрессионной холодильной машины в значительной степени определяется надёжностью механического компрессора.