Материал: Организация и финансирование работ по землеустройству и государственному кадастру недвижимости

Внимание! Если размещение файла нарушает Ваши авторские права, то обязательно сообщите нам

- установка сплит-систем, более совершенных по акустическим характеристикам;

выбор оптимальных режимов работы компьютеров;

звукоизоляция стен и плит перекрытия помещений офиса с применением современных изоляционных материалов;

изоляция фундаментов под виброактивное оборудование от несущих конструкций и инженерных коммуникаций;

использование ионизирующих ламп (ламп Чижевского);

звукоизоляция привода электродвигателей насосов кожухами;

расположение ксерокса, множительной техники и факса в отдельной комнате Министерства.

Колебания частей аппаратов, машин, коммуникацией и сооружений, вызываемые динамической неуравновешенностью вращающихся деталей, пульсацией давления при транспортировке жидкостей и газов и другими причинами, принято называть вибрацией. Вибрации вызывают в организме человека многочисленные реакции, которые являются причиной функциональных расстройств различных органов. Под действием вибрации происходят изменения в периферической и центральной нервных системах, сердечнососудистой системе, в виде повышенного утомления, головной боли, боли в суставах пальцев рук, повышенной раздражительности, нарушении координации движений. В рассматриваемом офисе мероприятия по снижению вибрации не требуются.

Помещения должны быть пожаробезопасными. Пожарная защита обеспечивает наличием средств пожаротушения, применением пожарной сигнализации, обеспечением безопасной эвакуации людей в случаях возникновения пожара.

При работе с ЭВМ и ее внешними устройствами возможны воздействия следующих опасных и вредных производственных факторов: поражение электрическим током; получение травм от движущихся частей внешних устройств; в зависимости от конструктивных особенностей, устройства визуального отображения (дисплеи) генерируют несколько типов излучения, в том числе: рентгеновское, радиочастотное, ультрафиолетовое, работа с ЭВМ, как правило, сопровождается значительным зрительным и общим переутомлением, поэтому в соответствии СанПиН 2.2.2/2.4.1340-03устанавливаются технологические перерывы [8]. Во время перерывов с целью снижения нервно - эмоционального напряжения, утомления зрительного анализатора, устранения влияния гиподинамии и гипокинезии, предотвращения развития утомления рекомендуется выполнять комплексы специальных упражнений.

Немаловажным фактором является освещение, которое повышает безопасность работ и производительность труда. Несоответствие нормативным показателям освещения или неправильная установка источников света могут быть причиной быстрой утомляемости работающих, а также несчастного случая.

Для создания нормальных условий труда освещение должно удовлетворять следующим требованиям:

обеспечивать равномерность освещения;

не вызывать слепящего действия, блесткости и изменений яркости в поле зрения работающего;

не образовывать резких теней на рабочей поверхности;

быть экономичным.

В офисных помещениях применено искусственное освещение. Основным источником искусственного освещения являются газоразрядные (люминесцентные) лампы. Согласно СНиП 23-05-95*, СП 52.13330.2011, ГОСТ 6825-91 (МЭК 81-84) нормативные значения для помещений с характеристикой зрительной работы средней точности и VI разряде зрительных работ искусственная освещенность при системе общего освещения составляет всего 2000-2500 лк. По данным проекта, в офисном помещении до применений мероприятий по улучшению освещения, значение искусственного освещения составляло 1000 лк. Эти значения не соответствовали нормативным показателям и были в 2-2,5 раза меньше нормы. В связи с этим, были проведены работы по улучшению освещения, а именно установлены люминесцентные лампы ЛД (2500 лк) по всему периметру потолка офиса.

Из приведённого выше следует, что фактические значения освещенность помещения соответствуют допустимым параметрам.

Химических и биологических воздействий не имеется.

Выводы: Условия труда на рабочем месте специалиста Министерства природных ресурсов, экологии и имущественных отношений Оренбургской области по микроклимату в офисном помещении (температуре воздуха, температуре поверхностей, относительной влажности воздуха, скорости движения воздуха, интенсивности теплового облучения от нагретых поверхностей оборудования и открытых источников), шуму, вибрации, электро- и пожаробезопасности, излучению при работе с ЭВМ, освещению соответствует нормативным требованиям.

.2 Расчет искусственного освещения помещения офиса

Искусственное освещение регламентируется нормами [30].

Освещение участка площадью

=5,5*5=27,5 м2

запроектировано светильниками типа ПВЛМ-2. Количество светильников равно N=6 (таблица 5.1.Высота подвеса светильника над рабочей поверхностью Нр=3,5 м. В каждом светильнике установлено по 2 люминесцентные лампы. Коэффициент запаса равен k3 =1,6, .Ен=200 лк.

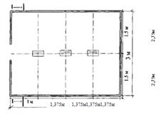
Расчет общего равномерного искусственного освещения горизонтальной рабочей поверхности выполняется методом коэффициента использования светового потока, отраженного от потолка и стен. Схема офисного помещения приведена на рисунках 5.1 и 5.2.

Рисунок 7.1 - Схема для расчета освещения в помещении офиса (вид сбоку)

Рисунок 7.2 - Схема для расчета освещения в помещении офиса (вид сверху)

Световой поток группы ламп светильника при люминесцентных лампах Фл рассчитывают по формуле (7.2.1):

 (7.2.1)

где Фл - световой поток лампы, лм;

Ен - нормированная минимальная освещенность, лк;- площадь светового помещения, м2;- коэффициент неравномерности освещенности;- коэффициент запаса, учитывающий снижение освещенности из-за загрязнения и старения лампы;- число светильников в помещении, шт.;- коэффициент использования светового потока ламп, зависящий от КПД и кривой распределения силы света светильника, коэффициента отражения потолка рпи стен рс, высоты подвеса светильников и показателя помещения i. Выбираем из таблицы;

п - количество ламп в светильнике, шт.

Для того, чтобы определить коэффициент использования светового потока uнаходится индекс помещенияi и предположительно оцениваются коэффициенты отражения поверхностей помещения: потолка - рпи стен - рс,. расчетной поверхности или пола - рр.

Индекс помещения вычислим по формуле:

(7.2.2)

где А - длина помещения, м;

В - ширина помещения, м;

Н - высота подвеса светильников над рабочей поверхностью, м.

При расчете показателя помещения известны следующие величины:

А = 5,5 м; В = 5,0 м; Нр= 3,5 м.

Используя формулу (5.2.2), определяется значение показателя помещения i:

 (7.2.3)

Далее необходимо определить коэффициент использования светового потока для ламп ПВЛМ-2 светильника ПВЛ, показателя помещения, коэффициентов отражения потолка и стен равных:=0,748; рп =0,5; рс =0,3 рр=0,1

С учетом имеющихся данных (интерполированием) коэффициент использования светового потока uбудет равен 36%.

Для расчета светового потока приняты следующие значения: Ен= 200лк (офисное помещение); S= 27,5 м2; z= 1,1 - примем расположение светильников наивыгоднейшим; k3= 1,6 - для люминесцентных ламп и запыленности помещения менее 5 мг/м в кубе (постоянно убирают); N= 6; u=0,36; п = 2.

Подставив значения в формулу (5.2.4), световой поток лампы составит:

 (7.2.4)

Используя вычисленное значение светового потока с помощью таблицы 4.32, стр. 137 [46], выбираем ближайшую стандартную лампу и определяем необходимую электрическую мощность. Наиболее близкая люминесцентная лампа типа ЛД со световым потоком 2500 лм и мощностью 40 Вт. (длина ламп 1213мм).

Расчет общего равномерного искусственного освещения горизонтальной рабочей поверхности выполняется методом удельной мощности. Метод позволяет определить мощность каждой лампы Р, Вт, для создания в помещении нормируемой освещенности (7.2.5):

 (7.2.5)

где p - удельная мощность, Вт/м2 (применяется из справочника для помещений данной отрасли) выбираем из таблицы Б5 [45] от заданной освещенности и площади помещения;- площадь светового помещения, м2;- число светильников в помещении, шт.;

п - количество ламп в светильнике, шт.

Вт

Удельная мощность осветительной установки служит функцией переменных: нормированный освещенности, коэффициента использования светового потока, типа источника света и размещения светильников, размеров помещения, коэффициентов отражения его поверхностей. Удельная мощность для люминесцентных ламп при k3 =1,6. При этом напряжение питания равно 220 В. Удельная мощность прямо пропорциональна коэффициенту запаса.

Поскольку метод удельной мощности является наиболее простым, но наименее точным, поэтому его применяют при ориентировочных расчетах. Точечный метод применяют для расчета локализованного и комбинированного освещения, освещения наклонных и вертикальных плоскостей.

Освещенность Е - поверхностная плотность светового потока, (7.2.6):

 (7.2.6)

где Ia          - сила света в направлении от источника на данную точку рабочей поверхности, кд;- угол падения световых лучей, то есть угол между лучом и перпендикуляром к освещаемой поверхности (a = 0о) Для практического использования в формулу подставляют коэффициент запаса k3 и значение Hp.

 (7.2.7)

где Ω - телесный угол светильника (для светильника определяем как полный телесный угол): примем светильник за светящуюся линию

 (7.2.8)

где l - длина лампы в светильнике, мм, выбираем из таблицы.

кд

 (7.2.9)

где r - расстояние от светильника до расчетной точки, м;

м (7.2.10)

откуда

лк

Вывод: Поскольку равенство Е≥Ен выполняется, следовательно расчет выполнен правильно. Расчетное значение освещенности в помещении 224,0 лк больше нормативного 200 лк. Дополнительных мероприятий по освещенности (ни по количеству ни по мощности ламп) в помещении не требуется.

7.3 Возможные чрезвычайные ситуации

С целью обеспечения безопасности необходимо рассмотреть возможные чрезвычайные ситуации.

Последствиями чрезвычайных ситуаций могут быть человеческие жертвы, ущерб здоровью людей или окружающей среде, материальные потери или нарушение условий жизнедеятельности.

На предприятии могут произойти следующие чрезвычайные ситуации: техногенные (пожары, обрушение здания, аварии на газопроводах, водопроводах), природные (природные пожары, снеговые заносы), экологические (дожди), социальные (грабежи).

При обнаружении признаков горения (задымления, запаха гари, повышения температуры) каждый работник обязан:

- сообщить об этом по телефону в пожарную охрану;

покинуть здание, если он не участвует в тушении пожара и не руководит эвакуацией. Для выхода из здания необходимо спуститься вниз до первого этажа по основной лестничной клетке. В случае невозможности воспользоваться основным выходом (задымление, температура), покинуть здание по запасной, не задымленной лестничной клетке. Перед выходом из помещения отключить электронагревательные приборы, установки, освещение;

- тушение пожара производить водой от внутренних пожарных кранов и огнетушителями с соблюдением мер безопасности (запрещается тушить водой и пеной электрооборудование под напряжением, запрещается находиться в задымленном помещении без защиты органов дыхания);

тушить электроустановки под напряжением разрешается углекислотными или порошковыми огнетушителями, при этом расстояние от насадки до токоведущих частей электроустановки должно быть не менее одного метра.

К организационным мероприятиям относят:

- обучение работающих противопожарным правилам;

- проведение бесед, инструктажей и тому подобное.

К техническим мероприятиям относятся следующие:

- в помещении, где происходит работа отдела, ЭВМ не ремонтировать;

- включенные в сеть ЭВМ не оставлять без присмотра;

- вся электропроводка должна быть надежно скрыта защитным кожухом;

· один раз в квартал надо производить очистку агрегатов и узлов, кабельных каналов;

· предусмотреть специальное место для курения, оборудованное урнами для окурков;

· аккуратно использовать электронагревательные приборы в отделе;

· контролировать лица входящих на территорию предприятия;

· проводить регулярный контроль за содержанием и постоянной готовности к действию огнетушителей и других первичных средств пожаротушения.

К причинам электрического характера (25% всех пожаров) относят короткие замыкания, перегрузки, большие переходные сопротивления, искрение и электрические дуги, статическое электричество. К мерам предупреждения коротких замыканий и перегрузок относят применение плавких предохранителей и специальных автоматов, включенных в цепь последовательно, а также правильный монтаж сетей, машин, аппаратов.

Развитию и распространению пожаров в помещениях с ЭВМ способствуют:

- конвективная связь между отдельными его помещениями (системы принудительной вентиляции);

пустоты между звукопоглощающими и строительными конструкциями;

- прохождение кабельных потоков через несколько помещений. Помещения, в которых происходит работа на ЭВМ, должны быть оснащены системами автоматической пожарной защиты. Они быстро обнаруживают очаг загорания (пожара); автоматически отключают электропитание ЭВМ, локализируют и тушат пожар.

Ликвидация чрезвычайной ситуации осуществляется силами и средствами самого предприятия, на территории которого произошла чрезвычайная ситуация.

Расчет времени эвакуации при чрезвычайных ситуациях Схема эвакуации из здания представлена на рисунке 7.3.

Рисунок 7.3 - Схема эвакуации сотрудников предприятия из здания

где Δ - переносной огнетушитель ОП-10 (порошковый);

ο1, ο2         - пожарный трубопровод на 1-м и 2-м этажах.

Всего в здании установлено 2 пожарных гидранта на 1-м и 2-м этажах и 4 огнетушителя по 2 штуки на каждом этаже.

В двухэтажном административном здании панельного типа возник пожар. Об этом известила сирена пожарной сигнализации. На момент пожара в здании находилось 185 человек. Определить, за какое время эвакуировались 30 человек из конференц-зала, габаритные размеры которого LxB=24*14 м, высота помещения 4 м, который находится на втором этаже, если всего на этаже в это время было 100 человек.

Двери конференц-зала выходят в коридор длиной l=46 м и шириной b=5,5 м. В конце коридора располагается лестница шириной 4 м, время движения по которой всех людей, находящихся на этаже было определено экспериментальным путем, и составляет 5 мин, при интенсивности движения людского потока 10 м/мин. На первом этаже здания, в фойе размером 10х7 м, происходит слияние людей первого этажа (в среднем 85 человек) и спускающихся по лестнице. Выход на улицу- через дверной проем 2,5 м.

По результатам выполненных расчётов расчетное время эвакуации 30 человек из кабинетов предприятия больше допустимого на 27 секунд. Поэтому здание, в котором располагается предприятие, необходимо оборудовать знаками пожарной безопасности ("выход", стрелки - по направлению, номера телефонов и др. предупреждающие знаки) разместить план эвакуации, запроектировать и обеспечить помещение дополнительными путями эвакуации (дополнительные выходы через двери), при пожаре руководить эвакуацией с помощью диспетчера по громкой связи.