Материал: Модернизация системы автоматического регулирования нагрева металла в двухзонной методической печи

Внимание! Если размещение файла нарушает Ваши авторские права, то обязательно сообщите нам

3. Организация производства и труда

.1 Монтаж датчиков

В автоматизированной системе регулирования тепловым режимом методической печи используются следующие датчики:

Первичный преобразователь ТППТ-121-01 - для измерения температуры в зонах печи

Расходомер Метран-150RFA - для измерения расхода природного газа и воздуха

Датчик давления-разряжения Метран-150CDR - для измерения давления в печи

Рисунок 18 - Монтажная схема первичного преобразователя ТППТ-121-01 - для измерения температуры в зонах печи

Рисунок 19 - Монтажная схема расходомера Метран-150RFA

Рисунок 20 - Монтажная схема датчика давления-разряжения Метран-150CDR

3.2 Маркировка труб, кабелей

Маркировка осуществляется пластмассовыми бирками, которые прочно прикрепляют к концам труб или пневмокабелей во всех местах, где заканчивается непрерывная линия трубной проводки в каждом помещении в том числе: в начале и конце трубной трассы; у проходов через стены и

потолочные перекрытия; в местах разветвлений трубной трассы.

Маркировочные надписи на бирках маркировочных - БМ можно делать несмываемыми чернилами или гравировкой с помощью металлической чертилки с последующей затиркой краской. Цвет краски или чернил должен быть отличен от цвета бирки. Маркировочные надписи бирками БМ выполняют путем соответствующего набора. Для простоты чтения монтажных схем и быстрого определения неисправностей маркировку кабелей указывают в кабельном журнале.

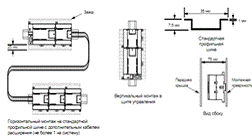
3.3 Монтаж щитов и пультов

Щиты и пульты предназначены для размещения на них средств контроля и управления технологическим процессом: контрольно-измерительных приборов, сигнальных устройств, аппаратуры управления, автоматического регулирования, защиты, блокировки, питания, а также линий связи между ними.

Щиты и пульты выпускают заводы электромонтажных изделий в соответствии с отраслевым стандартом ОСТ 36.13-76 «Щиты и пульты систем автоматизации технологических процессов». Конструктивной основой всех щитовых конструкций является каркас. Различные модификации щитов и пультов получают путем установки на, каркас определенных плоских элементов: панелей, стенок, дверей и др.

Монтажная схема пульта автоматики приведена в приложении З

3.4 Монтаж ПЛК

Монтировать можно S7-200 либо в щите управления, либо на стандартной профильной шине. S7-200 разрешено монтировать горизонтально или вертикально. При планировании компоновки для системы S7-200 оставляется достаточный зазор для присоединения проводов и коммуникационных кабелей. Для придания дополнительной гибкости компоновке вашей системы S7-200 используются кабели со штекерными разъемами.

Рисунок 21 - Монтаж ПЛК

Монтажные размерыS7-200 и модули расширения имеют монтажные отверстия для упрощения монтажа в щитах управления. Монтажные размеры приведены в таблице 7

Таблица 7 - Монтажные размеры S7-200


Монтаж CPU или модуля расширения

Монтаж в щите управления

. Проделать отверстия (М4) в соответствии с размерами.

. Закрепить модуль или модули в щите управления соответствующими винтами.

Монтаж на стандартной профильной шине

. Привинтить профильную шину к монтажной панели через каждые 75 мм.

. Открыть стандартную (DIN) защелку (на нижней стороне модуля) и навесьте модуль задней стороной на профильную шину.

Тщательно проверить, что защелка правильно защелкнулась, и модуль надежно закреплен на шине. Во избежание повреждения модуля нажимать на отверстие, а не непосредственно на переднюю стенку модуля.

Указания по заземлению S7-200

Заземление будет наилучшим, если все общие клеммы и все клеммы заземления вашего S7-200 и всех подключенных устройств присоединены к земле в одной точке. Эта точка должна быть непосредственно соединена с системной землей. Для достижения оптимальной помехоустойчивости рекомендуется, чтобы все общие обратные цепи постоянного тока были присоединены к земле в одной точке. Соединить общую клемму (M) источника питания датчиков 24 В постоянного тока с землей. Все заземляющие провода должны быть возможно более короткими и иметь большое поперечное сечение. При выборе точек заземления необходимо учитывать соответствующие предписания по технике безопасности и обеспечивать надлежащее функционирование защитных устройств, осуществляющих разрыв цепей тока.

3.5 Монтаж РО и ИМ

Регулирующие органы (РО) должны устанавливаться на прямолинейных участках трубопровода. Запорная арматура, тройники для обводной линии и прочие устройства, искажающие поток жидкости в трубопроводе должны быть удалены от клапана на расстоянии 10-15 диаметров трубопровода, как перед клапаном так и после него.

Устройства, осуществляющие перемещение РО в соответствии с поступающими от управляющего устройства сигналами, называют Исполнительными механизмами (ИМ).

Полный угол поворота выходного вала однооборотных исполнительных механизмов составляет менее 360°. ИМ типа МЭО выпускают с диапазонами угла поворота выходного вала в пределах 0-90° и 0-240°. Рабочий угол поворота в этих диапазонах настраивают путем соответствующей установки конечных выключателей ИМ. Для предотвращения поломки ИМ в случаях, если он не будет отключен конечным выключателем, однооборотные ИМ имеют два настраиваемых механических упора с шагом; фиксации их равным 3° в диапазоне угла поворота выходного вала. При наладке ИМ упоры устанавливают на угол, превышающий угол настройки конечных выключателей на 6-12° (по 3-6° на каждую сторону).

Корпус ИМ после установки необходимо заземлить с помощью проводника сечения не менее 4 мм2 через специальный болт, предусмотренный на механизме. Электропроводки подключают к ИМ через штепсельные разъемы или штуцерные вводы. Сечение каждой жилы внешней электропроводки должно быть не менее 1,5 мм2.

Конструкция сочленений ИМ с РО должна соответствовать следующим основным требованиям: простота устройства и надежность в работе, удобство монтажа, наладки и регулировки; отсутствие люфтов и зазоров во всех элементах сочленения; линейная или близкая к линейной характеристика РО; угол поворота кривошипа ИМ, обеспечивающий перемещение РО от положения «Открыто» до положения «Закрыто», как правило, следует принимать, равным 90°; уменьшение этого угла приводит к увеличению-скорости регулирования, что отрицательно влияет на качество регулирования.

В данном случае ИМ является МЭО, внешний вид которого приведён на рисунке 22.

МЭО устанавливается непосредственно рядом с РО и с помощью своего рычага воздействует на него.

Рисунок 22 - Внешний вид МЭО

Установив на выходных валах ИМ и РО рычаги, длины которых предварительно рассчитаны или определены графически, соединим их посредством тяги. При этом стремимся обеспечить линейность расходной характеристики РО. Для этого из паспорта РО берем его характеристику и путем изменения начальных углов поворота ИМ, длин рычагов и тяги так настроим сочленение, чтобы скомпенсировать нелинейность этой характеристики. После этого проверим наличие люфтов в соединении. Обнаружив люфты, их необходимо устранить.

Монтажная схема соединения РО и ИМ приведена в приложении И

3.6 Поверка датчиков, вторичных приборов

При проведении внешнего осмотра должно быть установлено соответствие датчиков следующим требованиям:

внешний вид, покрытие и маркировка должны соответствовать требованиям технической документации;

комплектность датчиков должна соответствовать комплекту поставки, указанному в формуляре, поставляемом с каждым датчиком;

линии связи датчиков с контрольно-измерительными приборами и заземление должны соответствовать требованиям техники безопасности.

если датчики не удовлетворяют перечисленным требованиям, то дальнейшей поверке не подлежат.

Опробование датчика производят методом нагружения датчика номинальной нагрузкой. Если датчик работоспособен, то при нагружении его нагрузкой на вторичном приборе будет наблюдаться отклонение указателя в ту или иную сторону.

Погрешности датчиков следует проверять измерением коэффициентов передачи при трехкратной нагрузке датчика в прямой и обратной последовательности по пяти ступеням, составляющим 20, 40, 60, 80, и 100% номинальной нагрузки с равномерной скоростью не превышающей 0,2 диапазона измеряемых усилий в минуту. Перед каждым циклом нагрузки-разгрузки датчик необходимо поворачивать вокруг продольной его оси на 120 угловых градусов. Электрическая прочность изоляции электрических цепей датчиков проверяется между любым выводом штепсельного разъема и корпусом

датчика по методике, изложенной по ГОСТ 21657-76.

Датчики Метран-150 поверяют по схеме приведенной на рис 23.

Рисунок 23 - Схема поверки датчиков Метран-150: 1 - образцовый прибор; 2 - источник давления, например, помпа ручная пневматическая П_0,25; 3 -датчик Метран_150; 4 - блок питания датчика Метран_150; 5 - средства визуализации и перенастройки давления (HART-коммуникатор или HART-модем с программой H-Master и компьютером)

Принцип действия

Измеряемое давление, созданное источником давления 2, подается непосредственно вобразцовый прибор 1 и в используемый в качестве эталона датчик давления, разрежения, давления разрежения 3

Выходной цифровой сигнал датчика Метран-150, пропорциональный измеряемому давлению (разрежению), поступает на вход HART-коммуникатора 5 и отображается на ЖКИ HART-коммуникатора в виде действительного значения давления, созданного источником давления в рабочей полости поверяемого прибора. Кроме того, HART-коммуникатор обеспечивает перенастройку датчика Метран-150 на требуемый диапазон измерений давления (разрежения) и выбор заданных пользователем единиц измерения давления. Вместо HART-коммуникатора возможно использовать HART-модем с программой H-Master и компьютером.

3.7 Наладка программного обеспечения ПЛК

На рабочей станции должна быть установлена операционная система WINDOWS 7 и Edge.

Для работы с программным обеспечением контроллера необходимо установить на автоматизированное рабочие место программиста следующие программные продукты:

• пакет программ STEP7 MICRO WIN;

• SOFTNETS7v6.1;

• CFCv6.0;

• D7-SYSv6.0.

Инструкции по установке данных приложений поставляются вместе с программным обеспечением.

Необходимо установить на рабочей станции следующие программные продукты:

• SCADA система InTouch каждый опциональный пакет.

Инструкции по установке данных приложений поставляются вместе с программным обеспечением.

3.8 Структура, функции и задачи служб эксплуатации

Механослужба подразделяется на: механиков и гидравликов. Механики выполняют работы по ремонту и обслуживанию механического оборудования адъюстажа.

Гидравлики выполняют работы по ремонту и обслуживанию гидравлического и пневматического оборудования.

Энергослужба - выполняет работы по ремонту и обслуживанию вентиляционных, отопительных, водопроводных и канализационных систем.

Электрослужба - выполняет работы по ремонту и обслуживанию закрепленного за ней электрооборудования.

Технологи - ведут основной технологический процесс стана.

Служба технологической автоматики стана "150" состоит из электромонтеров по ремонту и обслуживанию электрооборудования. В зависимости от участка работы электромонтеры могут относиться к оперативному, ремонтному и оперативно-ремонтному персоналу. В качестве второй профессии представлена профессия стропальщика, обязательная для ремонтного и оперативно-ремонтного персонала. В руководящей роли выступает административно-технический персонал.

Административно-технический персонал состоит из руководителей и специалистов, на которых возложены обязанности по организации технического и оперативного обслуживания, проведения ремонтных, монтажных и наладочных работ в электроустановках.

В права оперативного персонала входит оперативное управление и обслуживание электроустановок (осмотр, оперативные переключения, подготовка рабочего места, допуск и надзор за работающими, выполнение работ в порядке текущей эксплуатации).

Ремонтный персонал обеспечивает техническое обслуживание и ремонт, монтаж, наладку и испытание электрооборудования.

Оперативно-ремонтный персонал - ремонтный персонал, специально обученный и подготовленный для оперативного обслуживания в утвержденном объеме закрепленных за ним электроустановок.

Ответственными лицами за эксплуатацию и ремонт автоматики являются заместитель начальника стана по автоматике и электрик стана. Они подчиняются начальнику.

Электрику стана по автоматике непосредственно подчиняется старший мастер участка автоматики.

Старший мастер СТА является непосредственным организатором производства работ по обслуживанию, ремонту, монтажу и наладке электрооборудования систем управления технологическими процессами на своем участке, систем диагностики, средств контроля и измерения.

Старшему мастеру участка автоматики подчиняется мастер по ремонту и обслуживанию систем автоматики и его бригада ремонтного персонала, в состав которой входят 4 автоматчика.

Рисунок 24 - Структурная схема СТА участка.

3.9 Кабельный журнал

Кабельный журнал системы автоматического регулирования приведен в таблице 8.

Таблица 8 - Кабельный журнал

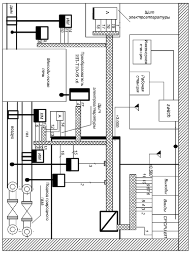
.10 План трасс прокладки кабелей

План трасс прокладки кабелей и трубных проводок изображен на рисунке 24.

Рисунок 25 - План трасс прокладки кабелей

4. Экономика производства

.1 Расчет затрат на модернизацию системы

Капитальные затраты - это денежные средства на создание новых и реконструкцию действующих основных фондов. Капитальные затраты складываются из затрат на приобретение оборудования и приборов, транспортных расходов, затрат на монтаж. Основанием для составления сметы является: спецификация на оборудование, прейскуранты цен, ценники на монтаж.

Таблица 9 - Стоимость оборудования для модернизации

№ п\п

Наименование оборудования

Тип

Кол-во штук

1 шт. в руб.

Стоимость в руб.

1

Блок ручного управления

БРУ-42

5

2500

12500

2

Показывающий, регистрирующий прибор

Технограф-160

3

6300

18900

3

Измерительный преобразователь

ИП-Т10-09

8

2500

20000

4

Ручной задатчик

РЗД-22

5

2600

13000

6

CPU 216 Siemens

6ES7216-2AD22-0XB0

1

-

35145

7

Модуль входных аналоговых сигналов

6ES7231-0HC22-0XA0

3

-

7230

8

Модуль выходных дискретных сигналов

6ES7222-1HF22-0XA0

1

-

5500

9

Компьютер


1

-

12000

10

Монитор

VGA

1

-

3000

11

Кабель 10м

PC/PPI

1

-

5495

12

Стоимость SCADA-системы

-

-

25500

13

Щиты, пульты

-

-

-

112000

14

Разработка проектной документации

-

-

-

448000

15

Авторский надзор и пусконаладочные работы

-

-

-

168000

Итого: Оборудование для модернизации (СОБЩ):

881270 244770