Материал: Модернизация роторного механического пресса за счет замены копиров и пуансонодержателей с роликами на гидроцилиндры

Внимание! Если размещение файла нарушает Ваши авторские права, то обязательно сообщите нам

Выбираем трубопровод 141 ГОСТ 8734-75.

Соединение: 2 - 14 - К

На основании данных всех четырех вариантов выбираем трубопроводы с наибольшим наружным диаметром для соответствующих линий гидравлической схемы, что показана на рисунке 2.2.

Для участка от Н1 до ТР: выбираем трубопровод 61,5% ГОСТ 8734 - 75, соединение: 2 - 6 - К

Для участка от Н2 до ТР: выбираем трубопровод 141 ГОСТ 8734 - 75, соединение: 2 - 14 - К

Для участка от ТР до бака (сливная линия): выбираем трубопровод 181 ГОСТ 8734 - 75, соединение: 2 - 18 - К

Для участков от ТР до гидроцилиндров: выбираем трубопровод 181 ГОСТ 8734 - 75, соединение: 2 - 18 - К

Трубы должны располагаться на прессе в местах, где исключена возможность механического повреждения их, они не должны мешать доступу к узлам, требующим обслуживания. Радиусы изгиба не должны быть меньше трех диаметров трубы.

2.7 Расчет предохранительного клапана

В данном роторном гидравлическом прессе предохранительный клапан предназначен для поддержания постоянного давления в напорной линии путем непрерывного слива масла во время работы.

Для определения того, удовлетворяет ли нас используемый предохранительный клапан, нужно рассчитать его пропускную способность и сравнить с максимально возможным расходом жидкости в гидросистеме пресса.

Исходные данные:

тип клапана: 10 - 20 - 2 - 11;

максимальный расход масла: Qmax=56 л/мин.;

максимальное избыточное давление перед предохранительным клапаном: Р1=12,5 МПа;

диаметр условного прохода: Dy=10 мм.

Расчет клапана производим по формуле [14]:

 = 1,9, л/мин, (2.6)

 - перепад давлений МПа;

 (2.7)

 - максимальное избыточное давление перед предохранительным клапаном, МПа;

 - максимальное избыточное давление за предохранительным клапаном, МПа: =0, МПа;

,9 - коэффициент расхода жидкости для данной конструкции клапана;

fщ - площадь сечения клапана в проточной части мм2.


Подставим данные в формулу (2.6):

Q=1,978,5 л/мин.

Проверяем условие:

Q  Qmax;

 56, значит клапан удовлетворяет условию.

2.8 Разработка конструкции пресса

.8.1 Разработка конструкции гидропривода пресса

Конструкция гидропривода (ГП) должна обеспечить минимальную длину и простейшую форму трубопроводов и одновременно удобство обслуживания. Все гидроаппараты монтируются на щите насосной установки. В гидрошкафе установлены: насос с электродвигателем, предохранительные клапаны, обратные клапаны, манометры, переключатели манометров.

Гидроцилиндры и торцовый распределитель устанавливаем на прессе.

2.8.2 Разработка конструкции торцового распределителя

Торцовый распределитель, что показан на рисунке 2.3, является одной из важных деталей пресса, т.к. он обеспечивает соответствующие режимы движения пуансонов.

Торцовый распределитель представляет собой диск, на одной поверхности которого выполнены канавки для распределения жидкости, а на другой поверхности выполнены резьбовые отверстия для крепления штуцеров трубопроводов. Канавки выполнены на четырех радиусах окружности распределителя, что соответствует двум полостям верхнего гидроцилиндра двум полостям нижнего гидроцилиндра.

Угловое расположение канавок выполнено в соответствии с циклограммой работы пресса, представленной на рисунке 2.1, в зависимости от того или иного угла поворота ротора [3].

Для подвода жидкости к канавкам в распределителе выполнены отверстия, диаметры которых соответствуют внутренним диаметрам трубопроводов, рассчитанных для соответствующих режимов движения пуансонов (см. подраздел 2.6.).

Рисунок 2.3 - Торцовый распределитель:

БПв - быстрый подвод верхних пуансонов; РХв - рабочий ход верхних пуансонов; БОв -быстрый отвод верхних пуансонов; РХн - рабочий ход нижних пуансонов; ВЫГР - ход нижних пуансонов для выгрузки кругов; БОн - быстрый отвод нижних пуансонов; СЛ - слив жидкости.

В поперечных сечениях канавки имеют размеры, необходимые для обеспечения условия: , мм2, где - площадь поперечного сечения канавки, .

- площадь поперечного сечения отверстия для подвода жидкости к соответствующей канавке, .

Поверхность распределителя, на которой выполнены канавки, цементируются для повышения износостойкости.

На фланце распределителя имеются отверстия для крепления его к станине пресса.

.8.3 Компоновка деталей и узлов пресса

Составление компоновки проводим таким образом, чтобы в разработанном прессе использовалось как можно большее количество механизмов, узлов и деталей базового механического пресса в целях уменьшения габаритов и уменьшения затрат на производство пресса.

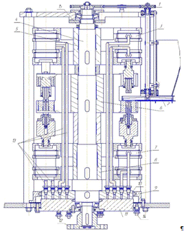
Компоновка пресса без привода представлена на рисунке 2.4.

В конструкции разрабатываемого пресса неизменными остались: механизм подачи абразивной смеси 2, ременная передача 1 и привод вращения вала пресса.

Привод вращения состоит из электродвигателя; ременной передачи; редуктора, на выходном валу которого установлена полумуфта. Также в приводе предусмотрен механизм ручного вращения вала пресс.

Назначение основных элементов пресса показано на рисунке 2.4.

Полумуфта 12 предназначена для передачи крутящего момента от вала редуктора к валу пресса. Ременная передача 1 предназначена для передачи крутящего момента от вала пресса 4 к валу вращения крыльчатки механизма подачи смеси 2. Верхние и нижние гидроцилиндры 3 и 7 предназначены для приведения в движение соответственно верхних и нижних пуансонов. Барабаны 5 и 8 предназначены для крепления верхних и нижних гидроцилиндров.

Диск 10 и торцовый распределитель 11 предназначены для распределения жидкости по трубопроводам 13 к соответствующим полостям гидроцилиндров.

Описание работы пресса в соответствии с рисунком 2.4

Рисунок 2.4 - Компоновка пресса:

- ременная передача; 2 - механизм подачи смеси; 3 - верхний гидроцилиндр; 4 - вал; 5 - барабан верхний; 6 - ротор; 7 - нижний гидроцилиндр; 8 - барабан нижний; 9 - стакан; 10 -диск; 11 - торцовый распределитель; 12 - полумуфта; 13 - трубопроводы; 14 - трубопровод; 15 - гайка.

При включении насосной установки жидкость от нее по трубопроводам поступает к соответствующим отверстиям торцового распределителя 11. Одновременно с этим при включении в электросеть электродвигателя пресса приводится во вращение вал пресса 4 с закрепленными на нем ротором 6, барабанами 5 и 8, диском 10. Торцовый распределитель 11 неподвижен, а по его поверхности вращается диск 10 с трубопроводами 13. При совпадении отверстий диска 10 с соответствующими канавками торцового распределителя 11 жидкость по трубопроводам 13 поступает в соответствующие полости гидроцилиндров верхних и нижних и происходит процесс прессования при непрерывном вращении вала 4. Крыльчатка механизма подачи абразивной смеси вращается непрерывно, а загрузка смеси осуществляется при прохождении прессформы под крыльчаткой.

В плоскости вращения диска 10 по поверхности распределителя 11 возникают незначительные утечки, которые удерживаются в герметичной камере, созданной диском 10 и 11 и стаканом 9, и по трубопроводу 14 уходит в бак насосной установки.

.8.4   Расчет шлицевой гайки на прочность

Шлицевая гайка 15, в соответствии с рисунком 2.4, предназначена для фиксирования ротора 6 и барабанов 5 и 8 на валу пресса и предотвращения их смещения в осевом направлении. Данная гайка воспринимает основное усилие прессования. Расчетная схема представлена на рисунке 2.5.

Исходные данные:

Гайка М95× ГОСТ 11872-80.

Внутренний диаметр:

Материал гайки: сталь 30Х, предел текучести = 700 МПа.

Усилие прессования: F = 50 кН.

Эксцентриситет приложения нагрузки: е=0,25 м.

Рисунок 2.5 - Расчетная схема

Гайка находится под действием эксцентрично приложенной нагрузки [11].

В таких гайках под действием силы F после затяжки гайки возникают напряжения растяжения  и напряжения изгиба вала :


где F=50 кН - эксцентрично приложенная нагрузка;

 диаметр резьбы;  - усилие затяжки гайки, кН:

 кН, (2.10)

где к=1,5 - коэффициент затяжки или коэффициент запаса по затяжке [11];

μ=0,25 - коэффициент внешней нагрузки:

е=0,25 м - эксцентриситет; W=0,1  - момент сопротивления вала изгибу: .

Гайки с эксцентричной нагрузкой рассчитывают по эквивалентному напряжению:

, МПа, (2.11)

где  - предел прочности на растяжение:

Подставляем данные в формулы (2.9) и (2.11):

 условие выполнено. Гайка удовлетворяет требуемой прочности.

3. Технологическая часть. разработка технологического процесса изготовления плиты гидрошкафа

.1 Назначение и конструкция детали

Плита является частью разрабатываемого пресса для производства абразивных кругов. Это плита гидрошкафа, на которой монтируются предохранительный клапан и трубопроводы. Присоединяемые клапан и штуцера должны плотно примыкать к поверхности плиты, чтобы не протекало масло, поэтому эти поверхности шлифуются. Материал детали сталь 50 (ГОСТ 1050-74). Химический состав стали 50 представлен в таблице 3.1, а механические свойства стали 50 представлены в таблице 3.2.

Таблица 3.1 - Химический состав стали 50

С

Si

Mn

не более

Ni

Cr




S

P



0.45 - 0.55

0.17 - 0.37

0.5 - 0.8

0.045

0.045

0.030

0.03


Таблица 3.2 - Механические свойства стали 50

, МПа

, МПа

, %

, %

Dn, Дж/см2

HB не более

не менее


горячекатанная

отоженная

377

628

14

39

391

250

210


.2 Выбор типа производства

Исходные данные:

годовая программа N2=2000 шт;

действительный годовой фонд времени работы оборудования, Fg=4029 ч.

Воспользуемся укрупненным методом расчета норм штучно-калькуляционного времени. Предварительно принимаем следующий технологический маршрут:

фрезерование;

сверление;

шлифование.

Штучно-калькуляционное время:

Тшт.к.=φкТ0, мин, (3.1)

где φк - коэффициент штучно-калькуляционного времени [6].

Т0 - основное технологическое время, определяемое по приближенной методике получения норм времени по обрабатываемой поверхности.

Определяем количество станков на операцию по формуле:


где Nr - годовая программа выпуска шт.;

Тшт.к.- штучно-калькуляционное время, мин.;

Fg - действительный годовой фонд времени работы оборудования, час.;

Ƞз.п. - нормативный коэффициент загрузки оборудования:

Ƞз.п.=0,85 [6].

Определяем принятое число рабочих мест - P.

Фактический коэффициент загрузки рабочего места вычисляем по формуле:


Количество операций, выполняемых на рабочем месте, определяем по формуле:


Результаты расчетов сводим в таблицу 3.3, просуммируем Тшт.к., Mр, Р, О.

Таблица 3.3 - Результаты расчета

Операция

Тшт.к., мин.

Р

Ƞ з.ф.

О

фрезерование

21,05

0,2

1

0,2

4,25

сверление

10,5

0,1

1

0,1

8,5

шлифование

3,06

0,03

1

0,03

28,3


Тшт.к.ср.=11,5

Ʃмрi=0,33

ƩР=3


ƩО=41,05