В некоторых случаях в насосном гидроприводе скорость выходного звена регулируется изменением скорости приводного двигателя (электродвигателя, дизеля и т. п.). Такое регулирование называется регулированием приводящим двигателем.
Также регулирование гидропривода может быть ручным,
автоматическим и программным.
2.4 Основные элементы гидропривода
В общем случае в состав насосного гидропривода входят гидропередача, гидроаппараты, кондиционеры рабочей жидкости, гидроемкости и гидролинии. Дадим определение этим элементам.
Гидропередача - часть насосного гидропривода, предназначенная для передачи движения от приводного двигателя к машинам и механизмам. Простейшая гидропередача состоит из насоса, гидродвигателя и гидролинии. Иногда, в сложных системах работают одновременно несколько насосов и гидродвигателей.
Гидроаппараты применяются для регулирования параметров потока рабочей жидкости (давления и расхода), а также для изменения или поддержания неизменным направления потока жидкости. Как правило, гидроаппараты являются составными элементами гидроавтоматики.
Кондиционеры рабочей жидкости (гидроочистители и теплообменные аппараты) предназначены для получения ее необходимых качественных показателей.
Гидроемкости (гидробаки, гидроаккумуляторы) предназначены для содержания в них рабочей жидкости с целью использования ее в процессе работы гидропривода.
Гидролинии (гидросеть) - устройства для
прохождения рабочей жидкости. Конструктивно гидролинии представляют собой
трубы, рукава, колена, тройники и т. д.
2.5 Достоинства и недостатки гидроприводов
К явным преимуществам гидроприводов относятся:
меньшие масса и габариты гидропривода по сравнению с массой и габаритами механического и электрического приводов, что объясняется отсутствием или сокращением тяжелых нагруженных валов, редукторов, муфт, генераторов с электроаппаратурой и т. п.;
простая и более совершенная компоновка. Это объясняется тем, что отдельные узлы даже в том случае, когда они размещены на взаимно перемещающихся частях машины, соединяют между собой гидролиниями, которые в зависимости от удобства расположения узлов можно изгибать в различных направлениях. Использование поворотных соединений и рукавов высокого давления совместно с гидролиниями позволяет создавать более совершенную компоновку узлов гидропривода на машинах. Насос обычно устанавливается у приводного двигателя; гидродвигатели - непосредственно у исполнительных органов; элементы управления - на пульте оператора-машиниста;
малая инерционность гидропривода, которая обеспечивает хорошие динамические свойства, увеличивает долговечность машины и позволяет производить включение и реверсирование рабочих движений за доли секунды. Время рабочего цикла при этом сокращается и повышается производительность машины;
бесступенчатость регулирования скорости рабочих движений, позволяющая повысить коэффициент использования приводного двигателя, упростить автоматизацию привода и улучшить условия работы машиниста;
возможность осуществления простым способом больших передаточных отношений между ведущим и ведомым звеньями при вращательном движении ведомого звена. Это достигается путем соответствующего подбора рабочих объемов насоса и гидромотора. При использовании в качестве ведомого звена высокомоментного гидромотора величина передаточного отношения может достигать 500 и более;
надежное предохранение от перегрузок приводного двигателя, металлоконструкций и рабочих органов. Гидропривод и рабочие органы машины при быстро нарастающих пиковых нагрузках защищает предохранительный гидроклапан, перепускающий часть жидкости на слив;
применение минеральных масел в качестве рабочих жидкостей, что обеспечивает смазку самих элементов гидропривода и повышает их эксплуатационные качества.
удобство управления, возможность разветвления мощности, применение стандартизованных и унифицированных узлов, возможность осуществления автоматизации и дистанционного управления и т.д.
Необходимо также считаться с недостатками гидропривода, а именно:
зависимость характеристики гидропривода от вязкости рабочей жидкости, которая изменяется от температуры; в автоматических гидравлических системах нестабильность вязкости нарушает работу автоматических устройств;
растворимость воздуха в жидкости, который также нарушает работу гидропривода и особенно автоматических устройств;
внутренние и наружные утечки рабочей жидкости, которые снижают КПД системы. В настоящее время уже разработаны рабочие жидкости с высоким индексом вязкости и уплотнения, гарантирующие длительную их работу без утечек.
КПД объемного гидропривода несколько ниже, чем КПД механических и электрических передач, и, кроме того, он снижается в процессе регулирования;
условия эксплуатации гидропривода (температуры) влияют на его характеристики;
чувствительность к загрязнению рабочей жидкости и необходимость достаточно высокой культуры обслуживания.
Однако при правильном выборе гидросхем и конструировании гидроузлов некоторые из перечисленных недостатков гидропривода можно устранить или значительно уменьшить их влияние на работу машин.
По характеру циркуляции рабочей жидкости насосные гидроприводы разделяют на гидроприводы с замкнутой циркуляцией жидкости (жидкость от гидродвигателя поступает во всасывающую гидролинию насоса) и гидроприводы с незамкнутой циркуляцией жидкости (жидкость от гидродвигателя поступает в гидробак).
Подводя итоги раздела, дадим краткую характеристику рассматриваемому приводу.
а) По характеру циркуляции рабочей жидкости гидропривод является замкнутым.
б) По задаче управления - следящий.
в) По типу приводного двигателя насоса - дизельный.
г) По виду источника энергии - насосный.
д) По характеру движения выходного звена - вращательным.
е) По способу управления - автоматический.
ж) Регулирование -автоматическое,
объемно-дроссельное.
3. Состав рассматриваемой САУ
Принципиальная схема следящего гидропривода, закон управления
которым предстоит получить приведена на рис.
- насос основной; 2,8 - напорная или
сливная гидролиния; 3 - предохранительный гидроклапан; 4 - насос подпитки; 5 -
гидробак; 6 - гидродвигатель; 7 - обратный гидроклапан
3.1 Вращающейся трансформатор
Поворотные (вращающиеся) трансформаторы - это небольшие
индукционные электрические машины, предназначенные для преобразования
механического перемещения - угла поворота ротора α
- в
электрический сигнал - выходное напряжение U, амплитуда которого
находятся в определенной функциональной зависимости от угла поворота ротора.
Схема ВТ изображена на рис.
У большинства поворотных трансформаторов концы обмоток ротора выводятся к контактным кольцам, по которым скользят щетки. Кольца и щетки обычно выполняют из сплавов серебра.
Особенностью повортных трансформаторов является то, что у них
взаимоиндуктивность между первичными обмотками (статора) при повороте ротора
ищменяется строго по синусоидальному (или косинусоидальному закону) закону от
угла поворота α, что при определенных условиях обеспечивает
такой-же закон изменения амплитуды э.д.с. вторичных обмоток; этого не
наблюдается у обычных трансформаторов, не имеющих подвижных частей.
3.2 Гидроцилиндры
В силовых гидроцилиндрах рабочий ход поршня совершается
давлением жидкости. Конструктивно силовые цилиндры представляют сбой стальной
корпус, в котором перемещается шток с поршнем (рис. ). Зазор между поршнем и
корпусом выбирается наименьшим. Максимальная величина зазора зависит от поля
допусков на изготовление. Типовая конструкции силового гидроцилиндра и
натуральное изображение приведены ниже.
Силовые цилиндры
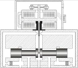
3.3 Электрогидравлический усилитель
Электрогидравлический усилитель ЭГУ, представляет собой быстродействующее устройство, состоящее из электромеханического преобразователя ЭМП и гидроусилителя ГУ.
Можно утверждать, что стабильность характеристик и надежность работы электрогидравлического усилителя в большой степени определяются качеством конструкции и совершенством технологии изготовления электромеханического преобразователя. В связи с этим изучение характеристик электромеханических преобразователей имеет важное значение. Его конструкция должна быть простой и миниатюрной, а мощность управления минимальной (не более 0,1-0,5 Вт). Кроме этого, ЭМП должен иметь высокую частоту собственных колебаний (не менее 400Гц) и надежность.
Электромеханические преобразователи ЭМП предназначены для преобразования электрических сигналов управления в механическое перемещение «входного звена» распределительно - управляющего устройства гидроусилителя. Электромеханический преобразователь конструктивно выполняется в виде электромагнита, подвижный якорь которого жестко соединен с заслонкой или струйной трубкой гидроусилителя.
Статические и динамические характеристики ЭГУ в большой степени зависят от гидродинамических сил, действующих на якорь ЭМП, управляющего перемещениями входного элемента - заслонки гидроусилителя. Эти силы, нагружая якорь ЭМП, определяют его мощность и в значительной степени быстродействие.
ГУ может быть дроссельного или золотникового типа. В
литературе по автоматическому управлению усилитель первого типа чаще
упоминается под названием «сопло-заслонка». В ЭГУ рассматриваемой системы
формируется два каскада. (см рис)

Основным элементом является дросселирующий золотниковый распределитель, который сочетает функции дросселя переменного сопротивления и распределительного устройства. Дросселируя поток жидкости, золотник изменяет значение давления последнего, а следовательно и усилие, перемещающее регулирующий орган. Изменение направления движения жидкости, распределителем позволяет реверсировать исполнительный орган. Распределители обычно выполняются разгруженными, что повышает чувствительность регулятора.
Кроме того (см. рис), ЭГУ оснащен обратной связью. Основными достоинствами электрогидравлических усилителей с обратной связью являются: высокое быстродействие, стабильность характеристик (и, что очень важно - коэффициента передачи) при изменении температуры в широком диапазоне, отсутствие центрирующих пружин, которые могут вызвать перекос золотника и увеличить его трение.
Однако следует отметить, что конструктивное выполнение и компановка электрогидравлического усилителя с обратной связью в некоторых случаях отличаются определенной сложностью.
Важный показатель для регуляторов - коэффициент усиления гидроусилителя - отношение мощности на выходе усилителя к мощности на входе. Практически это отношение можно определить как отношение мощности на входе исполнительного механизма регулирующего органа к мощности на выходе чувствительного элемента. Значение коэффициента для гидроусилителей обычно колеблется от нескольких сотен до нескольких десятков тысяч единиц.
.4 Гидробак
В гидробаках находится запас рабочей жидкости, который
необходим для улучшения теплоотвода, для предотвращения эмульсирования, а также
для очистки рабочей жидкости от мелких взвесей. Гидробак обычно сваривается из
листовой стали, внутри него делается несквозная перегородка, разделяющая бак на
два неравных отсека (см. рис) больший отсек сливается рабочая жидкость из
системы из меньшего - производится забор жидкости насосом.
Гидробак
В большем отсеке происходит оседание крупных частиц, попадающих в систему из гидролиний, соединений и отдельных гидроагрегатов, а также освобождение жидкости от избыточного воздуха, поступающего в нее через неплотности соединений. В меньшем отсеке происходит оседание мелких взвесей, имеющихся в жидкости.
Для того чтобы оседающие на дно бака взвеси не попадали во
всасывающую гидролинию, отверстие всасывающего патрубка находится выше дна
гидробака на 50 - 60 мм. Отверстие сливного патрубка находится также на
расстоянии 50 - 60 мм от дна гидробака. Этим исключается насыщение рабочей
жидкости воздухом при поступлении в бак, а также гасится напор. Емкость
гидробака выбирается в зависимости от давления в системе, объемного к. п. д.
насоса и общего кпд всей системы, а также наличия в системе дроссельных и
специальных охлаждающих устройств, интенсивности работы исполнительных органов,
температуры окружающего воздуха.
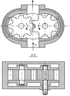
3.5 Шестеренный насос
Благодаря простоте конструкции шестеренные гидромашины получили очень широкое распространение в качестве нерегулируемых насосов, применяемых для питания гидропередач небольшой мощности с дроссельным управлением, для подачи смазки, для питания систем управления.
Шестеренная гидромашина распространенного типа с наружным зацеплением (рис.) представляет собой пару чаще всего одинаковых шестерен, находящихся в зацеплении и помещенных в камеру, стенки которой охватывают их со всех сторон с малыми зазорами.
Камеру образует корпус. Конструкция шестеренного насоса
приведена на рис.. К недостаткам шестеренных насосов следует отнести
сравнительно большие объемные потери и резкое падение к. п. д. при высоких
температурах до 70-80%, небольшой срок службы под нагрузкой, трудность
регулирования насоса.
3.6 Фильтры
Долговечность насосов и узлов гидропривода в значительной мере зависят от чистоты рабочей жидкости и ее филы рации. В большинстве случаев загрязняющие частицы состоят из кварца, окислов металлов, волокон тканей и абразивной пыли, которая поступает в систему вследствие недостаточно тщательной промывки деталей, обработанных микропорошками. Известны случаи, когда микропорошки сокращали срок службы насосов в 10-12 раз. Наиболее опасными являются частицы такого же порядка, каким является зазор в трущейся паре. Таким образом, для увеличения долговечности узлов гидросистем с зазорами между сопряженными деталями более 5 мкм в системе должен быть установлен фильтр тонкой очистки, удерживающий механические примеси размером более 3-5 мкм.
Через фильтр проходит вся жидкость, циркулирующая в системе. В качестве фильтроэлементов применяются проволочные плетеные сетки с отверстиями 40 - 63 мкм, проволока со спиральной намоткой с отверстиями до 100 мкм и бумага с порами 25 мкм.
Конструкции фильтров приведены на рис
3.7 Основной насос
Существует две группы аксиальных роторно-поршневых машин: с наклонным блоком цилиндров и с наклонным диском.
Гидронасос в рассматриваемом приводе является машиной аксиально-поршневого типа с наклонным диском. Такие насосы, по сравнению с другими типами, отличаются наибольшей компактностью и, следовательно, наименьшей массой. Имея рабочие органы с малыми радиальными габаритными размерами и поэтому с малым моментом инерции они способны быстро изменять частоту вращения. Эти специальные свойства обусловили широкое применение таких машин в качестве регулируемых и нерегулируемых насосов и гидромоторов.