Материал: metodukazania_po_SSI_1_Chagina

Внимание! Если размещение файла нарушает Ваши авторские права, то обязательно сообщите нам

 

 

 

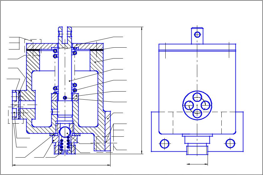
Задания варианта 15

 

15.1

 

 

 

Кран пробковый

По данным спецификации изобразить следующие соединения:

 

Б — болтовое — фланцa 5 с корпусом 1;

 

 

В — шпилечное — втулки сальника 3 с крышкой 4;

 

Г — винтовое — крышки 4 с корпусом 1

 

 

14

3

В

2

А-А

 

 

 

 

 

 

 

 

 

 

Г

 

1

 

 

 

9

 

6

 

 

 

4

 

5

 

 

 

7

 

 

 

 

 

16

114

 

G1

 

Б

G1

 

 

 

 

 

8

 

 

 

А

 

А

 

 

160

 

 

 

 

 

 

 

 

 

 

116

 

 

 

15.2

 

Завершить спецификацию крана пробкового

 

 

 

 

 

 

 

 

 

 

 

 

 

Форм

Зона

Поз.

Обозначение

Наименование

Кол.

Приме-

 

чание

 

 

 

 

 

 

 

 

 

 

 

 

 

 

 

Документация

 

 

 

 

 

 

 

 

 

 

 

 

 

 

 

 

КИКГ.ХХХХ00.015СБ

Сборочный чертеж

 

 

 

 

 

 

 

 

 

 

 

 

 

 

 

 

 

Детали

 

 

 

 

 

 

 

 

 

 

 

 

 

 

 

1

КИКГ.ХХХХ01.015

Корпус

1

 

 

 

 

2

КИКГ.ХХХХ02.015

Пробка

1

 

 

 

 

 

3

КИКГ.ХХХХ03.015

Втулка сальника

1

 

 

 

 

 

4

КИКГ.ХХХХ04.015

Крышка

1

 

 

 

 

 

5

КИКГ.ХХХХ05.015

Фланец

1

 

 

 

 

 

6

КИКГ.ХХХХ06.015

Прокладка

1

 

 

 

 

7

КИКГ.ХХХХ07.015

Прокладка

1

 

 

 

 

 

 

 

 

 

 

 

 

 

 

 

 

Стандартные изделия

 

 

 

 

 

 

 

 

 

 

 

 

 

 

 

8

 

Болт М8 ... ГОСТ 7798-70

2

 

 

 

 

 

9

 

Винт М8 ... ГОСТ 1491-72

4

 

 

 

 

 

 

 

Гайка М .. .ГОСТ 5915-70

 

 

 

 

 

 

 

 

Гайка М...ГОСТ 5915-70

 

 

 

 

 

 

 

 

Шайба...ГОСТ 6402-70

 

 

 

 

 

 

 

 

Шайба...ГОСТ 6402-70

 

 

 

 

 

 

14

 

ШпилькаМ6 ... ГОСТ22032-76

4

 

 

 

 

 

 

 

 

 

 

 

 

 

 

 

 

Материалы

 

 

 

 

 

 

 

 

 

 

 

 

 

 

 

16

 

Пенька ГОСТ 5152-84

0,02

кг

 

 

 

 

 

 

 

 

 

117

15.3. Задание по созданию чертежей деталей и сборок

Завершить оформление сборочного чертежа и спецификации.

Выполнить трехмерные модели и ассоциативные чертежи корпуса 1 и крышки 4. В каждом ассоциативном чертеже расположить аксонометрию с вырезом одной четверти детали.

Выполнить по ГОСТ 2.317—69 аксонометрическое изображение с вырезом одной четверти шпилечного соединения деталей 1 и 4.

15.4. Данные для заполнения раздела «Стандартные изделия»

Сое-

Наименование

Материал

Покрытие

Тол-

щина

дине-

 

 

 

покры-

ние

 

 

 

тия

Бол-

Болт М10…

Сталь 35

Цинковое

9 мкм

Гайка … (исполнение 1)

Сталь 20

Цинковое

9 мкм

товое

Шайба …(исполнение 2)

Сталь 08

Цинковое

9 мкм

 

Вин-

 

 

Фосфатное

 

Винт М10…(класс точности В)

Сталь 30

с пропиткой

-

товое

 

 

 

маслом

 

Шпи-

Шпилька М8…

Сталь 20

Кадмиевое

-

леч-

 

 

с хромат.

 

ное

Гайка…(исполнение 2)

Сталь 10

То же

-

соеди-

Шайба…(толщина нормальная)

Сталь 65Г

То же

-

нение

Описание крана пробкового. Пробковый кран является од-

ним из видов арматуры трубопроводов и предназначается для подачи жидкости по трубопроводу или для изменения ее количества.

Кран состоит из корпуса 1, в котором установлена коническая пробка 2, верхним основанием конуса упирающаяся в крышку. Крышка 4 закреплена на корпусе винтами 9. На крышке 4 установлена втулка сальника 3, которая уплотняет пробку 2 сальниковой набивкой 16. Втулка сальника 3 закреплена на крышке при помощи шпилек 15, шайб 13 и гаек 10. Для поворачивания пробки в нужное положение на свободном конце ее выполнен квадрат, на который надевается рукоятка (на чертеже она не изображена). Фланец 5 крепится к корпусу при помощи болтов 8, шайб 14 и гаек 11. На чертеже кран изображен в открытом положении.

При повороте пробки 2 изменяется поперечное сечение или полностью закрывается отверстие в корпусе, по которому проходит жидкость, соответственно, изменяется количество жидкости, проходящей через кран, или подача ее полностью прекращается. К

118

корпусу подсоединяются два трубопровода (на чертеже они не показаны), по которым проходит жидкость, с одной стороны – к резьбовому концу фланца 5, с другой – к муфте 12, которую необходимо установить на резьбовом патрубке корпуса.

Полное прилегание сопрягаемых поверхностей пробки 2 и корпуса 1 достигается конической формой этих деталей. Уплотнение пробки 2 осуществляется при помощи сальниковой набивки 16. Герметизация корпуса 1 и крышки 4 обеспечена прокладкой 7, а фланца 5 и корпуса 1 – прокладкой 6.

119

16.1

 

Насос смазочный

По данным спецификации, изобразить следующие соединения:

 

А — болтовое — опоры 3 с корпусом 1;

 

Б — винтовое — крышки 10 с корпусом 1;

 

В — шпилечное — крышки 2 с корпусом 1

 

20

 

 

 

2

 

 

 

 

 

11

 

B

 

 

 

1

 

6

 

 

 

4

 

10

 

 

 

12

 

120

 

 

 

13

195

 

 

 

21

 

 

 

 

 

 

 

 

 

3

 

 

 

 

 

14

 

15

 

 

22

 

 

Б

 

 

А

 

 

 

7

 

8

9

5

 

 

 

 

 

 

155

M33х2

 

 

16 варианта Задания