Материал: m083700d

Внимание! Если размещение файла нарушает Ваши авторские права, то обязательно сообщите нам

Das WAGO-I/O-SYSTEM 750 31

Versorgung

Alternativ kann die Absicherung extern erfolgen. Hierbei bieten sich die Sicherungsklemmen der WAGO Serien 281 und 282 an.

Abb. 2-18: Sicherungsklemmen für Kfz-Sicherungen, Serie 282

pf66800x

Abb. 2-19: Sicherungsklemmen mit schwenkbarem Sicherungshalter, Serie 281

pe61100x

Abb. 2-20: Sicherungsklemmen, Serie 282

pf12400x

WAGO-I/O-SYSTEM 750

CANopen

32 • Das WAGO-I/O-SYSTEM 750

Versorgung

2.7.4 Ergänzende Einspeisungsvorschriften

Das WAGO-I/O-SYSTEM 750 kann auch im Schiffbau bzw. Off-/Onshore- Bereichen (z. B. Arbeitsplattformen, Verladeanlagen) eingesetzt werden. Dies wird durch die Einhaltung der Anforderungen einflussreicher KlassifikationsGesellschaften, z.B. Germanischer Lloyd und Lloyds Register, nachgewiesen.

Der zertifizierte Betrieb des Systems erfordert Filtermodule für die 24V-

Versorgung.

Artikel-Nr

Bezeichnung

Beschreibung

750-626

Supply Filter

Filtermodul für Sytemversorgung und Feldversorgung

 

 

(24 V, 0 V), d.h. für Feldbus-Koppler/-Controller und

 

 

Bus-Einspeisung (750-613)

 

 

 

750-624

Supply Filter

Filtermodul für die 24 V-Feldversorgung

 

 

(750-602, 750-601, 750-610)

 

 

 

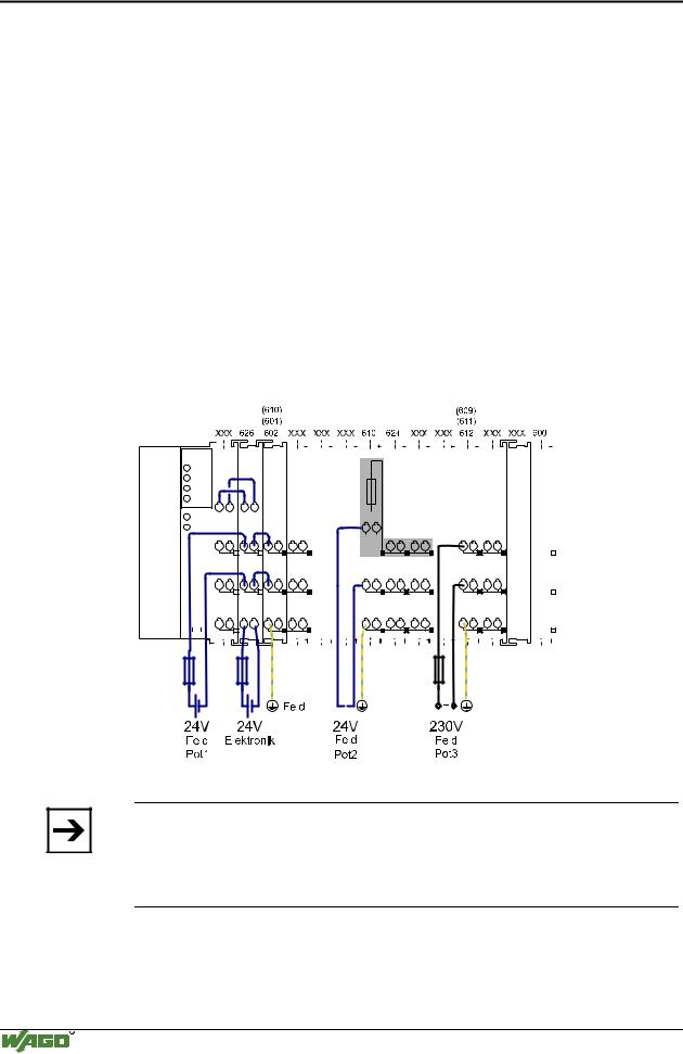
Daher ist zwingend folgendes Einspeisekonzept zu beachten.

 

 

 

 

 

 

 

 

 

 

 

 

 

 

 

 

 

 

 

 

 

 

 

 

 

 

 

 

 

 

 

 

 

 

 

 

 

 

 

 

 

 

 

 

 

 

 

 

 

 

 

 

 

 

 

 

 

 

 

 

 

 

 

 

 

 

 

 

 

 

 

 

 

 

 

 

 

 

 

 

 

 

 

 

 

 

 

 

 

 

 

 

 

 

 

 

 

 

 

 

 

 

 

 

 

 

 

 

 

 

 

 

 

 

 

 

 

 

 

 

 

 

 

 

 

 

 

 

 

 

 

 

 

 

 

 

 

 

 

 

 

 

 

 

 

 

 

 

 

 

 

 

 

 

 

 

 

 

 

 

 

 

 

 

 

 

 

 

 

 

 

 

 

 

 

 

 

 

 

 

 

 

 

 

 

 

 

 

 

 

 

 

 

 

 

 

 

 

 

 

 

 

 

 

 

 

 

 

 

 

 

 

 

 

 

 

 

 

 

 

 

 

 

 

 

 

 

 

 

 

 

 

 

 

 

 

 

 

 

 

 

 

 

 

 

 

 

 

 

 

 

 

 

 

 

 

 

 

 

 

 

 

 

 

 

 

 

 

 

 

 

 

 

 

 

 

 

 

 

 

 

 

 

 

 

 

 

 

 

 

 

 

 

 

 

 

 

 

 

 

 

 

 

 

 

 

 

 

 

 

 

 

 

 

 

 

 

 

 

 

 

 

 

 

 

 

 

 

 

 

 

 

 

 

 

 

 

 

 

 

 

 

 

 

 

 

 

 

 

 

 

 

 

 

 

 

 

 

 

 

 

 

 

 

 

 

 

 

 

 

 

 

 

 

 

 

 

 

 

 

 

 

 

 

 

 

 

 

 

 

 

 

 

 

 

 

 

 

 

 

 

 

 

 

 

 

 

 

 

 

 

 

 

 

 

 

 

 

 

 

 

 

 

 

 

 

 

 

 

 

 

 

 

 

 

 

 

 

 

 

 

 

 

 

 

 

 

 

 

 

 

 

 

 

 

 

 

 

 

 

 

 

 

 

 

 

 

 

 

 

 

 

 

 

 

 

 

 

 

 

 

 

 

 

 

 

 

 

 

 

 

 

 

 

 

 

 

 

 

 

 

 

 

 

 

 

 

 

 

 

 

 

 

 

 

 

 

 

 

 

 

 

 

 

 

 

 

 

 

 

 

 

 

 

 

 

 

 

 

 

 

 

 

 

 

 

 

 

 

 

 

 

 

 

 

 

 

 

 

 

 

 

 

 

 

 

 

 

 

 

 

 

 

 

 

 

 

 

 

 

 

 

 

 

 

 

 

 

 

 

 

 

 

 

 

 

 

 

 

 

 

 

 

 

 

 

 

 

 

 

 

 

 

 

 

 

 

 

 

 

 

 

 

 

 

 

 

 

 

 

 

 

 

 

 

 

 

 

 

 

 

 

 

 

 

 

 

 

 

 

 

 

 

 

 

 

 

 

 

 

 

 

 

 

 

 

 

 

 

 

 

 

 

 

 

 

 

 

 

 

 

 

 

 

 

 

 

 

 

 

 

 

 

 

 

 

 

 

 

 

 

 

 

 

 

 

 

 

 

 

 

 

 

 

 

 

 

 

 

 

 

 

 

 

 

 

 

 

 

 

 

 

 

 

 

 

 

 

 

 

 

 

 

 

 

 

 

 

 

 

 

 

 

 

 

 

 

 

 

 

 

 

 

 

 

 

 

 

 

 

 

 

 

 

 

 

 

 

 

 

 

 

 

 

 

 

 

 

 

 

 

 

 

 

 

 

 

 

 

 

 

 

 

 

 

 

 

 

 

 

 

 

 

 

 

 

 

 

 

 

 

 

 

 

 

 

 

 

 

 

 

 

 

 

 

 

 

 

 

 

 

 

 

 

 

 

 

 

 

 

 

 

 

 

 

 

 

 

 

 

 

 

 

 

 

 

 

 

 

 

 

 

 

 

 

 

 

 

 

 

 

 

 

 

 

 

 

 

 

 

 

 

 

 

 

 

 

 

 

 

 

 

 

 

 

 

 

 

 

 

 

 

 

 

 

 

 

 

 

 

 

 

 

 

 

 

 

 

 

 

 

 

 

 

 

 

 

 

 

 

 

 

 

 

 

 

 

 

 

 

 

 

 

 

 

 

 

 

 

 

 

 

 

 

 

 

 

 

 

 

 

 

 

 

 

 

 

 

 

 

 

 

 

 

 

 

 

 

 

 

 

 

 

 

 

 

 

 

 

 

 

 

 

 

 

 

 

 

 

 

 

 

 

 

 

 

 

 

 

 

 

 

 

 

 

 

 

 

 

 

 

 

 

 

 

 

 

 

 

 

 

 

 

 

 

 

 

 

 

 

 

 

 

 

 

 

 

 

 

 

 

 

 

 

 

 

 

 

 

 

 

 

 

 

 

 

 

 

 

 

 

 

 

 

 

 

 

 

 

 

 

 

 

 

 

 

 

 

 

 

 

 

 

 

 

 

 

 

 

 

 

 

 

 

 

 

 

 

 

 

 

 

 

 

 

 

 

 

 

 

 

 

 

 

 

 

 

 

 

 

 

 

 

 

 

 

 

 

 

 

 

 

 

 

 

 

 

 

 

 

 

 

 

 

 

 

 

 

 

 

 

 

 

 

 

 

 

 

 

 

 

 

 

 

 

 

 

 

 

 

 

 

 

 

 

 

 

 

 

 

 

 

 

 

 

 

 

 

 

 

 

 

 

 

 

 

 

 

 

 

 

 

 

 

 

 

 

 

 

 

 

 

 

 

 

 

 

 

 

 

 

 

 

 

 

 

 

 

 

 

 

 

 

 

 

 

 

 

 

 

 

 

 

 

 

 

 

 

 

 

 

 

 

 

 

 

 

 

 

 

 

 

 

 

 

 

 

 

 

 

 

 

 

 

 

 

 

 

 

 

 

 

 

 

 

 

 

 

 

 

 

 

 

 

 

 

 

 

 

 

 

 

 

 

 

 

 

 

 

 

 

 

 

 

 

 

 

 

 

 

 

 

 

 

 

 

 

 

 

 

 

 

 

 

 

 

 

 

 

 

 

 

 

 

 

 

 

 

 

 

 

 

 

 

 

 

 

 

 

 

 

 

 

 

 

 

 

 

 

 

 

 

 

 

 

 

 

 

 

 

 

 

 

 

 

 

 

 

 

 

 

 

 

 

 

 

 

 

 

 

 

 

 

 

 

 

 

 

 

 

 

 

 

 

 

 

 

 

 

 

 

 

 

 

 

 

 

 

 

 

 

 

 

 

 

 

 

 

 

 

 

 

 

 

 

 

 

 

 

 

 

 

 

 

 

 

 

 

 

 

 

 

 

 

 

 

 

 

 

 

 

 

 

 

 

 

 

 

 

 

 

 

 

 

 

 

 

 

 

 

 

 

 

 

 

 

 

 

 

 

 

 

 

 

 

 

 

 

 

 

Abb. 2-21: Einspeisekonzept

 

 

 

 

 

 

 

 

 

 

 

 

 

 

 

 

 

 

 

 

 

 

 

g01xx11d

Hinweis

Nur wenn der Schutzleiter auf dem unteren Leistungskontakt benötigt wird oder eine Absicherung gewünscht ist muss eine weitere Potentialeinspeiseklemme 750-601/602/610 hinter der Filterklemme 750-626 eingesetzt werden.

WAGO-I/O-SYSTEM 750

CANopen

Das WAGO-I/O-SYSTEM 750 33

Versorgung

2.7.5 Versorgungsbeispiel

Beachten

Die Systemversorgung und die Feldversorgung sollte getrennt erfolgen, um bei aktorseitigen Kurzschlüssen den Busbetrieb zu gewährleisten.

L1

L2

L3

N

PE

 

 

 

 

 

 

 

 

a)

 

b) 1) c)

1) d)

 

 

 

 

 

 

 

 

 

 

 

 

 

 

 

 

 

 

 

 

 

 

 

 

 

 

 

 

 

 

 

 

 

 

 

 

 

 

 

 

 

 

 

 

 

 

 

 

 

 

 

 

 

 

 

 

 

 

 

 

 

 

 

 

 

 

 

 

 

 

 

 

 

 

 

 

 

 

 

 

 

 

 

 

 

 

 

 

 

 

 

 

 

 

 

 

 

 

 

 

 

 

 

 

 

 

 

 

 

 

 

 

 

 

 

 

 

 

 

 

 

 

 

 

 

 

 

 

 

 

 

 

 

 

 

 

 

 

 

 

 

 

 

 

 

 

 

 

 

 

 

 

 

 

 

 

 

 

 

 

 

 

 

 

 

 

 

 

 

 

 

 

 

 

 

 

 

 

 

 

 

 

 

 

 

 

 

 

 

 

 

 

 

 

 

 

 

 

 

 

 

 

 

 

 

 

 

 

 

 

 

 

 

 

 

 

 

 

 

 

 

 

 

 

 

750-400

750-410

750-401

750-613

750-616

750-612

750-512

750-512

750-513

750-616

750-610

750-552

750-630

750-600

2)

2)

Schirmung

Erdungssammelleiter

Versorgung

- System

230V

24V

10 A

Versorgung

- Feld

230V

24V

Versorgung

1)

Distanzklemme

- Feld

 

 

empfohlen

 

2)

Ringspeisung

 

10 A

empfohlen

 

 

a) Potentialeinspeisung am Koppler / Controller über externe Einspeiseklemme

b) Potentialeinspeisung mit Busnetzteil

c) Potentialeinspeisung passiv

d) Potentialeinspeisung mit Sicherungshalter/ Diagnose

Abb. 2-22: Versorgungsbeispiel

g0xxx04d

WAGO-I/O-SYSTEM 750

CANopen

34 • Das WAGO-I/O-SYSTEM 750

Versorgung

2.7.6 Netzgeräte

Das WAGO-I/O-SYSTEM 750 benötigt zum Betrieb eine 24 V-Gleich- spannung (Systemversorgung) mit einer maximalen Abweichung von -15% bzw. +20 %.

Empfehlung

Eine stabile Netzversorgung kann nicht immer und überall vorausgesetzt werden. Daher sollten geregelte Netzteile verwendet werden, um die Qualität der Versorgungsspannung zu gewährleisten.

Für kurze Spannungseinbrüche ist ein Puffer (200 µF pro 1 A Laststrom) einzuplanen. Das I/O-System puffert für ca. 1 ms.

Je Einspeisestelle für die Feldversorgung ist der Strombedarf individuell zu ermitteln. Dabei sind alle Lasten durch Feldgeräte und Busklemmen zu berücksichtigen. Die Feldversorgung hat ebenfalls Einfluss auf die Busklemmen, da die Einund Ausgangstreiber einiger Busklemmen die Spannung der Feldversorgung benötigt.

Beachten

Die Systemversorgung und die Feldversorgung getrennt einspeisen, um bei aktorseitigen Kurzschlüssen den Busbetrieb zu gewährleisten.

WAGO Netzgeräte

Beschreibung

Artikelnummer

 

787-903

Primär getaktet, DC 24 V, 5 A

 

Eingangsspannungsbereich AC 85-264 V

 

PFC (power factor correction)

 

 

787-904

Primär getaktet, DC 24 V, 10 A

 

Eingangsspannungsbereich AC 85-264 V

 

PFC (power factor correction)

 

 

787-912

Primär getaktet, DC 24 V, 2 A

 

Eingangsspannungsbereich AC 85-264 V

 

 

 

Schienenmontierbare Netzgeräte auf Universal Montagesockel

288-809

AC 115 V / DC 24 V; 0,5 A

288-810

AC 230 V / DC 24 V; 0,5 A

288-812

AC 230 V / DC 24 V; 2 A

288-813

AC 115 V / DC 24 V; 2 A

 

 

WAGO-I/O-SYSTEM 750

CANopen

Das WAGO-I/O-SYSTEM 750 35

Erdung

2.8 Erdung

2.8.1 Erdung der Tragschiene

2.8.1.1 Rahmenaufbau

Beim Rahmenaufbau ist die Tragschiene mit dem elektrisch leitenden Schrankrahmen bzw. Gehäuse verschraubt. Der Rahmen bzw. das Gehäuse muss geerdet sein. Über die Verschraubung wird auch die elektrische Verbindung hergestellt. Somit ist die Tragschiene geerdet.

Beachten

Es ist auf einwandfreie elektrische Verbindung zwischen der Tragschiene und dem Rahmen, bzw. Gehäuse zu achten, um eine ausreichende Erdung sicher zu stellen.

2.8.1.2 Isolierter Aufbau

Ein isolierter Aufbau liegt dann vor, wenn es konstruktiv keine direkte leitende Verbindung zwischen Schrankrahmen oder Maschinenteilen und der Tragschiene gibt. Hier muss über einen elektrischen Leiter die Erdung aufgebaut werden.

Der angeschlossene Erdungsleiter sollte mindestens einen Querschnitt von 4 mm2 aufweisen.

Empfehlung

Der optimale isolierte Aufbau ist eine metallische Montageplatte mit Erdungsanschluss, die elektrisch leitend mit der Tragschiene verbunden ist.

Die separate Erdung der Tragschiene kann einfach mit Hilfe der WAGO

Schutzleiterklemmen aufgebaut werden.

Artikelnummer

Beschreibung

283-609

1-Leiter-Schutzleiterklemme kontaktiert den Schutzleiter direkt auf die

 

Tragschiene; Anschlussquerschnitt: 0,2 -16 mm2

 

Hinweis: Abschlussplatte (283-320) mitbestellen

 

 

WAGO-I/O-SYSTEM 750

CANopen