Материал: История архитектуры ХХ века

Внимание! Если размещение файла нарушает Ваши авторские права, то обязательно сообщите нам

Крыша малоуклонная водоотвод внутренний.

В домах есть лифт и мусоропровод. Квартиры - 1,2,3 комнатные.

Производитель - местные стройматериалы

Разработчик: Гипрогор, 1963 г.

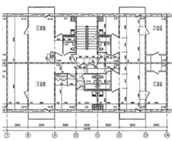
Рисунок 6.11 - Дома серии 1-447С-26

Рисунок 6.12 - Планировка квартир в секции для серии 1-447С-26

Серии 1-447С-47 и С48. Тип дома - кирпичный. Годы строительства - 1960е-1980е гг. Этажность - 9. Высота помещений 2,64 м. Несущие стены продольные толщиной 380мм. Наружные стены кирпич силикатный и/или глиняный обыкновенный.510 (640)мм. Наружная верста - как правило, отделочный кирпич. Перекрытия панели круглопустотные, преднапряженные 220 мм. Как правило, снабжены всеми видами коммуникаций. Крыша плоская, водоотвод внутренний. Лифт, мусоропровод. Квартиры - 1,2,3,4 комнатные.

Отличия модификаций - выпирающая у 47й и утопленная у 48й торцевая лоджия. Производитель - местные стройматериалы. Города распространения - СССР (общесоюзная серия), Подмосковье, Санкт-Петербург.

Рисунок 6.13 - Дома серии 1-447С-26

Рисунок 6.14 - Дом серии 1-447С-27

Серия 1-464. Панельный 5-этажный многосекционный жилой дом. Дома строились в Белоруссии, Украине, Литвии, Латве. Количество этажей - 5, реже - 3, 4 . Первый этаж жилой Высота потолков - 2,50 м. Лифта нет. Балконы есть во всех квартирах. Количество квартир на этаже - 4. Годы строительства - 1958-1963.

Общее количество построенных домов - более 3000. Больше всего домов серии 1-464 было построено в городах: Иваново, Казань, Челябинск, Новосибирск и мн. др. (в т. ч. в нескольких городах Украины и Белоруссии).

В Москве строились дома московской версии серии 1-464 (назв. 1605-АМ/5) с квартирами увеличенных площадей. В городах Подмосковья дома серии 1-464 построены в городах Ногинск, Раменское, Люберцы, Подольск и мн. др.

В 1961 г. был разработан модифицированный вариант серии 1-464 - 1-464А, получивший еще большее распространение.

Санузлы совмещенные во всех квартирах. Лестницы без общего противопожарного балкона. Тип кухонной плиты: газовая. Вентиляция: естественная вытяжная, блоки в сантехкабинах (санузлах). Наружные стены: 1- и 3-слойные железобетонные толщиной от 21 до 35 см в зависимости от климатического района строительства. Перекрытия: сплошные железобетонные плиты толщиной 10 см. Перегородки - железобетонные, сплошного сечения, толщиной 12 см. Несущие стены все поперечные (в т.ч. наружные).

Тип секций (подъездов) рядные (рядовые, набор квартир на этаже: 3-2-1-3, 2-2-3-2), торцевые (набор квартир на этаже: 1-2-2-3). Все квартиры, кроме угловых, выходят на одну сторону. Количество шагов в секции (подъезде) 7 (в рядных секциях), 6 (в торцевых). Ширина шага (расстояние между двумя соседними несущими стенами, ширина пролета перекрытия): 260 см, 320 см. Ширина корпуса: 11.3 м. Облицовки, штукатурки наружных стен нет. Кровля плоская, совмещенная невентилируемая (чердак отсутствует).

-этажные панельные дома типовой серии 1-464 внешне узнаваемы по окнам на межэтажной площадке в подъездах, идентичным 2-створчатым окнам в квартирах. Достоинством можно считать наличие балконов, кладовок. К недостаткам оносятся: низкая теплоизоляция внешних стен, совмещенные санузлы даже в 3-комнатных квартирах, невозможность капитальной перепланировки.

Производители - около 200 домостроительных комбинатов (ДСК) по всему СССР.

Проектировщик - Проектный институт "Гипростройиндустрия".

Себестоимость строительства 1 кв. м жилой площади для каркасно-панельных домов серии 1-464 в ценах 1961 г. была второй по дешевизне за всю историю индустриального домостроения в СССР.

Площади 1-комнатных квартир: общая:

-31 кв. м., жилая: 18 кв. м., кухня: от 5 кв. м.

Площади 2-комнатных квартир: общая:

-46 кв. м., жилая: 17-35 кв. м., кухня: 5.6-6.3 кв. м.

Площади 3-комнатных квартир: общая:

-58 кв. м., жилая: 39-45 кв. м., кухня: 5.6-6.3 кв. м.

Рисунок 6.15 - Дом серии 1-464

Рисунок 6.16 - Планировка секции в серии 1-464

6. Дома перестройки 1970-х годов

В 1970 году был принят Единый каталог строительных деталей, на основе которого в дальнейшем разрабатывались типовые проекты. В него входили жилые дома таких серий как: П3, П22, П30, П31, П42, П43, П44, П46 ("П" - "панельный").

Как и "хрущевки", "брежневки" представляют собой выполненные в стиле конструктивизма постройки ("коробки"). Пятиэтажные брежневки лишены лифта. Отличаются, как правило, следующим: наличием лифта и мусоропровода;

большей площадью и этажностью; разделённым санузлом; относительным разнообразием форм (например, одновременно высокие и широкие здания, закруглённые); наличием шкафа-чулана на кухне под окном, перешедшего к брежневке от хрущевок. В народе именуется "хрущёвским холодильником". Также при Брежневе возводились дома гостиничного типа. Брежневки существуют в нескольких вариантах планировки, этажности и площади квартир. Существуют:

однокомнатные (22-31 кв.м)

двухкомнатные (42-45 кв.м)

трёхкомнатные (48-56 кв.м)

четырёхкомнатные (58-70 кв.м)

Серия М-111-90 - серия крупнопанельных 9,12,16-этажных домов для Беларуси (1976-1994 г.г.), производящаяся на ДСК-1, ДСК-2 города Минска с 1976 года. Данная серия - одна из самых массовых в Минске. Дома этой серии есть также в Жодино, Борисове и других городах Беларуси. Это серия крупнопанельных многосекционных жилых домов индустриального домостроения. Отличительная особенность большинства проектов: балконы и лоджии расположены под небольшим углом относительно плоскости фасада. Разработка проектов жилых домов серии 90 была начата Центральным научно-исследовательским и проектным институтом жилых и общественных зданий (ЦНИИЭП жилища) в 1960-х гг. Промышленное производство домов серии 90 было освоено в 1971 г.

В составе серии запроектировано более 180 типовых проектов домов и блок-секций. Среди них есть и блок-секции с квартирами для малосемейных (типовой проект 90-041), и общежития для рабочих и служащих (типовые проекты 90-042 и 90-043) и даже дома усадебного типа на одну (например, типовой проект 181-90-78/1.2) или две квартиры.

В номенклатуру типовых проектов включены блок-секции различной конфигурации: рядовые, торцевые, поворотные и угловые с внутренними или внешними углами поворота на 135° и 90°. Положение блок-секций в застройке многовариантно и может обеспечиваться наличием различных элементов блокировки секций (рядовых, торцевых, с глухими торцевыми окончаниями, с деформационными швами и др.), а также вариантностью планировочного решения первых этажей (с колясочной, помещением электрощитовой, сквозным проездом или проходом и т.п.

Кроме традиционных типов отделки наружных стеновых панелей и экранов ограждения летних помещений, были предложены различные композиционные решения фасадных плоскостей, создающие композиции целых улиц или отдельных дворов, отвечающие конкретным градостроительным ситуациям.

Планировочные решения квартир в проектах серии обеспечиваются продольными и поперечными конструкциями зданий с "малым" шагом поперечных несущих стен в 300 и 360 см и пролётами в 570 и 660 см. Наружные стены - железобетонные панели толщиной 300, 350, 400 мм (в зависимости от региона строительства). Внутренние стены - железобетонные панели толщиной 120, 160 мм; электропанели - 180 мм. Перегородки - железобетонные панели толщиной 60 мм. Перекрытия - сплошные железобетонные плиты, с опиранием по контуру, толщиной 120 и 160 мм.

Высота помещений в "чистоте" - 264 см. В блок-секциях имеется один пассажирский лифт и мусоропровод с приёмными клапанами на межэтажных лестничных площадках через этаж.

Рисунок 7.1 - Незначительно модернизированный дом серии 111-90

Рисунок 7.2 - Планировка квартир серии 111-90

С начала 1980-х годов эти дома стали возводить практически во всех новых микрорайонах Минска: например, в Юго-Западе, Малиновке, Уручье. Дома данной серии выпускаются и по сей день. С 1983 появилась 16-ти этажная модификация, а с 1997 - 19-ти. В 1998 году появилась модификация 12-ти этажной версии, именуемая БС40-БС41.

Серия 111-108 - региональная серия многосекционных крупнопанельных жилых домов, разработанная Ленинградским зональным научно-исследовательским институтом экспериментального проектирования (ныне ОАО "СПбЗНИиПИ") в 1970-е годы, и применяемая по настоящее время в строительстве 5 и 9-этажных домов.

Дома серии 111-108 в настоящее время формируют облик Витебска и городов Витебской области в Белоруссии, где они возводятся заводом крупнопанельного домостроения РУП "Витебский ДСК" с 1975 года.[1][2] Помимо Витебска, дома серии 111-108 встречаются также в Великом Новгороде, Луге, Тосно, Череповце, Смоленске, Вологде и в городах Башкирии - Уфе, Салавате, Ишимбае и Белорецке.

Серия 111-108 для 5 и 9-этажных домов и блок-секций разработана в двух конструктивных вариантах: основном - с продольными несущими стенами (пролетами 6,3 и 5,1 м) и редко расположенными поперечными несущими стенами - диафрагмами жесткости (шаги 6,3 и 3,0 м), и дополнительном - с поперечными несущими стенами (шаги 6,6 и 3,6 м). В обоих вариантах перекрытия состоят из сплошных плоских предварительно напряженных плит или из многопустотного настила.

Рисунок 7.3 - 9-этажный панельный дом серии 111-108, Уфа, Башкирия

Серия М-335 распространена только в республике Беларусь и является одной из модификаций распространенной по всей России серии пятиэтажек - 1-335.

Тип дома - панельный

Этажность - 9

Квартиры - 1,2,3,4 комнатные

Производитель - ДСК-2 г. Минска

Годы строительства - 1966- 1970е гг.

Города распространения - Минск

Рисунок 7.4 - Дом серии М-335 в г. Минске

Рисунок 7.5 - Планировка секции в серии М-335

М-464 - это серия крупнопанельных 9-этажных домов, строявшихся с 1976 по 1983 годы. Преимущественно, дома строились в Минске и Минской области.

Серия была спроектированна в начале 1970-х годов и производилась на ДСК-1 города Минска с 1976 года, как и серия М111-90. Данная серия - самая массовая типовая серия столицы. Дома этой серии, помимо Минска, можно встретить во всей Минской области.

Дома серии М-464 формируют облик таких жилых районов, как Серебрянка, Восток, Зеленый Луг, Юго-Запад. Более поздняя модификация М-464БК, формирует образ Уручья, Малиновки, Шабанов, Кунцевщины. С 2002 года новые микрорайоны столицы начали застраиваться домами серии М-464-У - коренной модернизацией М-464БК.

Отличительной особенностью всех домов 464 серии (кроме М-464-М) является интеграция канала мусоропровода в панели лестничного марша, из-за чего они имеют характерную форму. В серии М-464БК номер каждого подъезда выложен керамической плиткой на экране, прикрывающем вход в приемную камеру мусоропровода. В отличие от М-464 и М-464БК, этажность которых составляет 9 этажей, М-464-М и М-464-У имеют этажность в 10 этажей.

Рисунок 7.6 - Дом серии М-464 в г. Минске

. Дома перестройки 1980-х годов

Серия 84. В состав серии включены проекты крупнопанельных 2-5 и 9-этажных жилых домов и блок-секций с продольными и поперечными несущими стенами (шаги 240, 360, 480 и 600 см, пролеты 480 и 600 см), а также общежития для рабочих и служащих, дома усадебного типа на одну или две квартиры. Разработаны индивидуальные проекты 12-этажных жилых домов. Серия разработана в Мастерской №7 ЦНИИЭП жилища на основе методических принципов серии 60 в 1971 г.

В настоящее время строится в модернизированных вариантах с конструктивными улучшениями и переработанными планировочными решениями блок-секций. Также институтом Оргстройпроект на основе серии 84 была разработана серия 12-, 14- и 16-этажных домов МЭС-84 для строительства предприятиями Мосэнергостроя.

Серия 85. Серия кирпичных жилых домов и блок-секций, разработанная ЦНИИЭП жилища. Тип дома - кирпичный. Этажность - 6, 9, 12. Высота жилых помещений - 248 см. Квартиры - 1, 2, 3, 4 комнатные (в разных модификациях может не быть одно- или четырехкомнатных квартир). Производитель - местные стройматериалы. Годы строительства - 1970е-2000е гг. Города распространения - СССР (общесоюзная серия), встречаются в Москве и Подмосковье. Конструктивная схема - с поперечными кирпичными несущими стенами с шагами 6,3 и 3,0 метра, шаги поперечных стен - 4,8, 5,7, 6,0 и 6,9 метра.

Серия 86 (114-86). Серия пяти- и девятиэтажных жилых домов и блок-секций разработана ЦНИИЭП жилища. Конструктивная схема - с продольными кирпичными несущими стенами с пролетами 6,3 и 5,1 метра и шагами поперечных стен 6,3 и 7,0 метра. Тип дома - кирпичный. Этажность - 2-5 или 9. Высота жилых помещений - 250 см. Квартиры - 1, 2, 3, 4 комнатные. Производитель - местные стройматериалы. Годы строительства - 1980е гг. - настоящее время. Города распространения - СССР (общесоюзная серия). Разработчик: ЦНИИЭП Жилища

Серия Э-93. Города распространения - СССР (общесоюзная серия). В Москве не выявлены, дома можно встретить в подмосковных городах: Подольск, Дубна, Железнодорожный, Электросталь, Балашиха, Реутов, Лыткарино. Разработчик: ВПТИтрансстрой. Тип дома - кирпичный. Этажность - 9-12, 14, 5. Высота жилых помещений - 260 см. Квартиры - 1, 2, 3, 4 комнатные. Производитель - местные стройматериалы. Годы строительства - 1970е-2000е гг.

Рисунок 8.1 -Типовой дом серии Э-93 Рисунок 8.2 - Планировки квартир для серии Э-93

. Дома с квартирами гостиничного типа - "гостинки"

"Гости́нка" (от "комната гостиничного типа") - тип жилого помещения, представляющего собой либо малометражную однокомнатную квартиру, либо комнату с кухонной нишей и санузлом. Также "гостинкой" называют здание, состоящее из таких квартир или комнат. Это многоэтажные (от 3 до 16 этажей) панельные или кирпичные дома. На этаже сосредоточено значительное число квартир - от 10 до 40, в большинстве своем, исключительно 1- комнатных.

Первые гостинки начали состоить из одной секции, впоследствии ввели многосекционные (до восьми секций), обычно 5,9-этажные. Подобные дома строились для работников промышленных предприятий, крупных производств как временное жилье в цепочке "общежитие - гостинка - полнометражная квартира". Массовое строительство домов с квартирами и комнатами гостиничного типа началось в СССР в 1960-70-е гг.

Существует два типа гостинок - квартирные и комнатные. Квартира гостиничного типа включает в себя жилую комнату (12-18 кв. м), небольшую кухню (4-6 кв. м), прихожую и санузел. Такие дома можно поделить на два типа, зависимо от площади жилой комнаты. Нередко в таких квартирах встречается и балкон (лоджия) на всю квартиру. Второй тип гостинок - дома с комнатами гостиничного типа. Эти дома состоят не из квартир, а из комнат с кухонной нишей в прихожей и совмещенным санузлом с сидячей ванной.

С середины 50гг строились такие дома от 5 до 9 этажей. По началу, стены выполнялись из кирпича, затем панельные. Перекрытия - железобетонные. На этаже располагалось от 8 до 12 квартир. Потолки 2,5 м.-2,6 м. В домах до 5 этажей лифта нет. 9-ти- этажные дома оснащались мусоропроводом. Технический этаж маленький или вообще отсутствует. Крыша - плоская, совмещенная. Дома с такими планировками заполняют все массивы города.

Длинные коридоры на этажах. Планировки различные. Чаще санузел - совмещен, ванная сидячая, душ. Площади квартир различны в основном невелики. Так что аренда квартир совсем недорогая, соответственно и продажа. В свое время это жилье строилось рекордными темпами в огромных количествах и преследовало только одну основную цель - обеспечить как можно быстрее, как можно большее количество людей крышей над головой, что отрицательно сказалось на качестве жилья.