Серия СМ-3, СМ-6. Типовые серии кирпичных домов СМ-3, СМ-6 (Секции Моспроекта-3, Секции Моспроекта-6) распространены во многих районах Москвы, застройка которых велась во второй половине 1950-х - начале 1960-х годов. Годы строительства 1957-1963 гг. В квартирах комнаты в большинстве случаев изолированные, но есть варианты со смежными комнатами.
Дома типовых серий СМ-3, СМ-6 узнаваемы по кирпичным необлицованным внешним стенам песочного цвета, которые встречаются и в других 8-9-10-этажных домах 1950-х-1960-х годов. В квартирах некоторых корпусов есть эркеры. Санузлы раздельные, ванные комнаты стандартные, длиной 170 см. Лестницы - без общего противопожарного балкона. Мусоропровод с загрузочным клапаном на межэтажной площадке. Вентиляция естественная вытяжная. Наружные стены - кирпич толщиной 50 см., внутренние стены - кирпич толщиной 40-50 см. Перекрытия - железобетонные круглопустотные плиты толщиной 22 см. Несущие стены - наружные, внутренняя центральная продольная, поперечные межквартирные и стены лестничных клеток. Облицовки и штукатурки нет. Цвета стен темно-песочный, реже - песочный с красным. Тип кровли - четырехскатная, покрытие - кровельное железо. В поздних 8-этажных домах встречается плоская крыша.
Достоинства: хорошая тепло- и шумоизоляция стен; относительно высокие потолки; удачные планировки. Недостатки: смежные комнаты в некоторых квартирах, отсутствие грузового лифта.
Типовые серии СМ-3, СМ-6 включают в себя большое число модификаций. Внутренние и внешние стены обладают отличными звуко- и теплоизоляционными свойствами, большинство комнат изолированные. Высота потолков: 2,7-2,8 м. Этажность: 8, 9 или 10 этажей, первый - часто нежилой. 1 пассажирский лифт. Балконы во всех квартирах, начиная с 3 или 4го этажа. Количество квартир на этаже - 4, реже 3.
Причина прекращения строительства: внедрение в
производство более дешевых, "хрущевских" серий домов.
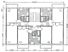
Рисунок 5.7 - Дом серии См-3 в Москве

Рис 5.9 - Варианты планировок квартир в СМ-6
. Дома перестройки 1960-х годов
Дома периода строительства 60х-70х годов традиционно принято называть домами "хрущевской" постройки ("хрущевки", "хрущо́бы") - кирпичные, крупнопанельные дома разной этажности (преимущественно от 2х до 5ти), строившиеся по всей территории Советского Союза с 1956 по 1985 год в период правления Н. С. Хрущева.
В Москве были наиболее распространены серии 1-510, 1-515/5, К-7. В Ленинграде это были серии 1-335, 11-32 и др. На сегодняшний день, серии K-7, 1605/5, 11-32, 11-35, 1-335 и некоторые другие, менее известные, пришли в состояние отказа, устарели морально и физически. На данный момент, по крайней мере в Москве, их уже снесли. "Хрущёвки" сносимых серий предназначались для временного решения жилищной проблемы и были рассчитаны на 25 лет, но часть из них до сих пор используется по назначению. "Хрущёвки" несносимых серий имели расчётный ресурс 50 лет, однако дальнейшие исследования показали, что срок их эксплуатации может быть продлён и до 150 лет при условии своевременного проведения текущих и капитальных ремонтов. В Москве и Санкт-Петербурге действуют программы сноса и реконструкции кварталов "хрущёвок" и замены их современным жильём. В Минске некоторые серии "хрущевок" подлежат капитальному ремонту или модернизации. Таким домам утепляют наружные стены, выполняют профилактику стыков стеновых панелей, ремонтируют фундамент, гидроизоляцию, кровлю и др.
"Хрущевки" наиболее распространенных серий имеют по 5 этажей, от 3х до 5ти подъездов. Железобетонные перекрытия с круглыми пустотами 22 см. По три или четыре 1-3х комнатные квартиры на этаже в секции. Потолки 2,5 м.-2,55 м, пол - доски, паркет, линолеум, иногда встречаются газовые колонки, обычно газовые плиты. Обычно отсутствуют лифты и мусоропроводы, отсутствует технический этаж. Санузлы смежные даже в 2-х комнатных квартирах. Маленькие площади квартир. Фасады максимально упрощенные, функциональный стиль. Зачастую отсутствует декор и окраска. Панельные дома - серый бетон, иногда облицовка панелей мелким щебнем, плиткой. Первые "хрущёвки" делались с черепичными или шиферными скатными вальмовыми кровлями. Однако, очень скоро, в связи с постановлением о борьбе с архитектурными излишествами, стали строить с плоскими совмещенными, более дешёвыми в исполнении, битумными крышами с низким чердачным пространством или вообще без него. Узкие щели воздушного пространства засыпались каким-нибудь сыпучим изоляционным материалом и имели вентиляционные отверстия наружу. Эти отверстия становились местом гнездования диких голубей, воробьёв и т.п.
Довольно часто под окном кухни кирпичной "хрущёвки", которая имеет минимальные размеры, имеется специфический встроенный шкаф типа чулана для хранения продуктов. Это отверстие получило название "хрущевский холодильник". Толщина наружной стены в шкафу - обычно полкирпича, в некоторых вариантах построек в этой стене есть наружное постоянно открытое отверстие, оно необходимо для обеспечения нормального функционирования газовой плиты, т.е. является приточной вентиляцией. В холодный период года шкаф заменял холодильник. Однако подобный холодильник встречается и в более ранней архитектуре "сталинок". Название "хрущёвский холодильник" часто переносят на сами "хрущёвки" (особенно панельные), именуя их так из-за низкой температуры в квартирах зимой, обусловленной плохой теплоизоляцией.
Эти дома строились очень быстро и в огромных количествах. Задача была предельно проста - необходимо было обеспечить как можно быстрее, как можно большее количество отдельных семей жильем. И эта непростая цель была достигнута за счет снижения качества жилья.
Первые каркасно-панельные "хрущевские дома" были построены в 1948 году в Москве по проектам Госстройпроекта и Мосгорпроекта, при участии Академии архитектуры СССР. Автором первых проектов был В.П. Лагутенко. Первые 4х- этажки строились со стальным каркасом, но из-за большого расхода металла, вскоре перешли на сборный железобетон. С 1950 года, кроме каркасно-панельных, началось массовое сооружение бескаркасных панельных домов. Опыт был признан удачным, и Постановлением Совета Министров СССР от 9 мая 1950 года №1911 "О снижении стоимости строительства" было инициировано проектирование первых высокомеханизированных заводов ЖБИ. Масштабный переход на новые, прогрессивные решения в области строительства начался с Постановления ЦК КПСС и Совета Министров СССР от 19 августа 1954 года "О развитии производства сборных железобетонных конструкций и деталей для строительства", которым предусматривалась постройка 402 заводов сборных железобетонных конструкций и организация изготовления деталей на 200 площадках полигонного типа.
июля 1957 года ЦК КПСС и Совет Министров СССР приняли постановление "О развитии жилищного строительства в СССР", положивший начало новому жилищному строительству.
К тому же, в 70х годах, согласно ВСН 32-77 (Госгражданстрой) "Инструкция по проектированию конструкций панельных жилых зданий", серии зданий были разделены по конструктивно-планировочной структуре:
с поперечными и продольными несущими стенами, на которые перекрытия опираются по контуру или трем сторонам; наружные продольные стены несущие или ненесущие (система I);
с поперечными несущими стенами, продольными диафрагмами жесткости (продольные стены лестничных клеток, отдельные участки наружных или внутренних стен) и перекрытиями, опертыми преимущественно по двум сторонам на поперечные стены (система II);
с продольными несущими стенами, поперечными диафрагмами жесткости (поперечные стены лестничных клеток, торцовые стены и др.) и перекрытиями, опертыми преимущественно по двум сторонам на продольные стены (система III).
Отсюда и маркировки серий.
К особенностям "хрущевского" этапа типового жилищного строительства следует отнести, в первую очередь, разработку большого количества типовых серий. Однако, в первую очередь в силу экономических причин, рост этажности и смена серийных поколений носили вынужденный характер - в первую очередь был актуален вопрос стоимости жилого метра. Особенно в центрах больших городов. Поэтому вспомогательные помещения квартир старались сводить к минимуму. Технические изменения касались зданий в целом, но планировки квартир не менялись. И такое положение растянулось на долгие годы - разработанные планировочные решения переходили из серии в серию практически без изменений.
Однокомнатные квартиры имеют площади 28-32/15-19/6 кв.м.
Двухкомнатные квартиры имеют площади 40-46/26-30/6 кв.м.
Трехкомнатные квартиры имеют площади
54-59/39-45/6 кв.м.
Рисунок 6.1 - Варианты планировок в домах 60х
годов
Серия 1ЛГ-502. Экспериментальный крупнопанельный жилой дом новой типовой серии 1ЛГ-502. Год создания проекта: 1963.
Архитекторы: Д.С. Гольдгор, А.В. Шприц, А.В. Аланнэ, К.И. Емельянов (авторский коллектив мастерской №5 Ленпроекта). Инженеры: И.Д. Зейман, И.П. Белоголова, З.И. Журавлева. Санкт-Петербург (Ленинград), Россия.
В 127-м квартале Невского района в Ленинграде, был сдан в эксплуатацию первый экспериментальный пятиэтажный жилой дом типовой серии 1ЛГ-502. Авторы проекта ставили задачу - экспериментально проверить в натуре новые архитектурно-планировочные и конструктивные решения, возможности использования новых строительных и отделочных материалов, а также методы монтажа дома и технологию его производства на Обуховском ДСК.
Экспериментальный дом состоял из трех секций:
рядовой 2-2-2 и торцовых 2-2-3 и 1-2-4. В рядовой секции две двухкомнатные
квартиры имели сквозное проветривание. Для трехкомнатной и четырехкомнатной
квартир отведены соответственно площади таких же размеров, что и в
двухкомнатной и трехкомнатной квартирах типовых крупнопанельных домов.
Благодаря увеличению в квартирах числа комнат создавались большие удобства для
заселения, появилась возможность выделить на той же площади общую комнату,
освобожденную от спальных мест.
Рисунок 6.1 - Архитектурно дизайнерские
особенности серии 1ЛГ-502
Рисунок 6.2 - Дом серии 1ЛГ-502.
Рисунок 6.3 - Планировка квартир в домах серии
1ЛГ-502.
Серия II-68. Проблемой всех предыдущих блочных серий, была невозможность строительства зданий этажностью выше 14 этажей. Тоже самое верно для кирпичных домов с несущими и самонесущими стенами. И если в современном монолитно-кирпичном здании применяется поэтажное опирание, то в крупноблочном строительстве применили наружные навесные панели. Именно такое решение и было применено в серии II-68.
Серия одноподъездных 16-этажных домов. Годы строительства - 1969-1999г. Особенностью данной серии являются утолщенные стены, состоящие из двух панелей, а также улучшенная шумо и теплоизоляция за счет керамзитного устройства покрытия полов. Реже встречаются здания этой серии высотой 14 этажей. Дома этой серии практически без изменений строились в течение 30 лет. Этажность: 16 этажей. Высота потолков: 2,48 м.
Тип дома - панельно-блочный. Этажность - 5-16. Квартиры - 1, 2, 3 комнатные. Производитель - Моспромстройматериалы (МПСМ). Города распространения - Москва, Подмосковье, Петрозаводск, Таганрог, Ростов-на-Дону, Тольятти. Лифты пассажирский и грузопассажирский. Мусоропровод есть. Вентиляция на кухне и в санкабинах. Перегородки гипсобетонные 80 мм. Перекрытия - многопустотные плиты толщиной 220мм пролетом 6 м.
Начиная с середины 1970-х гг внешний вид домов
изменился, поменялась отделка панелей. Также переход от лифтовых холлов на
лестницу был вынесен на балкон. Планировка квартир дома серии II-68 при этом
практически не изменилась. Помимо панельно-блочной, у II-68-й серии есть и
чисто блочные вариации разработанные для сравнительно малоэтажной застройки -
до 12 этажей их три. В отличие от базовой серии в них увеличена высота этажа.
Рисунок 6.4 - Дома серии II-68
Рисунок 6.5 - Вариант планировочного решения
серии II-68-3
Серия 1-335. Дома этой серии возводились с 1958 года по 1966 год, после чего перешли к строительству модернизированных серий 1-335А, 1-335АК, 1-335К и 1-335Д, которые производились по 1976 год включительно.
Наиболее часто встречающаяся по всему бывшему СССР серия панельных 5-этажных жилых домов. Первый дом этой серии был построен в г. Череповце. Наибольшее количество домов этой серии можно встретить в Санкт-Петербурге-Ленинграде. Серия была признана самой неудачной из всех серий жилых домов, разработанных при Хрущёве. При этом, как это ни странно, они не попали в список домов, сносимых в первую очередь. Родственница К-7 по конструктивному решению. Имеет схожие проблемы.
Внешнее отличие серии 1-335 от других серий в Москве - широкие окна (двухстворчатые окна выглядят квадратными), железная 4-х-скатная крыша и удлинённые окна почти во всю высоту панели на лестничных клетках. Торцевые стены состоят из 4-х панелей с окнами на крайних. Обычно в одном из торцов дома имеется внешняя пожарная лестница. В другой модификации, может быть плоская крыша вообще без чердака. На площадке по 4 квартиры. Квартиры 1-2-3-комнатные, высота потолков - 2,55 м. Центральная комната проходная. Санузел совмещённый. Водо-теплоснабжение централизованное.
Жилые дома полукаркасного типа серии I-335
практически повсеместно находятся нынче в предаварийном состоянии с почти
исчерпанной надежностью конструктивной схемы, поэтому, прежде всего, нуждаются
в усилении и повышении жесткости системы несущих конструкций всего здания в
целом.
Рисунок 6.6 - Дом серии 1-335
Серия 1-434. Дома серии 1-434 - это белорусская
модификация серии 1-447. Годы строительства - 1958-1960 гг. Тип дома - блочный.
Этажность - 4-5. Высота жилых помещений - 2.48 м. 4 квартиры на площадке.
Квартиры - 1,2,3 комнатные. площадь кухни: 6.2 кв.м. Санитарный узел
совмещенный. Производитель - местные стройматериалы. Города распространения -
БССР (Минск, Могилев).
Рисунок 6.7 - Дом серии 1-434 в г. Минске
Рисунок 6.8 - Планировка секции в серии 1-434
Серия 1-447. Серия домов 1-447 имеет очень большое число модификаций, которые можно встретить во многих городах бывшего СССР. Объединяющей особенностью столь разных проектов является тип дома - он кирпичный, кроме того этажность большинства проектов - 5 этажей.
Годы строительства - 1958-1970-е гг. Тип дома - кирпичный. Этажность - 3, 4, 5, 9, 12. Высота жилых помещений - 2,48 м. Несущие стены продольные толщиной 380мм. Наружные стены кирпич силикатный и/или глиняный обыкновенный - 510мм. Перекрытия панели круглопустотные, преднапряженные 220 мм. Дома как правило снабжены всеми видами коммуникаций, но довольно часто встречаются варианты с газовыми колонками. Крыша скатная, водоотвод наружный. Квартиры - 1, 2, 3, 4 комнатные. Производитель - местные стройматериалы. Недостатком этой серии можно считать часто встречаемые малоуклонные кровли с плохим водоотводом, слабые водоизоляционные свойства материалов конструкций, в частности - гидроизоляция, силикатный кирпич и т.п.
Площади квартир:
-комнатные квартиры: общая: 28-33 кв. м., жилая: 15-20 кв. м., кухня: 5-5.5 кв. м.
-комнатные квартиры: общая: 40-43.7 кв. м., жилая: 28-32.4 кв. м., кухня: 4.7-5.6 кв. м.
-комнатные квартиры: общая: кв. м., жилая: кв. м., кухня: кв. м.
Разработчик: Гипрогор, 1958 г.
Архитекторы: Дюбек Л., Белоконь А., Звездина Т., Ефимова В.
Инженеры: Розенберг Я., Дидина М., Шапиро Б., Сухова А.
Города распространения - СССР (общесоюзная
серия), включая небольшое число домов в Москве и Петербурге.
Рисунок 6.9 - Дом серии 1-447
Рисунок 6.10 - Планировка квартир в домах серии
1-447
Серия 1-447С-26. Улучшенная модификация серии 1-447. Годы строительства - 1963-1970-е гг. Тип дома - кирпичный. 9 этажей. Высота жилых помещений - 2,48 м. Несущие стены продольные и поперечные толщиной 380 мм. Наружные стены кирпич силикатный и/или глиняный обыкновенный 510 (640) мм.
Внешняя верста - облицовочный кирпич (кремлевка) или красный кирпич. Перекрытия панели круглопустотные, преднапряженные 220 мм. Как правило снабжены всеми видами коммуникаций.