Материал: Д6739 Радионова ИЕ Проектирование предприятий отрасли

Внимание! Если размещение файла нарушает Ваши авторские права, то обязательно сообщите нам

 

 

 

 

Таблица 11

Наименование

 

Обозначение

 

 

 

 

 

на плане

на разрезе

Проем

без

четвертей

в

 

стене или перегородке:

 

 

не доходящий до пола

 

 

доходящий до пола

 

 

Проем оконный без

 

 

четвертей

 

 

 

Проем оконный

 

 

с четвертями

 

 

 

Дверь (ворота) однополь-

 

 

ная в проеме

 

 

 

левая

 

 

 

 

правая

 

 

 

 

Дверь (ворота) двупольная

 

Дверь однопольная

 

 

с качающимся полотном

 

 

Дверь (ворота) откатная

 

 

однопольная

 

 

 

Дверь (ворота) подъемная

 

 

Дверь вращающаяся

 

 

Кабины душевые

 

 

Кабины

 

 

 

 

Пандус

 

 

 

 

 

 

 

61

 

 

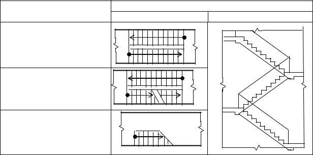
Окончание табл. 11

Наименование

Обозначение

 

на плане

на разрезе

Лестница

 

верхний марш

 

Лестница

 

нижний марш

 

Лестница

 

нижний марш

 

2.7.4. Некоторые рекомендации по размещению оборудования

Оборудование в помещениях должно устанавливаться с учетом соблюдения последовательности, предусмотренной технологической схемой.

Для удобства обслуживания, соблюдения требований пожарной безопасности и санитарных норм в процессе эксплуатации, а также обеспечения возможности строительно-монтажных работ следует принимать следующее расстояние между оборудованием, между оборудованием и стенкой величину центрального прохода в помещении.

На пивоваренных предприятиях необходимо обеспечивать расстояния, приведенные в табл. 12.

Оборудование и арматура часто обслуживаемые располагаются на высоте не более 1,8 м.

Стационарные площадки ограждаются. Высота ограждения не менее 0,9 м. Расстояние от пола площадки до низа выступающих конструкций должна быть не менее 1,8 м.

Площадки, расположенные на высоте 0,5 м от пола и более, лестницы к ним и переходные мостики ограждаются перилами высотой не менее 0,9 м, производится сплошная зашивка снизу бортом высотой не менее 0,15 м.

62

Ширина лестниц не менее 0,7 м, при переноске тяжестей – не менее 1,0 м. Шаг ступеней не более 0,25 м, ширина ступени – не менее 0,12 м. Уклон лестниц не более 45 . Для редко обслуживаемого оборудования допускается уклон 60 или стремянка.

Таблица 12

Размещение оборудования на пивоваренных предприятиях

Наименование

Расстояние от

Расстояние между

Центральный

стены до оборудо-

оборудованием,

оборудования

проход, м

вания, м

м

 

 

 

 

 

 

Варочные порядки

0,4…0,8

0,8…1,0

1,5…1,8

 

 

 

 

Бродильные танки

0,4…0,8

0,25

1,5…1,8

 

 

 

 

Лагерные танки

0,4…0,8

0,25

1,5…1,8

 

 

 

 

Цилиндрокони-

0,6…0,8

0,4…0,6

1,5

ческие танки

 

 

 

Гидроциклонный

0,8

0,6

1,8…2,0

чан

 

 

 

Сепаратор

1,0

1,0

2,0

 

 

 

 

Охладитель

0,6…0,8

0,8

1,5…2,0

пластинчатый

 

 

 

Фильтры диато-

0,6…0,8

0,8

1,5…2,0

митовые

 

 

 

Фильтры пла-

0,8

0,6

1,5…2,0

стинчатые

 

 

 

П р и м е ч а н и е: площадки, имеющие нагрузку от оборудования или высотой более 2 м, а также площадки обслуживания, имеющие длину более 6 м, выполняются в строительной части проекта.

2.7.5.Некоторые рекомендации по проектированию подсобных

иадминистративно-бытовых помещений

На пивоваренных предприятиях необходимо предусматривать производственную лабораторию площадью:

для пивзаводов мощностью до 4000 тыс. дал в год – 76 м2;

для пивзаводов мощностью до 8000 тыс. дал в год – 102 м2;

для пивзаводов мощностью свыше 8000 тыс. дал в год – 134 м2.

63

Набор оборудования, инвентаря, посуды и мебели производственных лабораторий следует предусматривать в соответствии с нормами.

Площади помещений материального склада, помещений для водобаков, уборочного инвентаря, приготовления мочки, мойки трубопроводов определяются компоновочными решениями.

При расчете бытовых помещений принимается следующий состав производственного персонала:

для основных процессов и административноуправленческого персонала: женщин 75–85 %, мужчин 25–15 %;

для подсобных служб (механических, столярных мастерских, котельных): женщин 20–30 %, мужчин 80–70 %.

В гардеробных помещениях следует предусматривать 10 % резервных мест в шкафах.

Административно-бытовые помещения, как правило, следует размещать в пристройках к производственному зданию. Вход в ад- министративно-бытовые помещения размещают возможно ближе к контрольному пункту. Высота помещений 3,3 м. Уровень первого

этажа +0,15 м к уровню тротуара.

Вестибюль проектируется из расчета 0,15 м2 на одного человека наибольшей смены, но не менее 18 м2, с глубиной тамбура 1,8–2 м.

Гардероб для уличной одежды помещают в вестибюле из расчета 0,1 м2 на одно место вешалки, на 1 м длины вешалки предусматривают 5 крючков. Ширина прохода 1 м.

Гардеробные, душевые, умывальные следует объединять в гардеробные блоки, которые включают: гардероб для домашней одежды (в закрытых шкафах), преддушевую, душевую, гардероб для рабочей одежды, умывальную. Гардероб располагают на пути прохода рабочих на производство. Количество мест для хранения домашней одежды в шкафах принимают равным списочному числу всех работающих, соприкасающихся с сырьем, полуфабрикатами, готовой продукцией.

Раздевалки для домашней одежды оборудуются шкафами и скамейками. Шкафы делают закрывающимися глубиной 500 мм, шириной 330 мм, высотой 1650 мм со скамьями шириной 300 мм. Расстояние между рядами шкафов, оборудованных скамьями, должно быть 2000 мм, а между рядами шкафов, не оборудованных скамьями,

64

– 1500 мм. Расстояние между крайним рядом шкафов и стенкой должно быть 1300 мм.

Душевые оборудуют открытыми кабинами с однорядным или двухрядным их расположением. Кабина должна быть размерами 900900 мм. Количество кабин предусматривается исходя из количества человек, работающих в наиболее многочисленной смене. Одна кабина рассчитывается на 5 человек. Проход между кабиной и стеной должен быть 1200 мм.

Преддушевые предназначены для обтирания после душа, они должны быть оборудованы скамьями шириной 300 мм и длиной 400 мм на одно место из расчета три места на одну душевую сетку.

Одевальные для рабочей одежды оборудуют шкафами глубиной 250 мм, шириной 200 мм, высотой 1650 мм. Количество шкафов равно количеству шкафов в раздевалке. Расстояние между двумя рядами шкафов – 2000 мм, между шкафами и стенкой – 1300 мм.

В умывальных при гардеробном блоке устанавливают один кран на 15 человек наибольшей смены.

Гардеробный блок для рабочих котельной, мастерских и других вспомогательных участков проектируется при котельной с совмещенными шкафами для уличной, домашней и рабочей одежды. Шкафы глубиной 500 мм, шириной 400 мм и высотой 1650 мм. Здесь проектируют душ с тамбуром, уборную, умывальную и ванную для ног. Одна душевая кабина на 15 человек.

Бельевые предусматривают отдельно для грязного и чистого белья общей площадью 12–24 м2 (располагаются в гардеробных блоках).

Уборные мужские и женские размещаются на каждом этаже на расстоянии не более 75 м от рабочих мест. Размещение через этаж допускается при количестве работающих на двух смежных этажах до 30 человек. На 15 человек женщин устанавливается один унитаз, на 30 мужчин – один унитаз и один писуар. Размер кабин в плане должен быть 1200 900 мм.

При количестве женщин в наибольшей смене 15 человек и более, как правило, смежно с женскими уборными размещается помещение для гигиены женщин, с устройством дополнительного шлюза. В этом помещении предусматривается место для раздевания из расчета 0,02 м2 на одну женщину, но не менее 4 м2; кабины размером

65