Материал: 2465

Внимание! Если размещение файла нарушает Ваши авторские права, то обязательно сообщите нам

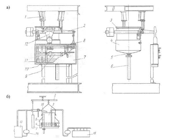
Недостатками весовых дозаторов битума рассмотренного типа являются невысокая точность, цикличность действия, низкая культура производства.

 

 

 

И

 

 

Д

 

А

 

б

 

 

Р с. 5.6. Весовой дозатор битума:

а – конструкцияи

; б – схема подачи битума

1 – кронштейн;С2 – рычаг; 3 – весовая бадья; 4 – рубашка обогрева; 5 – пробка; 6 – контрольная труба; 7 – весовой шкаф; 8 – коромысло; 9 – линейка;

10 – обратный рычаг; 11 – демпфер; 12 – циферблат; 13 – битумоплавильня; 14 – насос; 15 – труба; 16 – смеситель

Пример дозатора битума объёмного действия приведён на рис.

5.7.

Снаружи битумный бак 2 имеет рубашку для обогрева. Теплоноситель (пар или масло), циркулирующий по внутренней полости рубашки бака дозатора, поддерживает требуемую температуру битума.

Поплавок 1 дозатора соединен стальным канатом 3 с сельсиндатчиком 4, который подает сигнал на сельсин-приемник циферблатного указателя, установленного в кабине оператора. Необходимая

76

доза битума определяется в зависимости от рецептурного состава смеси и устанавливается с помощью задающей стрелки с бесконтактным датчиком на циферблатном указателе. Кран для подачи битума в дозатор открывается пневмоцилиндром 6. Битум заполняет бак дозатора, одновременно перемещая поплавок вверх. Перемещение поплавка вызывает поворот ротора сельсин-датчика и соответственно сельсин-приемника. При наборе заданного объема битума флажок указывающей стрелки входит в зазор бесконтактного датчика задающей стрелки и подается сигнал на закрытие битумного крана. При поступлении сигнала на другую обмотку пневмораспределителя открывается кран для слива битума. Одновременно включается насос, подающий отмеренную дозу битума в смеситель. По мере уменьше-

ния битума в мерном баке поплавок 1 опускается вниз и указывающая

 

 

 

 

И

стрелка возвращается в нулевое положение.

 

 

 

Д

 

 

А

 

 

б

 

 

и

 

 

 

С

 

 

 

 

Рис. 5.7. Дозатор битума объёмного действия:

1 – поплавок; 2 – бак; 3 – канат; 4 – сельсин-датчик; 5 – груз; 6 – пневмоцилиндр управления трёхходовым краном

Для недопущения перелива битума в мерном баке установлен дополнительный поплавок, который с помощью рычага через конечный выключатель отключает насос, подающий битум в дозатор.

77

Дозатор битума перед работой должен быть отрегулирован так, чтобы указывающая стрелка находилась в нулевом положении.

Наиболее совершенными дозаторами вяжущих материалов считаются устройства с высокоточными расходомерами. В современных асфальтосмесительных установках дозированная подача битума осуществляется также посредством контроля и регулирования частоты вращения вала битумного насоса [19].

5.3. Способы усовершенствования подачи битума на АБЗ

Одной из главных проблем при использовании битума в дорожной отрасли является сохранение качества вяжущего при его

на разных предприятиях (рис. 5.8). ОднакоИэтап подготовки битума в расходной емкости невозможно исключить ни хранением в

подготовке к смешению с минеральными составляющими

асфальтобетонной смеси. Технология использования битума на АБЗ

в зависимости от имеющегося оборудования, условий поставки и хра-

современными нагревательными системамиД. Поэтому все проблемы

нения вяжущего может включать различные операции и отличаться

наземных резервуарах, ни высококачественной логистикой, ни

данного технологического цикла остаются актуальными и полностью

нерешенными.

 

 

А

 

 

 

 

 

б

 

и

 

С

 

 

Рис. 5.8. Схема подготовки битума на АБЗ

Расходная емкость располагается в непосредственной близости к асфальтосмесительной установке (АСУ) и предназначается для

78

хранения битума с рабочей температурой (в зависимости от марки битума она составляет от 140 до160°С) и подачи егов дозатор АСУ.

В расходную емкость битум поступает с рабочей температурой, минуя, как правило, этапы хранения и обезвоживания. Доведение вяжущего до требуемой температуры осуществляется в резервных (битумоплавильных) котлах. Даже при «работе с колес» резервная емкость не исключается из схемы подготовки битума.

Технологически подача битума из рабочего котла в дозатор осуществляется шестеренчатым битумным насосом. Битум забирается из нижней части емкости и по прямой ветви битумного провода подается в дозатор АСУ, излишки же вяжущего по возвратной ветви сливаются обратно в емкость (рис. 5.9). Процесс повторяется многократно в течение всей смены. Так работают смесительные установки, производимые на территории постсоветского пространства. Подобная схема имеет определенные недостатки. Слив битума из возвратной ветви битумопровода является причиной активного взаимодействия битума с кислородом воздуха и его деградации. В

сочетании с высокой технологической

температурой

интенсивность

старения увеличивается в разы [17].

 

И

 

 

 

 

Непрерывная циркуляция битума

не может быть даже ис-

пользована для смешения

 

Д

ввиду своей

итума

с добавками

неэффективности, и в случаеАприменения таковых приходится приобретать дополн тельное о орудование, а процесс подготовки

битума удлиняетсяиещебкак минимум на 1–2 часа. Поэтому на сегодняшний день подобная технология подачи битума в дозатор являетсяустаревшей.

емкости при приготовленииС асфальтобетонных смесей необходимо уменьшить температурное воздействие на вяжущее или время воздействия и устранить непрерывную циркуляцию в расходной емкости.

Для обеспечения неизменности качества битума в расходной

С этой целью предлагается уменьшить расходную емкость до объема, не превышающего часовой потребности в битуме. При этом ее можно разместить непосредственно на АСУ над битумным дозатором, что обеспечит поступление вяжущего в дозатор даже самотеком.

Такая компоновочная схема исключает циркуляцию битума.

79

Возвратный битумопровод

 

Битумный дозатор

 

 

 

 

 

 

 

Прямой битумопровод

 

 

 

 

 

 

 

 

 

 

 

 

 

 

 

 

 

 

Расходная ёмкость

 

 

 

 

 

 

 

 

 

 

 

 

 

 

 

 

 

 

 

 

 

 

 

 

 

Битумный насос

 

 

 

 

 

 

 

 

 

 

 

 

 

 

Д

 

 

 

 

Рис. 5.9. Схема подачи битума в дозатор АСУ

 

 

А

на вяжущее

Для уменьшения температурного воздействияИ

следует снизить температуру подготовки битума в битумоплавильных

(даже в случае обводнения итума при хранении данной температуры

агрегатах (резервных емкостяхб) до температуры не более 110 – 120 °С

достаточно для обезвоживанияи). Нагрев же вяжущего до температуры,

требуемой для смешен я с каменными материалами, должен осуществляться в емкости интенсивного нагрева, которая факультативно может служ ть местом смешения с поверхностноактивными (или иными) добавками. Для обеспечения этих функций емкость должна быть снабжена нагревательными элементами с

развитой

теплоотдающей

поверхностью

и

устройствами,

обеспечивающимиСперемещение нагреваемой

массы (мешалка либо

циркуляционный насос). Емкость интенсивного нагрева размещается между резервной емкостью и рабочим котлом, ее полезный объем не должен превышать часовой потребности смесительной установки в битуме. Таким образом, за время, пока используется битум расходной емкости (не более часа), подготавливается новая порция вяжущего в емкости интенсивного нагрева.

В целомтехнологиявключает следующие этапы (рис.5.10):

подача битума из хранилища либо битумовоза в резервные емкости;

разогрев вяжущего до температуры не более 110 – 120°С;

80