Материал: 2218

Внимание! Если размещение файла нарушает Ваши авторские права, то обязательно сообщите нам

Так как во всех сечениях μimin=0,1 %, количество принятой арматуры оставляем без изменений. В случае μimin=0,1 %, диаметр принятой арматуры следует увеличить или уменьшить ее шаг.

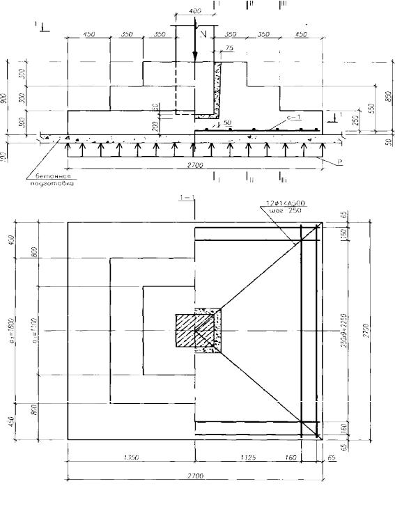
Конструкция фундамента приведена на рис.13.

СибАДИ

Рис. 13. Конструкция центрально нагруженного фундамента

61

СибАДИ

62

СибАДИ

63

Вопросы к защите курсового проекта

1.Понятия здание и сооружение.

2.Классификация зданий по назначению.

3.Классификация зданий в зависимости от этажности.

4.Классификация зданий в зависимости от числа пролетов.

5.Классификация зданий в зависимости от способа возведения. СибАДИ6. Классификация зданий по эксплуатационным характеристикам.

7.Элементы объемно-планировочной структуры здания.

8.Конструкт вные элементы здания.

9.Несущ й остов здания. Назначение несущего остова здания.

10.Основные требован я к зданиям и элементам.

11.Модульная коорд нация размеров. Типизация, унификация.

12.Класс ф кац я нагрузок, действующих на здание, по длительности воздейств я.

13.Класс ф кац я нагрузок, действующих на здание, по характеру воздейств я.

14.Класс ф кац я нагрузок, действующих на здание, по месту приложения усил й.

15.Класс ф кац я нагрузок, действующих на здание, по направлению.

16.Классификация несущих систем (по Хайно Энгелю).

17.Основные строительные материалы несущих остовов.

18.Пространственная жесткость здания

19.Деформация. Виды деформаций.

20.Деформационные швы и блоки зданий.

21.Требования к наружным ограждениям.

22.Понятие грунт, основание(естественное, искусственное).

23.Осадка просадка грунта.

24.Классификация грунтов.

25.Методы укрепления оснований.

26.Фундаменты. Классификация по конструктивному типу и форме.

27.Ленточные фундаменты.

28.Столбчатые фундаменты.

29.Сплошные фундаменты.

30.Свайные фундаменты.

31.Защита здания от действия грунтовых вод. Виды гидроизоляции.

32.Деревянный остов из бревен и брусьев.

33.Стены с деревянным каркасом. Состав каркаса.

34.Здания из облегченных панелей. Панельные, каркасно-панельные стены.

35.Каменные стены ручной кладки.

36.Элементы каменных стен. Виды перемычек в каменных домах.

37.Процесс возведения монолитно-бетонных стен.

38.Виды несъемных опалубок.

39.Виды съемных опалубок.

40.Классификации перекрытий по местоположению и теплотехнике.

64

41.Деревянные перекрытия.

42.Железобетонные сборные перекрытия.

43.Монолитные перекрытия.

44.борно-монолитные перекрытия.

45.Полы. Основные слои.

46.Крыша. Классификации по величине уклонов скатов, по теплотехническим характеристикам, по эксплуатационным характеристикам,

по организации водосбора со здания.

 

 

 

47.

Конструкция стропильной скатной крыши. Стропильные фермы крыш.

 

48.

Мансардные крыши.

 

 

 

 

49.

Малоуклонные железобетонные крыши. Виды бесчердачных крыш.

 

50.

В ды водоотвода с крыш.

 

 

 

 

51.

Основные требования к многоэтажным зданиям. Понятия капитальность,

долговечность, огнестойкость.

 

 

 

 

52.

Основные т пы несущих остовов многоэтажных зданий.

 

 

53.

Класс ф кац я стен в зависимости от восприятия нагрузок.

 

54.

Понят я каркас, р гель, диафрагма, рама, ядро жесткости, связь

 

55.

В ды каркасов по спосо у о еспечения пространственной жесткости, по

типу гор зонтальных несущих конструкций каркаса.

 

 

 

56.

Элементы стальных каркасов.

 

 

 

 

57.

Особенности стального рамного каркаса.

 

 

 

58.

Особенности стального связевого каркаса.

 

 

 

59.

Особенности стального рамно-связевого каркаса.

 

 

 

60.

Основные унифицированные

параметры каркасных

зданий

их

железобетонных элементов

 

 

 

 

61.

Особенности безригельных каркасов,

 

 

 

62.

Особенности Болгарского каркаса.

 

 

 

63.

Особенности грибовидного каркаса.

 

 

 

64.

Особенности каркаса с консольными ригельными плитами.

 

65.

Особенности каркасно-стеновой системы.

 

 

 

66.

Объемно-блочная конструктивная система.

 

 

 

67.

Блочно-стеновая система.

 

 

 

 

68.

Каркасно-блочной система

 

 

 

 

69.

Различные конструкции бетонных панелей. Особенности устройства

стыков панелей, связей между панелями.

 

 

 

СибАДИ70. Особенности технологии возведения сборно-монолитного каркаса,

монолитного каркаса, безригельного каркаса, монолитных стен.

 

71.

Утепление монолитных стен.

 

 

 

 

72.

Защита стальных конструкций от огня.

 

 

 

73.

Применение железобетонных плит для крупнопанельных зданий, для

зданий с железобетонным каркасом

 

 

 

 

74.

Конструкции

ребристых

железобетонных

плит

перекрытий,

многопустотных плит, сборно-монолитных перекрытий монолитных

перекрытий, сталебетонных и сталежелезобетонных перекрытий

 

75.

Конструкции чердачной крыши с холодным чердаком.

 

 

65