|
b lef bf |
|
|
– условная гибкость |
|
|
|
||||||||||||||
где |
Ry |
E |
сжатого пояса (полки) |
||||||||||||||||||
балки; lef |
– наибольшая свободная длина между точками закреплений |
||||||||||||||||||||
сжатой полки от поперечных смещений; |
|
|
|
– предельное значение |
|||||||||||||||||
ub |
|||||||||||||||||||||
условной |
|
гибкости |
|
сжатого |
|
пояса определяется по |
формуле |
||||||||||||||
[1, табл. 11]: |
|
|
|
|
|
|
|
|
|
|
|
|
|
|
|
|
|||||
|
|
|
|
|
|
|
|
bf |
|
|
|
|
|
|
bf |
|
|
||||
|
|
ub 0,41 0,0032 |
|
|
|
|
|
|
bf |
|
(40) |
||||||||||
|
|
t |
|
|
0,73 0,016 |
t |
|
h ; |
|||||||||||||
|
|
|
|
|
|
|
|
|
f |
|
|
|
|
|
|
f |
0 |
|
|||
h0 – расстоян е между осями поясных листов, |
h0 = hw+tf. |
|
|||||||||||||||||||
|
В курсовом проекте проверка условия (39) выполняется для уча- |
||||||||||||||||||||
С |
|
|
|
|
|
|
|
равной а1, и уменьшенной |
|||||||||||||
стка с на большей сво одной длиной lef, |
|||||||||||||||||||||
|
|
полки bf = |
bf (рис. 16). |
|
|
|
|
|
|
|
|
|
|||||||||
шириной |
|
|
|
|
|
|
|
|
|
|
|
|
|
||||||||
|
|
|
бА |
|
|||||||||||||||||
|
|
|
|
|
Рис. 16. Схема раскрепления главной балки |
|
|||||||||||||||
Если условие (39) не выполняется, то расчет на устойчивость |
|||||
балки, изгибаемой в плоскости стенки, следует выполнять по форму- |
|||||
ле [1, пп. 8.4.1]: |
Д |
|
|||
|
|
|
|
||
|
Mx |
|
1, |
(41) |
|
b |
Wcx Ry |
c |
|||
И |
|||||
|
|
|
|||
где Мх – максимальный изгибающий момент на проверяемом участке; Wcx – момент сопротивления сечения относительно оси х, вычисленный для сжатого пояса (при симметричном сечении балки принимается равным W’х); φb – коэффициент устойчивости при изгибе, определяемый для балок с опорными сечениями, закрепленными от боковых смещений и поворота по формулам [1, П. Ж, п. 1, ф.(1),(2)]:
φb = φ1 при φ1 ≤ 0,85;
36
φb = 0,68 + 0,21·φ1 ≤ 1 при φ1 > 0,85,
здесь значение φ1 следует вычислять по формуле [1, П. Ж, п. 1]:
1 , (42)
С |
|
|
|
|
|
|
|
|
|
|
|
|
|
|
здесь ψ = 2,25 + 0,07α – коэффициент [1, П. Ж, п. 3, табл. П.Ж.1], вы- |
||||||||||||||
числяемый в зависимости от коэффициента α [1, П. Ж, п. 2, ф. (5)] |
||||||||||||||
|
|
lef |
tf |
2 |
|
0,5 h |
t |
3 |
|
|||||
|
|
8 |
|
|
|
|
1 |
|
|
0 |
|
w |
|
(43) |
|
|
h |
b |
|
|
|
b |
|
t |
3 |
|
; |
||
При |
f |
|
|
|
f |
|
f |
|
|
|
||||
|
|
0 |
|
|
|
|
|
|||||||
lef – свободная дл на между точками закреплений сжатой полки от |
||||||||||||||
поперечных смещен й, равная а1, bf = b´f |
– ширина полки на прове- |
|||||||||||||
ряемом участке. |
|
|
|
|
|
|
|
|
|
|
|
|
|
|
бА |
|
|||||||||||||
невыполнен условия (41) необходимо увеличить ширину |
||||||||||||||
полки повтор |
ть расчет. |
|
|
|
|
|
|
|
|
|
|
|
||
2.7.2. Проверка |
о еспечение местной устойчивости элементов балки |
|||||||||||||
Потеря местной устойчивости характеризуется выпучиванием отдельных элементов конструкции под действием нормальных или касательных напряжений.
В балках потерять устойчивость могут: сжатый пояс от действия нормальных напряжений и стенкаДот действия касательных или нормальных напряжений, а также от их совместного действия. Потеря устойчивости одним из элементов балки полностью или частично выво-
дит его из работы, рабочее сечение балки уменьшается, часто становится несимметричным, центр изгиба смещается, и это может привести к преждевременной потере несущей способностиИвсей балки.
Устойчивости сжатого пояса (полки) и стенки рассматриваются отдельно.
Устойчивость сжатого пояса (полки) балки
Сжатый пояс представляет собой длинную пластинку, прикрепленную к стенке балки и нагруженную равномерно распределенным по сечению пластины нормальным напряжением, действующим вдоль стороны пластины.
Потеря устойчивости такой пластины может выразиться волнообразным выпучиванием ее свободных краев (рис. 17).
Устойчивость сжатых поясов следует считать обеспеченной, если выполняется условие [1, пп. 8.5.18]
(44)
37
|
f |
uf , |
|
|
|
|||||||||
|
|
|
|
|
f bef tf |
|
|
– |
|
|
|
|||
|
|
где |
|
|
Ry E |
условная |
||||||||
|
|
|
||||||||||||
С |
|
гибкость свеса сжатого пояса; |
|
|
||||||||||
|
uf – |
|||||||||||||
|
предельное значение условной гиб- |
|||||||||||||
|
кости свеса сжатого пояса определя- |
|||||||||||||
|
ется по формуле |
|
|
|
||||||||||
|
|
|
|
|
|
|
|
|
|
(45) |
||||
|
|
uf 0,5 Ry c , |
||||||||||||
|
здесь σс – напряжение в сжатом поя- |
|||||||||||||
|
се, определяется по формуле |
|
|
|
||||||||||
. 17. Потеря местной |
|
|
|
с M Wсх c . |
|
|
|
|||||||
В курсовом проекте |
проверка |
|||||||||||||
устойч вости поясом |
алки |
местной устойчивости выполняется |
||||||||||||
Рис |
||||||||||||||
|
|
|
|
|
|
|
|
|
|
|
|
|||
для сжатой полки с ш риной свеса bef = bf/2 – tw/2 в месте действия |
||||||||||||||
максимального зг |
ающего момента М = Мmax (Wcx = Wх – при сим- |
|||||||||||||
метричном сечении). |
|
|
|
|
|
|
|
|
|
|
|
|
|
|
Устойчивость стенки балки |
|
|
|
|||||||||||
Стенка представляет собой пластину, испытывающую действие |
||||||||||||||
бА |
|
|
|
|||||||||||
|
|
Д |
||||||||||||
касательных и нормальных напряжений. Касательные напряжения, действующие по контуру вырезанной из стенки пластинки и приведенные к двум сжимающим и двум растягивающим напряжениям, направлены по диагонали и стремятся придать пластинке волнообразную форму с волнами, расположенными по диагоналиИ(рис. 18, а).
При действии нормальных напряжений стенка выпучивается, образуя в сжатой зоне балки волны, перпендикулярные оси балки
(рис. 18, б).
Устойчивости стенки обычно добиваются не увеличением ее толщины (из-за большого перерасхода материала), а укреплением ее специальными ребрами жесткости, расположенными нормально к поверхности выпучивания листа и увеличивающими жесткость стенки.
38
С |
|
и |
|
Р с. 18. Потеря устойчивости стенки при действии касательных |
|
|
балки |
|
нормальных напряжений |
В данной ра оте для о еспечения местной устойчивости стен- |
|
ки главной |
устанавливаются парные поперечные ребра жестко- |
сти на всю высоту стенки алки в местах опирания второстепенных |
|
балок (рис. 19, а) и назначаются их размеры [1, пп. 8.5.9].
Ширина ре ра принимается из условия устойчивости самого ребра br, мм,
b hw |
40, |
|
r |
Д |
|
|
30 |
|
где hw – высота стенкиА, мм. |
||
|
|
И |
Рис. 19. Схема расположения ребер жесткости в главной балке
39
Толщина ребра tr, мм, принимается из условий
1) tr |
2br |
Ry |
; |
|
E |
||||
|
|
|
||
2) tr |
trmin 4 мм. |
|||
С |
|
|
|
|
Окончательные размеры ребра принимаются в соответствии с ГО Т 103–2006 на листовую сталь. Внутренние углы ребер жесткости у соед нен я полки со стенкой срезают под 45° на 15…20 мм, чтобы пропуст ть швы прикрепления полки к стенке (рис. 19, б).
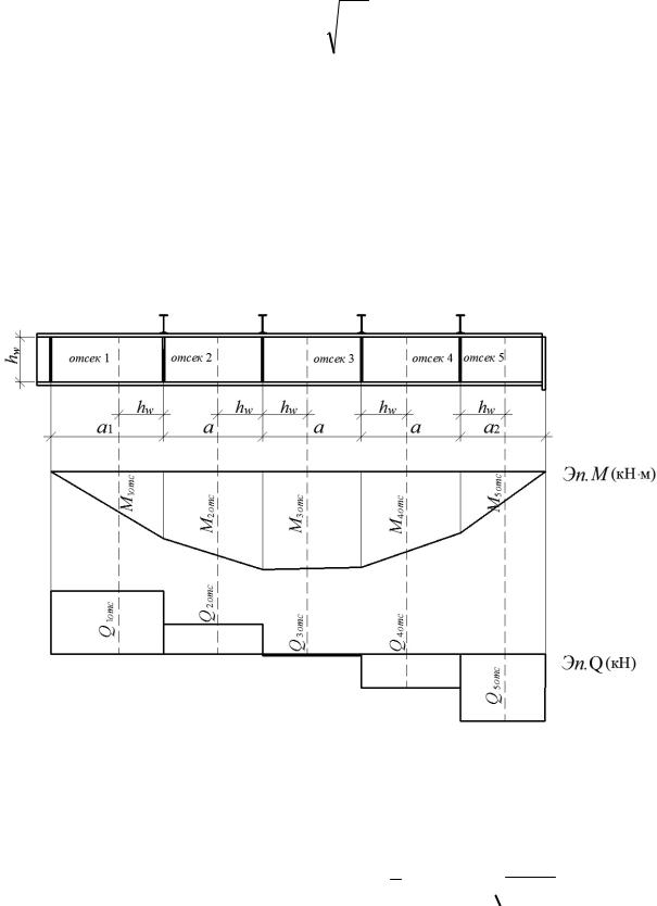
балкиРебра жесткости делят стенку на отсеки, которые теряют устойчивость незав с мо од н от другого. Проверку устойчивости стенки
проводят для каждого отсека отдельно (рис. 20).
бА Д
Рис. 20. Схема балки с основными поперечнымиИребрами жесткости к расчету местной устойчивости стенки
Устойчивость стенки балки 1-го класса следует считать обеспе-
ченной, если условная гибкость стенки w hw
tw 
Ry
E не превы-
40