Си бА
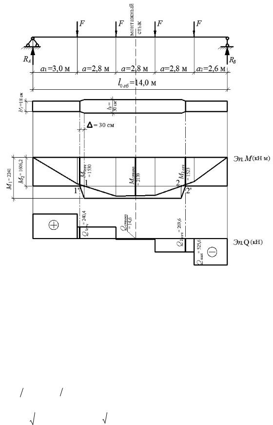
Проверка прочности по приведеннымДнапряжениям выполняется для наиболее опасного сечения в точке 1', т. е. уменьшенном сечении с наибольшим
значением изгибающего момента Mсеч =153 000 кН·см и соответствующей поперечной силе Qсеч = 240,4 кН, на уровне поясных сварных угловых швов.
Нормальные напряжения в стенке балки на уровне поясных швов:
x |
|
Mсечhw |
|
153000 125 |
21,8кН/см |
2 |
. |
|
|
||||||||||||
|
|
|
|
2 439504 |
|
|
|
||||||||||||||
|
|
|
|
|
2Jx |
|
|
|
|
|
|
|
|
|
|
||||||
Касательные напряжения в стенке балки на уровне поясных швов: |
|||||||||||||||||||||
|
|
|
|
|
|
|
|
|
|
|
|
240,4 2054 |
|
|
|
|
И |
||||
xy |
|
QсечSx полки |
|
|
1,02кН/см2. |
||||||||||||||||
|
|
|
|
|
|
|
|||||||||||||||
|
|
|
|
|
|
|
tw |
|
|
|
|
439504 1,1 |
|
|
|
|
|||||
|
|
|
|
|
|
Jx |
|
|
|
|
|
|
|
|
|||||||
xy |
Rs c 1,02 |
|
13,53 1 0,08 ˂ 1. |
|
|
|
|
||||||||||||||
Проверка прочности по приведенным напряжениям: |
|||||||||||||||||||||
|
0,87 |
|
|
|
|
0,87 |
|
|
|
|
|
||||||||||
|
|
x2 |
3 xy2 |
|
21,82 3 1,022 |
0,8 1. |
|||||||||||||||
|
|
|
|||||||||||||||||||
|
Ry c |
|
|
|
|
|
|
23,5 1 |
|
|
|
|
|
|
|
||||||
Прочность по приведенным напряжениям обеспечена.
31
Если бы полки и стенки балок не были между собой связаны, то при изгибе каждый элемент балки изгибался самостоятельно. При этом произошел бы сдвиг элементов по плоскости их соприкоснове-
Сния (рис.13, а).
Соединение полок составной балки со стенкой осуществляют в сварных балках поясными швами. Это соединение предотвращает при изгибе балки сдвиг полок относительно стенки балки. Расчет соеди-
нений ведется на силу сдвига полки относительно стенки (рис.13, б).
и бАв Д Рис. 13. Напряжения в поясных швахИ
В сварных балках сдвигающую силу Т, кН/см, приходящуюся на
1 см длины балки, определяют через касательные напряжения
(рис. 13, в)
|
|
|
|
|
|
Т τ |
tw |
|
QmaxSx полки |
. |
(36) |
|
|||||
|
|
|
|
|
|
|
|
|
Ix |
|
|
32
Расчет сварных угловых швов, приваривающих полки к стенке (рис. 14), производится на условный срез по двум сечениям
[1, пп. 14.1.16].
С |
|
|
|
|
||
и |
|
|
|
|
||
бА |
|
|||||
Р с. 14. Схема расчетных сечений |
|
|||||
сварного соединения с угловым швом |
|
|||||
Катет одностороннего шва, см, определяется из условий: |
|
|||||
1) среза по металлу шва (сечение 1) (см. рис. 14): |
|
|||||
kf |
T |
; |
(37) |
|||
Rwf |
||||||
f |
c |
|
||||
2) среза по металлу границы сплавления (сечение 2) (см. рис. 14): |
||||||
kf |
|
T |
|
, |
(38) |
|
z |
Rwz |
|
||||
|
c |
|
||||
где βf и βz – коэффициенты, учитывающие вид сварки [1, табл. 39]; Rwf – расчетное сопротивление угловых швов срезу по металлу шва,
кН/см2 [1, |
табл. |
П.Г.2]; Rwz – расчетное сопротивление угловых |
|
|
2 |
швов срезу по металлу границы сплавленияД, кН/см [1, табл. 4], Rwz = |
||
= 0,45∙Run; |
Run – |
временное сопротивление стали разрыву, кН/см2 |
[1, табл. П.В.5]; γс – коэффициент условий работы элемента.
При двусторонних швах размер катета шва уменьшается вдвое. |
|
Расчетный катет шва должен удовлетворять конструктивным |
|
требованиям [1, пп. 14.1.7]: |
И |
kf min ≤ kf ≤ 1,2 tmin,
где kf min – минимальный катет шва [1, табл. 38]; tmin – минимальная толщина одного из двух свариваемых элементов.
После определения катета шва указать вид сварки (автоматическая), электроды (Э42 по ГОСТ 9467), положение шва при сварке (в лодочку).
33
Пример расчета. Требуется выполнить расчет катета поясного шва. Исходные данные: вид сварки – автоматическая; электрод – Э42 по
ГОСТ 9467; положение шва – в лодочку; Rwf = 18 кН/см2; Run = 37 кН/см2; Rwz = = 0,45∙Run = = 0,45·37 = 16,65 кН/см2; βf = 0,9; βz = 1,05.
Решение:
двигающая сила Т, приходящаяся на 1 см длины балки,
|
|
|
|
|
|
|
|
|
|
|
|
|
|
|
|
|
|
|
|
||
Т τ tw |
Qmax Sx пол |
|
524,6 2054 |
|
2,45кН/см. |
||||||||||||||||
|
|
|
|
|
|
||||||||||||||||
|
|
Ix |
439504 |
|
|
|
|
|
|
|
|
||||||||||
|
Катет двухстороннего шва определяется из условий: |
||||||||||||||||||||
1) |
среза по металлу шва: kf |
|
|
|
|
|
T |
|
|
|
|
|
2,45 |
0,08см; |
|||||||
2 f Rwf c |
|
|
|
||||||||||||||||||
С2) среза по металлу |
|
|
|
2 0,9 18 1 |
|||||||||||||||||
|
сплавления: |
|
|
|
|
|
|||||||||||||||
|
|
kf |
|
|
T |
|
|
|
|
|
|
|
|
2,45 |
|
|
|
|
0,07см. |
||
|
|
|
2 z Rwz |
c |
|
2 1,05 16,65 1 |
|||||||||||||||
Пр н маем катет шва kf = kf min = 4 мм. |
|
|
|
|
|
||||||||||||||||
границы |
|
|
|
|
|
|
|
|
|
|
|
|
|
|
|||||||
|
|
2.7. Проверка устойчивости балки |
|||||||||||||||||||
|
2.7.1. Проверка и о еспечение |
|
|
устойчивости балки |
|||||||||||||||||
|
общей |
|
|
|
|
|
|||||||||||||||
|
|
|
А |
||||||||||||||||||
Потеря общей устойчивости балки заключается в скручивании |
|||||||||||||||||||||
балки под нагрузкой, при котором плоскость наибольшей жесткости |
|||||||||||||||||||||
балки |
выходит из |
|
плоскости |
|
действия |
сил (плоскости изгиба) |
|||||||||||||||
(рис. 15). |
|
|
|
|
|
|
|
|
|
|
|
|
|
|
|
|
|
|
|
||
Потеря общей устойчивости может произойти только в балках, |
|||||||||||||||||||||
момент инерции сечения которых в плоскости изгиба значительно |
|||||||||||||||||||||
превосходит момент инерции из плоскости изгиба. Такое соотноше- |
||
ние распространено в двутавровых и швеллерных сечениях, т.к. соот- |
||
ветствует наиболее рациональному использованию материала изги- |
||
баемого элемента. |
Д |
|
И |
||
|
||
34
Возможна потеря устойчивости балками, и проверка ее необходима в следующих случаях:
1. В свободно лежащих на опорах отдельных балках, не закрепленных настилом или связями, при нагрузке по верхнему (наиболее
неблагоприятный случай) или по нижнему поясу. |
|
|||||
С |
|
|
Для таких балок свободной |
|||
|
|
|
||||
|
|
|
(расчетной) длиной является пролет |
|||
и |
|
балки. Основное мероприятие, по- |
||||
|
вышающее устойчивость таких ба- |
|||||
|
лок, увеличение ширины (а если |
|||||
|
нужно, то и толщины) сжатого поя- |
|||||
|
са – увеличение поперечной жест- |
|||||
|
кости балки. |
|
|
|||
|
2. В балках, находящихся в |
|||||
|
системе балочной клетки и связан- |
|||||
|
ных |
между |
собой |
поперечными |
||
Рис. 15. Потеря |
устойчивости |
|
алками или |
связями. Свободная |
||
|
длина |
таких |
балок равна расстоя- |
|||
балки при изги е |
|
|||||
|
нию |
между |
точками |
закрепления |
||
|
|
|
||||
общейалок от закручивания или горизон- |
||||||
|
|
|
тального смещения сжатого пояса. |
|||
Наиболее опасны для таких балок средние панели, на протяже- |
||||||
|
|
Д |
||||
нии которых момент имеет наибольшее значение и мало меняется; |
||||||
поэтому можно считатьА, что такие балки теряют устойчивость от дей- |
||||||
ствия чистого изгиба. |
|
|
|
|
|
|
С увеличением ширины сечения (точнее – ширины сжатой пол- |
||||||
ки балки, т.к. причиной потери устойчивости балки является потеря |
||||||
устойчивости ее сжатого пояса) |
|
И |
||||
возможность потери устойчивости |
||||||
балки уменьшается, а с увеличением свободной длины балки – увеличивается. Поэтому мерой возможной потери общей устойчивости балки является отношение свободной (не закрепленной связями) длины сжатого пояса к его ширине lef/bf.
Проверку общей устойчивости балок двутаврового симметричного сечения на участке между горизонтальными связями, которыми являются второстепенные балки (рис. 16), не требуется производить, если условная гибкость сжатого пояса не превышает его предельной
гибкости [1, пп. 8.4.4, б]: |
|
|
b |
ub , |
(39) |
35