|
Контрольные вопросы |
|
|
1. |
Какова конструктивная схема главной балки? |
||
2. |
Как определяется расчетный пролет для главной балки? |
||
3. |
Как определяется сосредоточенная сила F на главную балку? Как опреде- |
||
|
ляется грузовая площадь? |
|
|
4. |
Из каких элементов состоит главная балка? |
||
С |
|
|
|
5. |
Как рекомендуется назначать параметры элементов сварной балки? |
||
6. |
В каком месте главной балки по длине возникают максимальные нор- |
||
|
мальные, касательные и приведенные напряжения? |
||
7. |
По какой формуле проводится проверка прочности главной балки по нор- |
||
|
мальным напряжен ям? |
|
|
проводится |
|
||
8. |
По какой формуле проводится проверка прочности главной балки по каса- |
||
|
тельным напряжен ям? |
|
|
9. |
По какой формуле |
|
проверка прочности главной балки по при- |
|
веденным напряжен ям? |
|
|
10. |
На какое ус л е |
расчет поясных сварных швов? |
|
11. |
По как м услов ям (сечениям) проводится расчет сварных швов? |
||
12. |
Как е конструкт вные тре ования предъявляются к сварному шву? |
||
13. |
В чем заключается потеря о щей устойчивости балки? |
||
14.В каком случае не тре уется производить проверку общей устойчивости балки?
15.Чем характеризуется потеря местной устойчивости элементами балки?
16.В каком случае устойчивость сжатой полки балки следует считать обеспеченной?
17.Чем обеспечивается местная устойчивость стенки балки?
18.Из какого условия определяется размер опорного ребра главной балки?
19.По какому условию приводится проверка устойчивости опорного ребра главной балки?
20.Для чего и в каком месте выполняется монтажный стык в главной балке?
21.На какие усилия рассчитывается стык полок и стенки?
22.От чего зависит расчетное усилие, воспринимаемое каждой плоскостью трения элементов, стянутых одним высокопрочным болтом?
23.Какие конструктивные требования предъявляются к размещению болтов?ДбА
И
56
Колонны можно различать по характеру работы и по конструкции. По характеру работы различают колонны, работающие на центральное сжатие, когда линия действия силы совпадает с осью колонны, и работающие на внецентренное сжатие или сжатие с изгибом, когда линия действия силы не совпадает с осью колонны или когда, помимо осевой силы, на колонну действует еще изгибающий момент
СВ металл ческ х конструкциях широко применяются колонны тающиеили стержни, входящ е в состав конструктивных комплексов и рабо-
или перерезывающая с ла.
на центральное сжатие.
Центрально-сжатые колонны применяются для поддержания междуэтажных перекрытий и покрытий зданий, в рабочих площадках, путепроводахбА, эстакадах и т.п.
Колонны передают нагрузку от вышележащих конструкций на фундаменты.
Колонна состо т з трех частей, определяемых их назначением: а) оголовок, на который опирается вышележащая конструкция
покрытия; б) стержень – основной конструктивный элемент, передающий
нагрузку от перекрытий к азе; в) база, передающая нагрузкуДот стержня на фундамент.
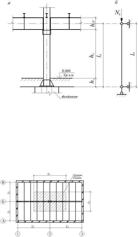
В данной работе требуется запроектировать и рассчитать колонну нижнего этажа многоэтажного производственногоИздания. Предполагается, что колонна работает на центральное сжатие, а горизонтальные нагрузки воспринимаются системой связей. Кровля здания является малоуклонной с углом α < 25° (см. рис. 1).
Нарис.26представленыконструктивнаяирасчетнаясхемыколонны. Геометрическая длина колонны первого этажа, м,
lк hз hэ 0,5hгб ,
где hз = 0,7 … 1 м – расстояние от нулевой отметки до обреза фундамента; hэ – высота этажа, м (см. задание); hгб – высота сечения главной балки, м.
57
С |
|
|
|
|
и |
|
|
|
|
бА |
|
|
||
Рис. 26. Схемы к расчету колонны: а – конструктивная схема; б – расчетная |
|
|||
схема; Nк – расчетная нагрузка на колонну 1-го этажа |
|
|||
Расчетная длина стержня колонны, м, |
|
|
|
|
l0 lк |
, |
|
|
|
где µ – коэффициент расчетной длины колонны, зависящий от усло- |
||||
вий закрепления концов стержня [1, табл. П.И.1]. |
|
|
||
Д |
|
|||
3.2. Определение расчетной нагрузки на колонну 1-го этажа |
|
|||
|
|
ля |
определения |
|
|
И |
|||
|
расчетной |
продольной |
||
|
силы в наиболее нагру- |
|||
|
женном сечении колон- |
|||
|
ны |
Nк |
определяется |
|
|
грузовая площадь Агр |
с |
||
|
учетом расположения ко- |
|||
|
лонны в плане (рис. 27): |
|||
|
нагрузка |
собирается |
с |
|
|
половины продольного и |
|||
Рис. 27. План перекрытия к расчету |
поперечного пролетов. |
|||
грузовой площади на колонну |
Агр = L1·L2, |
|
||
|
где L1, L2 |
– по заданию. |
|
|
58
Расчетная продольная сила
Nк = [Агр · (qнпост · γf,пост + qнвр · γf,вр ) + lкгб · Асеч · γ0 · γf,пост +
+ (ρ/а) · Агр · γf,пост] · (nэ– 1) + Агр · (qч.п + qнкр · γf,пост + qсн) +
+ Hср · (1 кН/м) · γf,пост |
· nэ, |
|
(63) |
||||
где Агр – грузовая площадь, м2; qнпост · γf,пост + qнвр · γf,вр |
– см. расчет |
||||||
С |
кН/м; lкгб – конструктивная длина главной |
||||||
второстепенной балки, |
|||||||
балки, м; Асеч = 2·bf··tf + tw·hw – площадь сечения |
главной балки, м2; |
||||||
γ0 – объемный вес металла, равный 78,5 кН/м3; |
ρ – линейная плот- |
||||||
ность |
ли вес 1 п. м металла второстепенной балки по сортаменту, |
||||||
тия |
|
– количество |
|||||
кН/м; |
γf |
– коэфф ц енты надежности по нагрузке; nэ |
|||||
этажей по задан ю; qч.п |
– расчетная нагрузка от чердачного перекры- |
||||||
|
|
|
2 |
|
н |
|
|
(по задан ю), кН/м |
; q кр – нормативная нагрузка от кровли (по |
||||||
заданию), кН/м2; qсн – полное расчетное значение снеговой нагрузки |
|||||||
|
|
бА |
|
||||
принимается в зав с мости от района проектирования 2 , кН/м2;
Hср – средняя высота колонны в пределах одного этажа, Hср = hэ+hгб, м; 1 кН/м – ор ент ровочный вес погонного метра стержня колонны.
3.3. Определен е размеров поперечного сечения колонны
Обычно сечение сплошной колонны проектируют в виде широкополочного двутавра, наи олее удобного в изготовлении при помощи автоматической сварки и позволяющего просто осуществлять примыкание поддерживаемых конструкций.
В |
курсовом проекте рассматривается поперечное сечение ко- |
|
лонны: |
двутавровое составное сварное симметричное относительно |
|
осей х и у (рис. 28). |
Д |
|
|
|
|
|
|
И |
Рис. 28. Поперечное сечение колонны
59
Максимальное нормальное напряжение, возникающее в сечении центрально-сжатой колонны, не должно превышать расчетного сопротивления стали по пределу текучести с учетом коэффициента устойчивости, т.к. в реальных конструкциях всегда есть причины, вы-
зывающие кроме осевого сжатия еще и изгиб, |
|
|
|
||||||||||||||||||
|
|
|
Nк |
Ry c |
или |
Nк |
Ry c. |
(64) |
|||||||||||||
|
|
|
|
||||||||||||||||||
|
|
|
A |
|
|
|
|
|
|
|
|
|
|
|
|
A |
|
|
|
||
|
Площадь поперечного сечения колонны определяется из усло- |
||||||||||||||||||||
вия устойч вости центрально-сжатого стержня [1, пп. 7.1.3, ф.(7)]: |
|||||||||||||||||||||
типу |
|
|
|
|
|
|
|
|
|
|
|||||||||||
С |
|
|
|
|
|
|
|
Nк |
|
|
1, |
|
|
|
|
(65) |
|||||
|
|
|
A Ry |
|
|
|
|
|
|
||||||||||||
|
|
|
c |
|
|
|
|
|
|||||||||||||
где φ – коэфф ц ент устойчивости при центральном сжатии, для |
|||||||||||||||||||||
предвар тельного расчета принимается по условной гибкости |
|
= 3,2 |
|||||||||||||||||||
|
|||||||||||||||||||||
и |
сечен я b [1, та л. П.Д.1]; А – площадь поперечного сечения |
||||||||||||||||||||
колонны, см2. |
|
|
|
|
|
|
|
|
|
|
|
|
|
|
|
|
|
|
|
||
|
Требуемая площадь сечения колонны определяется из условия |
||||||||||||||||||||
(65), см2: |
|
А |
|
||||||||||||||||||
|
|
|
|
|
|
|
|
|
|
|
|
|
Nк |
|
. |
|
|
|
(66) |
||
|
|
бтр |
|
|
|
|
|||||||||||||||
|
|
|
|
|
|
|
|
|
|
|
|
|
|
Ry |
c |
|
|
|
|
|
|
|
Подбор сварных двутавровых сечений из листов производят, |
||||||||||||||||||||
распределяя площадь сечения между полками и стенкой. При этом |
|||||||||||||||||||||
|
|
|
|
|
|
|
|
|
|
|
|
Д |
|
||||||||
нужно стремиться к тому, чтобы площадь сечения полок составляла |
|||||||||||||||||||||
около 80% общей площади, а площадь стенки – соответственно 20%, |
|||||||||||||||||||||
т.к. с увеличением площади полок увеличиваются радиусы инерции |
|||||||||||||||||||||
сечения. Двутавровое сечение конструируют обычно близким к квад- |
|||||||||||||||||||||
рату, т.е. с высотой сечения, равной примерно ширине, так как при |
|||||||||||||||||||||
таком соотношении размеров поясные швы легко доступны для свар- |
|||||||||||||||||||||
ки автоматом. |
|
|
|
|
|
|
|
|
|
|
|
|
|
|
|
|
|
|
|
||
|
Размеры полок и стенки должны отвечать следующим конструк- |
||||||||||||||||||||
тивным требованиям: |
|
|
|
|
|
|
|
|
|
|
|
|
|
|
|
|
|
||||
1) Аf ≈ 0,4Атр – площадь сечения одной полки, см2; |
|
||||||||||||||||||||
2) Аw ≈ |
|
|
|
|
|
|
|
|
|
|
|
|
|
|
|
2 |
|
|
|
||
0,2Атр – площадь сечения стенки, смИ; |
|||||||||||||||||||||
3) bf ≈ hw; 4) tw = 8 … 16 мм; 5) tw tf 3tw; 6) tf 30 мм; |
|
||||||||||||||||||||
7) |
h |
1 20...115 l |
; |
8) |
h |
w |
|
|
Аw |
; 9) |
hmin 300 |
мм. |
|
||||||||
|
|
|
|
||||||||||||||||||
w |
|
0 |
|
|
|
|
tw |
|
w |
|
|
|
|||||||||
|
|
|
|
|
|
|
|
|
|
|
|
|
|
|
|
|
|
|
|
|
|
Исходя из этих требований размеры сечения назначаются в соответствии с ГОСТ 82–70*на листовую сталь.
60