3. Критическую продолжительность дождя, равную расчетному времени добегания дождевых вод от самой отдаленной точки площади водосбора до первого расчетного сечения, определяют суммированием времени добегания по склону и открытому лотку, т. е.
С |
τ1 = τcкл + τлот . |
(6.16) |
|
||
4. По расчетному времени добегания τлот и параметру |
по фор- |
|
муле (6.3) для бетонной поверхности определяют модуль поверхност- |
||
и |
|
|
ного стока S1, а затем для первого участка водосточной сети – расчетный расход дождевых вод Q1 = S1 F1.
5. По расходу Q1 уклону коллектора I находят диаметр труб D. 6. Второй участок коллектора рассчитывают так же, как и первый, пр чем расчетное время до егания дождевых вод для второго определяют, сумм руя время до егания по склону до дождеприемни-
ка и время |
я по первому (предыдущему) участку коллектора, |
|||||||
т.е. |
|
|
|
|
|
|
|
|
|
|
2 |
|
1 |
|
l1 |
, |
(6.17) |
|
|
|
V |
|
|
|||
|
|
|
|
|
|
|
||
|
добеган1 |
|
|
|||||
где l1 – длина первого участка коллектора; V1– скорость течения воды |
|||
в трубах для первого участка. |
|
|
|
7. По расчетномуАвремени добегания τ2 определяют модуль по- |
|||
верхностного стока S2. |
|
|
|
8. Расчетный расход дождевых вод для второго участка сети на- |
|||
ходят по формуле |
Д |
||
Q2 = S2 (F1 |
|||
+ F2). |
И |
||
|
|
||
9.По расходу Q2 и уклону коллектора I определяют диаметр труб D2 второго участка.
10.Третий и последующие участки коллектора рассчитывают аналогично первым двум, определяя время добегания τi и соответствующую ему величину стока Si.
11.Расчетный расход будет равен
N |
|
Qi Si Fi . |
(6.18) |
1 |
|
76
12. По вычисленному расчетному расходу Qi, принятым проектным уклоном I, находят значения Di и Vi. Так как значения Qi по длине коллектора возрастают, то происходит возрастание и диаметра труб Di.
13. Если к коллектору в каком-либо месте подключаются перепуски от тальвежных колодцев, собирающих воду на грунтовых полосах, то в местах подключений в коллекторе увеличиваются расходы на вел ч ну
С |
Qдon(i) = Sгp(i) · Fгp(i) , |
(6.19) |
||
|
|
|||
где Qдon(i) |
– дополн тельный расход, поступающий на i-м участке |
|||
коллектора с грунтовой полосы; Sгp(i) – модуль стока с грунтового во- |
||||
досбора |
|
времени до егания τi, отсчитываемого по коллектору (ко- |
||
эффиц ент |
стока принимают для грунтовой поверхности); |
|||
при |
|
|||
|
добегания |
|
||
F гp(i) – площадь грунтового водосбора, с которой вода поступает в
тальвежный колодец. Величину этой площади находят по τi с помо-
щью формулы (6.5), решением о ратной задачи, т. е. по имеющемуся |
||
времени |
А |
|
τi находят длину склона В. |
|
|
Полный расчетный расход для i-го участка коллектора будет ра- |
||
вен |
Qpacч = Qi + Qдon(i). |
(6.20) |
|
||
При расчете главного коллектора определяют суммарный расход, поступающий в него из других коллекторов. Главные коллекторы рассчитывают на время добегания по одному из примыкающих коллекторов, имеющих наибольшее протяжение. Сечение труб рас-
считывают на полное заполнениеД.
Для расчета систем, устраиваемых по схеме II (см. рис. 6.4, б), рекомендована следующая методика.
И
Расчетные расходы в сечениях коллекторов определяют суммированием расходов, одновременно поступающих к этим сечениям (т. е. при одних и тех же τ) с водосбора, имеющего разнородную поверхность (покрытие и грунтовая обочина), и с чисто грунтового водосбора (см. рис. 6.4, б).
Расходы с первого водосбора определяют по методу предельных интенсивностей без учета минимальной стокообразующей интенсивности дождей, а со второго – с ее учетом, при подсчете продолжительности стокообразования tcт по формуле (6.10).
77
Затем расходы Q, поступающие в коллекторы с чисто грунтовых водосборов, подсчитывают по формулам (6.11) и (6.12).
Водосточную сеть искусственных покрытий можно проектировать не только с самотечным, но и с напорным режимом. Напорный
Срежим целесообразен для коротких коллекторов с минимальными уклонами при начальном заглублении их более 1,0 м, а также при нескольк х выпусках в открытые канавы или естественные водоемы.
6.1.4.Г дравлический расчет нагорных канав
Расчет нагорных канав (грунтовых лотков) производится на сток дождевых талых вод, принимая за расчетный наибольший расход.
Г дравл ческ м расчетом нагорных канав подбирают такое се-
, чтобы х пропускная |
Q0 не оказалась меньше рас- |
|
чение |
|
|
четного расхода Q водос орной площади, т.е. |
|
|
способность |
|
|
А |
(6.21) |
|
Q < Q0. |
|
|
При расчете на сток талых вод расчетные расходы подсчитывают по средним значениям максимумов стока талых вод по формулам
(6.8) и (6.9).
При расчете канав на дождевой сток расчетные расходы подсчитывают по методу предельных интенсивностей с учетом ограничения продолжительности дождей минимальной интенсивностью стокообразования. Значения расчетных расходов Q в сечениях канав подсчи-
тывают в соответствии с (6.10–6.12). |
3 |
И |
||
|
||||
|
|
|
|
|
|
|
Пропускная способность канавД(в м /с) равна |
||
|
|
Q0 = ω · V, |
|
(6.22) |
где ω = bh+mh2 – площадь потока в канаве трапецеидального сечения, |
||||
м |
2 |
(b – ширина канавы по дну, м; h – глубина потока, м; m – коэффи- |
||
|
||||
циент заложения откосов канавы, принимаемый в соответствии с видом грунтов и типом укрепления откосов: для песка m =2,0; супеси и суглинка – m =1,5; для глины m =1,0) (рис. 6.5);
V C 
R I – скорость в расчетном сечении канавы, м/с (R – гидравлический радиус, м; I– уклон канавы).
78
С |
|
|
|
|
|
Р с. 6.5. Поперечное сечение нагорной канавы: |
|
||||
циента n* |
|
||||
|
1 |
– берма; 2 – кавальер; 3 – бровка |
|
||
Значен е коэфф |
С находят по формуле |
|
|||
бА |
|
||||
|
|
С |
1 |
Ry , |
(6.23) |
у = 1,5
n*, при R < 1 м; у = 1,3
n* при R >1 м,
где n* – коэффициент шероховатости канавы, принимаемый равным
0,025.
Гидравлический радиус потока находится из отношения R=ω/χ при значении
χ=b + 2h |
Д |
|
1 m |
Расчетные скорости в нагорных канавах и грунтовых лотках не должны превышать допускаемых на размыв Vmax (табл. 6.3) и не быть
менее Vmin = 0,5 |
|
|
|
И |
||
R – из условия заиливания. |
||||||
Уменьшение скоростей по длине нагорных канав (грунтовых |
||||||
лотков) не допускается. |
|
|
|
|
||
|
|
|
|
|
Таблица 6.3 |
|
Значения наибольшей неразмывающей скорости |
||||||
|
|
|
|
|
|
|
Грунт |
|
Наибольшая ско- |
Укрепление |
Наибольшая ско- |
||
|
|
рость, м/с |
|
|
рость, м/с |
|
Мелкий и средний |
0,4 |
Одерновка плашмя |
1,0 |
|
||
песок |
|
|
|
|
|
|
Крупный песок |
0,8 |
Одерновка в стенку |
1,6 |
|
||
Средний суглинок |
|
0,6–0,7 |
Мощение одиночное |
2,0 |
|
|
Тяжелый суглинок |
|
0,8–1,0 |
Мощение двойное |
3,0–3,5 |
|
|
Глина |
1,2 |
Бетон |
|
5,0–8,0 |
|
|
79
Примечания: 1. Значения наибольших скоростей движения воды даны при глубине потока от 0,4 до 1 м.
2. При другой глубине потока значения скоростей, указанные в табл. 6.3, следует принимать с коэффициентом 0,85 при глубине потока менее 0,4 м и 1,25
при глубине потока более 1 м. С
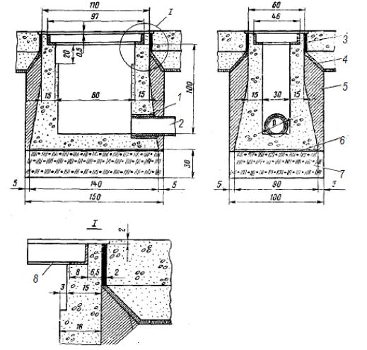
6.1.3. Гидравлический расчет дождеприемных и тальвежных колодцев
помощью которых осуществляется прием стекающей поверхностной воды, устра ваются з с орного или монолитного железобетона и устанавл ваются: первые по оси открытых лотков в кромках покрытий,
осиДождепр емные (рис. 6.6) и тальвежные (рис. 6.7) колодцы, с
а вторые побАгрунтовых лотков.
Д И
Рис. 6.6. Конструкция дождеприемного колодца с решеткой из одного звена: 1 – просмоленная пенька; 2 – перепуск; 3 – битумная мастика; 4 – песчанобитумный коврик; 5 – водоустойчивый грунт; 6 – цементный раствор состава 1:6 – 1:8; 7 – шлаковая подушка; 8 – опорная рама
80