заделка свай в роcтверк на величину не менее 10 см при условии, что остальная часть заделки обеспечивается выпусками стержней продольной арматуры на длине, определяемой расчетом, но не менее 30 диаметров стержней при арматуре периодического профиля и 40 диаметров стержней при гладкой арматуре.
Железобетонные сваи сплошного сечения в фундаментах опор мостов обычно применяются сечениями 30х30, 35х35 и 40х40 см. При этом следует ориентироваться на типовые сваи, конструкция, размеры и армирование которых даны в табл. 5,6. Для та-
|
ких свай используется бетон классов В20...В35. Длина свай изменяется через I м. |
||||||||||
СибАДИ |
|||||||||||
|
В табл.5 приведены данные по типовым трещиностойким (с раскрытием |
||||||||||
|
трещ н до 0,1 мм) сваям сплошного сечения |
длиной до 18 м из обычного |
|||||||||
|
железобетона, пр меняемые в настоящее время с высокими ростверками. |
||||||||||
|
|
Данные по типовым трещиностойким сваям из обычного |
Таблица 5 |
||||||||
|
|
|
|
железо етона для мостовых опор |
|
|
|
||||
|
ечен е |
Площадь |
|
|
Момент |
|
|
|
Класс |
|
Тип |
|
сваи, см |
сечен я, м |
2 |
|
инерции |
Длина, м |
|
бетона |
|
армирования |
|
|
|
|
сечения, м4 |
|
|
|
|
||||
|
|
|
|
|
|
6 - 12 |
|
|
В25 |
|
2 - 7 |
|
35х35 |
0,1225 |
|
|
0,001225 |
13 |
|
|
В30 |
|
2 - 7 |
|
|
|
|
|
|
14 |
|
|
В30 |
|
3 - 7 |
|
|
|
|
|
|
15 - 16 |
|
|
В30 |
|
4 - 7 |
|
|
|
|
|
|
8 - 12 |
|
|
В30 |
|
3 - 8 |
|
|
|
|
|
|
13 |
|
|
В35 |
|
3 - 8 |
|
40х40 |
0,16 |
|
|
0,002133 |
14, 15 |
|
|
В35 |
|
4 - 8 |
|
|
|
|
|
|
16, 17 |
|
|
В35 |
|
5 - 8 |
|
|
|
|
|
|
18 |
|
|
В35 |
|
6 - 8 |
Примечание. Каждой свае присваивается марка. Например, CM12-35T4 означает: С - свая; М - мостовая; 12 - длина, м; 35 - сторона сечения, см; Т - трещиностойкая; 4 - тип армирования, определяющий число и диаметр рабочей арматуры в соответствии с табл.6.
|
|
|
|
|
|
|
|
Таблица 6 |
|
Данные по армированию типовых железобетонных свай сплошного сечения |
|||||||||
Тип |
1 |
2 |
3 |
4 |
5 |
6 |
7 |
|
8 |
армирования |
|
||||||||
|
|
|
|
|
|
|
|
|
|
Рабочая |
4 20 |
4 25 |
4 28 |
4 32 |
12 20 |
8 28 |
12 25 |
|
12 28 |
арматура |
|
||||||||
|
|
|
|
|
|
|
|
|
|
Примечание. Стержни рабочей арматуры располагаются в углах сечения свай по одному (тип армирования I-4), по два (тип армирования 6) или по три (тип армирования 5,7 и 8). Защитный слой бетона рабочей арматуры – 30 мм. Арматура класса -II.
Типовые сборные полые круглые сваи и сваи-оболочки (табл.7) изготавливаются из обычного или предварительно напряженного железобетона. Для них используется бетон класса В35. Бетон заполнения внутренней полости свай диаметром 0,4...1,2 м должен иметь класс не ниже В20, а свай диаметром 1,6 м - не ниже В25. В грунтах, имеющих невысокую несущую способность, внутренняя полость полых круглых свай и свай-оболочек может бетоном не заполняться. Возможность использования незаполненных свай должна проверяться расчетом ствола на усилия от эксплуатационных нагрузок.
11
Конструкции типовых сборных полых круглых свай и свай-оболочек приведены в типовом проекте [9] и учебнике [4].
|
|
|
|
|
|
Таблица 7 |
|
Данные по полым круглым сваям и сваям-оболочкам |
|||||
|
|
|
|
|
|
|
|
Параметры |
|
|
Наружный диаметр, м |
||
|
|
0,6 |
1,2 |
|
1,6 |
|
|
|
|
|
|||
|
Толщина стенки, см |
10 |
12 |
|
12 |
|
СибАД |
И |
|||||
|
Площадь сечения |
|
0,15708 |
0,40715 |
|
0,55795 |
|
оболочки, м2 |
|
|
|||
|
Площадь сечен я |
|
0,12566 |
0,72382 |
|
1,45267 |
|
ядра, м2 |
|
|
|||
|
Момент нерц |
се- |
0,005105 |
0,060095 |
|
0,153770 |
|
чения оболочки, м4 |
|
||||
|
Момент нерц |
се- |
0,001257 |
0,041692 |
|
0,167929 |
|
чения ядра, м4 |
|
|
|||
|
Число стержней ра- |
16 |
40 |
|
56 |
|
|
бочей арматуры, шт |
|
||||
|
|
53,7 |
|
|
||
|
Радиус арматуры, см |
25,0 |
|
73,7 |
||
|
Площадь арматуры |
32 |
80 |
|
113 |
|
|
при =2(2)%, см2 |
|
|
|||
|
Площадь арматуры |
41 |
126 |
|
176 |
|
|
при =2,5(3)%, см2 |
|
||||
|
Площадь арматуры |
50 |
196,4 |
|
275 |
|
|
при =3(5)%, см2 |
|
|
|||
|
Длина секции, м |
|
4…12 |
6…12 |
|
4…12 |
|
Примечание: 1. В ско ках указаны проценты армирования свай-оболочек. 2. Сваи из |
|||||
|
обычного железобетона имеют рабочую арматуру класса А-II. |
иаметр стержней рабочей |
||||
арматуры с армированием =2% - 16 мм; с =2,5% - 18 мм; с =3% - 20 мм; с =5% - 25 мм.
3.Длина звеньев изменяется через 2 м.
Учитывая вышеизложенное и пользуясь табл. 5-7, назначают полную длину несущего элемента, выбирают размеры его поперечного сечения и материал.
Для железобетонных свай сплошного сечения на данном этапе проектирования устанавливают только длину и размеры поперечного сечения. Армирование свай их марку определяют расчетом прочности и трещиностойкости материала ствола после вычисления усилий и моментов, действующих на сваи, как рассмотрено далее в п.
Наружный диаметр полой круглой сваи и сваи-оболочки указан в задании. Полная длина несущего элемента из сборных оболочек должна составляться из отдельных секций стандартных длин (полная длина сваи должна быть кратной 2 м).
12
2.4. Определение несущей способности сваи или столба на осевую нагрузку по сопротивлению грунта
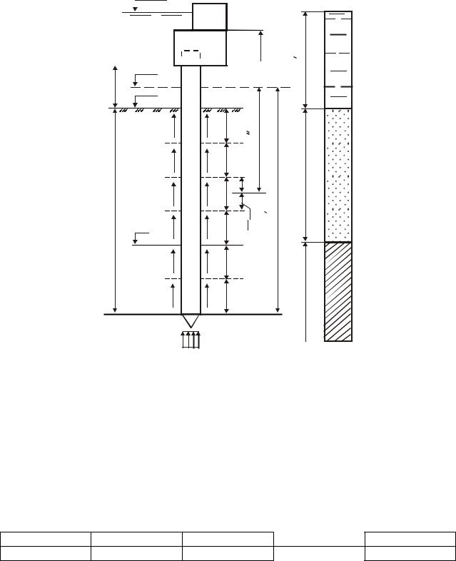
Несущую способность Fd, кН (рис.3), висячей забивной сваи и сваиоболочки, погружаемой без выемки грунта, работающих на сжимающую нагрузку, следует определять как сумму сил расчетных сопротивлений грунтов основания под нижним концом сваи и на ее боковой поверхности по формуле:
|
|
Fd |
c ( cR RA u cf fi hi ), |
(10) |
где c |
- коэфф ц ент условий работы сваи в грунте, принимаемый c = 1; |
|
||
СR - расчетное сопротивление грунта под нижним концом сваи, кПа, при- |
||||
|
н маемое по пр л.5; |
|
|
|
A - |
оболочки |
|
||
площадь |
оп рания на грунт сваи, м2, принимаемая по площади попе- |
|||
|
речного сечен сваи |
рутто или по площади поперечного сечения ка- |
||
рениямуфлетного уш |
по его наибольшему диаметру, или по площади |
|||
|
сваи- |
нетто; |
|
|
u - |
|
А |
|
|
наружный периметр поперечного сечения сваи, м; |
|
|||
fi - |
расчетное сопротивление i-го слоя грунта основания на боковой по- |
|||
|
верхности сваи, кПа, принимаемое по прил.6; |
|
||
hi - |
|
|
Д |
|
толщина i-го слоя грунта, соприкасающегося с боковой поверхностью |
||||
|
сваи, м; |
|
|
|
cR, cf - коэффициенты условий работы грунта соответственно под нижним |
||||
|
концом и на боковой поверхности сваи, учитывающие влияние способа |
|||
|
|
|
И |
|
|
погружения сваи на расчетные сопротивления грунта и принимаемые |
|||
по прил.7.
При определении R и fi глубина погружения нижнего конца сваи и средняя глубина расположения слоя грунта принимается от уровня дна реки после общего размыва (рис.3).
13
0.00
УМВ
hp 

dw 1
С |
|
|
|
|
|
|
|
|
|
l o |
|
2 |
|
|
|
|
|
|
|
|
f11 |
h 11 |
|
d |
|
|
|
|
|
f12 |
12 |
|
|
|
|
|
|
|
|
h |
|
|
h1 |
|
|
d |
|
f1i |
h1i |
|
|
|
|
|
|
|
|
|
|
|
|
|
|
|
|
|
h1n |
h1i |
d |
|
|
|
б |
|
|
|
||||
|
|
3 |
f1n |
|
|
2 |
|
|
иf21 |
h21 |
|
|
h2 |
|
|||
|
|
|
f2n |
2n |
|
|
|
|
|
|
А |
|
|||||
|
|
|
|
h |
|
|
|
|
|
|
|
|
R |
|
|
|
|
|
Риc.3. Схема к определению несущей способности висячей сваи: |
|
||||||
|
|
|
|
Д |
|
|||
|
1 - отметка уровня общего размыва; 2 - отметка уровня местного |
|
||||||
|
размыва; 3 – отметка кровли второго слоя |
|
||||||
Расчетное сопротивление сваи по грунту определяют по формуле |
||||||||
|
|
|
PГ |
с1Fd / k , |
|
(11) |
||
|
|
|
|
|
|
|
И |
|
где к – коэффициент надежности для фундаментов опор мостов, принимае- |
||||||||
мый равным 1,4 при сваях-стойках всегда, а при висячих сваях – при низком |
||||||||
ростверке; при высоком ростверке и висячих сваях к принимается в зависи- |
||||||||
мости от общего числа несущих элементов в фундаменте n (табл.8): |
Таблица 8 |
|||||||
n |
|
1 – 5 |
|
6 – 10 |
|
11 – 20 |
||
|
|
|
21 |
|||||
к |
|
1.75 |
|
1.65 |
|
1.55 |
1.40 |
|
с1 – коэффициент условия работы сваи или столба в грунте принимаемый при вертикальных висячих несущих элементах по табл.9 в зависимости от числа рядов свай на плоской схеме фундамента (т.е. числа их рядов, расположенных перпендикулярно к плоскости действия внешних нагрузок) и отношения наименьшего продольного усилия в несущих элементах Nmin к наибольшему Nmax , ( = Nmin / Nmax). Первоначально следует принимать
с1=1,0.
14
Значения к и с1 в процессе проектирования фундамента уточняются, т.к. значения n и неизвестны.
|
|
|
|
Таблица 9 |
|
Значения с1 для фундаментов с вертикальными несущими элементами |
|||
|
Число рядов на плоской |
|
Значения с1 при |
|
|
схеме фундамента |
0,1 |
0,1 0,3 |
0,3 0,4 |
С |
|
|
|
|
|
4 |
1,10 |
1,10 |
1,10 |
|
5 – 7 |
1,15 |
1,15 |
1,10 |
|
8 |
1,20 |
1,15 |
1,10 |
Для определен я количества несущих элементов в фундаменте необхо-
сопротивление |
|
|
|
|
димо выч сл ть расчетное сопротивление сваи, уменьшенное на значение ее |
||||
собственного веса: |
|
|
|
(12) |
P' |
P g |
c |
||
Г |
|
Г |
|
|
бетона |
|
|||
где РГ – расчетное |
|
сваи по грунту по выражению (11); |
|
|
gc – собственный вес несущего элемента (для висячих свай и столбов, погруженных в несвязные грунты, определяется с учетом взвешивающего действия воды ) gc=h A b f
здесь h=d+l0 |
(см. р с.3.); A–площадь сечения несущего элемента; b– |
|
А |
удельный вес |
равный 24 кН/м3; f – коэффициент надежности –1.1. |
Вычисляют площадь поперечного сечения ствола сваи или столба А и момент инерции этого сечения относительно его собственной оси У .
Находят произведения ЕА и ЕJ , где Е - модуль упругости бетона, зависящий от его класса, принимается равным 0,8 от значений, приведенных в
табл. 10. |
|
|
|
|
|
И |
|||||||
|
|
|
ДТ а б л и ц а 10 |
||||||||||
|
|
|
|
|
|||||||||
Класс бетона |
|
|
|
|
|
|
|
|
|
|
|
|
|
по прочно- |
В20 |
В22,5 |
В25 |
В27,5 |
В30 |
В35 |
В40 |
В45 |
В50 |
В55 |
В60 |
|
|
сти на сжа- |
|
||||||||||||
|
|
|
|
|
|
|
|
|
|
|
|
||
тие |
|
|
|
|
|
|
|
|
|
|
|
|
|
Еb·10-3, |
МПа |
27,0 |
28,5 |
30,0 |
31,5 |
32,5 |
34,5 |
36,0 |
37,5 |
39,0 |
39,5 |
40,0 |
|
(кгс/см2) |
|
275 |
290 |
306 |
321 |
332 |
352 |
367 |
382 |
398 |
403 |
408 |
|
Для полых круглых свай и свай-оболочек, заполненных бетоном другого класса, а также для трубобетонных свай с металлической оболочкой ствола
вычисляют приведенные значения: |
|
ЕА = Ео Ао + Ея Ая ; |
(13) |
ЕJ =ЕоJо + ЕяJя, |
(14) |
15